Titel Logo
RW-Direkt
Ausgabe 12/2026
Aus der Verwaltung / Ortsgemeinde
Zurück zur vorigen Seite
Zurück zur ersten Seite der aktuellen Ausgabe

Bekanntmachung

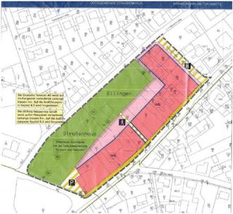
- Zeichnung -

Bauleitplanung der Ortsgemeinde Straßenhaus

Aufstellungsbeschluss für die Änderung des Bebauungsplanes „Ortsmitte“

Gemäß § 2 Abs. 1 BauGB wird hiermit bekannt gemacht, dass die Ortsgemeinde Straßenhaus am 02.12.2025 den Aufstellungsbeschluss für die Änderung des Bebauungsplanes „Ortsmitte“ gefasst hat.

Die Abgrenzung ist der beigefügten Übersichtskarte zu entnehmen.

56587 Straßenhaus, 09.02.2026
Ortsgemeinde Straßenhaus
Gez. Drees
Drees, Ortsbürgermeister