Titel Logo
RW-Direkt
Ausgabe 15/2023
Aus der Verwaltung / Ortsgemeinde
Zurück zur vorigen Seite
Zurück zur ersten Seite der aktuellen Ausgabe

Bekanntmachung

Bauleitplanung in der Ortsgemeinde Breitscheid

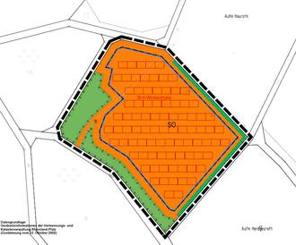
Bebauungsplan „Sondergebiet Photovoltaikanlage Breitscheid - Aufm Hauroth“

Durchführung der frühzeitigen Beteiligung der Öffentlichkeit nach § 3 Absatz 1 BauGB

Der Gemeinderat der Ortsgemeinde Breitscheid hat am 01.06.2021 den Beschluss zur Aufstellung des Bebauungsplanes „Sondergebiet Photovoltaikanlage Breitscheid - Aufm Hauroth“ gefasst. Der Aufstellungsbeschluss wird hiermit nach § 2 Absatz 1 BauGB ortsüblich bekannt gemacht.

Das Plangebiet umfasst die in dem beigefügten Plan mit einer gestrichelten schwarzen Linie umgrenzten Grundstücke.

Gemäß § 3 Absatz 1 BauGB wird hiermit bekannt gemacht, dass die Plangrundlagen bestehend aus der Planurkunde sowie den textlichen Festsetzungen (eine Begründung mit Umweltbericht ist beigefügt), sowie die bereits zusätzlich vorliegenden umweltrelevanten Informationen im Form einer artenschutzrechtlichen Vorprüfung bis einschließlich zum 12.05.2023 zur Einsichtnahme zur Verfügung gestellt werden.

Die Einsichtnahme erfolgt bei der Verbandsgemeindeverwaltung Rengsdorf-Waldbreitbach, Westerwaldstraße 32-34, Zimmer 49, 56579 Rengsdorf. Dort kann sich über die allgemeinen Ziele und Zwecke der Planung sowie die voraussichtlichen Auswirkungen der Planung bei der vorgenannten Stelle informiert und Stellungnahmen vorgebracht werden.

Dienststunden der Verbandsgemeindeverwaltung:

Montag bis Freitag von 07.30 Uhr bis 12.00 Uhr

Montag bis Dienstag von 13.00 Uhr bis 16.00 Uhr

Donnerstag von 13.00 Uhr bis 18.00 Uhr

Die Inhalte dieser ortsüblichen Bekanntmachung sowie die auszulegenden Unterlagen stehen während des vorgenannten Auslegungszeitraumes auch im Internet auf der Homepage der Verbandsgemeinde Rengsdorf-Waldbreitbach

(https://www.rengsdorf-waldbreitbach.de/aktuelles-mitteilungen/bauleitplanung/) unter der Rubrik Ortsgemeinde Breitscheid zur Einsicht zur Verfügung.

53547 Breitscheid, 23.03.2023  —  Viccari
Ortsgemeinde Breitscheid  —  Ortsbürgermeisterin