Titel Logo
RW-Direkt
Ausgabe 23/2023
Aus der Verwaltung / Ortsgemeinde
Zurück zur vorigen Seite
Zurück zur ersten Seite der aktuellen Ausgabe

Bekanntmachung

Bauleitplanung in der Ortsgemeinde Oberraden

Bebauungsplan „Gemeinbedarfsfläche Niederraden“

Durchführung der Offenlage nach § 3 Absatz 2 BauGB

Der Gemeinderat der Ortsgemeinde Oberraden hat am 23.02.2023 den Beschluss zur Aufstellung des Bebauungsplanes „Gemeinbedarfsfläche Niederraden“ gefasst.

Mit dem Bebauungsplan soll der Fortbestand der Nutzung des ehemaligen Feuerwehrhauses als Dorfgemeinschaftshaus einschließlich bestehender Nebennutzung und insbesondere die Nutzung der östlich angrenzenden Wiesenflächen als Areal für Freizeit und Erholung gesichert werden.

Die frühzeitige Beteiligung der Öffentlichkeit sowie der Behörden und sonstigen Träger öffentlicher Belange wurden im Zeitraum vom 20.03.2023 bis zum 21.04.2023 durchgeführt.

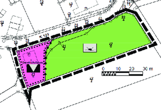
Das Plangebiet umfasst die in dem beigefügten Plan mit einer gestrichelten schwarzen Linie umgrenzten Grundstücke.

Gemäß § 3 Absatz 2 BauGB wird hiermit bekannt gemacht, dass die Plangrundlagen bestehend aus der Planurkunde sowie den textlichen Festsetzungen (eine Begründung und der Umweltbericht ist beigefügt), in der Zeit vom 19.06.2023 bis einschließlich zum 21.07.2023 bei der Verbandsgemeindeverwaltung Rengsdorf-Waldbreitbach, Westerwaldstraße 32-34, Zimmer 49, 56579 Rengsdorf, während der Dienststunden zur jedermanns Einsichtnahme öffentlich ausliegen. Innerhalb dieses Zeitraumes kann sich über die allgemeinen Ziele und Zwecke der Planung sowie die voraussichtlichen Auswirkungen der Planung bei der vorgenannten Stelle informiert und Stellungnahmen vorgebracht werden.

Dienststunden der Verbandsgemeindeverwaltung:

Montag bis Freitag von 07.30 Uhr bis 12.00 Uhr

Montag bis Dienstag von 13.00 Uhr bis 16.00 Uhr

Donnerstag von 13.00 Uhr bis 18.00 Uhr

Die Inhalte dieser ortsüblichen Bekanntmachung sowie die auszulegenden Unterlagen stehen während des vorgenannten Auslegungszeitraumes auch im Internet auf der Homepage der

Verbandsgemeinde Rengsdorf-Waldbreitbach (https://www.rengsdorf-waldbreitbach.de/Aktuelles&Mitteilungen/Bauleitplanung/) unter der Rubrik Ortsgemeinde Oberraden zur Einsicht zur Verfügung.

56587 Oberraden, 09.06.2023
Ortsgemeinde Oberraden
Braasch, Ortsbürgermeister