Titel Logo
RW-Direkt
Ausgabe 4/2025
Aus der Verwaltung / Ortsgemeinde
Zurück zur vorigen Seite
Zurück zur ersten Seite der aktuellen Ausgabe

Öffentliche Bekanntmachung

Bebauungsplan

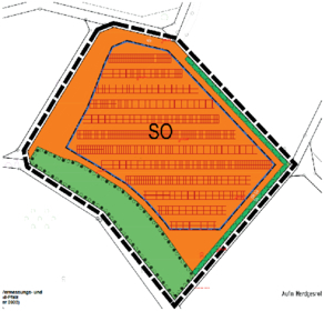
„Sondergebiet Photovoltaikanlage Breitscheid – Aufm Hauroth“

in der Ortsgemeinde Breitscheid

Inkrafttreten

Der Gemeinderat der Ortsgemeinde Breitscheid hat am 07.10.2024 den Bebauungsplan „Sondergebiet Photovoltaikanlage Breitscheid – Aufm Hauroth“ gemäß § 10 Abs. 1 Baugesetzbuch (BauGB) als Satzung beschlossen. Die Ortsbürgermeisterin hat den Bebauungsplan am 20.01.2025 ausgefertigt.

Das Plangebiet umfasst den in der Planzeichnung dargestellten Geltungsbereich und ist dort mit einer gestrichelten schwarzen Linie dargestellt.

Mit Bescheid der Kreisverwaltung Neuwied vom 06.01.2025, wurde die Genehmigung des Bebauungsplanes gem. § 10 Abs. 2 S. 1 i.V.m. § 8 Abs. 4 BauGB erteilt.

Der Bebauungsplan „Sondergebiet Photovoltaikanlage Breitscheid – Aufm Hauroth“ tritt gemäß § 10 Abs. 3 Satz 4 BauGB mit dieser Bekanntmachung in Kraft.

Es wird darauf hingewiesen, dass der Bebauungsplan „Sondergebiet Photovoltaikanlage Breitscheid – Aufm Hauroth“ einschließlich der textlichen Festsetzungen, den Hinweisen der Begründung mit Umweltbericht sowie der zusammenfassenden Erklärung, gemäß § 10 Abs. 3 Satz 2 BauGB zu jedermanns Einsichtnahme bei der Verbandsgemeindeverwaltung Rengsdorf-Waldbreitbach, Westerwaldstraße 32-34, 56579 Rengsdorf, während der Dienststunden bereitgehalten wird und eingesehen werden kann. Auf Verlangen wird über den Inhalt des Bebauungsplans Auskunft erteilt.

Dienststunden der Verbandsgemeindeverwaltung:

Montag bis Freitag

von

7.30 Uhr bis 12.00 Uhr

Montag bis Dienstag

von

13.00 Uhr bis 16.00 Uhr

Donnerstag

13.00 Uhr bis 18.00 Uhr

Hinweise nach dem Baugesetzbuch (BauGB):

Auf die Vorschriften des § 44 Abs. 3 Satz 1 und 2 sowie Abs. 4 BauGB über die fristgerechte Geltendmachung etwaiger Entschädigungsansprüche für Eingriffe in eine bisher zulässige Nutzung durch diese Satzung und das Erlöschen von Entschädigungsansprüchen wird hingewiesen.

Nach § 215 Abs. 1 BauGB werden unbeachtlich,

1.

eine nach § 214 Abs. 1 Satz 1 Nr. 1 bis 3 BauGB beachtliche Verletzung der dort bezeichneten Verfahrens- und Formvorschriften,

2.

eine unter Berücksichtigung des § 214 Abs. 2 BauGB beachtliche Verletzung der Vorschriften über das Verhältnis des Bebauungsplanes und des Flächennutzungsplanes und

3.

nach § 214 Abs. 3 Satz 2 BauGB beachtliche Mängel des Abwägungsvorganges,

wenn sie nicht innerhalb eines Jahres seit Bekanntmachung der Satzung schriftlich gegenüber der Gemeinde unter Darlegung des die Verletzung begründenden Sachverhalts geltend gemacht worden sind. Satz 1 gilt entsprechend, wenn Fehler nach § 214 Absatz 2a beachtlich sind.

Hinweise nach der Gemeindeordnung (GemO):

Gemäß § 24 Abs. 6 Gemeindeordnung (GemO) wird darauf hingewiesen, dass Satzungen, die unter Verletzung von Verfahrens- oder Formvorschriften dieses Gesetzes oder auf Grund dieses Gesetzes zustande gekommen sind, ein Jahr nach der Bekanntmachung als von Anfang an gültig zustande gekommen gelten.

Dies gilt nicht, wenn

1.

die Bestimmungen über die Öffentlichkeit der Sitzung, die Genehmigung, die Ausfertigung oder die Bekanntmachung der Satzung verletzt worden sind, oder

2.

vor Ablauf der genannten Frist die Aufsichtsbehörde den Beschluss beanstandet oder jemand die Verletzung der Verfahrens- oder Formvorschriften gegenüber der Ortsgemeinde Breitscheid, unter Bezeichnung des Sachverhaltes, der die Verletzung begründen soll, schriftlich geltend gemacht hat.

Hat jemand eine Verletzung der vorstehenden Nr. 2 geltend gemacht, so kann auch nach Ablauf der vorgenannten Frist jedermann diese Verletzung geltend machen.

53547 Breitscheid, 21.01.2025
gez.
Viccari, Ortsbürgermeisterin