Titel Logo
RW-Direkt
Ausgabe 43/2024
Aus der Verwaltung / Ortsgemeinde
Zurück zur vorigen Seite
Zurück zur ersten Seite der aktuellen Ausgabe

Bekanntmachung

nach § 47 Baugesetzbuch (BauGB) in der Fassung der Bekanntmachung vom 03. November 2017 (BGBl.I.S. 3634), in seiner jeweils geltenden Fassung

Am Mittwoch, 13. November 2024 findet um 17:30 Uhr in der Wiedhöhenhalle, Schulstraße in 56581 Kurtscheid der Anhörungstermin nach § 47 Baugesetzbuch bezüglich des angedachten Baulandumlegungsverfahrens „Aufm Scheid“ statt.

Alle betroffenen Eigentümer werden eingeladen, sowie auch sonstige Rechtsinhaber und Interessierte.

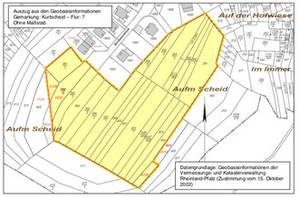
Das angedachte Umlegungsgebiet „Aufm Scheid“ ist im nachfolgenden Auszug aus den Geobasisinformationen kenntlich gemacht.

Während dieses Termins wird über das Ziel, den Zweck, den allgemeinen Verfahrensablauf und die Abfindungsgrundsätze einer gesetzlichen Baulandumlegung informiert.

Die Wahrnehmung des vorgenannten Termins erfolgt im eigenen Interesse und auf eigene Kosten.

56457 Westerburg, den 11.10.2024

gez. Dr.-Ing. Gabriele Hückelheim

Vorsitzendes Mitglied des Umlegungsausschusses

Hinweis:

Diese Bekanntmachung ist zusätzlich im Internet auf folgender Seite veröffentlicht:

https://www.rengsdorf-waldbreitbach.de/