Titel Logo
Amtsblatt der Verbandsgemeinde Diez und der Ortsgemeinden
Ausgabe 48/2023
Altendiez
Zurück zur vorigen Seite
Zurück zur ersten Seite der aktuellen Ausgabe

Bekanntmachung nach § 50 Abs. 1 des Baugesetzbuchs (BauGB)

In der Fassung der Bekanntmachung vom 3. November 2017 (BGBl. I S. 3634) in der jeweils geltenden Fassung

I. Umlegungsbeschluss

Der Umlegungsausschuss der Gemeinde Altendiez hat am 9. November 2023 folgenden Beschluss gefasst:

Nach § 47 des Baugesetzbuchs (BauGB) in der Fassung der Bekanntmachung vom 3. November 2017 (BGBl. I S. 3634) in der jeweils geltenden Fassung in Verbindung mit § 1 Abs. 1 der Umlegungsausschussverordnung wird aufgrund der Umlegungsanordnung (§ 46 Abs. 1 BauGB) der Gemeinde Altendiez vom 7. Dezember 2022 und nach erfolgter Anhörung der Eigentümer (§ 47 Abs. 1 BauGB) die Umlegung eingeleitet.

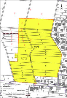
Das Umlegungsverfahren erhält die Bezeichnung „Am Hahnsfeld II“.

Das Umlegungsgebiet ist wie folgt abgegrenzt:

In das Umlegungsgebiet sind folgende Flurstücke oder Flurstücksteile einbezogen:

Gemarkung: Altendiez

Grundbuchamt: Diez

Flur: 2

Flurstücke Nr.: 33, 34, 35, 36/1, 36/2, 37, 38, 39, 41/5, 44/1, 46/A (Teilfläche aus 46/1), 48/A (Teilfläche aus 48), 49/A (Teilfläche aus 49), 50/A (Teilfläche aus 50), 51/A (Teilfläche aus 51), 52/A (Teilfläche aus 52), 57/A (Teilfläche aus 57/1), 71/A (Teilfläche aus 71/1), 74/1, 76, 77, 78, 79, 81/1, 82, 83, 84, 85, 89/1, 90/1, 92, 196/A (Teilfläche aus 196), 197/A (Teilfläche aus 197/1), 198

Im Folgenden wird der Umlegungsausschuss als „durchführende Stelle“ bezeichnet.

II. Beteiligte im Umlegungsverfahren und Aufforderung zur Anmeldung von Rechten

Nach § 48 BauGB sind im Umlegungsverfahren Beteiligte:

  1. die Eigentümerinnen und Eigentümer der im Umlegungsgebiet gelegenen Grundstücke,
  2. die Inhaberinnen und Inhaber eines im Grundbuch eingetragenen oder durch Eintragung gesicherten Rechts an einem im Umlegungsgebiet gelegenen Grundstücks oder an einem das Grundstück belastenden Recht,
  3. die Inhaberinnen und Inhaber eines nicht im Grundbuch eingetragenen
    Rechts an dem Grundstück oder an einem das Grundstück belastenden Recht,
    Anspruchs mit dem Recht auf Befriedigung aus dem Grundstück,
    persönlichen Rechts, das zum Erwerb, Besitz oder zur Nutzung des Grundstücks berechtigt oder den Verpflichteten in der Benutzung des Grundstücks beschränkt,
  4. die Gemeinde Altendiez
  5. unter den Voraussetzungen des § 55 Abs.5 die Bedarfsträger
  6. die Erschließungsträger.

Die unter 3. bezeichneten Personen werden zu dem Zeitpunkt Beteiligte, in dem die Anmeldung ihres Rechts der durchführenden Stelle zugeht. Die Anmeldung kann bis zur Beschlussfassung über den Umlegungsplan (§ 66 Abs. 1 BauGB) erfolgen. Bestehen Zweifel an einem angemeldeten Recht, wird die durchführende Stelle der anmeldenden Person unverzüglich eine Frist zur Glaubhaftmachung ihres Rechts setzen. Nach fruchtlosem Ablauf der Frist ist die anmeldende Person bis zur Glaubhaftmachung ihres Rechts nicht mehr zu beteiligen (§ 48 Abs. 3 BauGB). Rechte, die aus dem Grundbuch nicht ersichtlich sind, aber zur Beteiligung am Umlegungsverfahren berechtigen, sind binnen einem Monat nach der Bekanntmachung des Umlegungsbeschlusses bei der durchführenden Stelle anzumelden.

Werden Rechte erst nach Ablauf eines Monats angemeldet oder nach Ablauf der durch den Durchführende Stelle gesetzten Frist glaubhaft gemacht, muss die berechtigte Person die bisherigen Verhandlungen und Festsetzungen gegen sich gelten lassen, wenn die durchführende Stelle dies bestimmt.

Die Inhaberin oder der Inhaber eines im Grundbuch nicht ersichtlichen Rechts, das zur Beteiligung am Umlegungsverfahren berechtigt, muss die Wirkung eines vor der Anmeldung eingetretenen Fristablaufs ebenso gegen sich gelten lassen, wie die beteiligte Person, der gegenüber die Frist durch diese Bekanntmachung zuerst in Lauf gesetzt worden ist. Wechselt die Person einer Beteiligten oder eines Beteiligten während des Umlegungsverfahrens, so tritt seine Rechtsnachfolgerin oder sein Rechtsnachfolger in das Verfahren in dem Zustand ein, in dem es sich im Zeitpunkt des Übergangs des Rechts befindet (§ 49 BauGB).

III. Verfügungs- und Veränderungssperre

Nach § 51 BauGB dürfen von der Bekanntmachung des Umlegungsbeschlusses bis zur Bekanntmachung der Unanfechtbarkeit des Umlegungsplans (§ 71 BauGB) im Umlegungsgebiet nur mit schriftlicher Genehmigung der durchführenden Stelle

  1. ein Grundstück geteilt oder Verfügungen über ein Grundstück und über Rechte an einem Grundstück getroffen oder Vereinbarungen abgeschlossen werden, durch die einem anderen ein Recht zum Erwerb, zur Nutzung oder Bebauung eines Grundstücks oder Grundstücksteils eingeräumt wird,
  2. Baulasten neu begründet, geändert oder aufgehoben werden,
  3. erhebliche Veränderungen der Erdoberfläche oder wesentlich wertsteigernde sonstige Veränderungen der Grundstücke vorgenommen werden,
  4. nicht genehmigungs-, zustimmungs- oder anzeigepflichtige, aber wertsteigernde bauliche Anlagen errichtet oder wertsteigernde Änderungen solcher Anlagen vorgenommen werden,
  5. genehmigungs-, zustimmungs- oder anzeigepflichtige bauliche Anlagen errichtet oder geändert werden.

Vorhaben, die vor dieser Bekanntmachung baurechtlich genehmigt worden sind, Unterhaltungsarbeiten und die Fortführung einer bisher ausgeübten Nutzung werden von der Verfügungs- und Veränderungssperre nicht berührt.

IV. Geschäftsstelle

Die Geschäftsstelle der durchführenden Stelle ist bei dem Vermessungs- und Katasteramt Westerwald-Taunus, Jahnstraße 5, 56457 Westerburg eingerichtet.

V. Auslegung von Bestandskarte und Bestandsverzeichnis

Das Bestandsverzeichnis und die Bestandskarte, in denen der Nachweis des Grundbuchs und Liegenschaftskatasters für alle Grundstücke des Umlegungsgebiets aufgeführt ist, liegen vom 11. Dezember2023 bis einschließlich 11. Januar 2024 bei der Verbandsgemeindeverwaltung Diez, LouiseSeher-Straße 1, 65582 Diez während der allgemeinen Dienststunden öffentlich aus. Eine vorherigeTerminvereinbarung unter der Telefonnummer 06432 501-143 ist erforderlich.

VI. Vorbereitende Maßnahmen

Den Beauftragten der zuständigen Behörden ist nach § 209 BauGB zur Vorbereitung der von ihnen nach diesem Gesetzbuch zu treffenden Maßnahmen das Recht eingeräumt, alle dem Verfahren unterworfenen Grundstücke zu betreten, um Vermessungen, Abmarkungen, Bewertungen oder ähnliche Arbeiten auszuführen, nachdem den Eigentümerinnen, Eigentümern, Erbbauberechtigten und Besitzern die Absicht, solche Arbeiten auszuführen, rechtzeitig bekannt gegeben worden ist.

VII. Rechtsbehelfsbelehrung

Gegen den Umlegungsbeschluss kann innerhalb eines Monats nach Bekanntgabe Widerspruch erhoben werden. Die Monatsfrist beginnt zwei Wochen nach der öffentlichen Bekanntmachung. Der Widerspruch kann

  1. in elektronischer Form nach § 3a Abs. 2 des Verwaltungsverfahrensgesetzes oder
  2. schriftlich oder zur Niederschrift bei dem Umlegungsausschuss der Ortsgemeinde Altendiez, Geschäftsstelle beim Vermessungs- und Katasteramt Westerwald-Taunus, Jahnstraße 5, 56457 Westerburg erhoben werden.
Westerburg, den 23.11.2023
Dr.-Ing. Gabriele Hückelheim,
vorsitzendes Mitglied des Umlegungsausschusses

Hinweis:

Diese Bekanntmachung ist zusätzlich im Internet unter www.vgdiez.de veröffentlicht.