Titel Logo
Blaues Ländchen aktuell - Heimat- u Bürgerzeitung VG Nastätten
Ausgabe 6/2024
Aus den Gemeinden
Zurück zur vorigen Seite
Zurück zur ersten Seite der aktuellen Ausgabe

Öffentliche Bekanntmachung zur Aufstellung eines Bebauungsplanes

  1. a. des Beschlusses zur Aufstellung des vorhabenbezogenen Bebauungsplanes „Im Kleegarten“ der Ortsgemeinde Buch gemäß § 2 Abs. 1 S. 2 Baugesetzbuch (BauGB) i. V. m. § 12 BauGB
  2. b. zur Beteiligung der Öffentlichkeit gemäß § 3 Abs. 1 BauGB

Der Gemeinderat der Ortsgemeinde Buch hat im öffentlichen Teil seiner Sitzung am 23.11.2022 die Aufstellung eines vorhabenbezogenen Bebauungsplanes im Sinne des § 1 Abs. 2 BauGB i.V.m. § 2 Abs. 1 Satz 1 BauGB i. V. m § 12 BauGB mit der Bezeichnung „Im Kleegarten“ beschlossen. Das Plangebiet umfasst eine Fläche von ca. 3.900 m² und befindet sich am nördlichen Siedlungsrand der Ortsgemeinde Buch. Der Geltungsbereich des Bebauungsplanes „Im Kleegarten“ umfasst die Flurstücke 1, 2/1, 4/2 und 7/1.

Zum Planungsziel wird aus der Begründung des Bebauungsplanes zitiert:

„Ziel des Bebauungsplanes ist die Schaffung der planungsrechtlichen Voraussetzungen zur Errichtung eines freistehenden Einfamilienwohnhauses. Die geplante Wohnnutzung soll helfen, der bestehenden Nachfrage nach zusätzlichem Wohnraum innerhalb der Gemeinde gerecht zu werden. Durch die Umsetzung des Bauvorhabens, angrenzend zur bebauten Ortslage, kann ein Beitrag zur bedarfsorientierten Eigenent-wicklung in der Ortsgemeinde Buch geleistet und zur Stärkung des Wohnstandortes zusätzlicher Wohnraum geschaffen werden.

Das Plangebiet stellt sich derzeit als unbebaute Fläche im Außenbereich dar. Bei der von Eingriffen betroffenen Fläche handelt es sich ausschließlich um eine artenarme Fettwiese, einen Obstbaum, einen unversiegelten Grasweg sowie einen dauerhaft zu erhaltenden Wald. Für den Geltungsbereich des vorliegenden Bebauungsplans „Im Kleegarten“ wurde in Folge einer artenschutzrechtlichen Potenzialanalyse inklusive Biotoptypkartierung die potenzielle Betroffenheit von artenschutzrechtlichen Verbotstatbeständen gemäß des § 44 BNatSchG begutachtet.

Der durch das Vorhaben entstehende Eingriff in Natur und Landschaft wird innerhalb des Geltungsbereiches auf der im Norden vorgesehenen Ausgleichsfläche ausgeglichen. Darüber hinaus sollen die im Plangebiet bestehenden Gehölzstrukturen erhalten werden. Der Ausgleich soll auf der nördlichen Fläche durch die Anlage einer Hecke, dem Erhalt der Wiese sowie der Pflanzung von ca. 14 Bäumen erfolgen. Hierdurch sollen u.a. umfangreiche Pflegemaßnahmen vermieden werden, welche durch z.B. die Umwandlung in eine Magergrünland anfallen würden. Auch entsteht nur die optimierte Konzeption nur ein minimaler Kompensationsüberschuss von 20 qm. Die angedachten Hecken- und Baumpflanzen sollen zudem die angrenzenden Naherholungsräume/ Wegeverbindungen aufwerten und das Gebiet umfangreich eingrünen. Bei den Baumpflanzen können z.B. auch Obstbäume gewählt werden, welche natürlich entsprechend noch als Lebens- und Genussmittel genutzt werden können.

Dem zu erhaltenden Wald wird hingegen eine große Bedeutung für die lokale Avifauna zugesprochen. Während einem Flächenbegang wurden mindestens die Arten Zilpzalp, Amsel, Star und Raubwürger als Brutvögel vermutet oder nachgewiesen. Besonders für den in Rheinland-Pfalz vom Aussterben bedrohten Raumwürger ist das Wäldchen deshalb dauerhaft zu schützen.“

Die Aufstellung erfolgt im zweistufigen Regelverfahren als vorhabenbezogener Bebau-ungsplan i.S.d. § 12 Abs. 1 BauGB i. V. m. § 30 Abs. 2 BauGB. Somit wird ein Umweltbericht nach § 2 Abs. 4 BauGB bzw. § 2a BauGB erforderlich, die zusammenfassende Erklärung nach § 10 a BauGB und die Zusammenstellung von Umweltinformationen nach § 3 Abs. 2 Satz 2 BauGB. Die Landschaftsplanung ist mit der Eingriffs-/Ausgleichsbilanzierung abzuarbeiten.

Der vorgelegte Bebauungsplanentwurf des Planungsbüros WSW &Partner GmbH, Kaisersalautern, wurde in dem öffentlichen Teil der Gemeinderatssitzung am 25.01.2024 vom Gemeinderat der Ortsgemeinde Buch zur Durchführung der Beteiligung gemäß § 3 Absatz 1 BauGB und der Beteiligung der durch die Planung berührten Behörden und anderer Träger öffentlicher Belange gemäß § 4 Absatz 1 BauGB (frühzeitige Unterrichtung) sowie der interkommunalen Abstimmung nach § 2 Abs. 2 BauGB zugelassen.

Der Flächennutzungsplan der Verbandsgemeinde Nastätten (13. Teilfortschreibung) Gemarkung Buch stellt das Plangebiet als Fläche für die Landwirtschaft mit Zweckbestimmung vorhandene Streuobstwiese dar. Die Planung wird durch die Aufstellung eines vorhabenbezogenen Bebauungsplans realisiert. Folglich wird keine Art der baulichen Nutzung festgesetzt, allerdings sieht das Vorhaben eine Wohnnutzung vor, sodass eine Entwicklung aus dem Flächennutzungsplan nicht gegeben ist. Der Flächennutzungsplan ist somit in einem Parallelverfahren gem. § 8 Abs. 3 BauGB zu ändern. Dieses ist für die 19. Änderung des Flächennutzungsplans der Verbandsgemeinde Nastätten vorgesehen. Der Aufstellungsbeschluss wurde gefasst und die Unterlagen werden für das Antragsverfahren gemäß § 20 LPlG ausgearbeitet.

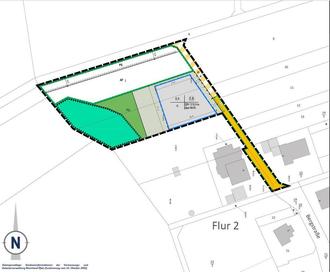
Die Lage und Abgrenzung des Plangebietes ist im beigefügtem Kartenwerk (unmaßstäb-lich) durch eine unterbrochene schwarze Linie gekennzeichnet.

Die Öffentlichkeit kann sich bei der Verbandsgemeindeverwaltung Nastätten (Adresse etc. siehe unten) über die allgemeinen Ziele und Zwecke sowie die wesentlichen Auswirkungen der Planung unterrichten, es wird ihr Gelegenheit zur Äußerung und Erörterung zur Planung gegeben (§ 3 Abs. 1 Satz 1 BauGB).

Zur frühzeitigen Offenlage gemäß § 3 Abs. 1 BauGB wird die aktuelle Entwurfsfassung des Bebauungsplanes (Planzeichnung und den textlichen Festsetzungen [Bebauungs-planverkleinerung]), Begründung inklusive des Umweltberichts, Vorhaben- und Er-schließungsplan, Biotop- und Nutzungstypenplan [Landschaftsplanung zum vorhaben-bezogenen Bebauungsplan] in der Zeit vom

Freitag, den 16.02.2024 bis einschließlich

Montag, den 18.03.2024

während den Sprechzeiten (Mo-Fr 8:00-12:00 Uhr; Mo-Mi 14:00-15:30 Uhr; Do 14:00-18:00 Uhr) im Gebäude der Verbandsgemeindeverwaltung, Bahnhofstraße 1, 56355 Nastätten - Zimmer 116 oder 117 - zu jedermanns Einsichtnahme öffentlich ausgelegt.

Während der Auslegungsfrist können zu den Planentwürfen Stellungnahmen schriftlich vorgebracht und mündlich zu Protokoll gegeben werden.

Ergänzend sind die erforderlichen Detailunterlagen zur Aufstellung des vorhabenbezo-genen Bebauungsplanes „Im Kleegarten“ der Ortsgemeinde Buch im Internet unter

1.

www.vgnastaetten.de/verwaltung/buergerservice/oeffentliche-bekanntmachungen/

oder

2.

www.geoportal.rlp.de

bis zum 18.03.2024 einsehbar und als pdf-Dateien abruf- und herunterladbar.

Während der Auslegung haben Einwohner und Bürger Gelegenheit, die Planung zu erörtern, hierzu Stellung zu nehmen sowie Anregungen und Bedenken zu äußern. Nicht fristgerecht abgegebenen Stellungnahmen können bei der Beschlussfassung über den Bebauungsplan unberücksichtigt bleiben (§ 4a Absatz 6 BauGB).

Nastätten, 05.02.2024
Verbandsgemeindeverwaltung
Nastätten
Güllering, Bürgermeister



Vorhabenbezogener Bebauungsplan „Im Kleegarten“, Ortsgemeinde Buch

Planzeichnung mit Gebietsabgrenzung vorhabenbezogener Bebauungsplan „Im Kleegarten" der Ortsgemeinde Buch

Verfahrensstand: frühzeitige Beteiligung nach § 3 Abs. 1 BauGB

Planentwurf: 08.01.2024

Maßstab: unmaßstäblich

Die innerhalb mit schwarz unterbrochener Linie abgegrenzten Plangebietes liegenden zeichnerischen und textlichen Markierungen sind für die Bekanntmachung rechtlich nicht relevant.

Sie sind Gegenstand der Rechtsnorm. Für die Bekanntmachung ist lediglich die Gebietsangrenzung von Bedeutung.