Titel Logo
Loreley-Echo - Mitteilungsblatt der Verbandsgemeinde Loreley
Ausgabe 35/2025
Amtliche Bekanntmachungen
Zurück zur vorigen Seite
Zurück zur ersten Seite der aktuellen Ausgabe

Bekanntmachung

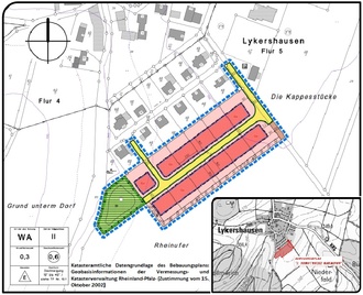
Die Ortsgemeinde Lykershausen sieht die Aufstellung eines Bebauungsplanes für ein Allgemeines Wohngebiet (WA) am südlichen Randbereich vor. In diesem Zusammenhang hat der Ortsgemeinderat Lykershausen am 01.07.2025 die Aufstellung des Bebauungsplanes "2. Erweiterung Rheinufer" gemäß § 2 Abs.1 Baugesetzbuch (BauGB) beschlossen. Der Planentwurf des Planungsbüros Karst, Nörtershausen wurde gebilligt und zur Durchführung der Beteiligung der Öffentlichkeit nach § 3 Abs. 1 BauGB sowie die Beteiligung der Träger öffentlicher Belange nach § 4 Abs. 1 BauGB freigegeben.

Das zukünftige Plangebiet ist im nachfolgenden Kartenausschnitt dargestellt.

Der Entwurf des Bebauungsplans "2. Erweiterung Rheinufer" wird in der Zeit vom 05.09.2025 bis einschließlich 08.10.2025 in digitaler Form über die Homepage der Verbandsgemeinde Loreley (www.vg-loreley.de) in der Rubrik "Verwaltung" --{{gt}} "Öffentliche Bekanntmachungen" --{{gt}} "Städte und Gemeinden" zu finden sein.

Zusätzlich werden die Unterlagen bei der Verbandsgemeindeverwaltung Loreley, Friedrichsstraße 12, 56338 Braubach, Zimmer 14 während der Dienststunden

Montag - Mittwoch von 8:00 - 12:00 Uhr und 14:00 - 16:00 Uhr

Donnerstag von 8:00 - 12:00 Uhr und 14:00 - 18:00 Uhr

Freitag von 8:00 - 12:00 Uhr

öffentlich im selben Zeitraum ausgelegt. Während der Offenlage können Anregungen schriftlich oder zur Niederschrift vorgebracht werden. Nur fristgerechte, d.h. während der Offenlagefrist vorgebrachte Anregungen haben Anspruch auf Prüfung.

St. Goarshausen, 20.08.2025
Verbandsgemeindeverwaltung
Loreley / Fachbereich II
Mike Weiland, Bürgermeister