Titel Logo
Maifelder Nachrichten - Wochenzeitung der Verbandsgemeinde Maifeld
Ausgabe 28/2023
Öffentliche Bekanntmachungen
Zurück zur vorigen Seite
Zurück zur ersten Seite der aktuellen Ausgabe

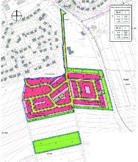
Aufstellung des Bebauungsplanes „Am St. Georgenbach“, Stadt Polch, sowie Beteiligung der Öffentlichkeit gemäß § 3 Abs. 1 Baugesetzbuch (BauGB)

Der Stadtrat von Polch hat am 19.11.2020 und am 24.05.2022 die Aufstellung des Bebauungsplanes „Am St. Georgenbach“ gemäß § 2 Abs. 1 BauGB beschlossen. Ziel der Planung ist Realisierung eines Allgemeinen Wohngebietes. Das in Rede stehende Plangebiet liegt derzeit im bauplanungsrechtlichen Außenbereich nach § 35 BauGB, weshalb es zur Bauplanungsrechtschaffung der Aufstellung eines Bebauungsplanes bedarf.

Gemäß § 3 Abs. 1 BauGB ist die Öffentlichkeit möglichst frühzeitig an der Bauleitplanung zu beteiligen.

Die Abgrenzung des Plangebietes ist aus nachfolgend abgedrucktem Plan ersichtlich.

Hier bitte Plan einfügen

Der Bebauungsplanvorentwurf liegt mit Textfestsetzungen, Begründung inkl. Umweltbericht, Biotop- und Nutzungstypenplan, städtebaulichem Gestaltungsentwurf, Verkehrsplanerischer Begleituntersuchung und Geruchsgutachten in der Zeit vom

17.07.2023 bis einschließlich 18.08.2023

bei der Verbandsgemeindeverwaltung Maifeld, Marktplatz 4-6, 56751 Polch, Zimmer 218, zu jedermanns Einsicht aus, und zwar jeweils montags bis donnerstags in der Zeit von 8:30 Uhr bis 12:30 Uhr und 14:00 Uhr bis 16:00 Uhr sowie freitags von 8:30 Uhr bis 13:00 Uhr.

Gleichzeitig können die o.g. Unterlagen auch im Internet auf der Website der Verbandsgemeinde Maifeld www.maifeld.de (ØLeben & Infrastruktur ØBauen, Wohnen, Klimaschutz & Förderungen ØBauleitplanung ØBebauungsplan „Am St. Georgenbach“, Polch) eingesehen werden.

Während des Auslegungszeitraumes besteht Gelegenheit sich zum Planvorentwurf zu äußern.

Die Bekanntmachung ergeht auf der Grundlage des § 3 Abs. 1 BauGB.

56751 Polch, 05.07.2023 — Gerd Klasen
Stadt Polch — Stadtbürgermeister