Der Entwurf des Bebauungsplanes „Auf dem alten Garten“ der Ortsgemeinde Einig kann mit Satzungsentwurf, Text und Begründung inkl. Umweltbericht, Biotop- und Nutzungstypenplan, Fachbeitrag Artenschutz, Geruchsgutachten, Schalltechnischem Gutachten, geotechnischem Kurzbericht und den umweltbezogenen Informationen sowie umweltrelevanten Stellungnahmen in der Zeit vom
18.11.2024 bis einschl. 18.12.2024
im Internet auf der Homepage der Verbandsgemeinde Maifeld www.maifeld.de ({{gt}}Leben & Infrastruktur {{gt}}Bauen, Wohnen, Klimaschutz & Förderungen {{gt}}Bauleitplanung {{gt}}Bebauungsplan „Auf dem alten Garten“, Einig) eingesehen werden.
Zusätzlich liegen die o.g. Unterlagen im o.g. Zeitraum bei der Verbandsgemeindeverwaltung Maifeld, Marktplatz 4-6, 56751 Polch, Zimmer 301, zu jedermanns Einsicht aus, und zwar jeweils montags bis donnerstags in der Zeit von 8:30 Uhr bis 12:30 Uhr und 14:00 Uhr bis 16:00 Uhr sowie freitags von 8:30 Uhr bis 13:00 Uhr.
Ziel der vorliegenden Planung ist die Schaffung der bauplanungsrechtlichen Voraussetzungen für rund 25 Bauplätze. Die Baugrundstücke sind zur Realisierung von freistehenden Einzelhäusern vorgesehen, bei denen Grundstücksgrößen zwischen 500 m2 und 800 m2 gemäß Gestaltungsentwurf entstehen können.
Gemäß § 3 Abs. 2 Satz 4 BauGB wird darauf hingewiesen, dass folgende Arten umweltbezogener Informationen verfügbar sind:
Die Begründung zum Bebauungsplan, einschließlich landschaftsplanerischer Erhebungen und Bewertungen sowie der Umweltbericht gemäß §§ 2 (4) und 2a BauGB, enthält unter anderem Ausführungen zu:
| • | Schutzgut Boden/Fläche |
| o | Aussagen zu Lage, Relief, Geologie und Bodenart |
| o | Angaben zum Bedarf an Grund und Boden |
| o | Darstellung der Ziele des Umweltschutzes sowie der einschlägigen Fachgesetze und Fachpläne |
| o | Ermittlung und Bewertung der Schutzwürdigkeit sowie der potenziell erheblichen Umweltauswirkungen |
| o | Benennung von Vermeidungs-, Minimierungs- bzw. Ausgleichsmaßnahmen |
| • | Schutzgut Wasser |
| o | Aussagen zu vorhandenen Gewässern und Wasserschutzgebieten, sowie dem Wasserhaushalt |
| o | Darstellung der Ziele des Umweltschutzes sowie der einschlägigen Fachgesetze und Fachpläne |
| o | Ermittlung und Bewertung der Schutzwürdigkeit bzw. der potenziell erheblichen Umweltauswirkungen |
| o | Benennung von Vermeidungs-, Minimierungs- bzw. Ausgleichsmaßnahmen |
| o | Erläuterung der geplanten Gebietsentwässerung |
| • | Schutzgut Luft und klimatische Faktoren |
| o | Aussagen zum Lokalklima |
| o | Darstellung der Ziele des Umweltschutzes sowie der einschlägigen Fachgesetze und Fachpläne |
| o | Ermittlung und Bewertung der Schutzwürdigkeit sowie der potenziell erheblichen Umweltauswirkungen |
| o | Benennung von Vermeidungs-, Minimierungs- bzw. Ausgleichsmaßnahmen |
| • | Schutzgut Tiere und Pflanzenwelt, Biologische Vielfalt und Landschaft |
| o | Aussagen zur Bestandssituation |
| o | Bewertung der Auswirkungen auf Schutzgebieten sowie anderen übergeordneten umweltrelevanten Vorgaben und Planungen (z.B. Natura 2000-, FFH- u. VSG) |
| o | Darstellung der Ziele des Umweltschutzes sowie der einschlägigen Fachgesetze und Fachpläne |
| o | Erfassung und Beschreibung der im Plangebiet vorhandenen Biotop- und Nutzungstypen |
| o | Ermittlung und Bewertung der Schutzwürdigkeit sowie der potenziell erheblichen Umweltauswirkungen |
| o | Ermittlung/Bewertung artenschutzrechtlicher Belange |
| o | Benennung von Vermeidungs-, Minimierungs- bzw. Ausgleichsmaßnahmen |
| • | Schutzgut Landschaftsbild und Erholung |
| o | Aussagen zur Bestandssituation |
| o | Benennung der Ziele des Umweltschutzes u. Fachgesetze/Fachpläne |
| o | Ermittlung und Bewertung der Schutzwürdigkeit bzw. der potenziell erheblichen Umweltauswirkungen |
| o | Benennung von Vermeidungs-, Minimierungs- bzw. Ausgleichsmaßnahmen |
| • | Schutzgut Bevölkerung und Gesundheit des Menschen |
| o | Aussagen zur aktuellen Bestandssituation |
| o | Darstellung der Ziele des Umweltschutzes sowie der einschlägigen Fachgesetze und Fachpläne |
| o | Ermittlung und Bewertung der Schutzwürdigkeit sowie der potenziell erheblichen Umweltauswirkungen |
| o | Erläuterungen zum Immissionsschutz und zur Emissionsvermeidung |
| Angaben zur Nutzung regenerativer Energien, Energieeinsparung und zum sachgerechten Umgang mit Abfällen und Abwässern | |
| • | Schutzgut Sachwerte und kulturelles Erbe |
| o | Aussagen zur Bestandssituation |
| o | Darstellung der Ziele des Umweltschutzes sowie der einschlägigen Fachgesetze und Fachpläne |
| o | Ermittlung und Bewertung der Schutzwürdigkeit bzw. der potenziell erheblichen Umweltauswirkungen |
| o | Ausführungen zu Denkmalschutz und Archäologie |
| Ergänzend zu vorstehend genannten Angaben sind dem Umweltbericht zu entnehmen: | |
| • | Prognosen zur Entwicklung des Umweltzustands bei Durchführung und Nichtdurchführung des Vorhabens |
| • | Ermittlung und Bewertung potenziell erheblicher Umweltauswirkungen auf die genannten Schutzgüter sowie deren Wirkungsgefüge, Wechselwirkungen und Summationswirkungen |
| • | Aussagen zur Alternativenprüfung |
| • | Aussagen zur Anfälligkeit für schwere Unfälle und Katastrophen |
| • | Anmerkungen zur Durchführung der Umweltprüfung |
| • | Beschreibung der Maßnahmen zur Überwachung der erheblichen Umweltauswirkungen (Hinweise zum Monitoring) |
| • | Zusammenfassung des Umweltberichts in allgemein verständlicher Form |
| Folgende Fachgutachten mit umweltrelevanten Informationen liegen im Beteiligungsverfahren vor: | |
| • | Schallgutachten „Schalltechnisches Gutachten. Bebauungsplan „Auf dem alten Garten“, Einig.“, Konzept dB plus GmbH, Juli 2023 |
| o | Ermittlung und Bewertung des Anlagen- u. Verkehrslärms aufgrund der in Rede stehenden Planung |
| • | Fachbeitrag Artenschutz zu Vögeln, Fledermäusen (Habitatbewertung) und Reptilien sowie Verträglichkeitsprüfung zum NATURA 2000-Gebiet Vogelschutzgebiet DE 5709-401 „Maifeld Einig-Naunheim“ für den Bebauungsplan „Auf dem alten Garten“ in Einig, Mai 2023 |
| o | Kartierung der Avifauna: Die Wertigkeit des untersuchten Gebietes ist aus avifaunistischer Sicht insgesamt als gering bis mittel einzustufen. Die Erhaltungszustände der im angrenzenden VSG vorkommenden, charakteristischen Arten werden nicht beeinträchtig, und eine Erheblichkeitsschwelle somit auch sicher nicht überschritten. |
| o | Vorkommen von Zauneidechsen wurden im Plangebiet nicht nachgewiesen, für das Umfeld jedoch benannt. |
| o | Durch fehlende Habitatausstattungen im Plangebiet ist das Vorkommen von Fledermäusen als gering einzustufen. Am ehesten können allgemein verbreitete Zwergfledermäuse oder gelegentlich auch Breitflügelfledermäuse als wiederkehrende Luftjäger erwartet werden. |
| o | Darstellung von Maßnahmen zur Vermeidung, Minimierung und zum Ausgleich potenzieller Umweltauswirkungen. |
| • | Geruchsgutachten zur Erschließung eines Baugebietes in der Ortsgemeinde Einig, Meodor Immissionsschutz GmbH, Dez. 2006 |
| o | Bewertung der bestehenden Geruchsbelastungen im Ortsbereich und angrenzenden Flächen |
| • | Geotechnischer Kurzbericht. Projekt: „Neubaugebiet in der OG Einig, VG Maifeld“, Dr. Jung + Lang Ingenieure GmbH, 29.08.2024 |
| o | Bewertung der Versickerungsfähigkeit des Bodens |
| Im Rahmen der frühzeitigen Beteiligungsverfahren nach § 4 (1) BauGB sind umweltrelevante Stellungnahmen mit folgenden Sachverhalten eingegangen. | |
| Diese werden im Folgenden, in stichwortartiger Darstellung der relevanten Inhalte, aufgeführt: | |
| • | Generaldirektion Kulturelles Erbe Rheinland-Pfalz, Direktion Landesarchäologie / Erdgeschichtliche Denkmalpflege, Koblenz, 08.01.2024 (Hinweise zu fossilführenden Schichten / Fossilfundstellen sowie zur Meldepflicht) |
| • | Struktur- und Genehmigungsdirektion Nord, Obere Naturschutzbehörde, Koblenz, 10.01.2024 (Hinweise, dass unter Naturschutz stehende Gebiete oder pauschal geschützte Biotope von der Planung nicht direkt betroffen sind und die Ausführungen im Artenschutzgutachten zur Betroffenheit des direkt angrenzenden Vogelschutzgebietes fachlich bestätigt werden) |
| • | Struktur- und Genehmigungsdirektion Nord, Regionalstelle Wasserwirtschaft, Abfallwirtschaft, Bodenschutz, Koblenz, 13.02.2024 (Hinweis, dass aus abwassertechnischer Sicht Bedenken gegen die geplante Entwässerung des geplanten Gebietes bestehen und ein Entwässerungskonzept mit der Struktur- und Genehmigungsdirektion (SGD) Nord, Regionalstelle Wasserwirtschaft, Abfallwirtschaft, Bodenschutz (WAB) Koblenz, abgestimmt werden sollte; Hinweise zur Starkregenvorsorge) |
| • | Landesbetrieb Mobilität Cochem-Koblenz, 21.02.2024 (Hinweise zur berücksichtigenden Bauverbotszone; Hinweise zu Schallschutz) |
| • | Kreisverwaltung Mayen-Koblenz, Referat 8.61 Dorferneuerung, 21.11.2022 (Hinweise zur Farbigkeit der Dacheindeckung sowie zur Aktualisierung des Dorferneuerungskonzeptes) |
| • | Kreisverwaltung Mayen-Koblenz, Referat 9.70 Wasserwirtschaft, 09.01.2024 (Hinweise zum Bodenschutz, Schmutz-, Niederschlags- und Löschwasser; Bedenken gegen die geplante Gebietsentwässerung, u.a. Verweis auf § 55 II WHG und Anregung zur Einholung eines Versickerungsgutachtens) |
| • | Kreisverwaltung Mayen-Koblenz, Referat 9.70 Naturschutz, 19.01.2024 (Anregung, dass die abschließende Abarbeitung der Eingriffsregelung nach § 1a BauGB bisher nicht Gegenstand der Verfahrensunterlagen gewesen sei) |
| • | Kreisverwaltung Mayen-Koblenz, Gesundheitsamt, Mayen, 08.02.2024 (Verweis auf die Hinweise und Empfehlungen im Schallschutz sowie Geruchsgutachten, Hinweise zur Brauchwassernutzung von Zisternen) |
| • | Energienetze Mittelrhein GmbH & Co. KG, Koblenz, 01.02.2024 (Anregung, dass die geplanten Pflanzungen im Ordnungsbereich B mit dem Versorger abzustimmen sind, um die Sicherheit der Leitung gewährleisten zu können; Hinweis, dass eine Erdgaserschließung aufgrund der wirtschaftlichen und energiepolitischen Situation nicht möglich ist) |
| • | Wasserversorgungs-Zweckverband „Maifeld-Eifel“, Mayen, 15.02.2024 (Anmerkungen zur erforderlichen Fläche für ein Druckminderbauwerk sowie die Eintragung eines Geh-, Fahr- und Leitungsrechtes) |
| • | Verbandsgemeindeverwaltung Maifeld, Abwasserwerk Maifeld, Polch, 05.02.2024 (Hinweise zur Entwässerung) |
| Es handelt sich hierbei um folgende Stellungnahme: | |
| • | Private Stellungnahme, Einig, 14.01.2024 (Anmerkungen zur verkehrlichen Erschließung, zur vorliegenden Bedarfsbegründung, zur Beschränkung der Wohneinheiten, zur städtebaulichen Konzeption und dem daraus hervorgehenden, zunehmenden Verkehrsaufkommen, Hinterfragung der Auswirkungen auf die bestehende, umliegende Grundstückbepflanzung) |
Die im Rahmen der frühzeitigen Beteiligung vorgebrachten planungsrelevanten Inhalte der Stellungnahmen wurden gemäß Abwägung des Gemeinderates in der Plankonzeption für die Offenlagefassung gemäß § 3 (2) und 4 (2) BauGB berücksichtigt.
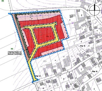
Der Geltungsbereich des Bebauungsplanes „Auf dem alten Garten“, kann dem nachfolgenden Plan entnommen werden (unmaßstäblich).
Die externe Kompensationsfläche in der Gemarkung Naunheim kann dem nachfolgend abgebildeten Plan entnommen werden (unmaßstäblich)
Hinweise:
| 1. | Während der Dauer der Veröffentlichungsfrist können Stellungnahmen abgegeben werden. |
| 2. | Die Stellungnahmen sollen elektronisch übermittelt werden, bei Bedarf können sie aber auch auf anderem Weg abgegeben werden. |
| 3. | Gemäß § 3 Abs. 2 Satz 4 Nr. 3 BauGB können nicht fristgerecht abgegebene Stellungnahmen bei der Beschlussfassung über den Bebauungsplan unberücksichtigt bleiben. |