Titel Logo
Maifelder Nachrichten - Wochenzeitung der Verbandsgemeinde Maifeld
Ausgabe 6/2024
Öffentliche Bekanntmachungen
Zurück zur vorigen Seite
Zurück zur ersten Seite der aktuellen Ausgabe

Bebauungsplan 5. Änderung „Am hohlen Graben“ tritt in Kraft

Der Ortsgemeinderat von Welling hat in der Sitzung am 05.07.2023 den Bebauungsplan 5. Änderung „Am hohlen Graben“ gemäß § 10 Absatz 1 Baugesetzbuch (BauGB) vom 03.11.2017 (BGBl. I S. 3634), in der derzeit geltenden Fassung, als Satzung beschlossen.

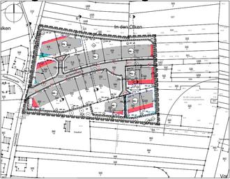
Der Geltungsbereich des Bebauungsplanes kann dem nachfolgend abgedruckten Plan (unmaßstäblich) entnommen werden.

Der Bebauungsplan tritt gemäß § 10 Absatz 3 BauGB mit dieser Bekanntmachung in Kraft.

Der Bebauungsplan als Satzung, bestehend aus dem Geltungsbereich des Bebauungsplanes (Plan), den zur Planurkunde gehörenden Textfestsetzungen und die Begründung, können bei der Verbandsgemeindeverwaltung Maifeld, Marktplatz 4-6, 56751 Polch, Zimmer 219, eingesehen werden, und zwar jeweils montags bis donnerstags in der Zeit von 8:30 Uhr bis 12:30 Uhr und 14:00 Uhr bis 16:00 Uhr sowie freitags von 8:30 Uhr bis 13:00 Uhr.

Auf die Vorschrift des § 44 Abs. 3 Satz 1 und 2 sowie des Absatzes 4 BauGB (Fälligkeit und Erlöschen der Entschädigungsansprüche) wird hingewiesen. Danach kann der Entschädigungsberechtigte eine Entschädigung verlangen, wenn die in den §§ 39 bis 42 bezeichneten Vermögensnachteile eingetreten sind. Er kann die Fälligkeit des Anspruchs dadurch herbeiführen, dass er die Leistung der Entschädigung schriftlich bei dem Entschädigungspflichtigen beantragt. Ein Entschädigungsanspruch erlischt, wenn nicht innerhalb von drei Jahren nach Ablauf des Kalenderjahres, in dem die in Absatz 3 Satz 1 bezeichneten Vermögensnachteile eingetreten sind, die Fälligkeit des Anspruches herbeigeführt wird.

Gemäß § 215 Abs. 1 BauGB (Frist für die Geltendmachung der Verletzung von Vorschriften nach dem Baugesetzbuch) wird auf folgendes hingewiesen:

Unbeachtlich werden

1.

eine nach § 214 Abs. 1 Satz 1 Nr. 1 bis 3 beachtliche Verletzung der dort bezeichneten Verfahrens- und Formvorschriften,

2.

eine unter Berücksichtigung des § 214 Abs. 2 beachtliche Verletzung der Vorschriften über das Verhältnis des Bebauungsplans und des Flächennutzungsplans und

3.

nach § 214 Abs. 3 Satz 2 beachtliche Mängel des Abwägungsvorgangs,

wenn sie nicht innerhalb eines Jahres seit Bekanntmachung der Satzung schriftlich gegenüber der Stadt Münstermaifeld oder der Verbandsgemeindeverwaltung Maifeld unter Darlegung des die Verletzung begründenden Sachverhalts geltend gemacht worden sind.

Gemäß § 24 Absatz 6 der Gemeindeordnung für Rheinland-Pfalz (GemO) vom 31.01.1994 (GVBl. S. 153) in der derzeit geltenden Fassung, gelten Satzungen, die unter Verletzung von Verfahrens- oder Formvorschriften dieses Gesetzes oder aufgrund dieses Gesetzes zustande gekommen sind, ein Jahr nach der Bekanntmachung als von Anfang an gültig zustande gekommen. Dies gilt nicht, wenn

1.

die Bestimmungen über die Öffentlichkeit der Sitzung, die Genehmigung, die Ausfertigung oder die Bekanntmachung der Satzung verletzt worden sind, oder

2.

vor Ablauf der o.g. Jahresfrist die Aufsichtsbehörde den Beschluss beanstandet oder jemand die Verletzung der Verfahrens- oder Formvorschriften gegenüber der Stadt Münstermaifeld oder der Verbandsgemeindeverwaltung Maifeld unter Bezeichnung des Sachverhaltes, der die Verletzung begründen soll, schriftlich geltend gemacht hat.

Hat jemand eine Verletzung nach § 24 Absatz 6 Satz 2 Nr. 2 GemO geltend gemacht, so kann auch nach Ablauf der o.g. Jahresfrist jedermann diese Verletzung geltend machen.

56753 Welling, 31.01.2024 — Manfred Gerner
Ortsgemeinde Welling — Ortsbürgermeister