Titel Logo
Hunsrück-Mittelrhein Nachrichten Ausgabe Emmelshausen
Ausgabe 2/2026
Amtlicher Teil
Zurück zur vorigen Seite
Zurück zur ersten Seite der aktuellen Ausgabe

1. Änderung des Bebauungsplans „Schwaller Dell“; Stadt Emmelshausen

Bekanntmachung Aufstellungsbeschluss und Beteiligung der Öffentlichkeit gemäß § 3 Absatz 2 Baugesetzbuch (BauGB)

1. Bekanntgabe des Aufstellungsbeschlusses (§ 2 Abs. 1 BauGB)

Der Stadtrat der Stadt Emmelshausen hat in seiner Sitzung am 08.12.2025 den nachstehenden Beschluss gefasst, der gemäß § 2 Abs. 1 Baugesetzbuch (BauGB) hiermit bekannt gegeben wird:

Der Stadtrat der Stadt Emmelshausen fasst den Aufstellungsbeschluss zur 1. Änderung des Bebauungsplanes „Schwaller Dell“ nach § 13 Abs. 1 i.V.m. § 2 Abs. 1 Baugesetzbuch (BauGB).

Weiterhin stimmt der Stadtrat Emmelshausen den beigefügten Planunterlagen (Textfestsetzungen und Begründung) zu. Der Stadtrat beschließt die Beteiligungsverfahren gemäß 3 Abs. 2, § 4 Abs. 2 und § 2 Abs. 2 BauGB durchzuführen und beauftragt die Verwaltung mit der Durchführung der entsprechenden Verfahren.

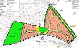
Der Geltungsbereich der 3. Änderung des Bebauungsplans „Schwaller Dell“ umfasst in der Gemarkung Emmelshausen folgende Flurstücke:

Flur 10,

Flurstücke:

21, 31, 32, 33, 34, 35, 36, 37/1, 37/2, 38, 39/1, 39/2, 40, 41, 42

Flur 11,

Flurstücke:

24/8, 24/11, 81, 82, 83, 84, 85, 86, 87, 88, 89, 90, 91, 92,93, 94, 95, 96, 97, 98, 99, 100, 101, 102, 103, 104, 105, 106/1, 106/2, 107, 108, 109, 110, 111, 112, 113

Das Plangebiet ist zur Verdeutlichung in dem nachstehenden Kartenausschnitt dargestellt:

Des Öfteren kam es im Bauantragsverfahren zu Problemen bezüglich der erforderlichen Anzahl der Stellplätze. Der Bebauungsplan setzt eine andere Stellplatzanzahl fest als die Satzung der Stadt Emmelshausen über die Festlegung der Zahl der notwendigen Stellplätze. Da am 30.10.2025 auch eine neue Satzung in Kraft getreten ist und um weiteren Unklarheiten zu vermeiden, soll im Zuge der Änderung der Bebauungsplan bezüglich der Anzahl der notwendigen Stellplätze auf die Satzung der Stadt Emmelshausen über die Festlegung der Zahl der notwendigen Stellplätze in der jeweils geltenden Fassung sowie auf die Verwaltungsvorschrift des Ministeriums der Finanzen über die Zahl, Größe und Beschaffenheit der Stellplätze für Kraftfahrzeuge in der jeweils geltenden Fassung verweisen.

Mit der 1. Änderung des Bebauungsplanes sollen die Bauordnungsrechtlichen textlichen Festsetzungen zu Ziffer 7 Zahl der notwendigen Stellplätze nach § 47 LBauO (§88 (1) Nr. 8 LBauO) neu gefasst werden.

Bisher bestimmte sich der Stellplatzbedarf bei Wohngebäuden wie folgt:

Verkehrsquelle

Zahl der Stellplätze

Wohngebäude mit einer Wohnung

2,0 Stellplätze

Wohngebäude mit zwei Wohnungen

a) von je über 50 m² Grundfläche

b) im übrigen

4,0 Stellplätze

3,0 Stellplätze

Doppelhäuser je Haushälfte

2,0 Stellplätze

Auf die Zahl der notwendigen Stellplätze werden Garagen und Carports angerechnet. Im Übrigen bestimmte sich die Zahl der notwendigen Stellplätze nach der Verwaltungsvorschrift des Ministeriums für Finanzen vom 24. Juli 2000 (MinBl. 2000, Seite 231) über die Zahl, Größe und Beschaffenheit der Stellplätze für Kraftfahrzeuge in der jeweils geltenden Fassung.

Künftig richtet sich die Anzahl der erforderlichen Stellplätze für Wohnungen nach der Satzung der Stadt Emmelshausen über die Festlegung der Zahl der notwendigen Stellplätze vom 24.10.2025 in der jeweils geltenden Fassung.

Für sonstige Nutzungen bestimmt sich die Zahl der notwendigen Stellplätze nach der Verwaltungsvorschrift des Ministeriums für Finanzen vom 24. Juli 2000 (MinBl. 2000, Seite 231) über die Zahl, Größe und Beschaffenheit der Stellplätze für Kraftfahrzeuge in der jeweils geltenden Fassung.

Ansonsten gelten die zeichnerischen und textlichen Festsetzungen des Ursprungs-Bebauungsplanes grundsätzlich unverändert fort.

2. Offenlage und Beteiligung der Träger öffentlicher Belange (§ 13 Abs. 2 i. V. m. § 3 Abs. 2 BauGB)

Das Bebauungsplanverfahren wird gemäß § 13 BauGB im sog. Vereinfachten Verfahren durchgeführt. In diesem Verfahren kann auf die zweiteilige Behörden - und Öffentlichkeitsbeteiligung verzichtet werden. Auch sind bei diesem Verfahren u.a. eine Umweltprüfung, ein Umweltbericht und die Abarbeitung der Eingriffs-/Ausgleichsbilanzierung entbehrlich.

Gemäß des Stadtratsbeschlusses vom 08.12.2025 liegen nach § 3 Abs. 2 BauGB der Entwurf der 1. Bebauungsplanänderung „Schwaller Dell“ (Textfestsetzungen und Begründung) in der Zeit vom 12.01.2026 bis 13.02.2026 bei der Verbandsgemeindeverwaltung Hunsrück-Mittelrhein, Fachbereich 3 - Natürliche Lebensgrundlagen und Bauen, Henchenstraße 12-14 (Hochhaus) 56281 Emmelshausen, Zimmer 2 in der Zeit von Montag bis Freitag von 08:30 Uhr bis 12:15 Uhr Montag bis Mittwoch von 13:45 Uhr bis 16:00 Uhr (nach vorheriger Terminvereinbarung) sowie donnerstags von 13.45 Uhr bis 18.00 zur Einsicht öffentlich aus.

Während dieser Auslegungsfrist können Stellungnahmen zu dieser Bauleitplanung der Stadt Emmelshausen bei der Verbandsgemeindeverwaltung Hunsrück-Mittelrhein, Rathausstraße 1, 56281 Emmelshausen, abgegeben werden.

Es wird darauf hingewiesen, dass nicht fristgerecht abgegebene Stellungnahmen bei der Beschlussfassung über den Bebauungsplan unter den Voraussetzungen der §§ 3 Abs. 2, Satz 2, 2. Halbsatz und 4 a Abs. 6 BauGB unberücksichtigt bleiben können, sofern die Stadt Emmelshausen deren Inhalt nicht kannte und nicht hätte kennen müssen und deren Inhalt für die Rechtmäßigkeit des Bauleitplanes nicht von Bedeutung ist.

Die Unterlagen können Sie auch im Internet unter

https://www.hunsrueckmittelrhein.de/rathaus/bauleitplanung/

aufrufen.

Außerdem stehen die Unterlagen auf dem Geoportal Rheinland-Pfalz unter der Adresse: www.geoportal.rlp.de (Offenlagen gemäß BauGB) zur Verfügung.

Emmelshausen, 02.01.2026 — Volker Bernd,
Stadt Emmelshausen — Stadtbürgermeister