Titel Logo
Hunsrück-Mittelrhein Nachrichten Ausgabe Emmelshausen
Ausgabe 33/2022
Amtlicher Teil
Zurück zur vorigen Seite
Zurück zur ersten Seite der aktuellen Ausgabe

Aufstellung des Bebauungsplans für das Neubaugebiet „Unter der Galgenhöh II“; Stadt Emmelshausen

Bekanntmachung über die erneute öffentliche Auslegung des Planentwurfs und die verkürzte Auslegungsfrist gemäß §§ 4a Abs. 3 i.V.m 3 Abs. 2 BauGB

Der Stadtrat der Stadt Emmelshausen hat in seiner Sitzung am 22.10.2018 beschlossen, das Verfahren zur Aufstellung des Bebauungsplans „Unter der Galgenhöh II““ einzuleiten.

Dieser Beschluss wurden am 21.06.2019 bekannt gemacht.

Der Bebauungsplan trägt die Bezeichnung Aufstellung des Bebauungsplans für das Neubaugebiet „Unter der Galgenhöh II“.

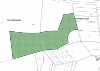
Das Plangebiet und die Ausgleichsflächen sind zur Verdeutlichung in den nachstehenden Übersichten dargestellt.

Die einzelnen Teilgeltungsbereiche sind in den nachstehenden Karten dargestellt:

Mit diesem Bauleitplanverfahren beabsichtigt die Stadt Emmelshausen die weitere wohnbauliche Entwicklung im Bereich des Neubaugebietes „Galgenhöh“ und die Realisierung der geplanten Bauabschnitte 3 und 4.

In den Bauabschnitten 1 und 2 sind alle Baugrundstücke verkauft und bebaut. Es besteht eine große Nachfrage nach weiterem Bauland.

Die Fläche ist im weiterhin gültigen Flächennutzungsplan der ehem. Verbandsgemeinde Emmelshausen als Wohnbaubaufläche „W“ ausgewiesen.

Aufgrund des Einleitungsbeschlusses und der Beschlüsse zum Planentwurf erfolgte in der Zeit vom 01.07.2019 bis 02.08.2019 die frühzeitige Beteiligung gem. § 3 Abs. 1 BauGB. Über die dabei eingegangenen Bedenken und Anregungen hat der Stadtrat der Stadt Emmelshausen in seiner Sitzung am 19.08.2020 beraten und abgewogen sowie die Durchführung der weiteren Beteiligungsverfahren beschlossen.

Gemäß dem Stadtratsbeschluss vom 19.08.2020 lagen der Entwurf des Bebauungsplans „Unter der Galgenhöh II“ sowie die Stellungnahmen und die diesbezüglichen Würdigungen aus den frühzeitigen Beteiligungsverfahren in der Zeit vom 02.10.2020 bis 03.11.2020 bei der Verbandsgemeindeverwaltung Hunsrück-Mittelrhein, zur Einsicht öffentlich aus. Gleichzeitig wurden die Behörden und Träger öffentlicher Belange beteiligt.

Der Stadtrat der Stadt Emmelshausen würdigte in seiner Sitzung am 14.12.2020 die im Rahmen der Auslegung gemäß § 3 Abs. 2 BauGB (Öffentlichkeit), 4 Abs. 2 BauGB (Behörden und sonstige Träger öffentlicher Belange) und § 2 Abs. 2 BauGB (Nachbargemeinden) abgegebenen Stellungnahmen.

Im Rahmen der entwässerungstechnischen Fachplanung, insbesondere zum Bereich der Quellmuldenstelle im Ordnungsbereich B, haben sich aus der Abstimmung mit der Unteren Wasserbehörde Erfordernisse zur Plananpassung ergeben. Der Auslauf aus dem Quellmuldenbereich wird gemäß entwässerungstechnischer Fachplanung nach Nordosten geführt, auf kürzestem Weg zum Gewässer III. Ordnung. Hierzu wird eine Trasse als Teil der öffentlichen Grünfläche des Ordnungsbereichs E konzipiert. Die Ableitung des Wassers erfolgt in einem offenen Graben. Von der Oberkante der Böschungsfläche des Grabens wird gemäß Abstimmung mit der Unteren Wasserbehörde ein Mindestabstand von 3 m bis zum Beginn der privaten Baugrundstücke als Teil einer öffentlichen Grünfläche eingeplant. Der Zuschnitt der öffentlichen Grünfläche des Ordnungsbereichs B wird angepasst und flächenhaft reduziert. Die ursprünglich am Südrand der Fläche B geplanten Parkplatzflächen entfallen. Die an die Grünflächen angrenzenden Baugrundstücke wurden neu zugeschnitten und aufgeteilt.

Auf Grundlage genaueren Kartenmaterials zu bestehenden Versorgungsleitungen wird eine Anpassung im südlichen Plangebietsbereich vorgesehen, um ein Geh-, Fahr- und Leitungsrecht zu vermeiden. Zur Berücksichtigung einer vorhandenen Telekommunikationsleitung wird ein Baugrundstück im Süden neu zugeschnitten, so dass die Leitung innerhalb der öffentlichen Fläche der Kompensationsfläche im Ordnungsbereich D liegt.

Im Rahmen der Fortschreibung und Verfeinerung der Planung zu den Verkehrsanlagen haben sich einzelne Werte bei der Festsetzung der unteren Maßbezugspunkte (Gradientenhöhen) in Zusammenhang mit der Festsetzung Nr. 2.4 („Höhe der baulichen Anlagen“) ergeben. Die Tabelle zu den Werten wurde auf der Planurkunde aktualisiert.

Außerdem wurden Anpassungen bei den Hinweisen und in der Begründung vorgenommen.

Bedingt durch diese Änderungen hat der Stadtrat eine erneute Auslegung und Einholung der Stellungnahmen gemäß § 4a Abs. 3 BauGB beschlossen. Darüber hinaus wurde beschlossen, dass Stellungnahmen nur zu den geänderten Teilen abgegeben werden können (§ 4a Abs. 3 Satz 2 BauGB). Die Dauer der Auslegung und die Frist zur Abgabe von Stellungnahmen wurde auf 3 Wochen verkürzt (§ 4a Abs. 3 Satz 3 BauGB).

Dem Stadtratsbeschluss der Stadt Emmelshausen entsprechend, liegt gemäß § 4a Abs. 3, § 3 Abs. 2 BauGB der vollständige Entwurf, mit den beschlossenen Änderungen, des Bebauungsplans „Unter der Galgenhöh II“ (Planzeichnung mit Zeichenerklärung und Textfestsetzungen, Begründung mit Umweltbericht und Biotop- und Nutzungstypenplan, Artenschutzgutachten, Radongutachten, Schallgutachten, Hydrogeologisches Gutachten) sowie die Stellungnahmen und die diesbezüglichen Würdigungen aus den Beteiligungsverfahren nach §§ 2 Abs. 2, 3 Abs.2 und 4 Abs. 2 BauGB in der Zeit 26.08.2022 bis 16.09.2022 bei der Verbandsgemeindeverwaltung Hunsrück-Mittelrhein, Fachbereich 3 – Natürliche Lebensgrundlagen und Bauen, Henchenstraße 12 – 14 (Hochhaus) 56281 Emmelshausen, Zimmer 8, in der Zeit von Montag bis Freitag von 08.30 Uhr bis 12.15 Uhr, Montag bis Mittwoch von 13.45 Uhr bis 16.00 Uhr sowie donnerstags von 13.45 Uhr bis 18.00 Uhr zur Einsicht öffentlich aus. Hier kann sich die Öffentlichkeit über die allgemeinen Ziele und Zwecke sowie die wesentlichen Auswirkungen der Planung unterrichten.

Für den Besuch des Rathauses ist eine vorherige Terminvereinbarung mit den Mitarbeiten der Bauverwaltung unter der Tel.-Nr. 06747/121-0 oder per E-Mail: bauen@vg-hm.de erforderlich.

Während dieser Auslegungsfrist können Stellungnahmen zu dieser Bauleitplanung der Stadt Emmelshausen bei der Verbandsgemeindeverwaltung Hunsrück-Mittelrhein abgegeben werden.

Es wird darauf hingewiesen, dass Stellungnahmen nur zu den geänderten Teilen abgegeben werden können (§ 4a Abs. 3 Satz 2 BauGB) und das nicht fristgerecht abgegebene Stellungnahmen bei der Beschlussfassung über den Bebauungsplan unter den Voraussetzungen der §§ 3 Abs. 2, Satz 2, 2. Halbsatz und 4 a Abs. 6 BauGB unberücksichtigt bleiben können, sofern die Stadt deren Inhalt nicht kannte und nicht hätte kennen müssen und deren Inhalt für die Rechtmäßigkeit des Bauleitplans nicht von Bedeutung ist.

Die Unterlagen können Sie auch im Internet unter

https://www.hunsrueckmittelrhein.de/seite/436692/bauleitplanung.html

aufrufen.

Gemäß § 3 (2) Satz 2 BauGB wird darauf hingewiesen, dass folgende Arten umweltbezogener Informationen verfügbar sind:

Begründung zum Bebauungsplan einschließlich landschaftsplanerischer Erhebungen und Bewertungen sowie Umweltbericht gemäß §§ 2 (4) und 2a BauGB mit Ausführungen unter Anderem zu:

  • Aussagen zur Bestandssituation
  • Aussagen zu Schutzgebieten und anderen übergeordneten umweltrelevanten Vorgaben und Planungen
  • Aussagen zu umweltplanerischen Festsetzungen und Empfehlungen
  • Belange der Ver- und Entsorgung
  • Aussagen zum Denkmalschutz und Archäologie
  • Aussagen zum Immissionsschutz
  • Aussagen zur Radonprognose
  • Landschaftsplanerische Belange
    • Bestand
    • Bebauungsunabhängige Ziele der Landschaftsplanung
    • Zu erwartende Beeinträchtigungen und Minimierungsmaßnahmen
    • Landschaftsplanerische Eingriffs-/Ausgleichsbilanzierung
    • Waldrechtliche Eingriffs-/Ausgleichsbilanzierung
    • Festsetzungen und Beschreibungen zu landschaftsplanerischen Ausgleichsmaßnahmen
  • Artenschutzrechtliche Bewertungen zur Planung
  • Biotop- und Nutzungstypenplan mit Darstellung der Bestandssituation im Maßstab 1:1.000
  • Umweltbericht gemäß §§ 2 (4) und 2a BauGB mit u.a.
    • Aussagen zum Anlass und zur Zielsetzung der Planung
    • Kurzdarstellung der Planinhalte mit Angaben zum Bedarf an Grund und Boden
    • Zusammenstellung der planungsrelevanten Vorgaben übergeordneter Planungen wie Landesentwicklungsprogramm IV, Regionaler Raumordnungsplan Mittelrhein-Westerwald, Flächennutzungsplan und übergeordnete Umweltplanungen
    • Darstellung der Ziele des Umweltschutzes einschlägiger Fachgesetze und Fachpläne
    • Bestandsaufnahme, Vorbelastungen und natürliche Grundlagen
      • Naturräumliche Gliederung
      • Lage und Relief
      • Geologie und Böden
      • Wasserhaushalt
      • Klima
      • Heutige potentiell natürliche Vegetation
      • Biotop- und Nutzungstypen, Tierwelt
      • Landschaftsbild und Erholung
  • Entwicklung des Umweltzustandes bei Nichtdurchführung des Planvorhabens
  • Prognose der Entwicklung des Umweltzustandes bei Durchführung des Planvorhabens: Ermittlungen und Bewertungen zu potentiell erheblichen Umweltauswirkungen auf die Schutzgüter Fläche, Tiere und Pflanzen, biologische Vielfalt, Boden, Wasser, Luft und klimatische Faktoren, Landschaftsbild und Erholung, Bevölkerung und Gesundheit des Menschen, Wirkungsgefüge, Sachwerte, kulturelles Erbe, Wechselwirkungen der Schutzgüter, Summationswirkungen
  • Auswirkungen auf FFH- und Vogelschutzgebiete
  • Aussagen zu Emissionsvermeidung, Nutzung regenerativer Energien, Energieeinsparung, sachgerechter Umgang mit Abfällen und Abwässern
  • Beschreibung der Maßnahmen zur Vermeidung, Verringerung und zum Ausgleich der erheblichen Umweltwirkungen
  • Aussagen zur Alternativenprüfung
  • Aussagen über die Anfälligkeit für schwere Unfälle und Katastrophen
  • Anmerkungen zur Durchführung der Umweltprüfung
  • Beschreibung der Maßnahmen zur Überwachung der erheblichen Umweltauswirkungen (Hinweise zum Monitoring)
  • Allgemein verständliche Zusammenfassung des Umweltberichts

Es liegen folgende Fachgutachten mit umweltrelevanten Informationen im Beteiligungsverfahren vor:

  • Biotop- und Nutzungstypenplan, M. 1:1.000
  • Bericht zur hydrogeologischen Erkundung der Vernässungsstelle im Neubaugebiet „Unter der Galgenhöh II“, Auszug aus dem Gutachten Büro Wasser und Boden GmbH, Boppard vom 28. März 2019
  • Fachliche Stellungnahme zur hydrogeologischen Erkundung der Vernässungsstelle im Neubaugebiet „Unter der Galgenhöh II“, Büro Wasser und Boden GmbH, Boppard vom 18. April 2019
  • Nachtrag zur fachlichen Stellungnahme zur hydrogeologischen Erkundung der Vernässungsstelle im Neubaugebiet „Unter der Galgenhöh II“, Büro Wasser und Boden GmbH, Boppard vom 22. Mai 2019
  • Gutachterliche Stellungnahme zur Radonbelastung in der Bodenluft in Emmelshausen, Bebauungsplan „Unter der Galgenhöh“; Dr. Kemski Sachverständigenbüro (Dr. Joachim Kemski), Euskirchener Straße 54, 53121 Bonn, Bericht Oktober 2016
  • Schalltechnische Immissionsprognose zum geplanten Bebauungsplan „Unter der Galgenhöh“ in Emmelshausen, Schalltechnisches Ingenieurbüro Pies, Birkenstraße 34, 56154 Boppard-Buchholz, Bericht August 2016
  • Fachbeitrag Arten- und Naturschutz: Avifauna, Fledermäuse, Haselmaus, Reptilien.; Beratungsgesellschaft NATUR GbR (Dipl.-Biol. Malte Fuhrmann), Taunusstraße 6, 56357 Oberwallmenach, August 2019

Im Rahmen der Beteiligungsverfahren nach §§ 3 (2) und 4 (2) BauGB sind umweltrelevante Stellungnahmen mit folgenden Sachverhalten eingegangen (wesentliche, stichwortartige Nennung der Inhalte).

Es handelt sich hierbei um folgende Stellungnahmen:

  • Stellungnahme der Kreisverwaltung des Rhein-Hunsrück-Kreises, Simmern, 23.10.2020 (Hinweise der Unteren Naturschutzbehörde zum Artenschutzgutachten mit Ausführungen zu Vögeln, Fledermäusen, weitere Artengruppen, zu Ausgleichsmaßnahmen, zum Quellaustritt. Hinweise der Unteren Wasserbehörde zu Anlagen der landwirtschaftlichen Bodenentwässerung, zur Niederschlagswasserbewirtschaftung, zur Renaturierung des Liesenfelder Baches, zum Quellaustritt)
  • Stellungnahme der Struktur- und Genehmigungsdirektion Nord, Regionalstelle Wasserwirtschaft, Abfallwirtschaft, Bodenschutz, Koblenz, 21.10.2020 (Hinweise zur allgemeinen Wasserwirtschaft, zum Erfordernis wasserrechtlicher Genehmigungen)
  • Stellungnahme der Generaldirektion Kulturelles Erbe Rheinland-Pfalz, Direktion Landesarchäologie, Koblenz, 06.10.2020 (Hinweis, dass die Belange der Direktion Landesarchäologie in den Textfestsetzungen des Bebauungsplans bereits berücksichtigt sind)
  • Stellungnahme des Landesamtes für Geologie und Bergbau, Mainz, 16.11.2020 (Hinweise zu Bergbau/Altbergbau, Hinweise zu Eingriffe in „Boden und Baugrund“ inkl. der Themen „mineralische Rohstoffe“ und „Radonprognose“)
  • Stellungnahme des Forstamtes Kastellaun, 23.10.2020 (Hinweise zu allgemeinen forstrechtlichen Grundlagen, zum Mindestwaldabstand und zur Eingriffs-/Ausgleichsbilanzierung)

Anmerkung: Aus der Öffentlichkeit sind im Rahmen des Beteiligungsverfahrens nach § 3 (2) BauGB keine Anregungen oder Stellungnahmen mit Inhalt umweltbezogener Informationen eingegangen.

Stadt Emmelshausen, 11.08.2022 — Andrea Mallmann,
Stadtbürgermeisterin