Titel Logo
Hunsrück-Mittelrhein Nachrichten Ausgabe Emmelshausen
Ausgabe 4/2025
Amtlicher Teil
Zurück zur vorigen Seite
Zurück zur ersten Seite der aktuellen Ausgabe

Inkrafttreten des Bebauungsplans „Am Bergweg“ der Ortsgemeinde Hausbay

Der Bebauungsplan „Am Bergweg“ wurde vom Ortsgemeinderat der Ortsgemeinde Hausbay am 18.12.2024 gemäß § 10 Abs. 1 Baugesetzbuch (BauGB) als Satzung beschlossen.

Die Satzung zur Aufstellung des Bebauungsplans „Am Bergweg“ der Ortsgemeinde Hausbay tritt mit dieser Bekanntmachung in Kraft (§ 10 Abs. 3 BauGB).

Mit diesem Bauleitplanverfahren beabsichtigt die Ortsgemeinde Hausbay die Schaffung eines Wohngebietes, nördlich der Ortslage, um den Bedarf an weiteren Wohnbauflächen zu decken.

Die Fläche ist im gültigen Flächennutzungsplan nicht als Wohnbaufläche, sondern als landwirtschaftliche Nutzfläche ausgewiesen.

Das Bebauungsplanverfahren konnte im beschleunigten Verfahren gemäß § 215 a BauGB, der den § 13 b BauGB ersetzt hat, vollzogen werden. In diesem Verfahren muss lediglich eine umweltrechtliche Vorprüfung durchgeführt werden. Sollte diese Vorprüfung keine Anhaltspunkte für erhebliche Umweltauswirkungen ergeben, kann auf eine vollständige Umweltprüfung verzichtet werden und auch der Umweltbericht sowie die Abarbeitung der Eingriffs- und Ausgleichsbilanzierung sind entbehrlich. Das Gebot der Entwicklung des Bebauungsplanes aus dem Flächennutzungsplan entfällt.

Der Inhalt des Bebauungsplans ergibt sich konkret aus der Planzeichnung und den textlichen Festsetzungen.

Bestandteile dieser Satzung sind die Bebauungsplanzeichnung im Maßstab 1:1.000 mit den Zeichenerklärungen und den textlichen Festsetzungen. Beigefügt ist die Begründung.

Die Planunterlagen werden bei der Verbandsgemeindeverwaltung Hunsrück-Mittelrhein, 56281 Emmelshausen, Henchenstraße 12 - 14, Zimmer 2, zu jedermanns Einsicht bereitgehalten. Über den Inhalt des Bebauungsplans wird auf Verlangen auch Auskunft erteilt.

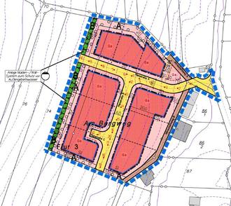
Der räumliche Geltungsbereich des Bebauungsplans „Am Bergweg“ umfasst die nachfolgenden Grundstücke:

Gemarkung Hausbay,

Flur 3, Flurstücke 69/2 tlw., 70 tlw., 71, 73 tlw.

Flur 4, Flurstück 85 tlw.

Die genaue Abgrenzung ergibt sich aus der alleine verbindlichen Planzeichnung im Maßstab 1:1.000.

Das Plangebiet ist zur Verdeutlichung in dem nachstehenden Kartenausschnitt markiert:

Hinweise:

Auf die Vorschriften des § 44 Abs. 3 Satz 1 und 2 sowie des Absatzes 4 Baugesetzbuch (BauGB) vom 03.11.2017 (BGBl. I S. 3634) in der zurzeit geltenden Fassung wird hingewiesen. Danach kann der Entschädigungsberechtigte Entschädigung verlangen, wenn die in den §§ 39 bis 42 BauGB bezeichneten Vermögensnachteile eingetreten sind. In den §§ 39 bis 42 BauGB sind Entschädigungsansprüche aufgrund von Eingriffen in vorbereitende Aufwendungen, durch besondere Festsetzungen, durch Begründung von Geh-, Fahr- und Leitungsrechte und durch Bindungen für Bepflanzungen sowie durch Änderung und Aufhebung einer zulässigen Nutzung normiert. Die Fälligkeit des Anspruchs kann der Entschädigungsberechtigte dadurch herbeiführen, dass er die Leistung der Entschädigung schriftlich bei dem Entschädigungspflichtigen beantragt. Der Entschädigungsanspruch erlischt, wenn nicht innerhalb von drei Jahren nach Ablauf des Kalenderjahres, in dem die in § 44 Abs. 3 Satz 1 BauGB bezeichneten Vermögensnachteile eingetreten sind, die Fälligkeit des Anspruchs herbeigeführt wird.

Ferner wird gemäß § 215 Abs. 2 BauGB vom 03.11.2017 (BGBl. I S. 3634) in der zurzeit geltenden Fassung auf die Voraussetzungen für die Geltendmachung der Verletzung von Vorschriften sowie auf die Rechtsfolgen hingewiesen. Nach § 215 Abs. 1 BauGB werden eine nach § 214 Abs. 1 Satz 1 Nr. 1 bis 3 BauGB beachtliche Verletzung der dort bezeichneten Verfahrens- und Formvorschriften (Ermittlung und Bewertung der berührten Belange, Öffentlichkeits- und Behördenbeteiligung, Begründung der Satzung und der Entwürfe), eine unter Berücksichtigung des § 214 Abs. 2 BauGB beachtliche Verletzung der Vorschriften über das Verhältnis des Bebauungsplans und des Flächennutzungsplans und nach § 214 Abs. 3 Satz 2 BauGB beachtliche Mängel des Abwägungsvorgangs unbeachtlich, wenn sie nicht innerhalb eines Jahres seit dieser Bekanntmachung schriftlich gegenüber der Ortsgemeinde Hausbay unter Darlegung des die Verletzung begründenden Sachverhalts geltend gemacht worden sind.

Gemäß § 24 Abs. 6 der Gemeindeordnung (GemO) vom 31.01.1994 (GVBl. S. 153) in der zurzeit geltenden Fassung wird darauf hingewiesen, dass Satzungen, die unter Verletzung von Verfahrens- und Formvorschriften der GemO oder aufgrund dieses Gesetzes zustande gekommen sind, ein Jahr nach der Bekanntmachung als von Anfang an gültig zustande gekommen gelten. Dies gilt nach § 24 Abs. 6 Satz 2 GemO nicht, wenn

1.

die Bestimmungen über die Öffentlichkeit der Sitzung, die Genehmigung, die Ausfertigung oder die Bekanntmachung der Satzung verletzt worden sind, oder

2.

vor Ablauf der in § 24 Abs. 6 Satz 1 GemO genannten Frist die Aufsichtsbehörde den Beschluss beanstandet oder jemand die Verletzung der Verfahrens- oder Formvorschriften gegenüber der Ortsgemeinde Hausbay unter Bezeichnung des Sachverhalts, der die Verletzung begründen soll, schriftlich geltend gemacht hat.

Hat jemand eine Verletzung nach § 24 Abs. 6 Satz 2 Nr. 2 GemO geltend gemacht, so kann auch nach Ablauf der in § 24 Abs. 6 Satz 1 GemO genannten Frist jedermann diese Verletzung geltend machen.

Hausbay, 17.01.2025 — Thomas Stroschein, Ortsbürgermeister