Titel Logo
Mitteilungsblatt für die Verbandsgemeinde Nahe-Glan
Ausgabe 29/2025
Breitenheim
Zurück zur vorigen Seite
Zurück zur ersten Seite der aktuellen Ausgabe

Aufstellung des Bebauungsplanes „In Staffel“; - Regelverfahren

1)

Bekanntmachung der Veröffentlichung im Internet gemäß § 3 Abs. 2 BauGB

2)

Geltungsbereich / Übersichtskarte

1)

Bekanntmachung der Veröffentlichung im Internet gemäß § 3 Abs. 2 BauGB

Der Ortsgemeinderat hat in seiner Sitzung am 11.06.2025 den Entwurf des Bebauungsplans gebilligt und die Durchführung der Beteiligung der Öffentlichkeit gemäß § 3 Abs. 2 BauGB und seine Veröffentlichung beschlossen.

Ziel der Planung:

Die Bauplätze des von der Ortsgemeinde Breitenheim entwickelten Neubaugebiets "Auf der Stay - In Staffel" sind mittlerweile vollständig veräußert, die Nachfrage nach Bauplätzen für den Eigenheimbau hält jedoch weiter an. Im Sinne einer nachhaltigen städtebaulichen Entwicklung und zur Befriedigung der bestehenden Nachfrage nach Wohnbauland, hat sich die Ortsgemeinde dafür entschieden, das im beigefügten Plan dargestellte Gebiet "In Staffel" einer Wohnbebauung zuzuführen.

Hiermit wird öffentlich bekannt gemacht, dass der Bebauungsplanentwurf für das vorgenannte Gebiet mit Planzeichnung, Textfestsetzungen und Begründung nebst Umweltbericht etc., in der Zeit von

Freitag, 18.07.2025 bis einschließlich Freitag, 03.09.2025

im Internet, unter der Internetadresse http://www.vg-nahe-glan.de {{gt}} (Menü) {{gt}} Bauen und Klimaschutz {{gt}} Bauleitplanung {{gt}} aktuelle Bauleitplanverfahren einzusehen ist.

Daneben liegen die Planunterlagen auch zusätzlich im Rathaus der Verbandsgemeindeverwaltung Nahe-Glan, Marktplatz 11, 55566 Bad Sobernheim, EG, Zimmer 016, zu jedermanns Einsicht öffentlich aus.

In dieser Zeit besteht die Möglichkeit, während der allgemeinen Dienststunden (Montag bis Mittwoch 8.00 – 12.00 Uhr und 14:00 – 16:00 Uhr, Donnerstag 8.00 – 12.00 Uhr und 14.00 – 18.00 Uhr, Freitag 08.00 – 12.30 Uhr) den Entwurf der Bebauungsplanunterlagen einzusehen.

Es wird darauf hingewiesen, dass während der Veröffentlichungsfrist Stellungnahmen abgegeben werden können. Die Stellungnahmen sind vorzugsweise elektronisch per Email (bauleitplanung@vg-nahe-glan.de), mit Angabe des Absenders, einzureichen. Bei Bedarf können die Stellungnahmen auch schriftlich oder zur Niederschrift, unter Angabe des Absenders, an die Verbandsgemeindeverwaltung Nahe-Glan – Fachbereich 3 Natürliche Lebensgrundlagen und Bauen –, Marktplatz 11, 55566 Bad Sobernheim, eingereicht werden.

Nicht fristgerecht abgegebene Stellungnahmen können bei der Beschlussfassung über den Bebauungsplan unberücksichtigt bleiben.

Die zur frühzeitigen Beteiligung vorgebrachten Anregungen und Eingaben wurden berücksichtigt:

Änderung den Textfestsetzungen

  • Erhöhung der zulässigen Anzahl an Wohneinheiten in Doppelhaushälften von 1 auf 2
  • Anpassung der Textfestsetzungen 2.4.1 Höhe baulicher Anlagen
  • Streichung der Festsetzung der maximal sichtbaren Wandhöhe
  • Ergänzung einer Skizze zur Erläuterung des Bezugspunktes zur Ermittlung der Höhe baulicher Anlagen
  • Ergänzung einer Fläche für Garagen und Stellplätze für ein Grundstück
  • Ergänzung der einschlägigen Rechtsnormen unter Festsetzung 8.1.2 Maßnahmen zum Schutz, zur Pflege und zur Entwicklung von Boden, Natur und Landschaft
  • Klarstellung zur Einfriedung von Eckgrundstücken unter 3.1.1
  • Ergänzung um bauordnungsrechtliche Festsetzungen zur Regelung von Stützmauern und Aufschüttungen und Abgrabungen
  • Ergänzung von Festsetzungen zum passiven Lärmschutz gemäß Schallgutachten
  • Anpassung der Bezeichnung der 20 kV-Freileitung

Aufnahme von Hinweisen zu/m

  • Ergänzung der Hinweise zur Handhabung archäologischer Funde
  • Ergänzung der Hinweise zum Schutz vor Überflutungen durch die Erkenntnisse aus dem Entwässerungskonzept
  • Aufnahme von Hinweisen zur Gebäudegründung und Kellerbereiche zum Schutz vor Staunässe bzw. drückendem Wasser
  • Ergänzung der Hinweise zur Brauchwassernutzung um Freiflächenbewässerung
  • Aufnahme einer Empfehlung zur Baubegleitung durch einen Baugrundgutachter
  • Aufnahme von Hinweisen zu ggfls. erforderlichen Schutzplanken
  • Aufnahme von Hinweisen zur Nutzung des Niederschlagswassers

Redaktionelle / Nachrichtliche Ergänzungen

  • Ergänzung der Bezeichnung der 20kV-Freileitung

Folgende umweltbezogene Informationen bzw. Planungen und Gutachten sind verfügbar und können während der öffentlichen Auslegung eingesehen werden

Fachgutachten

Umweltbericht als Teil der Begründung des Bebauungsplans

(BBP Stadt- und Landschaftsplanung, Kaiserslautern, Juni 2025)

Fachbeitrag Naturschutz

(BBP Stadt- und Landschaftsplanung, Kaiserslautern, Juni 2025)

Schalltechnische Untersuchung

(Schalltechnisches Ingenieurbüro Pies, Boppard, November 2022)

Faunistisches Gutachten

(Willigalla – Ökologische Gutachten, Mainz, November 2023)

Bodengutachten

(tademu Beratung GmbH, Medard, Dezember 2019)

Der Umweltbericht enthält u. a. Informationen zu folgenden Themen:

  • Einleitung mit Erläuterung von Inhalt und Zielen der Planung sowie die Darstellung der einschlägigen Normen mit respektiver Zielformulierung
  • Beschreibung und Bewertung der erheblichen Umweltauswirkungen auf schutzwürdige Biotope, Flächen, Boden, Wasser, Luft und Klima, Landschaft und Landschaftsbild, Tiere Pflanzen und biologische Vielfalt, Mensch, Gesundheit und Bevölkerung sowie Kultur und Sachgüter
  • Prognose bei Nichtdurchführung der Planung
  • Prognose über den erwarteten Umweltzustand bei Durchführung der Maßnahme
  • erwartete Auswirkungen auf schutzwürdige Biotope, Flächen, Boden, Wasser, Luft und Klima, Landschaft und Landschaftsbild, Tiere Pflanzen und biologische Vielfalt, Mensch, Gesundheit und Bevölkerung sowie Kultur und Sachgüter
  • Wechselwirkungen und Entwicklungsprognosen
  • geplante Auswirkungen zur Vermeidung, Verringerung und zum Ausgleich nachteiliger Auswirkungen
  • Alternativenprüfung
  • Beschreibung der verwendeten Verfahren der Umweltprüfung und Hinweise auf mögliche Problemstellungen und Monitoring
  • allgemeinverständliche Zusammenfassung
  • Pflanzliste

Umweltrelevante Stellungnahmen von Behörden und der Öffentlichkeit:

Stellungnahmen mit umweltbezogenen Informationen der Behörden und sonstiger Träger öffentlicher Belange.

Vorgebracht wurden Hinweise zu folgenden Punkten:

Kreisverwaltung Bad Kreuznach – 22.09.2022

  • Hinweise zum sparsamen Umgang mit Grund und Boden
  • Untersuchung der ansässigen Amphibien
  • Bodenabstand von Einfriedungen
  • Hinweise zur Brauchwassernutzung, Freiflächenbewässerung und Nutzung von Niederschlagswasser
  • Empfehlungen und Hinweise zu klimaangepasstem Bauen

Stellungnahmen mit umweltbezogenen Informationen der Öffentlichkeit (u.a. Naturschutzverbände, Anwohner, Jagdpächter, Landwirte).

  • Anwohnerstellungnahme – Hinweis auf Schutz von Amphibien

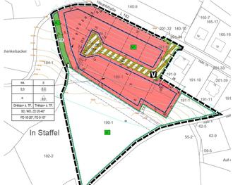
2) Geltungsbereich / Übersichtskarte

Der Gesamtgeltungsbereich umfasst eine Größe von ca. 1,27 ha.

Der Geltungsbereich des vorliegenden Bebauungsplans befindet sich am westlichen Siedlungsrand der Ortsgemeinde Breitenheim und grenzt unmittelbar an die Landesstraße L182. Der gesamte Geltungsbereich hat eine Größe von ca. 1,27 ha und beinhaltet die nachfolgenden Flurstücke in der Gemarkung Breitenheim:

Flur 15:

201/34

Flur 17:

188/1, 189/1, 190/1, 191/1, 191/8

Die genaue Lage des Plangebiets in der Ortsgemeinde Breitenheim ist dem nachfolgend abgedruckten Lageplan zu entnehmen.

Verbandsgemeindeverwaltung Nahe-Glan
- Fachbereich 3 -
Natürliche Lebensgrundlagen und Bauen