Titel Logo
Mitteilungsblatt für den Bereich der Verbandsgemeinde Kirner Land
Ausgabe 21/2023
Mitteilungen der Ortsgemeinden
Zurück zur vorigen Seite
Zurück zur ersten Seite der aktuellen Ausgabe

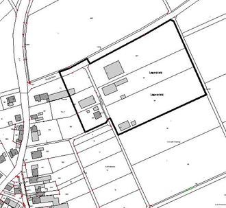
Änderung des Bebauungsplanes für das Teilgebiet „Auf Rodtwiese, Vorn Aufm Grasweg“

für das Teilgebiet „Auf Rodtwiese, Vorn Aufm Grasweg“

Offenlage des Bebauungsplanentwurfes gemäß § 3 Abs. 2 und § 4 Abs. 2 Baugesetzbuch (BauGB).

Auf Grund des § 2 Abs. 1 BauGB vom 23.09.2004 (BGBl. I S. 2414) in der derzeit geltenden Fassung unter Beachtung des § 22 Gemeindeordnung Rheinland-Pfalz vom 31.01.1994 in der derzeit geltenden Fassung, hat der Ortsgemeinderat Oberhausen in der Sitzung am 11.05.2023, die Offenlage beschlossen.

Der Bebauungsplan liegt gemäß § 3 Abs. 2 und § 4 Abs. 2 BauGB, auf die Dauer von einem Monat, mindestens jedoch 30 Tage, und zwar vom 05.06.2023 bis einschließlich 19.07.2023, jeweils montags bis freitags von 8.30 Uhr bis 12.30 Uhr und donnerstags zusätzlich von 14.00 Uhr bis 18.00 Uhr bei der Verbandsgemeindeverwaltung Kirner Land, 55606 Kirn, Kirchstr. 3, Zimmer 3.22, aus.

Während dieser Zeit können von jedermann Stellungnahmen zum Bebauungsplan abgegeben werden. Es wird darauf hingewiesen, dass nicht fristgerecht abgegebene Stellungnahmen bei der Beschlussfassung über den Bebauungsplan unberücksichtigt bleiben können und dass ein Antrag nach § 47 der Verwaltungsgerichtsordnung unzulässig ist, soweit mit ihm Einwendungen geltend gemacht werden, die vom Antragsteller im Rahmen der Auslegung nicht oder verspätet geltend gemacht wurden, aber hätten geltend gemacht werden können.

Der räumliche Geltungsbereich der Bebauungsplanänderung umfasst die schwarz umrandeten Grundstücke, Gemarkung Oberhausen, Flur 2, Flurst.-Nrn. 1/1 tlw., 5/3 tlw., 6/1, 6/2, 8 tlw., Flur 7, Flurst.-Nrn. 52/1, 53, 54, 104/2 tlw.