Titel Logo
Mitteilungsblatt für den Bereich der Verbandsgemeinde Kirner Land
Ausgabe 22/2023
Mitteilungen der Ortsgemeinden
Zurück zur vorigen Seite
Zurück zur ersten Seite der aktuellen Ausgabe

Niederschrift über die Sitzung des Ortsgemeinderates Oberhausen vom 11.05.2023

1. Anhebung der Hebesätze der Realsteuern

Der Verfassungsgerichtshof Rheinland-Pfalz hat in seinem Urteil vom 16. Dezember 2020 festgestellt, dass die vertikale Bemessung der Finanzausgleichsmasse aufgrund des Fehlens eines im Sinne des Artikel 49 Absatz 6 Landesverfassung aufgabenadäquaten Bedarfsermittlungsverfahrens eine Mindestfinanzausstattung nicht gewährleistet und dieser Verfahrensfehler zur Verfassungswidrigkeit der Vorschriften über den vertikalen Finanzausgleich führt.

Die Umsetzung der Vorgaben des Verfassungsgerichtshofs erfolgt durch das Landesgesetz zur Neuregelung der Finanzbeziehungen zwischen dem Land und den kommunalen Gebietskörperschaften, das Landesfinanzausgleichsgesetz, welches vom rheinlandpfälzischen Landtag am 24. November 2022 beschlossen wurde und am 1. Januar 2023 in Kraft getreten ist.

An die Stelle des Steuerverbunds, bei der eine feststehende Finanzmasse zwischen Land und den kommunalen Gebietskörperschaften geregelt wurde, wird nun ein bedarfsorientiertes Finanzausgleichssystem eingeführt, welches den Gebiets-körperschaften eine bedarfsorientierte Mindestfinanzausstattung garantiert.

Unter anderem wurde die Berechnungsgrundlage der Schlüsselzuweisungen A geändert, so dass die meisten Ortsgemeinden davon profitieren dürften. Neu ist die Einführung einer finanzkraftabhängigen Schlüsselzuweisung B sowie eine allgemeine Zuweisung die die Ortsgemeinden erhalten, sofern stationierte Streitkräfte in ihren Ortslagen ansässig sind.

Die Höhe der Nivellierungssätze der Grundsteuer sowie Gewerbesteuer orientiert sich zukünftig am jeweiligen Bundesdurchschnitt. Dadurch sind die Nivellierungssätze zum 1. Januar 2023 wie folgt gestiegen:

- Grundsteuer A von 300 v.H. auf 345 v.H.

- Grundsteuer B von 365 v.H. auf 465 v.H.

- Gewerbesteuer von 365 v.H. auf 380 v.H.

Die Gemeinden sind in der Pflicht ihre Hebesätze der Realsteuern zu überprüfen.

Liegen die Hebesätze der Ortsgemeinden unter den Nivellierungssätzen des Landes, müssen die Kommunen mehr Einnahmen in die Umlageberechnung (Verbands- und Kreisumlage) abführen als sie tatsächlich durch die Steuereinnahmen erhalten haben.

Die Ortsgemeinde Oberhausen erhebt aktuell folgende Hebesätze:

Hebesätze:

neue Nivellierungssätze:

Grundsteuer A

300%

345%

Grundsteuer B

365%

465%

Gewerbesteuer

365%

380%

Am 18. Januar 2023 hat uns ein Schreiben vom Landesbetrieb Mobilität Bad Kreuznach erreicht. Das LBM weist uns daraufhin, dass im Rahmen ihrer Förderung keine Mittel an Kommunen zur Verfügung gestellt werden, wenn nicht alle Hebesätze der antragsstellende Kommune auf dem Niveau der Nivellierungssätze des Landes Rheinland Pfalz die ab dem 1. Januar 2023 gelten, erhoben werden.

Uns liegen Hinweise vor, dass bei anderen Förderprogrammen ähnlich verfahren wird.

Beschluss:

Der Ortsgemeinderat Oberhausen beschloss die Erhöhung der Hebesätze der Grundsteuer A, B und Gewerbesteuer auf die Höhe der zum 1. Januar 2023 gestiegenen Nivellierungssätze des Landes Rheinland-Pfalz.

2. Beratung und Beschlussfassung über Anregungen und Vorschläge der Einwohnerinnen und Einwohner der Ortsgemeinde zum Haushaltsplan 2023

Gemäß § 97 I GemO haben die Einwohnerinnen und Einwohner der Ortsgemeinde Oberhausen die Möglichkeit, innerhalb von 14 Tagen vor der Beschlussfassung über den Haushalt, Vorschläge und Anregungen zum Entwurf der Haushaltssatzung und des Haushaltsplans für das Haushaltsjahr 2023 einzureichen.

Bei der Ortsgemeinde Oberhausen sowie bei der Verbandsgemeindeverwaltung Kirner Land wurden keine Anregungen und keine Vorschläge eingereicht. Daher entfiel eine Beratung und eine Beschlussfassung zu diesem TOP.

3. Beratung des Haushaltsplanes und Erlass der Haushaltssatzung für das Haushaltsjahr 2023

Beschluss:

Der Ortsgemeinderat Oberhausen stimmte dem vorgelegten Entwurf des Haushalts-planes 2023 zu und beschloss die Haushaltssatzung - wie vorgelegt - zu erlassen.

4. Feststellung des Jahresabschlusses 2018, Entlastung des Ortsbürgermeisters und der Ortsbeigeordneten sowie des Bürgermeisters/Beauftragten und der Beigeordneten der Verbandsgemeinde Kirn-Land

Die stellvertretende Vorsitzende des Rechnungsprüfungsausschusses, Helma Zerfaß-Wildberger, trug dem Ortsgemeinderat das Ergebnis der Prüfung vor und empfahl ihm gemäß § 114 Abs. 1 GemO:

1.

den Jahresabschluss festzustellen und

2.

dem Ortsbürgermeister und den Ortsbeigeordneten, sowie dem Bürgermeister/Beauftragten und den Beigeordneten der Verbandsgemeinde Kirn-Land Entlastung zu erteilen.

Sowie gemäß § 100 GemO

3.

nachträglich über- und außerplanmäßige Aufwendungen und Auszahlungen zu genehmigen

Beschluss:

Nach Beratung beschloss der Ortsgemeinderat Oberhausen die Feststellung des Jahresabschlusses.

5. Vorschlagsliste zur Wahl von Schöffinnen und Schöffen für die Geschäftsjahre 2024 - 2028

Nach der Verwaltungsvorschrift über die Wahl, Auslosung und Einberufung der Schöffinnen und Schöffen sind in diesem Jahr die Vorschlagslisten für die Wahlperiode 2024 bis 2028 aufzustellen.

Bei der Aufstellung ist zu prüfen, ob die vorgeschlagenen Personen geeignet und bereit sind, das Amt einer Schöffin bzw. eines Schöffen auszuüben. (§§ 32, 33 und 34 Gerichtsverfassungsgesetz).

Gemäß Anschreiben des Gerichts, ist aus dem Bereich der Ortsgemeinde Oberhausen 1 Person vorzuschlagen.

Der Vorschlag bedarf der Zustimmung von 2/3 der anwesenden Mitglieder, mindestens jedoch der Hälfte der gesetzlichen Zahl des Ortsgemeinderates.

Bei dem Vorschlag von Personen zur Aufnahme in die Vorschlagsliste für Schöffen nach § 36 des Gerichtsverfassungsgesetzes handelt es sich um eine Wahl.

Für das Wahlverfahren gilt § 40 Abs. 5 GemO. Die Abstimmung erfolgt demnach durch Stimmzettel in geheimer Abstimmung, sofern der Ortsgemeinderat nicht eine offene Abstimmung beschließt.

Das Stimmrecht des Vorsitzenden, der nicht gewähltes Ratsmitglied ist, ruht bei Wahlen nach § 36 Abs. 3 Nr. 1 GemO.

Ausschließungsgründe nach § 22 GemO gelten nicht für Wahlen.

Der Ortsgemeinde lagen drei Vorschläge vor, ein Ratsmitglied und zwei weitere Personen.

Die Reihenfolge wird in der nächsten Sitzung noch festgelegt.

6. Beschluss zum Beitritt der Ortsgemeinde Oberhausen in den "Kommunalen Klimapakt (KKP) Rheinland-Pfalz"

Gegenstand und Ziel des Beschlusses ist der Beitritt zum Kommunalen Klimapakt Rheinland-Pfalz (KKP). Dieses Angebot wurde von den kommunalen Verbänden und dem Land ausgearbeitet. Mit dem Beitritt verpflichtet sich eine Kommune, ihre Aktivitäten im Bereich des Klimaschutzes (Reduktion der Treibhausgasemissionen bzw. Ausbau von CO2-Senken) bzw. der Anpassung an die Klimawandelfolgen (Hitze, Dürre, Starkregen usw.) zu forcieren und besonders ambitioniert vorzugehen. Hierzu benennt jede Kommune bis zu fünf Ziele bzw. Maßnahmen, die sie in Angriff zu nehmen beabsichtigt; diese sind Ausgangspunkt für eine individuelle und „maßgeschneiderte“ Beratung, die für jede beitretende Kommune im Hinblick auf die konkrete Umsetzung solcher Maßnahmen zusätzlich über den KKP angeboten wird.

Im Rahmen des Pariser Klimaschutzabkommens hat sich das Land Rheinland-Pfalz zum Ziel gesetzt, die Emissionen an Treibhausgasen drastisch zu reduzieren und bis spätestens 2040 (lt. Koalitionsvertrag) klimaneutral zu werden - und so dazu beizutragen, den Anstieg der globalen Durchschnittstemperatur möglichst auf 1,5 Grad Celsius zu begrenzen. Zudem gilt es, die Folgen des Klimawandels durch geeignete und wirksame Anpassungsmaßnahmen zu bewältigen.

Dazu bedarf es erheblicher Anstrengungen auf allen politischen und gesellschaftlichen Ebenen, auch und insbesondere auf der kommunalen Ebene. Denn auf dieser Ebene werden die konkreten Rahmenbedingungen für die notwendigen Maßnahmen gesetzt, insbesondere in den Bereichen Bauleitplanung, Erzeugung erneuerbarer Energien sowie Mobilität.

Die Kommunalen Spitzenverbände, der Verband kommunaler Unternehmen (VkU), die Energieagentur Rheinland-Pfalz und die Landesregierung, vertreten durch das federführende Klimaschutzministerium (MKUEM) einschließlich des Rheinland-Pfalz Kompetenzzentrums für Klimawandelfolgen (KfK), sowie das Wirtschafts- und Innenministerium (MWVLW bzw. MdI) haben sich daher darauf verständigt, gemeinsam den Kommunalen Klimapakt einzurichten. Grundlage hierfür ist die Gemeinsame Erklärung vom 29. November 2022.

Der Kommunale Klimapakt besteht im Kern aus einem gegenseitigen Leistungsversprechen: Die beitretenden Kommunen forcieren ihr Engagement im Klimaschutz und bei der Anpassung an die Klimawandelfolgen und bekennen sich zu den Klimaschutzzielen des Landes. Im Gegenzug fördert und begleitet die Landesregierung die Kommunen bei der Umsetzung ihrer Maßnahmen mit konkreten und passgenauen Angeboten und Leistungen. Der Kommunale Klimapakt wurde zunächst für die Jahre 2023 und 2024 vereinbart, ist aber auf Dauer angelegt und soll 2024 für die Folgejahre mit allen Beteiligten fortgeschrieben werden.

Die Verbandsgemeinde Kirner Land hat bereits eine Reihe von Maßnahmen zum Klimaschutz bzw. zur Klimawandelanpassung umgesetzt bzw. die Umsetzung eingeleitet; hervorzuheben sind insbesondere die Schaffung der Stelle eines Klimaschutzmanagers, Energieeffizienzmaßnahmen und die Erstellung von Hochwasser- und Starkregenschutzkonzepten.

Mit dem Beitritt zum Kommunalen Klimapakt ist die Selbstverpflichtung verbunden, die Aktivitäten sowohl im Klimaschutz als auch in der Anpassung an Klimawandelfolgen über das bisherige Maß hinaus zu verstärken. Hierzu benennt jede Kommune mit dem Beitritt bis zu fünf Ziele bzw. Maßnahmen, die sie zu diesem Zweck zu verfolgen bzw. in Angriff zu nehmen beabsichtigt. Für die Ortsgemeinde Oberhausen sind dies:

  • PV-Anlagen auf gemeindeeigenen Gebäuden
  • energetische Maßnahmen an allen gemeindeeigenen Gebäuden (sofern möglich)
  • Planung und Umsetzung einer Freiflächenphotovoltaik-Anlage
  • Umrüstung der Straßenbeleuchtung auf LED
  • Aufstellen einer Ladestation für e-Bikes
  • Neugestaltung der Außenanlage Kita

Diese Ziele bzw. Maßnahmen werden nach dem Beitritt im Zuge des exklusiv für die „KKP- Kommunen“ zur Verfügung stehenden Beratungsangebots nochmals im Einzelnen besprochen, dabei im jeweiligen kommunalen Kontext eingeordnet und priorisiert, je nach Bedarf auch modifiziert, revidiert oder ergänzt, um im Ergebnis ein Paket an wirksamen, effektiven und auch im Hinblick auf den finanziellen Aufwand effizienten Maßnahmen in die Umsetzung zu bringen und so einen bestmöglichen Beitrag zur zeitnahen Reduktion der Treibhausgasemissionen bzw. zur Anpassung an Klimawandelfolgen zu leisten. Das Ergebnis dieser Beratung wird im Nachgang nochmals in den kommunalen Gremien beraten und die dann noch erforderlichen Folgebeschlüsse gefasst.

Um diesen Beratungs- und Umsetzungsprozess optimal zu unterstützen, wird die Verwaltung entsprechende personelle Kapazitäten und organisatorische Ressourcen und Infrastruktur bereitstellen sowie in der Beitrittserklärung eine zentrale Ansprechperson in der Verwaltung benennen.

Der Beschluss zum KKP-Beitritt ist nicht mit unmittelbaren finanziellen Pflichten verbunden. Zur Finanzierung der vorgeschlagenen Maßnahmen stehen - neben originären Eigenmitteln - Förderprogramme des Landes, des Bundes oder der EU zur Verfügung. Eine möglichst weitgehende Ausnutzung dieser Fördermöglichkeiten ist zentraler Gegenstand und Zielsetzung des begleitenden Beratungsangebots aus dem KKP heraus. Wenn Projekte umgesetzt werden sollen, ist darüber gesondert im Rat zu entscheiden.

Der Beitritt von Ortsgemeinden muss über die Verbandsgemeindeverwaltung gebündelt erfolgen.

Beschluss:

Die Ortsgemeinde Oberhausen trat dem Kommunalen Klimapakt bei. Damit verpflichtete sie sich, ihre Aktivitäten sowohl im Klimaschutz als auch in der Anpassung an Klimawandelfolgen zu verstärken und dabei ambitioniert vorzugehen. Die Ortsgemeinde benennt dazu folgende Ziele und Maßnahmen und bringt diese in das weitere Verfahren ein:

  • PV-Anlagen auf gemeindeeigenen Gebäuden
  • energetische Maßnahmen an allen gemeindeeigenen Gebäuden (sofern möglich)
  • Planung und Umsetzung einer Freiflächenphotovoltaik-Anlage
  • Umrüstung der Straßenbeleuchtung auf LED
  • Aufstellen einer Ladestation für e-Bikes
  • Neugestaltung der Außenanlage Kita
  • Auf dieser Basis wird die Verwaltung beauftragt,
  • die vollständige Beitrittserklärung gemäß diesem Beschluss in der vorgegebenen Form zeitnah an das MKUEM abzugeben,
  • zu prüfen, welche der über den KKP zur Verfügung stehenden Beratungsangebote in Anspruch genommen werden sollen und diese zeitnah und proaktiv anzufordern sowie
  • entsprechende personelle Kapazitäten und organisatorische Ressourcen und Infrastruktur bereitzustellen, um den Beratungs- und Umsetzungsprozess optimal zu unterstützen.

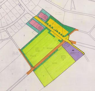
7. Änderung des Bebauungsplanes für das Teilgebiet „Auf Rodtwiese-Vorn aufm Grasweg“

a) Beratung über die im Rahmen der frühzeitigen Beteiligung eingegangenen Stellungnahmen und Anregungen

b) Beschluss über die Offenlage

a) Beratung über die im Rahmen der frühzeitigen Beteiligung eingegangen Stellungnahmen und Anregungen

Die Abwägungs-/Würdigungsvorlage wurde im Anhang beigefügt

Beschluss:

Der Ortsgemeinderat folgte den einzelnen Abwägungs-/Würdigungsvorschlägen, wie vorgetragen.

b) Beschluss über die Offenlage

Der Ortsgemeinderat beschloss, die Verwaltung zu beauftragen, den vorliegenden Bebauungsplanentwurf gemäß § 3 Abs. 2 und § 4 Abs. 2 BauGB auf die Dauer eines Monats, mindestens jedoch 30 Tage, öffentlich auszulegen und die Öffentlichkeit sowie die Behörden und sonstige Träger öffentlicher Belange entsprechend zu beteiligen.

8. Änderung des Bebauungsplanes für das Teilgebiet Auf der Hahneck-Vor dem Eichacker-Im Eichacker, Flur 2 und 6, 4 Änderung

a) Aufstellungsbeschluss

b) Vergabe des Planungsauftrages

c) Beschluss über die frühzeitige Beteiligung der Öffentlichkeit und Behörden und sonstiger Träger öffentlicher Belange

Der Ortsgemeinde Oberhausen lag eine Anfrage eines Bauherrn für ein Grundstück im Teilgebiet „Auf der Hahneck-Vor dem Eichacker-Im Eichacker“ vor. Auf diesem Grundstück soll ein Einfamilienhaus entstehen..

Nach Rücksprache mit der Kreisverwaltung Bad Kreuznach, muss hierzu der bestehende Bebauungsplan geändert werden, ebenso sollte ein Lärmgutachten erstellt werden. Dieses liegt bereits vor.

Da der Antragsteller alleiniger Nutznießer dieser Bebauungsplanänderung ist, wird dieser, die dafür entstehenden Kosten tragen. Zur Übernahme dieser Kosten, wird ein Kostenübernahmevertrag erstellt und mit dem Antragsteller abgeschlossen.

a) Aufstellungsbeschluss

Der Ortsgemeinderat beschloss, unter Beachtung des § 22 der Gemeindeordnung für Rheinland-Pfalz (GemO) in der derzeit geltenden Fassung, die Änderung des Bebauungsplanes für das Teilgebiet „Auf der Hahneck-Vor dem Eichacker-Im Eichacker“, Flur 2 und 6“, gem. § 2 Abs. 1 BauGB in der Fassung der Bekanntmachung vom 23.09.2004 (BGBl. 1 S. 2414, zuletzt geändert durch Artikel 1 des Gesetzes vom 22.07.2011 (BGBl. 1 S. 1509) und unter der Voraussetzung des TOP 1 der Nichtöffentlichen Sitzung (Grundstücksangelegenheiten).

Der räumliche Geltungsbereich der Bebauungsplanänderung umfasst die nachfolgend aufgeführten Grundstücke:

Gemarkung Oberhausen,

Flur 2, Flurst.-Nrn. 314, 315, 316,

Flur 6, Flurst.-Nrn. 64, 65 tlw., 85/1, 85/2, 84/3, 86/1, 86/2, 87, 88/1 tlw., 88/3, 88/4 tlw., 88/5 tlw., 88/7, 100, 101 tlw., 141 tlw., 147 tlw., 150 tlw.

b) Vergabe des Planungsauftrages

Beschluss:

Der Ortsgemeinderat beschloss, den Auftrag zur Änderung des Bebauungsplanes an das Planungsbüro Helko Peters, Trier, zu dem angebotenen Honorarangebot von 6.666,08 Euro, zu vergeben.

Sämtliche Kosten werden vom Antragsteller übernommen. Hierzu wird ein Kostenübernahmevertrag mit dem Eigentümer abgeschlossen. Die Verwaltung wird beauftragt den Vertrag vorzubereiten und der Ortsbürgermeister wird ermächtigt, diesen in Abstimmung mit den Beigeordneten, abzuschließen.

c) Beschluss über die frühzeitige Beteiligung der Öffentlichkeit und der Behörden und sonstiger Träger öffentlicher Belange

Der Ortsgemeinderat beschloss, die Verwaltung zu beauftragen, die frühzeitige Beteiligung der Behörden und sonstiger Träger öffentlicher Belange, deren Aufgabenbereich durch die Planung berührt werden kann, durchzuführen. Der vorliegende Entwurf des Bebauungsplanes wird gemäß § 3 Abs. 1 und § 4 Abs. 1 BauGB, auf die Dauer von 14 Tagen öffentlich ausgelegt und die Öffentlichkeit sowie die Behörden und sonstige Träger öffentlicher Belange entsprechend beteiligt.

9. Mitteilungen und Beantwortung von Anfragen

Schriftliche Anfragen lagen nicht vor.

Ortsbürgermeister Axel May teilte mit,

1) dass im Neubaugebiet Vorn aufm Scheid, die Straßenleuchten noch gesetzt werden müssen und die Endvermessung noch durchgeführt werden muss. Wenn die letzte Rechnung eigetroffen ist, kann der Bauplatzverkaufspreis errechnet werden.

2) dass das Grundstück der Innogy am Kindergarten, mit Aufbau, an die Ortsgemeinde übertragen wird.

10. Einwohnerfragestunde

Es waren drei Einwohner anwesend.

Eine Frage zur Straßensituation Ecke Schillerstraße/Kallenfelser Straße wurde vom Vorsitzenden beantwortet.