1. Dachsanierung Nebengebäude
Bürgermeister Jung begrüßte zu diesem Tagesordnungspunkt Herrn Nees vom Architekturbüro Nees+Team aus Kirn.
Da das Nebengebäude keinen Ringanker besitzt, ist eine Aufständerung von PV-Modulen nicht möglich. Die Module würden eine Angriffsfläche für den Wind bieten.
Diese segelartige Sogwirkung kann laut Statiker nicht von dem vorhandenen Mauerwerk ohne Ringanker aufgenommen werden und würde zu Schäden am Gebäude führen.
Alternativ könnten PV-Module nur auf das Flachdach direkt befestigt werden. Durch die geringe Neigung können die Module nicht optimal arbeiten, was zu einem schlechten Wirkungsgrad führt.
Ein weiterer Nachteil der geringen Neigung wäre, dass die Module sich bei Regen nicht „selbst“ reinigen und Staub bzw. Pollen auf den Modulen haftet. Dies führt dazu, dass der Wirkungsgrad ohne eine regelmäßige Reinigung ebenfalls reduziert wird und eine regelmäßige Reinigung/Wartung zu dauerhaften Kosten führt.
Durch Anhebung des Flachdaches zu einem Pultdach könnte der Wirkungsgrad der PV-Module verbessert werden. Durch die Dachneigung von 7° könnten Staub und Pollen wieder durch den Regen von den Modulen gespült werden, so dass die Effizienz der Module nicht beeinträchtigt wird.
Da das Nebengebäude unter Denkmalschutz steht, waren im Vorfeld mehrere Termine mit den Denkmalbehörden nötig, um die Zustimmung zu dem Vorhaben zu erwirken.
Beschluss:
Auf Empfehlung des Ausschusses für Bauwesen und Umweltschutz beschloss der Verbandsgemeinderat, die Dachneigung des Nebengebäudes bei der Dachsanierung von einem Flachdach auf ein Pultdach zu verändern und die Arbeiten auszuschreiben.
Des Weiteren wird die Verwaltung ermächtigt, Angebote für die Installation von PV-Modulen einzuholen.
Der Bürgermeister wird ermächtigt, die Aufträge an die wirtschaftlich günstigsten Bieter zu erteilen.
2. Regionales Zukunftsprogramm - Beschluss über die Maßnahmen
der Verbandsgemeinde Kirner Land
Der Verbandsgemeinderat hat in seiner Sitzung am 06.02.2025 beschlossen, die Mittel aus dem Regionalen Zukunftsprogramm auf die Ortsgemeinden und die Verbandsgemeinde Kirner Land aufzuteilen. Von den insgesamt zur Verfügung stehenden Fördergeldern in Höhe von 2.916.825,78 EUR werden 2 Mio. EUR auf die Ortsgemeinden aufgeteilt. Jede Ortsgemeinde erhält einen Sockelbetrag von 4.000,- EUR, die restlichen 1.916.000,- EUR werden nach dem Einwohnerverteilschlüssel
zum 30.06.2024 auf die Ortsgemeinden verteilt. Die restlichen 916.825,78 EUR verbleiben bei der Verbandsgemeinde.
Der Förderantrag muss bis zum 31.08.2025 gestellt sein, die Maßnahmen müssen bis zum 31.12.2028 umgesetzt sein. Es wird ein Förderantrag gestellt, in dem alle Maßnahmen der Verbandsgemeinde und der Ortsgemeinden enthalten sind.
Die in dem Förderantrag enthaltenen Maßnahmen müssen in drei Kapitel aufgeteilt werden:
Kapitel 1: Maßnahmen zur Stärkung der kommunalen Infrastruktur und der sozialen Gemeinschaft (max. 55%)
Kapitel 2: Klimaschutz-, Klimaresilienz- uns sonstige strukturelle Maßnahmen (max. 30%)
Kapitel 3: Wirtschafts-, agrar- und verkehrsstrukturelle Maßnahmen (max. 30%)
Die Zuwendung ist überwiegend für investive Maßnahmen zu verwenden. Daher darf es sich bei max. 25% um nicht investive Maßnahmen handeln.
Beschluss:
Der Verbandsgemeinderat beschloss, nachfolgende Maßnahmen in den Förderantrag des Regionalen Zukunftsprogramms „Regional. Zukunft. Nachhaltig.“ aufzunehmen und auf VG-Ebene umzusetzen:
| Nr. | Maßnahme | Betrag in EUR |
| 1. | Ungedeckte Kosten Hellbergschule (Eigenmittel VG: Errichtung einer Ausgabeküche / Barrierefreiheit: Rampe, Aufzug, Toilette / Erneuerung Heizung) | 369.825,78 |
| 2. | Aufzug Hauptgebäude, Bahnhofstraße | 31 80.000 |
| 3. | Aufzug Nebengebäude, Bahnhofstraße | 31 80.000 |
| 4. | Ladeinfrastruktur, Parkplatz VG-Gebäude Bahnhofstraße 31 | 10.000 |
| 5. | Pflege Tennenplätze (Grundschulen) | 10.000 |
| 6. | Schulhof Grundschule Simmertal | 10.000 |
| 7. | Verbesserung der Infrastruktur der Premiumwanderwege, Schloss Wartenstein | 357.000 |
| Gesamt | 916.825,78 |
| 3. | Teilfortschreibung des Flächennutzungsplans der Verbandsgemeinde Kirn-Land; |
| Feststellungsbeschluss zur 7. Fortschreibung; hier: |
| Ortsgemeinde Hochstetten-Dhaun, Teilgebiet "Itzbach-In den |
| weißen Äckern Nord", Sondergebiet Freiflächen |
| Photovoltaikanlagen |
Bürgermeister Jung begrüßte zu diesem Tagesordnungspunkt Kreisplaner Kalus von der Kreisverwaltung Bad Kreuznach.
Der Feststellungsbeschluss eines Flächennutzungsplans (FNP) stellt den FNP als Ergebnis einer Planungsmaßnahme fest und bildet die Grundlage für die Bebauungspläne.
Nach der abschließenden Behandlung der Anregungen und Stellungnahmen, stellt die Gemeinde die beabsichtigte Flächennutzung offiziell durch einen Beschluss verbindlich fest, den sogenannten Feststellungsbeschluss.
Der Feststellungsbeschluss basiert auf den §§ 3 und 4a des Baugesetzbuchs (BauGB).
Vor der Feststellung des FNP findet eine frühzeitige Beteiligung und eine weitere Beteiligung der Öffentlichkeit und der Behörden statt, um die Planung offenzulegen und Anregungen zu sammeln.
Der FNP bedarf nach § 6 BauGB der Genehmigung der höheren Verwaltungsbehörde (Kreisverwaltung Bad Kreuznach). Der Feststellungsbeschluss selbst hat keine unmittelbare Rechtswirkung für den Bürger. Der FNP dient als Grundlage für Bebauungspläne, die konkrete Bauvorhaben festlegen. Der FNP kann durch ein Änderungsvorhaben angepasst werden, beispielsweise wenn ein Bebauungsplan eine Abweichung vom FNP vorsieht.
Der FNP ist ein langfristiges Planungsinstrument, das die beabsichtigte städtebauliche Entwicklung einer Gemeinde festlegt.
Chronologie:
VG Kirner Land Fortschreibung FNPL Kirn-Land
OG Hochstetten-Dhaun
| Verfahrensvermerke | Datum |
| Aufstellungsbeschluss | 17.07.2023 |
| Beschluss Billigung des Planungsauftrages | 17.07.2023 |
| eventl. Beschluss Vergabe des Umweltberichtes | 17.07.2023 |
| Beschluss über die frühzeitige Beteiligung | 17.07.2023 |
| Durchführungszeitraum | 16.10.-06.11.2023 |
| Beschluss über die Abwägung der frühzeitigen Beteiligung | 11.01.2024 |
| Beschluss über die Offenlage | 11.01.2024 |
| Durchführungszeitraum | 12.02.-22.03.2024 |
| Beschluss über die Abwägung der Offenlage | 14.05.2024 |
| Beschluss zur Einholung der Zustimmung der Ortsgemeinden | 14.05.2024 |
| Feststellungsbeschluss |
|
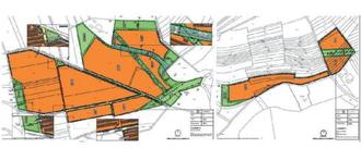
Bei diesem Feststellungsbeschluss geht es um die Fläche, die durch den
Satzungsbeschluss des Ortsgemeinderates Hochstetten-Dhaun am 30.01.2024 für den Bebauungsplan „Itzbach-In den weißen Äckern Nord“ (nachfolgend abgebildet), beschlossen wurde.
Die Fläche Flurstück 138, die noch für den Bau der Batteriespeicher hinzugefügt werden soll, ist in diesem Plan nicht abgebildet.
Unmittelbar vor Beginn der Sitzung hat Fraktionsvorsitzende Dhonau-Wehner einen neuen Beschlussvorschlag für diesen Tagesordnungspunkt an Bürgermeister Jung, die Beigeordneten und die Fraktionen ausgeteilt.
Bürgermeister Jung wies noch einmal auf die Historie zu diesem Tagesordnungspunkt hin. Es gab zahlreiche Beschlüsse in der Vergangenheit, viele Stellungnahmen der Fraktionen sowie viele sachliche und inhaltliche Diskussionen über das Thema. Zudem verdeutlichte er, dass es in dem heutigen Beschluss um das Gebiet „Itzbach – In den weißen Äckern Nord“ geht und nicht um die oft genannte Olympiawiese.
In einem Statement, welches Fraktionsvorsitzende Cornelia Dhonau-Wehner vortrug, forderte die CDU-Fraktion:
| • | in dem Beschluss die Olympiawiese mitaufzunehmen und klarzustellen, dass auf dieser Wiese keine Freiflächen-Photovoltaikanlage gebaut wird |
| • | die Erstellung eines Gesamtkonzeptes für den Bau von erneuerbaren Energien in der Verbandsgemeinde Kirner Land |
Während Fraktionsvorsitzende Dhonau-Wehner das Statement vorlas, verlies Andreas Heck die Sitzung.
Anschließend stellte Cornelia Dhonau-Wehner den Antrag, die beiden Forderungen mit in den Beschluss aufzunehmen.
Es folgte eine rege Diskussion, in der einige Fraktionsvorsitzende und Ratsmitglieder zu den Aussagen der CDU Stellung nahmen.
Kreisplaner Kalus stellte anhand einer PP-Präsentation noch einmal die Schritte im Flächennutzungsplanverfahren vor. Zudem erläuterte er anhand von Planzeichnungen den Geltungsbereich der bisher wirksamen Darstellung und die Darstellung nach der Änderung des Flächennutzungsplanes. Er betonte, dass nach aktuellem Recht auf dem Bereich der sogenannten Olympiawiese kein Solarpark entstehen wird. Herr Kalus informierte weiterhin, dass es sich bei dem Umspannwerk um eine Nebenanlage der PV-Anlage handele; diesbezüglich habe er sich auch noch einmal mit dem Ministerium abgestimmt.
Nach dem Vortrag von Herrn Kalus folgte eine rege Diskussion über den
Beschlussvorschlag der Verwaltung und die Forderung der CDU. Ratsmitglied Katrin Hailer stellte den Antrag auf eine kurze Sitzungsunterbrechung. Dem gab Bürgermeister Jung statt. Die Sitzung wurde von 19:20 Uhr bis 19:25 Uhr unterbrochen.
Nach Wiedereröffnung der Sitzung einigten sich die Anwesenden auf folgenden Beschluss.
Beschluss:
Der Verbandsgemeinderat beschließt gemäß § 67 Abs. 2 GemO, die 7. Fortschreibung des Flächennutzungsplanes der Verbandsgemeinde Kirn-Land.
Die 7. Fortschreibung des Flächennutzungsplans der VG Kirn-Land sieht folgende Änderung vor:
Ortsgemeinde Hochstetten-Dhaun
Teilgebiet „Itzbach-In den weißen Äckern Nord“, Sondergebiet Freiflächen
Photovoltaikanlagen
Die Ortsgemeinden haben durch Beschluss die Zustimmung zur 7. Fortschreibung gemäß § 67 Abs. 2 GemO erteilt.
Der Feststellungsbeschluss umfasst die zeichnerischen Darstellungen, sowie deren Begründung und Umweltbericht in der Fassung von 01/2024.
Die Verwaltung wird gemäß § 6 BauGB beauftragt, den Flächennutzungsplan bei der Kreisverwaltung Bad Kreuznach zur Genehmigung einzureichen und den Flächennutzungsplan nach Erteilung der Genehmigung ortsüblich bekannt zu machen.
Gleichzeitig bereitet die Kreisverwaltung Bad Kreuznach in Zusammenarbeit mit der Verbandsgemeinde Kirner Land eine Potentialanalyse für PV-Freiflächenanlagen sowie ein Gesamtkonzept vor, welches in einem weiteren Schritt im Verbandsgemeinderat beraten wird.
Der Rat stimmte diesem Beschlussvorschlag zu.
| 4. | Fortschreibung des Flächennutzungsplanes der Verbandsgemeinde Kirn-Land |
| a) Beratung über die im Rahmen der Offenlage eingegangen Stellungnahmen und Anregungen; hier: Ortsgemeinde Hennweiler - Sondergebietsfläche Landwirtschaft und Wohnen "In den Hähnen III" |
| b) Beschluss zur Einholung der Zustimmung der Ortsgemeinden zum Flächennutzungsplanentwurf (§ 67 Abs. 2 GemO) |
Bei Ratsmitglied Michael Schmidt lagen Ausschließungsgründe gemäß §22 GemO vor. Er nahm im Zuschauerraum Platz und an den Beratungen und Abstimmungen zu
diesem Tagesordnungspunkt nicht teil.
a) Beratung über die im Rahmen der Offenlage eingegangen Stellungnahmen und Anregungen; hier: Ortsgemeinde Hennweiler - Sondergebietsfläche Landwirtschaft und Wohnen "In den Hähnen III"
Die Ortsgemeinde Hennweiler hat im Jahr 2023 die Aufstellung des o.g. Bebauungsplanes (Auszug untenstehend) beschlossen.
Der Ortsgemeinde lag eine Anfrage eines Bauherrn für ein Grundstück im Teilgebiet „In den Hähnen III“ vor. Auf diesem Grundstück soll eine neue Lagerhalle und ein Wohnhaus entstehen. Die bestehende Lagerhalle wird mit einbezogen. Nach Rücksprache mit der Kreisverwaltung Bad Kreuznach musste hierzu ein vorhabenbezogener Bebauungsplan aufgestellt werden.
Der Verbandsgemeinderat hat in seiner Sitzung im September 2023, parallel zum Bebauungsplanverfahren, die Aufstellung zur Fortschreibung des Flächennutzungsplanes in der Ortsgemeinde Hennweiler beschlossen.
Die Beteiligung der Träger öffentlicher Belange und die Beteiligung der Öffentlichkeit ist im förmlichen Verfahren zur Fortschreibung des Flächennutzungsplanes nach dem Baugesetzbuch durchzuführen.
Die eingegangenen Stellungnahmen wurden gesichtet und bewertet. Die
Abwägungsempfehlungen zu den einzelnen Anregungen waren in der Beschlussvorlage dargestellt.
Beschluss:
Der Verbandsgemeinderat beschloss, die Abwägungs- und Kommentierungsvorschläge wie vorgetragen anzunehmen.
| Nr. | Behörde |
| 1 | Deutsche Telekom Technik GmbH, Mayen |
| 2 | Landesbetrieb Mobilität. Bad Kreuznach |
| 3 | SGD Nord, Regionalstelle Koblenz, Wasserwirtschaft-Abfallwirtschaft-Bodenschutz |
Die Beschlussvorschläge über die Hinweise und Stellungnahmen der o.g. Behörden (Nrn.1-3) beschloss der Verbandsgemeinderat.
| Nr. | Behörde |
| 1 | Öffentlichkeit 1 |
Der Beschlussvorschlag über die Hinweise und Stellungnahmen der o.g. Eingabe der Öffentlichkeit (Nr. 1) beschloss der Verbandsgemeinderat.
b) Beschluss zur Einholung der Zustimmung der Ortsgemeinden zum Flächennutzungsplanentwurf (§ 67 Abs. 2 GemO)
Die Beteiligung der Träger öffentlicher Belange und die Beteiligung der Öffentlichkeit ist im förmlichen Verfahren zur Fortschreibung des Flächennutzungsplanes nach dem Baugesetzbuch durchzuführen. Die eingegangenen Stellungnahmen wurden gesichtet und bewertet. Die Abwägungsempfehlungen zu den einzelnen Anregungen sind in der Beschlussvorlage dargestellt. Im nächsten Schritt ist durch die Verbandsgemeinde die Zustimmung der Ortsgemeinden zur Fortschreibung des Flächennutzungsplanes einzuholen.
Für den Bereich von Ortsgemeinden ist die Flächennutzungsplanung gemäß § 67 Abs.2 Satz 1 der Gemeindeordnung den Verbandsgemeinden übertragen worden. Die endgültige Entscheidung des Verbandsgemeinderates über die Aufstellung, Änderung, Ergänzung oder Aufhebung des Flächennutzungsplanes bedarf der Zustimmung der Ortsgemeinden.
Diese gilt als erteilt, wenn mehr als die Hälfte der Ortsgemeinden zugestimmt hat und in diesen mehr als zwei Drittel der Einwohner der Verbandsgemeinde wohnen.
Sofern Änderungen oder Ergänzungen des Flächennutzungsplanes die Grundzüge der Gesamtplanung nicht betreffen, bedürfen sie nur der Zustimmung derjenigen Ortsgemeinden, die selbst oder als Nachbargemeinden von den Änderungen oder Ergänzungen berührt werden.
Beschluss:
Der Verbandsgemeinderat beschloss, die Zustimmung der Ortsgemeinden zum Entwurf der Fortschreibung des Flächennutzungsplanes der VG Kirn-Land einzuholen.
| 5. | Erneuerung Heizungsanlage Kirchstraße 3 |
Die bestehende Gasheizung aus dem Jahr 1988 muss erneuert werden. Aktuell wird die Wärme durch einen, im Kellergeschoß aufgestellten, Kessel mit einer Leistung von 310 kW erzeugt. Der Aufstellraum im UG des Gebäudes wurde in der Vergangenheit schon durch Hochwasser überflutet. Daher soll im Rahmen dieser Maßnahme die Wärmeerzeugung inkl. der Verteilung ins Erdgeschoss verlagert werden.
Um die Anlage zu erneuern, wurden vom Ingenieurbüro RUM-Plan drei verschiede Varianten ausgearbeitet.
| • | Variante 1: Luft-Wasser-Wärmepumpe mit Gas-Brennwertkaskade |
| Kosten ca. 468.000 €* |
| • | Variante 2: Sole-Wasser-Wärmepumpe mit Gas-Brennwertkaskade |
| Kosten ca. 684.000 €* |
| • | Variante 3: Gas-Brennwertkaskade |
| Kosten ca. 157.000 € |
| *Förderfähigkeit gegeben 30% |
Diese Varianten wurden den Mitgliedern des Ausschusses für Bauwesen und Umweltschutz am 26.05.2025 vorgestellt. Der Ausschuss hat sich für die Variante 3 entschieden.
Beschluss:
Der VG-Rat beschloss auf Empfehlung des Ausschusses für Bauwesen und Umweltschutz die Heizungsanlage in der Kirchstraße 3 durch die Variante 3 (Gas-Brennwertkaskade) zu ersetzen.
Zudem beschloss der VG-Rat die weiteren Planungsleistungen an das Ingenieurbüro R.U.M. aus Baumholder zu vergeben. Nach Vorlage aller Unterlagen ist die Erneuerung der Heizungsanlage auszuschreiben.
Der Bürgermeister wird in Abstimmung mit dem Stadtbürgermeister ermächtigt, den Auftrag an das wirtschaftlich günstigste Unternehmen zu erteilen.
Eine analoge Vorgehensweise wurde im Stadtrat thematisiert.
| 6. | Bestellung Schiedspersonen |
Das Amtsgericht teilte der Verwaltung mit, dass die Amtszeiten der Schiedspersonen am 20.08.2025 ablaufen. Bürgermeister Thomas Jung dankte Herrn Sven Schäfer und Frau Heike Beenen für ihre Tätigkeiten in der nun ablaufenden Periode.
Nach der Schiedsamtsordnung wird die Schiedsperson auf Vorschlag des
Verbandsgemeinderates vom Direktor des Amtsgerichtes ernannt.
Der Beschluss, wer vorgeschlagen wird, ist eine Wahl nach § 40 Abs. 2 GemO.
Der Bewerber für das Schiedsamt muss nach seiner Persönlichkeit und seinen Fähigkeiten für das Amt geeignet sein.
Zur Schiedsperson darf nicht ernannt werden,
| 1. | wer infolge gerichtlicher Anordnung in der Befugnis, über sein Vermögen zu verfügen, beschränkt ist, |
| 2. | wer das Amt eines Staatsanwalts ausübt oder zur Ermittlungsperson der Staatsanwaltschaft bestellt ist, |
| 3. | wer als Rechtsanwalt zugelassen oder als Notar bestellt ist, |
| 4. | wer die Besorgung fremder Rechtsangelegenheiten geschäftsmäßig ausübt, |
| 5. | wer zu einer der in Nummer 3 oder 4 genannten Personen in einem Dienst- oder ähnlichen ständigen Geschäftsverhältnis steht. |
Zur Schiedsperson soll nicht ernannt werden, wer
| 1. | das 30. Lebensjahr nicht vollendet hat, |
| 2. | seinen Wohnsitz nicht im Schiedsamtsbezirk hat. |
Interesse an dem Ehrenamt der Schiedsperson hat Daniel Speh bekundet. Weitere Vorschläge von Seiten der Fraktionen gab es nicht.
Beschlüsse:
Zunächst beschloss der Verbandsgemeinderat, die Wahlen in einer offenen Abstimmung durchzuführen.
Der Verbandsgemeinderat beschloss dem Amtsgericht Bad Sobernheim
vorzuschlagen, Herrn Daniel Speh als Schiedsperson der Verbandsgemeinde Kirner Land und Frau Heike Beenen als seine Stellvertreterin zu benennen.
| 7. | Annahme von Spenden, Sponsoringleistungen, Schenkungen und sonstigen Zuwendungen |
Die Behandlung von Spenden, Sponsoringleistungen, Schenkungen und sonstigen Zuwendungen an die Gemeinde und ihre Einrichtungen wurde in § 94 der GemO ab 11. Januar 2008 neu geregelt. § 94 Abs. 3 lautet:
"(3) Die Gemeinde darf zur Erfüllung ihrer Aufgaben nach § 2 Abs. 1 Sponsoringleistungen, Spenden, Schenkungen und ähnliche Zuwendungen einwerben und annehmen oder an Dritte vermitteln, die sich an der Erfüllung von Aufgaben nach § 2 Abs. 1 beteiligen. Nicht zulässig sind die Einwerbung und die Entgegennahme des Angebots einer Zuwendung nach Satz 1 in der Eingriffsverwaltung oder wenn böser Anschein für eine Beeinflussung bei der 10 Wahrnehmung von Verwaltungsaufgaben zu erwarten ist. Bei der Auswahl von Sponsoringpartnern ist die Chancengleichheit konkurrierender Sponsoren zu wahren. Die Einwerbung und die Entgegennahme des Angebots einer Zuwendung obliegen ausschließlich dem Bürgermeister sowie den Beigeordneten; ein entsprechendes Angebot ist der Aufsichtsbehörde unverzüglich anzuzeigen. Über die Annahme oder Vermittlung entscheidet der Gemeinderat. Dem Gemeinderat und der Aufsichtsbehörde sind sämtliche für die Entscheidung maßgeblichen Tatsachen offen zu legen. Dazu gehört insbesondere ein anderweitiges Beziehungsverhältnis zwischen der Gemeinde und dem Geber. Die für die Entscheidung maßgeblichen Tatsachen im Sinne des Satzes 6 sind in
geeigneter Weise zu dokumentieren und vorzuhalten."
| Spender | Betrag in Euro | Verwendungszweck |
| Lena Isenbruck, Simmertal | 120,64 | Sachspende, Würstchen für Pausenverkauf |
| Dr. Wolfgang und Anita Bürkle Stiftung | 10.000,00 | Osterferienprogramm 2025 |
Beschluss:
Der Verbandsgemeinderat stimmte der Annahme der umseitig genannten Spenden zu.
| 8. | Einwohnerfragestunde |
Ein Einwohner erkundigte sich nach den Maßnahmen aus dem Klimaschutzkonzept und deren Umsetzung. Er regte die Erstellung eines Gesamtkonzeptes an.
| 9. | Mitteilungen und Beantwortung von Anfragen |
a) Partnergemeinde Gräfenroda
Die Verbandsgemeinde war zum „Duo-Cup“ in der Partnergemeinde Gräfenroda eingeladen. Duo-Cup bedeutet, dass zwei Turniere gleichzeitig gespielt werden: Fußball und Skat. Die Ergebnisse werden zusammengefasst und so der Gesamtsieger ermittelt. Die Verbandsgemeinde hat mit einem Team teilgenommen und wurde dabei von Mitspielern aus Gräfenroda unterstützt. So konnte der partnerschaftliche Gedanke weiter gefestigt werden.
b) Café international
Der Vorsitzende wies darauf hin, dass jeden 1. Mittwoch im Monat um 18:00 Uhr das Café international im ev. Gemeindezentrum in Kirn stattfindet. Interessierte können gerne daran teilnehmen.
c) Jahnbad Kirn
Alle Schülerinnen und Schüler erhalten am letzten Schultag (Freitag, 04.07.2025) freien Eintritt in das Jahnbad Kirn. Unterstützt wird diese Aktion von der Dr. Wolfgang und Anita Bürkle-Stiftung.
d) VG-Pokalturnier
Bürgermeister Jung wies auf das bevorstehende VG-Fußballpokalturnier hin. Die Vorrunden finden in Bärenbach (04.07.2025), Hochstetten-Dhaun
(05.07.2025) und Schwarzerden (06.07.2025) statt. Die Endrunde wird am 11.07.2025 in Schneppenbach ausgetragen.
e) Anfrage FDP-Fraktion
Dem Vorsitzenden lag eine schriftliche Anfrage der FDP-Fraktion vor:
| • | FDP: „Im vergangenen Jahr war „Kerbemontag“ das Kirner Schwimmbad sogar ganztägig geschlossen. Nicht nur für unsere beworbenen auswärtigen Gäste, die morgens vor verschlossenen Toren standen, überraschend. Angesichts der Ferienzeit und sommerlichen Temperaturen erwarten wir, dass im Mittelpunkt des Interesses der Kunde steht. Die Erwartung ist deshalb, dass wie in anderen Städten auch, das Leistungsangebot an Kirmestagen aufrechterhalten wird.“ |
| Diese Aussage basiert auf falschen Behauptungen, deshalb konnte Bürgermeister Jung dem widersprechen. Das Jahnbad war im letzten Jahr am Kerbemontag von 07:00-12:00 Uhr geöffnet. Genauso soll es in diesem Jahr wieder sein. |
| • | FDP: „Eine weitere Anregung bitten wir um Umsetzung: nachdem die Bodenkennzeichnung für den Rollstuhlfahrerparkplatz am Schwimmbad endgültig verblasst ist, bietet es sich nun die Gelegenheit, diesen Parkplatz näher im Eingangsbereich zu positionieren. Wann ist mit einer Umsetzung zu rechnen?“ |
| Der Vorsitzende erläuterte, dass er diese Anregung aufnehmen und prüfen werde. Zu beachten ist, dass ein Teil der Fläche im Privatbesitz ist und dort keine öffentlichen Parkplätze eingerichtet werden können. |
Der Vorsitzende schloss den öffentlichen Teil der Sitzung und eröffnete nach einer 5-minütigen Pause den nichtöffentlichen Teil.