Titel Logo
Mitteilungsblatt für den Bereich der Verbandsgemeinde Kirner Land
Ausgabe 51/2025
Mitteilungen der Stadt Kirn und ihrer Stadtteile
Zurück zur vorigen Seite
Zurück zur ersten Seite der aktuellen Ausgabe

Niederschrift über die gemeinsame Sitzung des Ausschusses für Stadtplanung, Bauwesen und Umweltschutz der Stadt Kirn und des Haupt- und Finanzausschusses vom 27.11.2025

1.): Änderung des Bebauungsplanes für das Teilgebiet "Auf Kirau", 2. Änderung

a) Billigung und Vergabe des Planungsauftrages

b) Beschluss über die frühzeitige Beteiligung der Öffentlichkeit und Behörden und sonstiger Träger der öffentlichen Belange

Zu a) Billigung und Vergabe des Planungsauftrages

Stadtbürgermeister Ensminger begrüßte zu diesem Tagesordnungspunkt den Planer Kay Jakoby vom Ingenieurbüro Jakoby + Schreiner, sowie den stellv. Fachbereichsleiter Sascha Siegel.

Herr Jakoby informierte die Ausschussmitglieder über die Änderungen des Bebauungsplanes und konnte alle aufkommenden Fragen aus den Ausschüssen beantworten.

Beschluss:

Der Haupt- und Finanzausschuss empfiehlt dem Stadtrat, die Billigung und Vergabe des vorliegenden Entwurfes der Bebauungsplanänderung mit Planzeichnung und Textfestsetzungen in der vorliegenden Fassung.

Beschluss:

Der Bauausschuss empfiehlt dem Stadtrat, die Billigung und Vergabe des vorliegenden Entwurfes der Bebauungsplanänderung mit Planzeichnung und Textfestsetzungen in der vorliegenden Fassung.

Es war das Ausschussmitglied Daniel Sauer nach § 22 der Gemeindeordnung von der Beratung und Abstimmung ausgeschlossen.

Zu b) Beschluss über die frühzeitige Beteiligung der Öffentlichkeit und Behörden und sonstiger Träger der öffentlichen Belange

Beschluss:

Der Haupt- und Finanzausschuss empfiehlt dem Stadtrat, die frühzeitige Beteiligung der Öffentlichkeit und Behörden und sonstiger Träger öffentlicher Belange, zu beschließen.

Beschluss:

Der Bauausschuss empfiehlt dem Stadtrat, die frühzeitige Beteiligung der Öffentlichkeit und Behörden und sonstiger Träger öffentlicher Belange, zu beschließen.

Es war das Ausschussmitglied Daniel Sauer nach § 22 der Gemeindeordnung von der Beratung und Abstimmung ausgeschlossen.

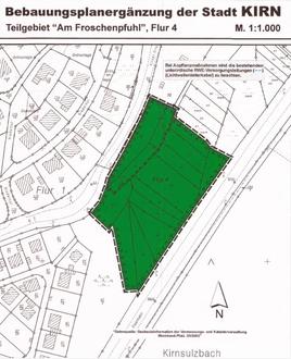
2.): Errichtung eines Netzverknüpfungspunkt im Bereich des Teilgebietes "Am Froschenpfuhl"; Einvernehmen der Gemeinde nach § 36 BauGB i.V.m. § 35 BauGB und Abweichung von bauaufsichtlichen Anforderungen

Der Stadt liegt ein Antrag zur Errichtung eines Netzverknüpfungspunktes im Bereich des Teilgebietes „Am Froschenpfuhl“, vor.

In dem der Einladung beigefügten Antrag ist die nähere Beschreibung enthalten.

Beschluss:

Der Haupt- und Finanzausschuss empfiehlt dem Stadtrat, das Einvernehmen nach § 36 i.V.m. § 30 BauGB, zu erteilen und der Abweichung von bauaufsichtlichen Anforderungen zuzustimmen.

Beschluss:

Der Bauausschuss empfiehlt dem Stadtrat, das Einvernehmen nach § 36 i.V.m. § 30 BauGB, zu erteilen und der Abweichung von bauaufsichtlichen Anforderungen zuzustimmen.

3.): Bundesprogramm "Sanierung kommunaler Sportstätten"

Zu diesem Tagesordnungspunkt begrüßte der Vorsitzende den Fachbereichsleiter der Sozialverwaltung, Sven Schäfer, der den Ausschussmitgliedern das Bundesprogramm vorstellte.

Das Sportzentrum Loh bildet einen der zentralen sportlichen und sozialen Treffpunkte der Stadt Kirn und des Umlands. Die Anlage wird durch Schulen, Vereine und Freizeitnutzer intensiv genutzt. Der bauliche Zustand ist stark sanierungsbedürftig. Es kommt regelmäßig zu Rohrbrüchen, der Kabinentrakt ist funktional und energetisch veraltet, die Drainage des Hartplatzes arbeitet eingeschränkt und die Flutlichtanlage ist ineffizient und technisch überholt. Im Rahmen der Hartplatzsanierung wird ein Umbau auf einen nachhaltigen Kunstrasen zur uneingeschränkten Nutzung und Attraktivitätssteigerung, insbesondere im Rahmen der interkommunalen Zusammenarbeit der Anlage als sinnvoll erachtet.

Mit dem Projekt sollen die wichtigsten Funktionsbereiche umfassend modernisiert werden, um langfristig eine sichere, barrierefreie, nachhaltige und energieeffiziente Nutzung zu gewährleisten. Die Maßnahmen stärken die regionale Sportinfrastruktur, unterstützen Integration und Jugendförderung und tragen zum gesellschaftlichen Zusammenhalt bei.

Das Förderprogramm und die angedachten Maßnahmen werden durch die Verwaltung vorgestellt.

Beschluss:

Der Haupt- und Finanzausschuss und der Ausschuss für Stadtplanung, Bauwesen und Umweltschutz empfehlen dem Stadtrat der Stadt Kirn:

1.

Die Stadt Kirn nimmt mit dem Projekt „Sanierung Sportzentrum Loh“ am Bundesförderprogramm Sanierung kommunaler Sportstätten (SKS) 2025/2026 teil und beauftragt die Verwaltung mit der fristgerechten Einreichung der Projektskizze über easy-Online.

2.

Die Stadt Kirn erkennt den vorläufigen Kostenrahmen in Höhe von 1.200.000 € (brutto) an.

3.

Die Stadt Kirn stellt – vorbehaltlich der Förderzusage – einen kommunalen Eigenanteil von derzeit geplanten ca. 300.000 € sicher. Eine Anpassung aufgrund von Ausschreibungsergebnissen bleibt vorbehalten.

4.

Die Verwaltung wird beauftragt, im Bedarfsfall mit dem Tennisclub BW Kirn e.V. eine vertragliche Regelung zur Weiterleitung von Fördermitteln gemäß VV § 44 BHO sowie zur Kostenbeteiligung des Vereins abzuschließen.

5.

Ein Vorhabenbeginn gemäß Förderrecht findet erst nach Bewilligungsbescheid statt.

4.): Photovoltaik-Potenziale in Kirn

Der Vorsitzende begrüßte hierzu den Klimaschutzmanager der VG Kirner Land Thomas Stelzig. Herr Stelzig stellte anhand einer PowerPoint Präsentation die Photovoltaik Potenziale vor und beantwortete alle Fragen aus dem Ausschuss.