Titel Logo
"tip" Heidenroder Nachrichten
Ausgabe 7/2025
Mitteilungen aus dem Rathaus
Zurück zur vorigen Seite
Zurück zur ersten Seite der aktuellen Ausgabe

Städtebauliche Entwicklung in Heidenrod, Ortsteil Kemel

Flächennutzungsplanänderung und Ergänzung für den Bereich der ehemaligen Taunuskaserne in Heidenrod-Kemel

hier: Öffentliche Bekanntmachung Aufstellungsbeschluss für die Änderung und Ergänzung des Flächennutzungsplanes zur Schaffung der notwendigen bauplanungsrechtlichen Voraussetzungen für die Erarbeitung eines Bebauungsplanes und die frühzeitige Beteiligung der Bürgerinnen und Bürger.

Gemäß § 2 ff Baugesetzbuch (BauGB) wird öffentlich bekannt gemacht, dass die Gemeinde Heidenrod beabsichtigt, im Ortsteil Kemel für den Bereich der ehemaligen Taunuskaserne ein Sondergebiet zu entwickeln und eine Änderung und Ergänzung des Flächennutzungsplanes für diesen Bereich zu erarbeiten.

Der Geltungsbereich, für den die Gemeindevertretung in ihrer Sitzung am 07.02.2025 einen Aufstellungsbeschluss zur Änderung und Ergänzung des Flächennutzungsplanes gefasst hat, umfasst die Grundstücke in der Gemarkung Kemel wie folgt:

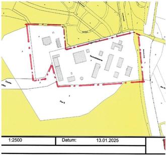
Der Geltungsbereich ist auf dem abgebildeten Ausschnitt aus der Liegenschaftskarte und auf der Übersichtskarte (unmaßstäblich) dargestellt.

Gemäß § 3 ff BauGB wird allen Bürgerinnen und Bürgern die Möglichkeit gegeben, sich über die allgemeinen Ziele und Zwecke der Planung und sich wesentlich unterscheidender Lösungen, für die die Neugestaltung und Entwicklung des Gebietes in Betracht kommen, und die voraussichtlichen Auswirkungen der Planungen, zu informieren.

Alle Bürgerinnen und Bürger erhalten hiermit die Gelegenheit, sich gemäß § 3 BauGB zu informieren. Die Unterlagen können in der Zeit vom

20. Februar 2025 bis 21. März 2025

im Bauamt der Gemeinde Heidenrod, Rathausstraße 9, 65321 Heidenrod-Laufenselden, Zimmer 203, Herrn Zindel, während der nachstehend aufgeführten Dienstzeiten

Montag

08.00 - 12.00 Uhr

Mittwoch

09.00 - 12.00 Uhr u. 14.00 - 18.30 Uhr

Freitag

07.00 - 12.00 Uhr

sowie nach telefonischer Vereinbarung

eingesehen werden.

Die Unterlagen des Aufstellungsbeschlusses inkl. Anlagen sind auch auf der Homepage der Gemeinde unter https://www.heidenrod.de/laufende-verfahren/ eingestellt.

Der Gemeindevorstand der Gemeinde Heidenrod lädt zu einer

Informationsveranstaltung

gemäß § 3 (1) BauGB für

Dienstag, den 25.02.2025, um 19.00 Uhr in die Römerhalle,

An der Römerhalle 1 in 65321 Heidenrod-Kemel

ein.

Im Rahmen der frühzeitigen Bürgerbeteiligung und der Bürgerversammlung wird die beabsichtigte Planung und der Geltungsbereich, für den der Flächennutzungsplan geändert und angepasst werden soll, vorgestellt.

Alle Bürgerinnen und Bürger haben die Möglichkeit, während der vor genannten Auslegungszeit und im Rahmen der Bürgerversammlung Wünsche, Bedenken und Anregungen zur beabsichtigten Aufstellung des Bebauungsplanes vorzutragen. Sie sind mündlich zur Niederschrift oder schriftlich an den Gemeindevorstand der Gemeinde Heidenrod, Rathausstraße 9, 65321 Heidenrod-Laufenselden, zu richten.

Hinweis: Die Veröffentlichung der Aufstellungsbeschlüsse für die Aufstellung eines Bebauungsplanes und der Aufstellung einer Änderung, Ergänzung und Anpassung des seit 1997 gültigen Flächennutzungsplan erfolgt zeitgleich. Auch die Informationsveranstaltungen zu beiden Verfahren finden zeitgleich statt!

Heidenrod, 10. Februar 2025
Der Gemeindevorstand
der Gemeinde Heidenrod
I.A. Zindel, Oberamtsrat

Anlage: Geltungsbereich und Übersichtskarte (unmaßstäblich)