Titel Logo
Gemeinde-Zeitung Waging a See
Ausgabe 10/2024
Amtsblatt der Verwaltungsgemeinschaft Waging a. See
Zurück zur vorigen Seite
Zurück zur ersten Seite der aktuellen Ausgabe
-

Mitteilungen der Verwaltungsgemeinschaft Waging

Amtliche Bekanntmachungen

Inhaltsübersicht:

Markt Waging a. See

Vollzug der Gemeindeordnung (GO)

Erlass einer Friedhofssatzung für den Markt Waging a.See  —  Nr. 27/24

Vollzug der Gemeindeordnung (GO)

Erlass einer Friedhofsgebührensatzung für den Markt Waging a.See  —  Nr. 28/24

Vollzug des Baugesetzbuches (BauGB);

Erlass einer Innenbereichssatzung nach § 34 Abs. 4 Satz 1 Nr. 1 und 3 BauGB

im Ortsteil Holzhausen für die Grundstücke Fl.Nrn. 308, 267, 395/10

und 395/3 und 334 der Gemarkung Otting  —  Nr. 29/24

Vollzug des Baugesetzbuches (BauGB);

1. Änderung einer Außenbereichssatzung gemäß § 35 Abs. 6 BauGB für

den Ortsteil „Bicheln Süd“  —  Nr. 30/24

Gemeinde Taching a. See

Vollzug der Gemeindeordnung (GO)

Erlass einer Nachtragshaushaltssatzung 2024 der Gemeinde Taching a.See  —  Nr. 31/24

Vollzug des Baugesetzbuches (BauGB);  —  Nr. 32/24

4. Änderung des Bebauungsplanes „Tengling-Südwest“

Gemeinde Wonneberg

Vollzug des Baugesetzbuches (BauGB);  —  Nr. 33/24

2. Änderung des Bebauungsplanes „Plattenberg“


Nr. 27/24

Vollzug der Gemeindeordnung (GO);

Erlass einer Friedhofssatzung für den Markt Waging a.See

Satzung über die Benutzung des Friedhofs und der Bestattungseinrichtungen

(Friedhofssatzung – FS)

Aufgrund von Art. 23 und 24 Abs. 1 Nr. 1 und Nr. 2 sowie Abs. 2 der Gemeindeordnung für den Freistaat Bayern (GO) erlässt die Marktgemeinde Waging a. See folgende Satzung:

I. Allgemeine Vorschriften

§ 1 Geltungsbereich

Die Gemeinde errichtet und unterhält die folgenden Einrichtungen für das Bestattungswesen als öffentliche Einrichtungen:

a)

den Friedhof in Waging a. See

b)

das Leichenhaus in Waging a. See

c)

das Bestattungspersonal.

§ 2 Friedhofszweck

Der Friedhof dient insbesondere den verstorbenen Gemeindemitgliedern als würdige Ruhestätte und der Pflege ihres Andenkens.

§ 3 Bestattungsanspruch

(1) Auf dem Friedhof werden beigesetzt

a)

die Verstorbenen, die bei ihrem Ableben in der Gemeinde ihren Wohnsitz hatten,

b)

die Verstorbenen, die ein Nutzungsrecht an einem belegungsfähigen Grab besitzen, und ihre Familienangehörigen (§ 1 Abs. 1 Satz 2 Nr. 1 BestV),

c)

die im Gemeindegebiet Verstorbenen oder tot Aufgefundenen, wenn eine ordnungsgemäße Bestattung anderweitig nicht sichergestellt ist,

d)

Tot- und Fehlgeburten im Sinne des Art. 6 des BestG.

(2) Die Bestattung anderer als der in Abs. 1 genannten Personen bedarf auf Antrag der besonderen Erlaubnis der Friedhofsverwaltung im Einzelfall.

§ 4 Friedhofsverwaltung

Der Friedhof wird von der Gemeinde verwaltet und beaufsichtigt. Der Belegungsplan wird von der Gemeinde so geführt, dass jederzeit festgestellt werden kann, wann mit wem jedes Grab belegt wurde, wer der Grabnutzungsberechtigte ist und für welchen Zeitraum das Nutzungsrecht erworben wurde.

§ 5 Schließung und Entwidmung

(1) Friedhöfe, Friedhofsteile und einzelne Grabstätten können im öffentlichen Interesse ganz oder teilweise geschlossen oder entwidmet werden. Durch die Schließung wird die Möglichkeit weiterer Beisetzungen ausgeschlossen; durch die Entwidmung verliert der Friedhof seine Eigenschaft als öffentliche Bestattungseinrichtung. Besteht die Absicht der Schließung, so werden keine Nutzungsrechte mehr erteilt oder wiedererteilt.

(2) Die Absicht der Schließung, die Schließung selbst und die Entwidmung sind jeweils öffentlich bekannt zu machen.

(3) Die Gemeinde kann die Schließung verfügen, wenn keine Rechte auf Bestattung entgegenstehen, durch Einigung mit den Grabnutzungsberechtigten vorzeitig aufgelöst wurden oder zur Abwehr von Gefahren für die öffentliche Sicherheit aufgehoben worden sind. Die Gemeinde kann die Entwidmung verfügen, soweit keine Rechte auf Bestattung entgegenstehen und alle Ruhefristen abgelaufen sind.

(4) Soweit zur Schließung oder Entwidmung Nutzungsrechte im Einvernehmen mit dem Berechtigten abgelöst werden sollen oder aufgehoben worden sind, sind unter ersatzweiser Einräumung entsprechender Rechte auch Umbettungen ohne Kosten für den Nutzungsberechtigten möglich.

(5) Im Übrigen gilt Art. 11 BestG.

II. Ordnungsvorschriften

§ 6 Öffnungszeiten

(1) Der Friedhof ist während der an den Eingängen bekannt gegebenen Zeiten für den Besucherverkehr geöffnet.

(2) Die Friedhofsverwaltung kann das Betreten des Friedhofs oder einzelner Friedhofsteile aus besonderem Anlass vorübergehend untersagen oder außerhalb der vorgenannten Öffnungszeiten gestatten.

§ 7 Verhalten im Friedhof

(1) Jeder Besucher des Friedhofs hat sich ruhig und der Würde des Ortes entsprechend zu verhalten.

(2) Kinder unter 10 Jahren ist das Betreten des Friedhofs nur in Begleitung Erwachsener gestattet.

(3) Der Anordnung des Friedhofspersonals haben die Besucher Folge zu leisten. Besuchern des Friedhofs ist es insbesondere nicht gestattet

a)

Tiere mitzubringen, ausgenommen sind Blindenhunde,

b)

zu rauchen und zu lärmen,

c)

die Wege mit Fahrzeugen und Sportgeräten aller Art zu befahren. Kinderwagen, Rollstühle und vergleichbare Hilfsmittel zum Transport von Kindern, Kranken und Menschen mit Behinderung sind hiervon ausgenommen.

d)

Waren aller Art sowie gewerbliche oder sonstige Leistungen anzubieten oder diesbezüglich zu werben,

e)

Druckschriften zu verteilen, ausgenommen Druckschriften, die im Rahmen der Bestattungsfeier notwendig und üblich sind,

f)

Abraum und Abfälle an anderen Orten abzulagern, als an den hierfür vorgesehenen Plätzen,

g)

Grabhügel, Grabeinfassungen und Grünanlagen unberechtigt zu betreten und/oder zu beschädigen,

h)

der Würde des Ortes nicht entsprechende Gefäße (z. B. Konservendosen, Plastik- und Glasflaschen sowie ähnliche Gegenstände) auf Gräbern ohne Erlaubnis aufzustellen oder solche Gefäße zwischen den Gräbern aufzubewahren,

i)

an Sonn- und Feiertagen und in der Nähe einer Bestattung störende Arbeiten auszuführen,

j)

Film-, Video- und Fotoaufnahmen von Grabstätten und insbesondere Grabmalen ohne Erlaubnis zu erstellen, zu verwerten und zu verbreiten (z. B. im Internet), außer zu privaten Zwecken.

(4) Die Friedhofsverwaltung kann von den Verboten auf Antrag Ausnahmen zulassen, soweit sie mit dem Zweck des Friedhofs und der Ordnung auf ihm vereinbar sind.

(5) Totengedenkfeiern sind der Friedhofsverwaltung spätestens vier Werktage vorher anzuzeigen und bedürfen der Erlaubnis der Friedhofsverwaltung.

§ 8 Gewerbliche Tätigkeiten auf dem Friedhof

(1) Die Gewerbetreibenden und ihre Gehilfen haben den Regelungen der Friedhofssatzung und den Anweisungen der Friedhofsverwaltung Folge zu leisten. Durch gewerbliche Arbeiten darf die Würde des Friedhofs nicht beeinträchtigt werden; insbesondere ist auf Bestattungsfeierlichkeiten Rücksicht zu nehmen. Nach Beendigung der Arbeiten sind die Arbeits- und Lagerplätze wieder in einen ordnungsgemäßen Zustand zu bringen.

(2) Die Friedhofswege dürfen nur mit Erlaubnis der Friedhofsverwaltung (Antrag nach § 7 Abs. 4) mit den für die Ausführung der Arbeiten oder für den Transport von Arbeitsmitteln erforderlichen Fahrzeugen befahren werden. Die zulässige Höchstgeschwindigkeit im Friedhofsbereich beträgt Schritttempo. Bei anhaltendem Tau- oder Regenwetter kann die Friedhofsverwaltung das Befahren der Friedhofswege mit Fahrzeugen untersagen.

(3) Die gewerblich Tätigen haften für alle Schäden, die sie oder ihre Gehilfen im Zusammenhang mit ihrer Tätigkeit in dem Friedhof schuldhaft verursachen.

(4) Die Ausübung gewerbsmäßiger Tätigkeiten auf dem Friedhof kann durch die Friedhofsverwaltung dauerhaft versagt werden, wenn die ordnungsgemäße Ausführung der Arbeiten nicht gewährleistet ist oder wenn trotz schriftlicher Abmahnung mehrfach gegen die Friedhofssatzung oder Anordnung der Friedhofsverwaltung verstoßen wird. Bei einem schwerwiegenden Verstoß ist eine Abmahnung entbehrlich.

III. Grabstätten und Grabmale

§ 9 Grabstätten

(1) Die Grabstätten stehen im Eigentum der Gemeinde. An ihnen können Rechte nur nach dieser Satzung erworben werden.

(2) Die Anlage der Grabstätten richtet sich nach dem Belegungsplan, der bei der Friedhofsverwaltung innerhalb der allgemeinen Dienstzeiten eingesehen werden kann.

§ 10 Grabarten

(1) Gräber im Sinne dieser Satzung sind

a)

Arkadengrabstätten

b)

Wandgrabstätten (alter Friedhofsteil)

c)

Familiengrabstätten (alter Friedhofsteil)

d)

Familiengrabstätten (neuer Friedhofsteil)

e)

Wandzweiergrabstätten mit Tieferlegung (neuer Friedhofsteil)

f)

Zweiergrabstätten

g)

Einzelgrabstätten

h)

Urnenwand-Erdgrabstätten (neuer Teil)

i)

Urnenwand-Nischengrabstätten (neuer Teil)

j)

Urnennischen (2 Urnen – alter Teil)

k)

Urnennischen (4 Urnen – alter Teil)

l)

Anonyme Urnen-Gemeinschaftsgrabstätte

m)

Urnen-Gemeinschaftsgrabstätte mit Namensnennung )

(2) Die Lage der einzelnen Grabstätten wird durch die Gemeinde bestimmt und richtet sich nach dem Belegungsplan. Der Friedhof ist darin in Grabfelder aufgeteilt. Die einzelnen Grabstätten sind fortlaufend nummeriert. Bestattungen können jeweils nur in den von der Gemeinde freigegebenen Grabfeldern oder deren Teilen erfolgen.

(3) In Einzelgrabstätten und Kindergrabstätten kann in einem Einfachgrab ein Verstorbener, in einem Tiefgrab können maximal zwei Verstorbene übereinander mit gleichzeitig laufenden Ruhefristen beigesetzt werden. Erst nach Ablauf beider Ruhefristen ist eine Neubelegung möglich.

(4) In Zweiergrabstätten können mehrere Verstorbene beigesetzt werden. Die Anzahl der möglichen Beisetzungen Verstorbener richtet sich nach der Lage der Grabstätte. Es wird unterschieden in Einfach- und Tiefgräber. Bei einem Tiefgrab erfolgt die Bestattung übereinander. In einem Einfachgrab beträgt die Zahl der maximal zu bestattenden Verstorbenen zwei nebeneinander, in einem Tiefgrab höchstens vier bei gleichzeitig laufenden Ruhefristen. Erst nach Ablauf beider Ruhefristen für die jeweils übereinander erfolgten Bestattungen ist eine Neubelegung dieses Grabteils möglich. Auf Antrag kann die Gemeinde in begründeten Ausnahmen auch eine Mehrfachgrabstätte vergeben, bei der die Zahl der maximal zu bestattenden Verstorbenen im Einzelfall festgelegt wird.

(5) Die Zuerkennung, Anlage und die Unterhaltung von Ehrengrabstätten obliegt der Gemeinde.

§ 11 Aschenreste und Urnenbeisetzungen

(1) Aschenreste und Urnen müssen den Vorschriften der §§ 17 und 27 BestV entsprechen.

(2) Urnen können in allen Grabstätten gemäß § 10 Abs. 1 beigesetzt werden. Bei einer Erdbestattung von Urnen dürfen maximal 5 Urnen pro Grabstätte zusätzlich bestattet werden. Urnen für Erdbestattungen müssen aus biologisch abbaubarem Material bestehen. Urnen, die über der Erde beigesetzt werden, müssen dauerhaft und wasserdicht sein. Da nach Ablauf von Ruhefrist und Nutzungsrecht die Umbettung der Aschenreste innerhalb des Friedhofes in ein anonymes Grabfeld erfolgt, muss die Aschenkapsel biologisch abbaubar sein.

(3) Anonyme Urnengrabstätten sind Grabstätten für die Beisetzung von Urnen, die der Reihe nach belegt und für die erst anlässlich eines Todesfalles Nutzungsrechte für die Dauer der Ruhefrist eingeräumt werden. In jedem anonymen Urnengrab wird nur eine Urne beigesetzt, bei Urnenerdgräbern muss die Urne aus biologisch abbaubarem Material bestehen. Die Abräumung von anonymen Urnengräbern über der Erde wird nach Ablauf der Ruhefrist durch die Gemeinde durchgeführt. Die Graboberfläche des anonymen Urnengrabes wird durch die Gemeinde gestaltet und gepflegt. Grabsteine, Blumenschmuck oder sonstige Ausstattungen dürfen auf oder vor dem anonymen Urnengrab nicht angebracht werden.

(4) In einer Urnengrabstätte dürfen die Aschenreste mehrerer Verstorbener einer Familie (vgl. § 1 Abs. 1 Satz 2 Nr. 1 BestV) beigesetzt werden.

(5) Für das Nutzungsrecht an Urnengrabstätten gelten die §§ 13 und 14 entsprechend.

(6) Wird das abgelaufene Nutzungsrecht an der Grabstätte, in der die Urne bestattet ist, nicht mehr verlängert, ist die Gemeinde berechtigt, bei Räumung oder Wiederbelegung der Grabstätte, an der von ihr bestimmten Stelle des Friedhofs (z. B. anonymes Urnengemeinschaftsgrab) die Aschenreste in würdiger Weise der Erde zu übergeben und evtl. vorhandene Urnen dauerhafter und wasserdichter Art zu entsorgen.

§ 12 Größe der Grabstätten

Für die Einteilung der Grabstätten ist der Belegungsplan maßgebend. Die Gräber werden nach den jeweils erforderlichen Ausmaßen ausgehoben. Die einzelnen Grabstätten haben folgende Ausmaße, Abstände und Tiefen:

§ 13 Rechte an Grabstätten

(1) An einer belegungsfähigen Grabstätte kann ein Nutzungsrecht erworben werden. Das Nutzungsrecht wird mindestens auf die Dauer der Ruhefrist verliehen, wenn der Erwerb anlässlich eines Todesfalles erfolgt.

(2) Das Nutzungsrecht an den Grabstätten wird nur an einzelne natürliche und volljährige Personen nach Entrichtung der Grabnutzungsgebühr (siehe Friedhofsgebührensatzung – FGS) verliehen, worüber dem Nutzungsberechtigten eine Urkunde ausgestellt wird (Graburkunde).

(3) Das Nutzungsrecht an Grabstätten kann gegen erneute Zahlung der entsprechenden Grabnutzungsgebühr um weitere 6 bzw. 12 Jahre verlängert werden, wenn der Nutzungsberechtigte vor Ablauf des Rechtes die Verlängerung bei der Friedhofsverwaltung beantragt und der Platzbedarf des Friedhofs es zulässt.[1]

(4) Nach Erlöschen des Nutzungsrechtes kann die Gemeinde über die Grabstätten anderweitig verfügen. Hierüber werden die bisherigen Nutzungsberechtigten rechtzeitig von der Gemeinde benachrichtigt.

(5) In den Fällen, in denen die Ruhefrist des zu bestattenden Sarges oder der Urne über die Zeit hinausreicht, für die das Recht an einem Grabplatz besteht, ist das Nutzungsrecht im Voraus mindestens für die Dauer der vorgeschriebenen Ruhefrist zu erwerben.

(6) Nach Ablauf der Ruhefrist kann der Grabnutzungsberechtigte aus wichtigem Grund auf ein darüber hinaus verliehenes Grabnutzungsrecht verzichten. Der Verzicht wird erst mit schriftlicher Annahme der Verzichtserklärung durch den Friedhofsträger wirksam.

(7) Jede Änderung der Anschrift des Nutzungsberechtigten ist der Friedhofsverwaltung mitzuteilen.

§ 14 Übertragung von Nutzungsrechten

(1) Zu Lebzeiten des Nutzungsberechtigten kann die Umschreibung eines Grabnutzungsrechtes der Ehegatte, der eingetragene Lebenspartner oder ein Familienmitglied (vgl. § 1 Abs. 1 Satz 2 Nr. 1 BestV) beanspruchen, wenn der Nutzungsberechtigte zugunsten dieses Angehörigen schriftlich auf das Grabnutzungsrecht verzichtet hat.

(2) Nach dem Tode des Nutzungsberechtigten kann derjenige die Umschreibung eines laufenden Grabnutzungsrechtes auf seinen Namen beanspruchen, dem es vom Nutzungsberechtigten in einer letztwilligen, rechtsgültigen Verfügung zugewendet wurde. Bei einer Verfügung zu Gunsten mehrerer Personen hat die erstgenannte Person Vorrang. Stirbt der Nutzungsberechtigte, ohne eine Verfügung hinterlassen zu haben, so kann das Nutzungsrecht auf Antrag auf die in § 1 Abs. 1 Satz 2 Nr. 1 BestV genannten bestattungspflichtigen Personen übertragen werden. Innerhalb der Reihenfolge des § 1 Abs. 1 Satz 2 Nr. 1 BestV hat bei gleichrangigen Personen die ältere Person Vorrecht vor der jüngeren. Haben Vorberechtigte innerhalb von sechs Monaten keinen Antrag auf Übertragung des Nutzungsrechts gestellt, so wird das Nutzungsrecht auf Antrag einer nachberechtigten Person verliehen. Stimmen alle Vorberechtigten zu, so kann das Nutzungsrecht auch in begründeten Einzelfällen auf einen dem Verstorbenen nahestehenden Dritten (z. B. Lebensgefährten oder Stiefkind) übertragen werden.

(3) Über die Umschreibung erhält der neue Grabnutzungsberechtigte eine Urkunde (Graburkunde).

(4) Der Anspruch auf Übertragung des Nutzungsrechts erlischt, wenn alle Berechtigten die Übernahme ablehnen oder es kein Berechtigter innerhalb eines Jahres seit Beisetzung des verstorbenen Nutzungsberechtigten übernimmt. In diesem Fall kann die Grabstätte während der Ruhefrist zur Betreuung an Personen überlassen werden, die zu dem Bestatteten eine persönliche Verbindung hatten.

(5) Bei Grabstätten, an denen nach einer Bestattung niemand das Grabnutzungsrecht nach Abs. 2 oder das Betreuungsrecht nach Abs. 4 Satz 2 übernimmt, sorgt die Friedhofsverwaltung auf Kosten eines Verpflichteten (Erbe bzw. Bestattungspflichtiger gem. § 1 Abs. 1 Satz 2 Nr. 1 BestV) für die Erstanlage der Grabstätte durch Aufstellen eines einfachen bzw. mehrfach verwendbaren Grabmals und Pflanzen einer pflegearmen Begrünung. Gegen vollständigen Kostenersatz können Grabnutzungsrecht und Grabmal erworben werden.

§ 15 Pflege und Instandhaltung der Gräber

(1) Jede Grabstätte ist spätestens 6 Monate nach der Beisetzung bzw. nach der Verleihung des Nutzungsrechtes würdig herzurichten, gärtnerisch anzulegen und in diesem Zustand zu erhalten. Die Anlegung von Grabhügeln ist nicht gestattet.

(2) Bei allen Grabstätten sind der Nutzungsberechtigte oder – sofern dieser verstorben ist – die in § 14 Abs. 2 genannten Personen zur ordnungsgemäßen Anlage, Pflege und Instandhaltung des Grabes verpflichtet.

(3) Kommt der Nutzungsberechtigte oder der sonst Verpflichteten (siehe § 14 Abs. 2) seiner Verpflichtung nicht nach, kann ihn die Friedhofsverwaltung unter Fristsetzung auffordern, den ordnungsgemäßen Zustand herzustellen. Nach Ablauf der Frist können zur Herbeiführung des ordnungsgemäßen Zustandes erforderliche Maßnahmen auf Kosten des Verpflichteten getroffen werden (Ersatzvornahme, § 31).

(4) Ist der Aufenthalt des Nutzungsberechtigten oder der Aufenthalt bzw. die Existenz des sonst Verpflichteten nicht bekannt, ist die Friedhofsverwaltung nach Ablauf eines Jahres seit Vorliegen dieser Voraussetzung berechtigt, die Grabstätte auf Kosten eines Verpflichteten gem. § 14 Abs. 2 in einen ordnungsgemäßen Zustand zu versetzen oder abzuräumen und einzuebnen.

§ 16 Gärtnerische Gestaltung der Gräber

(1) Zur Bepflanzung der Grabstätten sind nur geeignete Gewächse zu verwenden, welche die benachbarten Gräber und Anpflanzungen nicht beeinträchtigen. Die Höhe und Form der Bepflanzung und die Art ihrer Gestaltung sind dem Gesamtbild des Friedhofs, dem besonderen Charakter des Friedhofsteils und der unmittelbaren Umgebung anzupassen.

(2) Anpflanzungen aller Art neben den Gräbern werden ausschließlich von der Gemeinde ausgeführt. In besonderen Fällen können Ausnahmen von der Gemeinde zugelassen werden, wenn benachbarte Gräber nicht beeinträchtigt werden.

(3) Das Anpflanzen hochgewachsener Gehölze (Zwergsträucher, strauch- oder baumartige Pflanzen, Bäume) auf den Gräbern bedarf der Erlaubnis der Gemeinde.

(4) Alle gepflanzten Gehölze gehen entschädigungslos in die Verfügungsbefugnis der Gemeinde über, wenn sie vom Nutzungsberechtigten nach Ablauf der Ruhefrist oder des Nutzungsrechts nicht abgeräumt worden sind. Der Schnitt und die Beseitigung zu stark wachsender oder absterbender Bäume und Sträucher kann angeordnet werden. Wird die notwendige Maßnahme nicht innerhalb der hierfür dem Nutzungsberechtigten gesetzten Frist durchgeführt, so werden die Arbeiten von der Friedhofsverwaltung auf seine Kosten durchgeführt (Ersatzvornahme, § 31).

(5) Verwelkte Blume und verdorrte Kränze sind von den Grabstätten zu entfernen und an den dafür vorgesehenen Plätzen abzulegen.

§ 17 Erlaubnisvorbehalt für Grabmale und bauliche Anlagen

(1) Die Errichtung von Grabmalen und sonstigen baulichen Anlagen oder deren Änderung bedarf – unbeschadet sonstiger Vorschriften – der Erlaubnis der Gemeinde. Die Gemeinde ist berechtigt, soweit das zur Wahrung der Rechte anderer notwendig ist und der Friedhofszweck es erfordert, Anordnungen zutreffen, die sich auf Einfriedungen, Einfassungen und sonstige bauliche Anlagen beziehen.

(2) Die Erlaubnis ist rechtzeitig vor Anfertigung oder Veränderung des Grabmales oder der baulichen Anlage bei der Gemeinde durch den Grabnutzungsberechtigten zu beantragen, wobei die Maße des § 12 zugrunde zu legen sind. Dem Antrag ist zweifach beizufügen:

a)

der maßstabsgetreue Grabmalentwurf bzw. der maßstabsgetreue Entwurf der baulichen Anlage mit Grundriss und Seitenansicht unter Angabe des Materials, seiner Bearbeitung, des Inhalts, der Form und der Anordnung;

b)

eine maßstabsgetreue Zeichnung der Schrift, der Ornamente und der Symbole unter Angabe des Materials, seiner Bearbeitung, des Inhalts, der Form, der Farbe und der Anordnung.

(3) Die Erlaubnis kann versagt werden, wenn die Anlage nicht den Vorschriften der §§ 18 und 19 dieser Satzung entspricht.

(4) Ohne Erlaubnis aufgestellte Grabmale und sonstige bauliche Anlagen sind nach schriftlicher Aufforderung an den Nutzungsberechtigten unter angemessener Fristsetzung zu entfernen. Ist der Aufenthalt des Nutzungsberechtigten oder der Aufenthalt bzw. die Existenz des sonst Verpflichteten nach § 14 Abs. 2 nicht bekannt, ergeht eine befristete öffentliche Aufforderung. Kommt der Nutzungsberechtigte nicht fristgerecht der Aufforderung nach, so ist die Gemeinde berechtigt auf Kosten des Nutzungsberechtigten oder sonst Verpflichteten das Grabmal zu entfernen und zu verwerten, wenn es den sicherheitsrechtlichen Anforderungen nicht genügt oder den gestalterischen Merkmalen der §§ 18 und 19 widerspricht (Ersatzvornahme, § 31).

(5) Die nicht erlaubnispflichtigen provisorischen Grabmale sind nur als naturlasierte Holztafeln oder -kreuze zulässig und dürfen nicht länger als ein Jahr nach der Beisetzung verwendet werden.

§ 17a Verbot von Grabsteinen aus ausbeuterischer Kinderarbeit

Grabsteine und Grabeinfassungen aus Naturstein dürfen nur aufgestellt werden, wenn sie ohne schlimmste Formen von Kinderarbeit im Sinne von Art. 3 des Übereinkommens Nr. 182 der Internationalen Arbeitsorganisation vom 17. Juni 1999 über das Verbot und unverzügliche Maßnahmen zur Beseitigung der schlimmsten Formen der Kinderarbeit (BGBl. 2001 II S. 1290, 1291) hergestellt worden sind und hierfür ein Nachweis gemäß Art. 9a Abs. 2 BestG in der jeweils geltenden Fassung vorgelegt wird. Die Herstellung im Sinne dieser Vorschrift umfasst sämtliche Bearbeitungsschritte von der Gewinnung des Natursteins bis zum Endprodukt. Eines Nachweises gemäß Satz 1 bedarf es nicht, wenn der Letztveräußerer glaubhaft macht, dass die Grabsteine oder Grabeinfassungen aus Naturstein oder deren Rohmaterial vor dem 1. September 2016 in das Bundesgebiet eingeführt wurden.

§ 18 Größe von Grabmalen und Einfriedungen

(1) Die Grabmale dürfen die Breite des Grabes und folgende Höhen nicht überschreiten:

Im alten Friedhofsteil:

a) Arkaden- und Wandgrabstätten  —  2,00 m

b) Einzelgrabstätten  —  1,30 m

c) Zweiergrabstätten  —  1,50 m

d) Familiengrabstätten  —  1,50 m

Im neuen Friedhofsteil:

e) Einzelgrabstätten  —  1,30 m

f) Zweiergrabstätten  —  1,30 m

g) Familiengrabstätten  —  1,30 m

h) Zweierwandgrabstätten  —  1,30 m

i) Urnenwandgrabstätten  —  0,56 m

j) Urnennischengrabstätten  —  0,56 m

(2) Eine Überschreitung ist im Einzelfall zulässig, sofern sie mit den Bestimmungen der §§ 19 und 20 dieser Satzung und dem Friedhofszweck vereinbar ist und die Gemeinde die Erlaubnis erteilt.

(3) Zur Gestaltung im Friedhof gehören auch die nach der Bayerischen Bauordnung und dem Denkmalschutzgesetz geschützten öffentlichen Belange der Gesamtgestaltung des Friedhofs und seines orts- und landschaftsgebundenen Erscheinungsbildes (Ensemble).

§ 19 Grabmalgestaltung im alten Friedhofsteil

(1) Die Grabmäler im alten Friedhofsteil ohne Gestaltungsvorschriften unterliegen in ihrer Gestaltung, Bearbeitung und Anpassung an die Umgebung keinen besonderen Anforderungen. Das Grabdenkmal muss aber so gestaltet sein, dass die Würde des Friedhofes als Ruhestätte der Toten und eine harmonische Einfügung des Grabmals in die Gesamtanlage des Friedhofs gewährleistet bleiben. Es darf nicht verunstaltend oder ärgerniserregend wirken.

(2) In den einzelnen Grabfeldern müssen die Rückseiten der Denkmäler und Sockel genau in Reihenflucht gesetzt werden.

3) Nicht gestattet sind Inschriften, die der Weihe des Ortes nicht entsprechen. Verboten ist jegliches Ausmalen von Grabsteinen und das Ausmalen von Inschriften und Ornamenten mit aufdringlichen Farben.

4) Bei den Urnenwand-Nischengrabstätten werden die Wandgedenkplatten vom Markt gestellt; es dürfen nur diese einheitlichen Schriftplatten und keine zusätzlichen Steine oder Ornamente an der Wand angebracht werden. Die Beschriftung ist nur mit einheitlichen Bronzebuchstaben bzw. mit einheitlicher Gravur zugelassen. Die Bronzebuchstaben müssen eine einheitliche Schriftgröße von 25 mm aufweisen. Bei einer Gravur der Gedenkplatte gilt diese Größe sinngemäß.

5) § 23 bleibt hiervon unberührt.

§ 20 Grabmalgestaltung im neuen Friedhofsteil

1) Alle Grabdenkmäler im neuen Friedhofsteil unterliegen den Gestaltungsvorschriften. Jede Grabstätte ist unbeschadet der besonderen Anforderungen so zu gestalten und so an die Umgebung anzupassen, dass die Würde des Friedhofes, sowohl in seinen einzelnen Teilen als auch hinsichtlich der Gesamtanlage, gewahrt wird.

2) Bei der Errichtung der Veränderung von Grabanlagen sind insbesondere nicht zugelassen:

a)

farbauffällige und grellweiße Steine,

b)

schwarze und annähernd schwarze Steine, deren Oberfläche spiegelt,

c)

Grabplatten oder liegende Steine,

d)

Tropfsteine, Kunststeine und Kunststoffe,

e)

verputztes und unverputztes Mauerwerk,

f)

Glasplatten,

g)

Glasmosaike, Glasbuchstaben, Keramiken, Terrakotten, Porzellan-, Kunststein-, Kunststoff- und Gipsarbeiten,

h)

Anstriche und Gemälde,

i)

Schriften, Symbole und Ornamente in auffallender Farbe, Gestaltung und Anordnung,

j)

Holzkreuze mit einer Stammbreite von mehr als 8 % der Gesamthöhe und sog. Totenbretter mit mehr als 40 cm Breite.

3) Für die Grabdenkmäler sind nur folgende Materialien zugelassen:

a)

Natursteine:

Tuff, Travertin, Muschelkalk, Donau- und Jurakalk, Euvilles, Dolomit, Unterberger und Ruhpoldinger Marmor, Sandstein und Granit (handgearbeitet, nicht geschurrt) sowie andere Natursteine, die den hier aufgeführten hinsichtlich Struktur und Farbe ähnlich sind.

b)

Holz,

c)

Schmiedeeisen.

4) Inhalt und Ausführung der Inschrift müssen der Würde des Friedhofes in besonderem Maße entsprechen.

5) Für die Gestaltung von Steingrabmälern gelten folgende weitere Bestimmungen:

a)

Grabsteine müssen aus einem einheitlichen Material, mindestens 18 cm stark, hergestellt sein und dürfen keinen Sockel haben.

b)

Die Steine müssen allseitig handwerklich bearbeitet sein; polierte und gespritzte Steine sind nicht zulässig, ausgenommen das gestalterische Element für Schriften, Ornamente und Symbole in angemessener Größe zum Grabstein.

c)

Abdeckungen aus Metall, Holz oder einem sonstigen Material sind nicht zulässig.

6) Der neue Friedhofsteil bleibt in der Gesamtanlage ein Rasenfriedhof. Es ist nicht gestattet, innerhalb oder außerhalb der Einfassung die Grabstätte mit Kies, Edelsplitt oder dergleichen aufzuschütten, auch dürfen die Grabfelder nicht mit Platten abgedeckt werden. Der angelegte Rasen wird vom Markt unterhalten.

7) Bei den Urnenwand- und Urnennischengrabstätten werden die Wandgedenkplatten vom Markt gestellt; es dürfen nur diese einheitlichen Schriftplatten und keine zusätzlichen Steine oder Ornamente an der Wand angebracht werden. Die Beschriftung ist nur mit Bronzebuchstaben zugelassen.

8) Soweit es der Friedhofsträger unter Beachtung des § 23 für vertretbar hält, kann er Ausnahmen von den Vorschriften des Abs. 2 bis 5 und auch sonstige bauliche Anlagen als Ausnahme im Einzelfall zulassen.

§ 21 Gründung, Erhaltung und Entfernung von Grabmalen

(1) Jedes Grabmal muss seiner Größe entsprechend dauerhaft und standsicher gegründet werden. Die Fundamente sind nach den neuesten Bestimmungen und den anerkannten Regeln der Baukunst durch fachkundige Firmen zu setzen. Maßgeblich für die bei der Errichtung der Grabmale und der jährlichen Standsicherheitsprüfung geltenden anerkannten Regeln der Baukunst ist die Technische Anleitung zur Standsicherheit von Grabmalanlagen (TA-Grabmal) der Deutsche Naturstein Akademie e.V. (DENAK) sowie deren Anlage B (Anleitung zur Standsicherheitsprüfung von Grabmalen des Verbandes der Friedhofsverwalter Deutschlands e.V.) in der jeweils gültigen Fassung. Für alle neu errichteten, versetzten und reparierten Grabmale hat der Steinmetz oder sonstige Gewerbetreibende mit gleichwertiger Qualifikation eine Eingangskontrolle mit der jeweiligen Gebrauchslast durchzuführen. Der Prüfablauf ist nachvollziehbar zu dokumentieren. Spätestens sechs Wochen nach Fertigstellung der Grabmalanlage ist die Abnahmebescheinigung mit dem Prüfvermerk entsprechend den Anforderungen der TA-Grabmal durch den Nutzungsberechtigten der Friedhofsverwaltung vorzulegen.

(2) Der Grabnutzungsberechtigte hat das Grabmal in einem ordnungsgemäßen, sicheren Zustand zu erhalten. Er ist für Schäden verantwortlich, die insbesondere durch Umfallen des Grabmales oder Abstürzen von Teilen desselben verursacht werden. Grabmale, die sich nicht in einem ordnungsgemäßen Zustand befinden, können nach vorangegangener schriftlicher Aufforderung auf Kosten des Nutzungsberechtigten oder der in § 14 Abs. 2 genannten Personen instandgesetzt oder entfernt werden, wenn die Wiederherstellung verweigert oder innerhalb der gesetzten Frist nicht durchgeführt wird (Ersatzvornahme, § 31). Kann aufgrund der akut drohenden Gefahr durch ein nicht standsicheres Grabmal eine schriftliche Aufforderung an den Nutzungsberechtigten zur Wiederherstellung der Standsicherheit unter Fristsetzung nicht abgewartet werden, ist der Friedhofsträger berechtigt, die Gefahrenstelle abzusperren, das Grabmal provisorisch zu sichern oder umzulegen.

(3) Der Nutzungsberechtigte und die in seinem Auftrag handelnden Personen haften für jede durch die Errichtung von Grabmalen und baulichen Anlagen entstehenden Beschädigungen der Grab- und Friedhofsanlagen.

(4) Grabmale und bauliche Anlagen (§ 17 und § 18) dürfen vor Ablauf der Ruhefrist oder des Nutzungsrechts nur mit vorheriger Erlaubnis der Gemeinde entfernt werden.

(5) Nach Ablauf der Ruhefrist und des Nutzungsrechts sind die Grabmale nach einer entsprechenden Aufforderung der Gemeinde durch den vorher Nutzungsberechtigten oder den nach § 14 Abs. 2 Verpflichteten innerhalb von drei Monaten zu entfernen. Die Grabstätten sind einzuebnen. Kommt der Nutzungsberechtigte oder der sonst Verpflichtete seiner Verpflichtung nicht nach, kann ihn die Friedhofsverwaltung unter erneuter Fristsetzung auffordern, den ordnungsgemäßen Zustand herzustellen. Nach Ablauf der Frist können zur Herbeiführung des ordnungsgemäßen Zustandes erforderliche Maßnahmen auf Kosten des vormals Nutzungsberechtigten oder sonst Verpflichteten getroffen werden (Ersatzvornahme, § 31). Ist der Aufenthalt des Nutzungsberechtigten oder der Aufenthalt bzw. die Existenz des sonst Verpflichteten nicht bekannt, ergeht eine befristete öffentliche Aufforderung. Nach Ablauf dieser Frist ist die Friedhofsverwaltung berechtigt, die Grabstätte auf Kosten des Nutzungsberechtigten oder eines Verpflichteten abzuräumen und einzuebnen. Grabmale, Einfriedungen und sonstiger Grabschmuck gehen infolge der Eigentumsaufgabe durch den vormals Nutzungsberechtigten in das Eigentum des Friedhofsträgers über.

(6) Künstlerisch oder geschichtlich wertvolle Grabmale und bauliche Anlagen oder solche, die als besondere Eigenart des Friedhofs aus früheren Zeiten gelten, unterstehen dem besonderen Schutz der Gemeinde. Die Entfernung oder Änderung solcher Anlagen auch nach Ablauf der Ruhefrist und des Grabnutzungsrechts bedarf der besonderen Erlaubnis der Gemeinde.

IV. Bestattungsvorschriften

§ 22 Leichenhaus

(1) Das Leichenhaus dient der Aufbewahrung der Leichen, bis sie bestattet oder überführt werden und zur Aufbewahrung von Aschenresten feuerbestatteter Verstorbener bis zur Beisetzung im Friedhof. Es darf nur mit Erlaubnis der Friedhofsverwaltung und in Begleitung eines Vertreters des Friedhofspersonals betreten werden.

(2) Die Verstorbenen werden im Leichenhaus aufgebahrt. Sofern keine gesundheitsaufsichtlichen oder sonstigen Bedenken bestehen, können die Hinterbliebenen die Verstorbenen während der festgesetzten Zeiten sehen. Die Bestattungspflichtigen (§ 15 BestV) entscheiden, ob die Aufbahrung im offenen oder geschlossenen Sarg erfolgt. Wird darüber keine Bestimmung getroffen, bleibt der Sarg geschlossen. Dies gilt auch bei entsprechender Anordnung des Amts- oder Leichenschauarztes. Leichen von Personen, die bei Eintritt des Todes an einer übertragbaren Krankheit im Sinne des Infektionsschutzgesetzes erkrankt waren, werden in einem gesonderten Raum untergebracht. Der Zutritt zu diesem Raum und die Besichtigung der Leichen bedürfen der vorherigen Erlaubnis des Amtsarztes.

(3) Für die Beschaffenheit von Särgen, Sargausstattungen, Urnen und für die Bekleidung von Leichen gelten die Vorschriften des § 30 BestV.

§ 23 Leichenhausbenutzungszwang

(1) Jede Leiche ist, sofern die Bestattung nicht auf den kirchlichen Friedhöfen in Otting oder Tettenhausen erfolgt, spätestens 24 Stunden vor der Bestattung in das gemeindliche Leichenhaus zu verbringen.

(2) Dies gilt nicht, wenn

a)

der Tod in einer Anstalt (z. B. Krankenhaus, Klinik, Alten- bzw. Pflegeheim u. a.) eingetreten ist und dort ein geeigneter Raum für die Aufbewahrung der Leiche vorhanden ist,

b)

die Leiche zum Zwecke der Überführung an einen auswärtigen Bestattungsort freigegeben und innerhalb einer Frist von 24 Stunden überführt wird,

c)

die Leiche in einem privaten Krematorium verbrannt werden soll und sichergestellt ist, dass die Voraussetzungen des § 17 BestV vom Träger der Bestattungsanlage geprüft werden.

§ 24 Leichentransport

Zur Beförderung von Leichen im Gemeindegebiet sind Leichenwagen zu benutzen. Die Beförderung der Leichen hat durch ein geeignetes Bestattungsunternehmen zu erfolgen. Für die Anforderungen an die Sargbeschaffenheit und das Bestattungsfahrzeug gelten die §§ 12 und 13 BestV.

§ 25 Leichenbesorgung

Reinigen, Ankleiden und Einsargen der Leichen hat durch einen geeigneten Bestatter zu erfolgen.

§ 26 Friedhofs- und Bestattungspersonal

(1) Die im unmittelbaren Zusammenhang mit der Bestattung stehenden Verrichtungen auf dem gemeindlichen Friedhof werden von der Gemeinde hoheitlich ausgeführt und insoweit ein Benutzungszwang angeordnet. Dies gilt insbesondere für

a)

das Ausheben und Verfüllen des Grabes,

b)

das Versenken des Sarges,

c)

die Beisetzung von Urnen,

d)

die Überführung des Sarges/der Urne von der Halle zur Grabstätte einschließlich der Stellung der Träger,

e)

die Ausgrabung und Umbettung (Exhumierung von Leichen und Gebeinen sowie Urnen) einschließlich notwendiger Umsargungen,

f)

das Ausschmücken des Aufbahrungsraums und der Aussegnungshalle (Grundausstattung mit Trauerschmuck).

Die Gemeinde kann mit der Durchführung der hoheitlichen Tätigkeiten ein Bestattungsunternehmen als Erfüllungsgehilfen beauftragen.

(2) Auf Antrag kann die Gemeinde von der Inanspruchnahme des Trägerpersonals nach Abs. 1d) und der Ausschmückung nach Abs. 1f) befreien.

§ 27 Bestattung

Bestattung im Sinne dieser Satzung ist die Erdbestattung von Leichen oder Leichenteilen sowie die Beisetzung von Aschenurnen unter der Erde bzw. in Urnenfächern und Grabkammern. Die Bestattung ist durchgeführt, wenn das Grab verfüllt oder das Urnenfach/die Grabkammer geschlossen ist.

§ 28 Anzeigepflicht und Bestattungszeitpunkt

(1) Bestattungen sind unverzüglich nach Eintritt des Todes der Gemeinde anzuzeigen; die erforderlichen Unterlagen sind vorzulegen.

(2) Den Zeitpunkt der Bestattung setzt die Gemeinde im Benehmen mit den Hinterbliebenen, dem Bestattungsunternehmen und ggf. mit dem zuständigen Pfarramt fest.

§ 29 Ruhefrist

Die Ruhefrist für Kindergräber wird auf 6 Jahre, für alle anderen Gräber auf 12 Jahre festgesetzt. Die Ruhefrist für Urnengrabstätten und Urnengrabfächer beträgt 12 Jahre. Die Ruhefrist beginnt am Tag der Bestattung.

§ 30 Exhumierung und Umbettung

(1) Die Exhumierung und Umbettung von Leichen und Urnen bedarf unbeschadet sonstiger gesetzlicher Vorschriften der vorherigen Erlaubnis der Gemeinde.

(2) Soweit Exhumierungen von Leichen nicht vom Gericht oder einer Behörde angeordnet werden, sollen sie nur in den Monaten Oktober bis März und zwar außerhalb der Besuchszeiten erfolgen.

(3) Zur Exhumierung und Umbettung bedarf es eines Antrages des Grabnutzungsberechtigten.

(4) Angehörige und Zuschauer dürfen der Exhumierung bzw. Umbettung nicht beiwohnen.

(5) Im Übrigen gilt § 21 BestV.

V. Schlussbestimmungen

§ 31 Ersatzvornahme

(1) Der Friedhofsträger kann zur Erfüllung der nach dieser Satzung bestehenden Verpflichtungen Anordnungen für den Einzelfall erlassen. Diesen Anordnungen ist unverzüglich Folge zu leisten.

(2) Werden die in dieser Satzung festgelegten Handlungspflichten nicht rechtzeitig erfüllt, kann die Gemeinde die Handlung auf Kosten des Pflichtigen vornehmen oder vornehmen lassen. Die Ersatzvornahme ist vorher schriftlich anzudrohen. Dabei ist eine angemessene Frist zu setzen. Ist der Aufenthaltsort des Pflichtigen nicht mehr zu ermitteln, so ersetzt die öffentliche Bekanntmachung die an den Pflichtigen adressierte schriftliche Androhung. Einer vorherigen Androhung und einer Fristsetzung bedarf es nicht, wenn der Pflichtige nicht erreichbar ist und die Ersatzvornahme zur Abwehr einer drohenden Gefahr notwendig ist.

§ 32 Haftungsausschluss

Die Gemeinde übernimmt für die Beschädigungen, die durch nicht satzungsgemäße Benutzung der Friedhofsanlagen entstehen und für Schäden, die durch Beauftragte dritter Personen verursacht werden, keine Haftung.

§ 33 Zuwiderhandlungen

Nach Art. 24 Abs. 2 Satz 2 GO i. V. mit § 17 OWiG kann mit Geldbuße von mindestens fünf Euro und höchstens eintausend Euro belegt werden wer:

a)

den Vorschriften über den Benutzungszwang zuwiderhandelt,

b)

die erforderliche Erlaubnis der Gemeinde nicht einholt,

c)

die erstmalige Anlage, Pflege und Instandhaltung der Grabstätten nach den §§ 15 bis 21 nicht satzungsgemäß vornimmt,

d)

sich entgegen den Bestimmungen dieser Satzung nicht ruhig und der Würde des Ortes entsprechend verhält oder die festgelegten Verbote missachtet.

§ 34 Inkrafttreten

Diese Satzung tritt am 01.01.2025 in Kraft. Gleichzeitig tritt die Satzung vom 23.03.1992 außer Kraft.

Markt Waging a. See, 20.09.2024
Matthias Baderhuber
1. Bürgermeister

Nr. 28/24

Vollzug der Gemeindeordnung (GO);

Erlass einer Friedhofsgebührensatzung (FGS) für den Markt Waging a. See

Friedhofsgebührensatzung (FGS)

des Marktes Waging a. See

Aufgrund von Art. 2 und 8 des Kommunalabgabengesetzes und Art. 20 des Kostengesetzes erlässt der Markt Waging a. See folgende Satzung:

§ 1 Gebührenpflicht und Gebührenarten

(1)

Der Markt erhebt für die Inanspruchnahme ihrer Bestattungseinrichtungen sowie für damit in Zusammenhang stehende Amtshandlungen Gebühren.

(2)

Als Friedhofsgebühren werden erhoben:

a)

Grabnutzungsgebühren (§ 4),

b)

Leichenhausgebühren (§ 5),

c)

Bestattungsgebühren (§ 6),

d)

sonstige Gebühren (§ 7).

§ 2 Gebührenpflichtiger

(1)

Gebührenpflichtiger ist,

a)

wer zur Tragung der Bestattungskosten gesetzlich verpflichtet ist,

b)

wer den Antrag auf Benutzung der Bestattungseinrichtung gestellt hat,

c)

wer das Nutzungsrecht an einer Grabstätte erwirbt,

d)

wer den Auftrag zu einer Leistung erteilt hat.

(2)

Mehrere Gebührenpflichtige für die jeweilige Leistung sind Gesamtschuldner.

(3)

Bei Verlängerung des Grabnutzungsrechtes sind die Grabnutzungsgebühren vom Grabnutzungsberechtigten zu tragen.

§ 3 Entstehen und Fälligkeit

(1)

Die Grabnutzungsgebühr entsteht mit der Zuteilung oder der Verlängerung des Nutzungsrechts eines Grabs, und zwar

a)

bei der erstmaligen Zuteilung des Nutzungsrechts für die Dauer der Ruhefrist nach § 29 Friedhofssatzung,

b)

bei der Verlängerung des Nutzungsrechts nach Ablauf der Ruhefrist für den Zeitraum der Verlängerung,

c)

bei Bestattung einer Leiche oder Beisetzung einer Urne in einem Grab, für das die Nutzungszeit noch nicht abgelaufen ist, für die Zeit vom Ablauf des bisherigen Nutzungsrechts bis zum Ablauf der neuen Ruhefrist. Die Berechnung erfolgt monatsgenau und beginnt jeweils mit dem 1. des folgenden Monats.

(2)

Die Bestattungsgebühren (§ 6) entstehen mit der Inanspruchnahme der gebührenpflichtigen Leistung.

(3)

Die sonstigen Gebühren (§ 7) entstehen mit der Erbringung der Leistung durch die Friedhofsverwaltung.

(4)

Die Gebühr wird einen Monat nach Bekanntgabe des Gebührenbescheids fällig.

§ 4 Grabnutzungsgebühren

(1)

Die Grabnutzungsgebühr beträgt für die gesamte Nutzungsdauer gemäß § 29 FS für

a)

b)

c)

d)

e)

f)

g)

h)

i)

j)

k)

l)

m)

(2)

Eine Verlängerung des Grabnutzungsrechtes für 6 Jahre ist möglich. Hierfür wird die Grabnutzungsgebühr für die gesamte Nutzungsdauer erhoben. Bei einer Verlängerung der Ruhefrist wegen einer weiteren Belegung der Grabstätte gilt § 3 Abs. 1 c).

§ 5 Leichenhausgebühren

(1)

Die Gebühr für die Aufbewahrung einer Leiche bis zu 6 Jahren beträgt pro Tag

(2)

Die Gebühr für die Aufbewahrung einer Leiche über 6 Jahren beträgt pro Tag

(3)

Die Gebühr für das vorübergehende Einstellen einer auswärtigen Leiche beträgt je angefallenen Tag

(4)

Die Gebühr für die Nutzung der Friedhofskapelle zur Abhaltung einer Trauerfeier beträgt

(5)

Benutzung Kühlvitrine pro Tag

§ 6 Bestattungsgebühren

(1)

Die Gebühr für den Leichenwärter beträgt einmalig

(2)

Die Gebühr für die Leichenträger beträgt je Person

(3)

Die Gebühr für die Grabherstellung (Aushebung und Schließung des Grabes) bei Personen bis zu 6 Jahren beträgt einmalig

(4)

Die Gebühr für die Grabherstellung (Aushebung und Schließung des Grabes) bei Personen über 6 Jahren beträgt einmalig

(5)

Der Aufschlag bei Tieferlegung beträgt einmalig

(6)

Die Gebühr für die Grabherstellung bei Urnenbestattung (Erdbestattung) beträgt einmalig

(7)

Die Gebühr für das Öffnen/Schließen eines Grabes bei Urnennischenbestattung beträgt einmalig

(8)

Die Gebühr für die Auslegung der grünen Matte beträgt einmalig

(9)

Die Gebühr für die Ausgrabung und Umbettung einer Leiche innerhalb des Friedhofes beträgt einmalig

a) während der Ruhezeit (ab 6 Jahre)

b) nach der Ruhezeit (ab 6 Jahre)

c) während der Ruhezeit (bis 6 Jahre)

d) und nach der Ruhezeit (bis 6 Jahre)

(10)

Die Gebühr für die Ausgrabung einer Leiche zur Umbettung beträgt einmalig

a) während der Ruhezeit (ab 6 Jahre)

b) nach der Ruhezeit (ab 6 Jahre)

c) während der Ruhezeit (bis 6 Jahre)

d) nach der Ruhezeit (bis 6 Jahre)

(11)

Die Gebühr für sonstige Dienstleistungen beträgt je Person und Stunde

(12)

Die Gebühr für den Arbeitsaufwand bei der Abwicklung eines Sterbefalls beträgt einmalig

(13)

Die Gebühr für die Überwachungsaufgaben durch den Leichenwärter bei der Überführung nach auswärts beträgt einmalig

(14)

Die Gebühr für die Umbettung von Urnen aus Erdgräbern beträgt einmalig

(15)

Die Gebühr für die Umbettung von Urnen aus Urnennischen/Urnenwandgräbern beträgt einmalig

§ 7 Sonstige Gebühren

(1)

250,00 €.

(2)

250,00 €.

(3)

55,00 €.

(4)

65,00 €.

(5)

55,00 €.

(6)

35,00 €.

(7)

5,00 €.

§ 8 Inkrafttreten

Diese Satzung tritt am 01.01.2025 in Kraft. Gleichzeitig tritt die Friedhofsgebührensatzung vom 11.06.2014 außer Kraft.

Waging a. See, 20.09.2024
Markt Waging a. See
gez. Matthias Baderhuber, 1.Bürgermeister

Nr. 29/24

Vollzug des Baugesetzbuches (BauGB);

Erlass einer Innenbereichssatzung nach § 34 Abs. 4 Satz 1 Nr. 1 und 3 BauGB im Ortsteil Holzhausen für die Grundstücke Fl.Nrn. 308, 267, 395/10 und 395/3 und 334 der Gemarkung Otting

Öffentliche Bekanntmachung

über die öffentliche Auslegung eines Satzungsentwurfes

Der Bauausschuss hat in seiner Sitzung am 11.09.2024 die Aufstellung der Innenbereichssatzung nach § 34 Abs. 4 Satz 1 Nr. 1 und 3 BauGB im Ortsteil Holzhausen beschlossen. Betroffen sind die Grundstücke Fl.Nrn. 308, 267, 395/10 und 395/3 und 334 der Gemarkung Otting. Der Aufstellungsbeschluss wird hiermit bekannt gemacht.

Die Innenbereichssatzung nach § 34 Abs. 4 Satz 1 Nr. 1 und 3 BauGB dient der eindeutigen Abgrenzung zwischen Innen- und Außenbereich auf den genannten Grundstücken. Auf dem Grundstück Fl.Nr. 308 der Gemarkung Otting soll für einen Einheimischen Bauland geschaffen werden.

Der räumliche Geltungsbereich ergibt sich aus dem nachfolgenden Kartenausschnitt, der Bestandteil der Bekanntmachung ist:

Richtung Biburg

Der Geltungsbereich befindet sich beidseits an der S 2104 am östlichen Ortseingang des Ortsteils Holzhausen.

Maßgebend ist der Entwurf der Innenbereichssatzung mit Begründung jeweils in der Fassung vom 02.09.2024.

Der Öffentlichkeit sowie den berührten Behörden und sonstigen Trägern öffentlicher Belange wird Gelegenheit zur Stellungnahme gegeben.

Der Entwurf der Innenbereichssatzung (Einbeziehungssatzung) „Holzhausen“ mit Begründung in der Fassung vom 02.09.2024 sind im Internet auf der Homepage des Marktes Waging a. See unter der Internetseite

https://www.vgwaging.de/bauen/wirtschaft/bauleitplanung/markt-waging-a-see

während der Dauer der nachfolgenden Frist

von 21.10.2024 bis einschließlich 20.11.2024

veröffentlicht.

Innerhalb dieser Veröffentlichungsfrist werden die oben genannten Unterlagen zusätzlich zur Veröffentlichung im Internet im Rathaus der Verwaltungsgemeinschaft Waging a. See, Salzburger Str. 1 in 83329 Waging a. See, II Stock – auf dem Flur, während der allgemeinen Dienststunden ausgelegt.

Auf Wunsch wird die Planung erläutert. Während der Auslegungsfrist kann jedermann Stellungnahmen (schriftlich oder zur Niederschrift) zu dem Entwurf abgeben § 34 Abs. 4 Satz 1 Nrn. 1 und 3, Abs. 6 i.V. mit § 13 Abs. 2 Nr. 2 BauGB).

Es wird darauf hingewiesen, dass nicht fristgerecht abgegebene Stellungnahmen bei der Beschlussfassung über die Innenbereichssatzung unberücksichtigt bleiben können.

Der Inhalt dieser Bekanntmachung und die auszulegenden Unterlagen sind zusätzlich im Internet unter der Internetadresse unter https://www.vgwaging.de/ unter der Rubrik Bauen/ Wirtschaft, Bauleitplanung der Markt Waging a. See eingestellt.

Die veröffentlichten Unterlagen und der Inhalt dieser Bekanntmachung sind auch über das zentrale Internetportal des Landes zugänglich.

Da das Ergebnis der Behandlung der Stellungnahmen mitgeteilt wird, ist die Angabe der Anschrift des Verfassers zweckmäßig.

Datenschutz:

Die Verarbeitung personenbezogener Daten erfolgt auf der Grundlage der Art. 6 Abs. 1 Buchstabe e (DSGVO) i. V. mit § 3 BauGB und dem BayDSG. Sofern Sie Ihre Stellungnahme ohne Absenderangaben abgeben, erhalten Sie keine Mitteilung über das Ergebnis der Prüfung. Weitere Informationen entnehmen Sie bitte dem Formblatt „Datenschutzrechtliche Informationspflichten im Bauleitplanverfahren“ das ebenfalls öffentlich ausliegt.

Waging a. See, den 07.10.2024
MARKT WAGING A. SEE
gez. Matthias Baderhuber, 1. Bürgermeister

Nr. 30/24

Vollzug des Baugesetzbuches (BauGB);

1. Änderung einer Außenbereichssatzung gemäß § 35 Abs. 6 BauGB für den Ortsteil „Bicheln Süd“

Öffentliche Bekanntmachung

der öffentlichen Auslegung über die 1. Änderung der Außenbereichssatzung gemäß § 35 Abs. 6 BauGB für den Ortsteil „Bicheln Süd“

Der Bauausschuss hat in seiner Sitzung am 11.09.2024 die Aufstellung der 1. Änderung der Außenbereichssatzung für den Ortsteil „Bicheln Süd“ beschlossen.

Es wurde zudem beschlossen, die öffentliche Auslegung nach § 13 Abs. 2 Satz 1 Nr. 2 und 3 BauGB durchzuführen.

Der räumliche Geltungsbereich ergibt sich aus dem nachfolgenden Kartenausschnitt, der Bestandteil der Bekanntmachung ist:

Der Geltungsbereich befindet sich in Bicheln und liegt nördlich des Anwesens Bicheln 15.

Maßgebend ist der Entwurf der 1. Änderung der Außenbereichssatzung mit Begründung jeweils in der Fassung vom 26.08.2024.

Ziele und Zwecke der Planung

Aufgrund des dringenden Wohnraumbedarfes der einheimischen Bevölkerung soll auf dem Grundstück Fl.Nr. 645 der Gemarkung Tettenhausen eine Baumöglichkeit geschaffen werden.

Der Öffentlichkeit sowie den berührten Behörden und sonstigen Trägern öffentlicher Belange wird Gelegenheit zur Stellungnahme gegeben.

Der Entwurf der 1. Änderung der Außenbereichssatzung „Bicheln Süd“ mit Begründung in der Fassung vom 26.08.2024 sind im Internet auf der Homepage des Marktes Waging a. See unter der Internetseite

https://www.vgwaging.de/bauen/wirtschaft/bauleitplanung/markt-waging-a-see

während der Dauer der nachfolgenden Frist

von 21.10.2024 bis einschließlich 20.11.2024

veröffentlicht.

Innerhalb dieser Veröffentlichungsfrist werden die oben genannten Unterlagen zusätzlich zur Veröffentlichung im Internet im Rathaus der Verwaltungsgemeinschaft Waging a. See, Salzburger Str. 1 in 83329 Waging a. See, II Stock – auf dem Flur, während der allgemeinen Dienststunden ausgelegt.

Auf Wunsch wird die Planung erläutert. Während der Auslegungsfrist kann jedermann Stellungnahmen (schriftlich oder zur Niederschrift) zu dem Entwurf abgeben (§ 35 Abs. 6 Satz 5 i.V. mit § 13 Abs. 2 Satz 1 Nr. 2 BauGB).

Es wird darauf hingewiesen, dass nicht fristgerecht abgegebene Stellungnahmen bei der Beschlussfassung über die Außenbereichssatzung unberücksichtigt bleiben können.

Der Inhalt dieser Bekanntmachung und die auszulegenden Unterlagen sind zusätzlich im Internet unter der Internetadresse unter https://www.vgwaging.de/ unter der Rubrik Bauen/ Wirtschaft, Bauleitplanung der Markt Waging a. See eingestellt.

Die veröffentlichten Unterlagen und der Inhalt dieser Bekanntmachung sind auch über das zentrale Internetportal des Landes zugänglich.

Da das Ergebnis der Behandlung der Stellungnahmen mitgeteilt wird, ist die Angabe der Anschrift des Verfassers zweckmäßig.

Datenschutz:

Die Verarbeitung personenbezogener Daten erfolgt auf der Grundlage der Art. 6 Abs. 1 Buchstabe e (DSGVO) i. V. mit § 3 BauGB und dem BayDSG. Sofern Sie Ihre Stellungnahme ohne Absenderangaben abgeben, erhalten Sie keine Mitteilung über das Ergebnis der Prüfung. Weitere Informationen entnehmen Sie bitte dem Formblatt „Datenschutzrechtliche Informationspflichten im Bauleitplanverfahren“ das ebenfalls öffentlich ausliegt.

Waging a. See, den 07.10.2024
MARKT WAGING A. SEE
gez. Matthias Baderhuber, 1. Bürgermeister

Nr. 31/24

Vollzug der Gemeindeordnung (GO)

Erlass einer Nachtragshaushaltssatzung 2024 für die Gemeinde Taching a.See

Nachtragshaushaltssatzung der Gemeinde Taching a. See

(Landkreis Traunstein) für das Haushaltsjahr 2024

Aufgrund des Art. 68 Abs. 1 in Verbindung mit Art. 63 ff. der Gemeindeordnung erlässt die Gemeinde Taching a. See folgende Nachtragshaushaltssatzung:

§ 1

Der als Anlage beigefügte Nachtragshaushaltsplan wird hiermit festgesetzt; dadurch werden

§ 2

Diese Nachtragshaushaltssatzung tritt mit dem 01. Januar 2024 in Kraft.

I.)

Diese Nachtragshaushaltssatzung wurde gem. Art. 65 Abs. 2 GO dem Landratsamt als Rechtsaufsichtbehörde vorgelegt, welchem mit Schreiben vom 18.09.2024, Az. 20-940-240004 festgestellt hat, dass die Nachtragshaushaltssatzung keine genehmigungspflichtigen Bestandteile enthält. Der Höchstbetrag der Kassenkredite wurde nicht geändert.

II.)

Die Nachtragshaushaltssatzung der Gemeinde Taching a. See für das Jahr 2024 liegt ab dem Tag der Veröffentlichung der Nachtragshaushaltssatzung samt ihren Anlagen bis zur nächsten amtlichen Bekanntmachung einer Haushaltssatzung in der Kämmerei der Verwaltungsgemeinschaft Waging a. See, Salzburger Str. 1, 83329 Waging a. See, Zimmer 3.02, während der allgemeinen Geschäftsstunden zur Einsichtnahme auf.

Waging a.See, den 18.09.2024
GEMEINDE TACHING A.SEE
gez. Stefanie Lang, 1.Bürgermeisterin

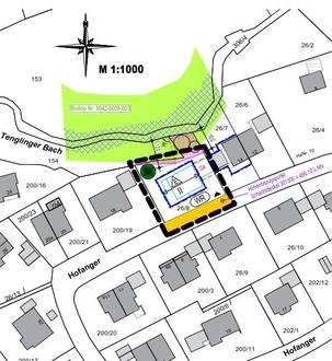
Nr. 32/24

Vollzug des Baugesetzbuches (BauGB);

4. Änderung des Bebauungsplanes „Tengling-Südwest“

Öffentliche Bekanntmachung

des Aufstellungsbeschlusses und der öffentlichen Auslegung
über die Änderung eines Bebauungsplanes der Innenentwicklung im beschleunigten Verfahren nach § 13a Abs. 3 Satz 1 BauGB

Der Gemeinderat Taching a. See hat in seiner Sitzung am 12.09.2024 die Aufstellung der 4. Änderung des Bebauungsplanes „Tengling-Südwest“ beschlossen.

Dieser Beschluss wird hiermit nach § 2 Abs. 1 Satz 2 i.V. mit § 13a Abs. 2 mit Abs. 3 Satz 1 BauGB bekannt gemacht.

Der räumliche Geltungsbereich ergibt sich aus dem nachfolgenden Kartenausschnitt, der Bestandteil der Bekanntmachung ist:

Der Geltungsbereich befindet sich im Hofanger im Ortsteil Tengling. Zudem befindet sich das Gebiet zwischen den Gebäuden Hofanger 14 und 18.

Maßgebend ist der Entwurf des Bebauungsplanes in der Fassung vom 06.09.2024

Ziele und Zwecke der Planung

Mit der Aufstellung der 4. Änderung des Bebauungsplanes “Tengling-Südwest“ sollen die planungsrechtlichen Voraussetzungen für eine derzeit angepasste Bauweise hinsichtlich der seitlichen Wandhöhe und des Geländeverlaufes geschaffen werden.

Der Bebauungsplan wird ohne Durchführung einer Umweltprüfung nach § 2 Abs. 4 BauGB aufgestellt. Der Öffentlichkeit sowie den berührten Behörden und sonstigen Trägern öffentlicher Belange wird Gelegenheit zur Stellungnahme gegeben.

Der Entwurf des Bebauungsplanes mit Begründung in der Fassung vom 06.09.2024 sind im Internet auf der Homepage der Gemeinde Taching a. See unter der Internetseite

https://www.vgwaging.de/verwaltungsgemeinschaft/bauleitplanung/gemeinde-taching-a-see-1

während der Dauer der nachfolgenden Frist

von 21.10.2024 bis einschließlich 20.11.2024

veröffentlicht.

Innerhalb dieser Veröffentlichungsfrist werden die oben genannten Unterlagen zusätzlich zur Veröffentlichung im Internet im Rathaus der Verwaltungsgemeinschaft Waging a. See, Salzburger Str. 1 in 83329 Waging a. See, II Stock – auf dem Flur, während der allgemeinen Dienststunden ausgelegt.

Auf Wunsch wird die Planung erläutert. Während der Auslegungsfrist kann jedermann Stellungnahmen (schriftlich oder zur Niederschrift) zu dem Entwurf abgeben (§ 13a Abs. 2 i.V. mit § 13 Abs. 2 Nr. 2 BauGB und § 3 Abs. 2 BauGB).

Nicht fristgerecht abgegebene Stellungnahmen können bei der Beschlussfassung über die Änderung des Bebauungsplans unberücksichtigt bleiben, wenn die Gemeinde den Inhalt nicht kannte und nicht hätte kennen müssen und deren Inhalt für die Rechtmäßigkeit der Änderung und Erweiterung des Bebauungsplanes nicht von Bedeutung ist.

Der Inhalt dieser Bekanntmachung und die auszulegenden Unterlagen sind zusätzlich im Internet unter der Internetadresse unter https://www.vgwaging.de/ unter der Rubrik Bauen/ Wirtschaft, Bauleitplanung der Gemeinde Taching a. See eingestellt.

Die veröffentlichten Unterlagen und der Inhalt dieser Bekanntmachung sind auch über das zentrale Internetportal des Landes zugänglich.

Da das Ergebnis der Behandlung der Stellungnahmen mitgeteilt wird, ist die Angabe der Anschrift des Verfassers zweckmäßig.

Datenschutz:

Die Verarbeitung personenbezogener Daten erfolgt auf der Grundlage der Art. 6 Abs. 1 Buchstabe e (DSGVO) i. V. mit § 3 BauGB und dem BayDSG. Sofern Sie Ihre Stellungnahme ohne Absenderangaben abgeben, erhalten Sie keine Mitteilung über das Ergebnis der Prüfung. Weitere Informationen entnehmen Sie bitte dem Formblatt „Datenschutzrechtliche Informationspflichten im Bauleitplanverfahren“ das ebenfalls öffentlich ausliegt.

Waging a. See, den 07.10.2024
GEMEINDE TACHING A. SEE
gez. Stefanie Lang, 1. Bürgermeisterin

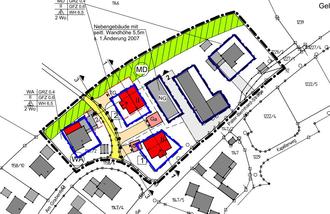
Nr. 33/24

Vollzug des Baugesetzbuches (BauGB);

2. Änderung des Bebauungsplanes „Plattenberg“

Öffentliche Bekanntmachung

des Aufstellungsbeschlusses und der öffentlichen Auslegung

über die 2. Änderung des Bebauungsplanes der Innenentwicklung im beschleunigten Verfahren nach § 13a Abs. 3 Satz 1 BauGB

Der Gemeinderat Wonneberg hat in seiner Sitzung am 10.09.2024 die Aufstellung der 2. Änderung des Bebauungsplanes „Plattenberg“ beschlossen.

Dieser Beschluss wird hiermit nach § 2 Abs. 1 Satz 2 i.V. mit § 13a Abs. 2 mit Abs. 3 Satz 1 BauGB bekannt gemacht.

Der räumliche Geltungsbereich ergibt sich aus dem nachfolgenden Kartenausschnitt, der Bestandteil der Bekanntmachung ist:

Der Geltungsbereich befindet sich in Plattenberg. Zudem liegt das Gebiet nordwestlich der Gemeindeverbindungsstraße Weibhausen-St. Leonhard (Pater-Bernhard-Straße).

Maßgebend ist der Entwurf des Bebauungsplanes in der Fassung vom 12.08.2024

Ziele und Zwecke der Planung

Aufgrund des dringenden Wohnraumbedarfes der einheimischen Bevölkerung soll die Baulücke im nördlichen Teil der Bebauung des Ortsteils Plattenberg im Bereich „Am Grabenfeld“ mit zwei weiteren Bauparzellen geschlossen werden und die vorhandene Bebauung auf Fl.Nr. 1167/2 erweitert werden.

Der Bebauungsplan wird ohne Durchführung einer Umweltprüfung nach § 2 Abs. 4 BauGB aufgestellt. Der Öffentlichkeit sowie den berührten Behörden und sonstigen Trägern öffentlicher Belange wird Gelegenheit zur Stellungnahme gegeben.

Der Entwurf des Bebauungsplanes mit Begründung in der Fassung vom 12.08.2024 sind im Internet auf der Homepage der Gemeinde Wonneberg unter der Internetseite

https://www.vgwaging.de/bauen/wirtschaft/bauleitplanung/gemeinde-wonneberg

während der Dauer der nachfolgenden Frist

von 21.10.2024 bis einschließlich 20.11.2024

veröffentlicht.

Innerhalb dieser Veröffentlichungsfrist werden die oben genannten Unterlagen zusätzlich zur Veröffentlichung im Internet im Rathaus der Verwaltungsgemeinschaft Waging a. See, Salzburger Str. 1 in 83329 Waging a. See, II Stock – auf dem Flur, während der allgemeinen Dienststunden ausgelegt.

Auf Wunsch wird die Planung erläutert. Während der Auslegungsfrist kann jedermann Stellungnahmen (schriftlich oder zur Niederschrift) zu dem Entwurf abgeben (§ 13a Abs. 2 i.V. mit § 13 Abs. 2 Nr. 2 BauGB und § 3 Abs. 2 BauGB).

Nicht fristgerecht abgegebene Stellungnahmen können bei der Beschlussfassung über die Änderung des Bebauungsplans unberücksichtigt bleiben, wenn die Gemeinde den Inhalt nicht kannte und nicht hätte kennen müssen und deren Inhalt für die Rechtmäßigkeit der Änderung und Erweiterung des Bebauungsplanes nicht von Bedeutung ist.

Der Inhalt dieser Bekanntmachung und die auszulegenden Unterlagen sind zusätzlich im Internet unter der Internetadresse unter https://www.vgwaging.de/ unter der Rubrik Bauen/ Wirtschaft, Bauleitplanung der Gemeinde Wonneberg eingestellt.

Die veröffentlichten Unterlagen und der Inhalt dieser Bekanntmachung sind auch über das zentrale Internetportal des Landes zugänglich.

Da das Ergebnis der Behandlung der Stellungnahmen mitgeteilt wird, ist die Angabe der Anschrift des Verfassers zweckmäßig.

Datenschutz:

Die Verarbeitung personenbezogener Daten erfolgt auf der Grundlage der Art. 6 Abs. 1 Buchstabe e (DSGVO) i. V. mit § 3 BauGB und dem BayDSG. Sofern Sie Ihre Stellungnahme ohne Absenderangaben abgeben, erhalten Sie keine Mitteilung über das Ergebnis der Prüfung. Weitere Informationen entnehmen Sie bitte dem Formblatt „Datenschutzrechtliche Informationspflichten im Bauleitplanverfahren“ das ebenfalls öffentlich ausliegt.

Waging a. See, den 07.10.2024
GEMEINDE WONNEBERG
gez. Martin Fenninger, 1. Bürgermeister

VERWALTUNGSGEMEINSCHAFT WAGING A.SEE
gez. Matthias Baderhuber, 1. Vorsitzender