Vollzug der Bayerischen Bauordnung;
Satzung zur Einführung einer Pflicht
zum Nachweis eines Spielplatzes für Kinder (Spielplatzsatzung) — Nr. 44/25
Vollzug der Bayerischen Bauordnung;
Hinweis über die Bekanntmachung der Änderung
der Satzung über die Herstellung von
Stellplätzen und deren Ablösung durch Niederlegung — Nr. 45/25
Vollzug des Baugesetzbuches (BauGB);
Aufstellung einer Außenbereichssatzung
gemäß § 35 Abs. 6 BauGB für den Ortsteil Oberleiten — Nr. 46/25
Vollzug des Baugesetzbuches (BauGB);
1. Änderung der Einbeziehungssatzung
für den Ortsteil Holzhausen im Bereich des
Grundstücks Fl.Nr. 339/2 der Gemarkung Otting
nach § 34 Abs. 4 Satz 1 Nr. 3 BauGB — Nr. 47/25
Vollzug des Baugesetzbuches (BauGB);
27. Änderung des Bebauungsplanes „Waging-West“
im Verfahren nach § 13 a BauGB — Nr. 48/25
Vollzug des Bayerischen Straßen- und Wegegesetzes;
Widmung des öffentlichen Feld- und Waldweges
„Verbindungsweg im Hochwinkelfeld in Gessenhausen“ — Nr. 49/25
Vollzug des Baugesetzbuches (BauGB);
3. Änderung bzw. Erweiterung des Bebauungsplanes „Thalwies“ — Nr. 50/25
Vollzug der Bayerischen Bauordnung;
Satzung zur Einführung einer Pflicht zum Nachweis von Stellplätzen für
Kraftfahrzeuge (Stellplatzsatzung) — Nr. 51/25
Satzung zur Einführung einer Pflicht
zum Nachweis eines Spielplatzes für Kinder
(Spielplatzsatzung)
Der Bauausschuss Waging a. See erlässt auf Grund des Art. 23 der Gemeindeordnung für den Freistaat Bayern, und Art. 81 Abs. 1 Nr. 1 und 3 der Bayerischen folgende Satzung:
§ 1 Anwendungsbereich
(1) Die Satzung gilt für die Errichtung von Gebäuden mit mehr als fünf Wohnungen im Gemeindegebiet Waging a. See.
(2) Regelungen in Bebauungsplänen oder anderen städtebaulichen Satzungen, die von den Regelungen dieser Satzung abweichen, haben Vorrang.
§ 2 Pflicht zur Herstellung, Ausstattung und Unterhaltung
Bei der Errichtung von Gebäuden im Sinne des § 1 Abs. 1 ist ein Spielplatz herzustellen, auszustatten und zu unterhalten.
§ 3 Größe, Lage und Ausstattung
(1) Je 25 m² Wohnfläche sind 1,5 m² Spielplatzfläche nachzuweisen, jedoch mindestens 50 m². Die Fläche muss für das Spielen von Kindern bis zu 14 Jahren geeignet und ausgestattet sein.
(2) Der Spielplatz soll möglichst verkehrsabgewandt in sonniger, windgeschützter Lage angelegt werden. Er muss gegen Anlagen, von denen Gefahren oder Störungen ausgehen so abgeschirmt werden, dass die Kinder ungefährdet spielen können.
(3) Für je 50 m² Fläche ist er mit mindestens einem Spielsandbereich (Mindestgröße 4 m²), einem ortsfesten Spielgerät, einer ortsfesten Sitzgelegenheit sowie ausreichend Schatten spendenden Elementen auszustatten.
§ 4 Herstellung und Ablöse des Spielplatzes
(1) Der Spielplatz ist auf dem Baugrundstück zu errichten. Ausnahmsweise darf der Spielplatz auf einem anderen Grundstück in der Nähe des Baugrundstücks angelegt werden. Der Spielplatz muss fußläufig und gefahrlos für die Kinder zu erreichen sein. Die Benutzung des Grundstücks ist gegenüber dem Träger der Bauaufsichtsbehörde rechtlich zu sichern.
(2) Die Pflicht zur Herstellung, Ausstattung und Unterhaltung des Spielplatzes kann auch durch Übernahme der Kosten gegenüber der Gemeinde Waging a. See übernommen werden (Ablösevertrag). Die Entscheidung über den Abschluss eines Ablösevertrags steht im Ermessen der Gemeinde. Der Bauherr hat keinen Anspruch auf Abschluss eines solchen Vertrags; dies gilt auch dann, wenn der Spielplatz nicht auf dem Baugrundstück oder in der Nähe des Baugrundstücks tatsächlich hergestellt werden kann. Der Ablösungsbetrag beträgt je m² 120 Euro. Für Gebäude, die dem Wohnen von Senioren und Studenten bestimmt sind, besteht ein Anspruch auf Ablöse. Der Ablösebetrag darf in diesem Fall 5.000 Euro je abzulösenden Spielplatz nicht übersteigen.
§ 5 Unterhaltung
Der Spielplatz ist in benutzbarem Zustand zu erhalten. Auf die zivilrechtlichen Verkehrssicherungspflichten wird hingewiesen.
§ 6 Abweichungen
Unter den Voraussetzungen des Art. 63 BayBO können Abweichungen zugelassen werden.
§ 7 In-Kraft-Treten
Die Satzung tritt am Tag nach der Bekanntmachung in Kraft.
Der Bauausschuss des Marktes Waging a. See hat am 25.09.2025 die Änderung der Satzung über die Herstellung von Stellplätzen und deren Ablösung beschlossen.
Gemäß § 36 Abs. 2 der Geschäftsordnung für die Marktgemeinde Waging a. See wird hingewiesen, dass die Bekanntmachung der Änderung der Satzung über die Herstellung von Stellplätzen und deren Ablösung ausnahmsweise aus wichtigem Grund (Gesetzesänderung zum 01.10.2025) durch Niederlegung im Rathaus der Verwaltungsgemeinschaft Waging a. See, Salzburger Str. 1 in 83329 Waging a. See, II Stock – auf dem Flur erfolgt ist. Die Mitteilung über die Niederlegung der amtlichen Bekanntmachung erfolgte durch die Anzeige an allgemein bestimmten Stellen (Gemeindetafeln bzw. Amtstafeln) sowie auf der gemeindlichen Homepage.
Die ausführliche Bekanntmachung wurde auf folgender Internetseite veröffentlicht und kann auch weiterhin eingesehen werden: https://www.vgwaging.de/ (unter der Rubrik aktuelle Nachrichten und Bekanntmachungen) oder können unter folgenden QR-Code eingesehen werden:
Öffentliche Bekanntmachung
der öffentlichen Auslegung über die Aufstellung einer Außenbereichssatzung gemäß
§ 35 Abs. 6 BauGB für den Ortsteil Oberleiten
Der Bauausschuss des Marktes Waging a. See hat in seiner Sitzung am 04.06.2025 die Aufstellung der Außenbereichssatzung für den Ortsteil Oberleiten beschlossen. Am 07.10.2025 hat der Bauausschuss den Planentwurf in der Fassung vom 18.09.2025 gebilligt und beschlossen, diesen erneut auszulegen.
Es wurde zudem beschlossen, die öffentliche Auslegung nach § 13 Abs. 2 Satz 1 Nr. 2 und 3 BauGB durchzuführen.
Der räumliche Geltungsbereich ergibt sich aus dem nachfolgenden Kartenausschnitt, der Bestandteil der Bekanntmachung ist:
Der Geltungsbereich befindet sich nördlich der Bahnlinie Traunstein-Waging a. See und östlich der Staatsstraße 2104.
Maßgebend ist der Entwurf der Außenbereichssatzung mit Begründung jeweils in der Fassung vom 18.09.2025.
Ziele und Zwecke der Planung
Vorliegend soll Baurecht für Einheimische geschaffen werden.
Der Öffentlichkeit sowie den berührten Behörden und sonstigen Trägern öffentlicher Belange wird Gelegenheit zur Stellungnahme gegeben.
Der Entwurf der Außenbereichssatzung Oberleiten mit Begründung in der Fassung vom 18.09.2025 sind im Internet auf der Homepage des Marktes Waging a. See unter der Internetseite https://www.vgwaging.de/bauen/wirtschaft/bauleitplanung/markt-waging-a-see während der Dauer der nachfolgenden Frist
von 20.10.2025 bis einschließlich 20.11.2025
veröffentlicht.
Innerhalb dieser Veröffentlichungsfrist werden die oben genannten Unterlagen zusätzlich zur Veröffentlichung im Internet im Rathaus der Verwaltungsgemeinschaft Waging a. See, Salzburger Str. 1 in 83329 Waging a. See, II Stock – auf dem Flur, während der allgemeinen Dienststunden ausgelegt.
Auf Wunsch wird die Planung erläutert. Während der Auslegungsfrist kann jedermann Stellungnahmen (schriftlich oder zur Niederschrift) zu dem Entwurf abgeben (§ 35 Abs. 6 Satz 5 i.V. mit § 13 Abs. 2 Satz 1 Nr. 2 BauGB).
Es wird darauf hingewiesen, dass nicht fristgerecht abgegebene Stellungnahmen bei der Beschlussfassung über die Außenbereichssatzung unberücksichtigt bleiben können.
Der Inhalt dieser Bekanntmachung und die auszulegenden Unterlagen sind zusätzlich im Internet unter der Internetadresse unter https://www.vgwaging.de/ unter der Rubrik Bauen/ Wirtschaft, Bauleitplanung der Markt Waging a. See eingestellt.
Die veröffentlichten Unterlagen und der Inhalt dieser Bekanntmachung sind auch über das zentrale Internetportal des Landes zugänglich.
Da das Ergebnis der Behandlung der Stellungnahmen mitgeteilt wird, ist die Angabe der Anschrift des Verfassers zweckmäßig.
Datenschutz:
Die Verarbeitung personenbezogener Daten erfolgt auf der Grundlage der Art. 6 Abs. 1 Buchstabe e (DSGVO) i. V. mit § 3 BauGB und dem BayDSG. Sofern Sie Ihre Stellungnahme ohne Absenderangaben abgeben, erhalten Sie keine Mitteilung über das Ergebnis der Prüfung. Weitere Informationen entnehmen Sie bitte dem Formblatt „Datenschutzrechtliche Informationspflichten im Bauleitplanverfahren“ das ebenfalls öffentlich ausliegt.
Öffentliche Bekanntmachung
über die erneute öffentliche Auslegung eines Satzungsentwurfes
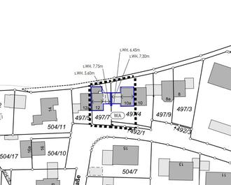
Der Bauausschuss hat in seiner Sitzung am 07.10.2025 die Aufstellung der 1. Änderung der Einbeziehungssatzung für den Ortsteil Holzhausen nach § 34 Abs. 4 Satz 1 Nr. 3 BauGB im Ortsteil Holzhausen beschlossen. Betroffen ist das Grundstück Fl.Nr. 339/2 der Gemarkung Otting.
Die Änderung der Innenbereichssatzung nach § 34 Abs. 4 Satz 1 Nr. 3 BauGB dient der Veränderung der Ausgleichsflächenfestsetzung im Bereich des Grundstücks Fl.Nr. 339/2 der Gemarkung Otting.
Der räumliche Geltungsbereich ergibt sich aus dem nachfolgenden Kartenausschnitt, der Bestandteil der Bekanntmachung ist:
Der Geltungsbereich befindet sich nördlich des Haunertinger Weges am Ortseingang des Ortsteils Holzhausen.
Maßgebend ist der Entwurf der Innenbereichssatzung mit Begründung jeweils in der Fassung vom 21.08.2025.
Der Öffentlichkeit sowie den berührten Behörden und sonstigen Trägern öffentlicher Belange wird Gelegenheit zur Stellungnahme gegeben.
Der Entwurf der Innenbereichssatzung (Einbeziehungssatzung) „Holzhausen“ mit Begründung jeweils in der Fassung vom 21.08.2025 sind im Internet auf der Homepage des Marktes Waging a. See unter der Internetseite
https://www.vgwaging.de/bauen/wirtschaft/bauleitplanung/markt-waging-a-see
während der Dauer der nachfolgenden Frist
von 21.10.2025 bis einschließlich 20.11.2025
veröffentlicht.
Innerhalb dieser Veröffentlichungsfrist werden die oben genannten Unterlagen zusätzlich zur Veröffentlichung im Internet im Rathaus der Verwaltungsgemeinschaft Waging a. See, Salzburger Str. 1 in 83329 Waging a. See, II Stock – auf dem Flur, während der allgemeinen Dienststunden ausgelegt.
Auf Wunsch wird die Planung erläutert. Während der Auslegungsfrist kann jedermann Stellungnahmen (schriftlich oder zur Niederschrift) zu dem Entwurf abgeben § 34 Abs. 4 Satz 1 Nrn. 1 und 3, Abs. 6 i.V. mit § 13 Abs. 2 Nr. 2 BauGB).
Es wird darauf hingewiesen, dass nicht fristgerecht abgegebene Stellungnahmen bei der Beschlussfassung über die Innenbereichssatzung unberücksichtigt bleiben können.
Der Inhalt dieser Bekanntmachung und die auszulegenden Unterlagen sind zusätzlich im Internet unter der Internetadresse unter https://www.vgwaging.de/ unter der Rubrik Bauen/ Wirtschaft, Bauleitplanung der Markt Waging a. See eingestellt.
Die veröffentlichten Unterlagen und der Inhalt dieser Bekanntmachung sind auch über das zentrale Internetportal des Landes zugänglich.
Da das Ergebnis der Behandlung der Stellungnahmen mitgeteilt wird, ist die Angabe der Anschrift des Verfassers zweckmäßig.
Datenschutz:
Die Verarbeitung personenbezogener Daten erfolgt auf der Grundlage der Art. 6 Abs. 1 Buchstabe e (DSGVO) i. V. mit § 3 BauGB und dem BayDSG. Sofern Sie Ihre Stellungnahme ohne Absenderangaben abgeben, erhalten Sie keine Mitteilung über das Ergebnis der Prüfung. Weitere Informationen entnehmen Sie bitte dem Formblatt „Datenschutzrechtliche Informationspflichten im Bauleitplanverfahren“ das ebenfalls öffentlich ausliegt.
______________________________________________________________________________________
Bekanntmachung des Satzungsbeschlusses
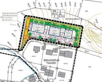
Der Bauausschuss des Marktes Waging a. See hat am 10.09.2025 die 27. Änderung des Bebauungsplanes „Waging-West“, gemäß § 10 Abs. 1 BauGB als Satzung beschlossen.
Der Geltungsbereich ist im nachfolgenden Lageplan schwarz umrandet.
Im Einzelnen gilt der Lageplan des Bebauungsplans in der Fassung vom 08.09.2025
Der Satzungsbeschluss wird hiermit gemäß § 10 Abs. 3 BauGB ortsüblich bekannt gemacht.
Der Bebauungsplan tritt mit der Bekanntmachung in Kraft und liegt mit Begründung ab Veröffentlichung dieser Bekanntmachung in den Amtsräumen der Verwaltungsgemeinschaft Waging a. See, Salzburger Straße 1 in 83329 Waging a. See, Zimmer 2.04, während der allgemeinen Dienststunden öffentlich aus und kann dort eingesehen werden. Über den Inhalt wird auf Verlangen Auskunft gegeben.
Auf die Vorschriften des § 44 Abs. 3 Satz 1 und 2 BauGB über die Fälligkeit etwaiger Entschädigungsansprüche im Falle der in den §§ 39 bis 42 BauGB bezeichneten Vermögensnachteile, deren Leistung schriftlich beim Entschädigungspflichtigen zu beantragen ist, und des § 44 Abs. 4 BauGB über das Erlöschen von Entschädigungsansprüchen, wenn der Antrag nicht innerhalb der Frist von drei Jahren gestellt ist, wird hingewiesen.
Es wird darauf hingewiesen, dass eine Verletzung der in § 214 Abs. 1 Satz 1 Nr. 1 bis 3 BauGB bezeichneten Verfahrens- und Formvorschriften, eine unter Berücksichtigung des § 214 Abs. 2 BauGB beachtliche Verletzung der Formvorschriften über das Verhältnis des Bebauungsplans und des Flächennutzungsplans, ein nach § 214 Abs. 2a BauGB beachtlicher Fehler oder ein nach § 214 Abs. 3 Satz 2 BauGB beachtlicher Mangel des Abwägungsvorgangs nur beachtlich werden, wenn sie innerhalb eines Jahres seit dieser Bekanntmachung schriftlich gegenüber der Gemeinde unter Darlegung des die Verletzung begründenden Sachverhalts geltend gemacht worden sind.
Hinweis auf Vorschriften:
Die in den Festsetzungen und der Begründung in Bezug genommenen Bestimmungen, Normen und Richtlinien liegen in der Verwaltungsgemeinschaft aus.
Verfügung und Bekanntmachung
über die Widmung von öffentlichen Straßen
Vollzug des Bayerischen Straßen- und Wegegesetzes (BayStrWG)
Widmung (Art. 6 BayStrWG)
Inhalt:
Der neu geschaffene Verbindungsweg zwischen dem "Hochwinkelweg" (öFW Nr. 142) und dem "Hochwinkelweg in Gessenhausen" (öFW Nr. 138) wird hiermit zum öffentlichen Feld- und Waldweg im Sinne des Art. 53 Nr. 1 BayStrWG gewidmet.
Begründung:
Der Weg soll als neue Verbindung dienen, damit in einem eigenständigen und nachgelagerten Verfahren der südlich angrenzende Teil des öFW Nr. 138 "Hochwinkelwegs in Gessenhausen" eingezogen werden kann.
1. Straßenbeschreibung
| Straße: | Verbindungsweg im Hochwinkelfeld bei Gessenhausen |
| Stadt/Gemeinde: | Taching a.See |
| Landkreis: | Traunstein |
| Widmungsbeschränkung: | keine |
| Flurnummern: | 967/0, Gemarkung Tengling |
| Anfangspunkt: | Abzweigung vom "Hochwinkelweg" auf Höhe Fl.Nr. 986, Gemarkung Tengling |
| Endpunkt: | Einmündung in den "Hochwinkelweg in Gessenhausen" südlich der Fl.Nr. 991, Gemarkung Tengling |
| Länge: | 0,050 km |
| Baulastträger: | Die jeweiligen Eigentümer der Flst.Nr. 967 |
| |
2. Lage
Die genaue Lage ergibt sich aus den nachfolgenden Lageplänen:
3. Verfügung
Die unter 1. bezeichnete bestehende Straße ist als öffentlicher Feld- und Waldweg zu widmen.
4. Wirksamwerden
Wirksamwerden der Verfügung: 01.12.2025
5. Sonstiges:
Gründe für die Widmung: Beschluss des Gemeinderat Taching a.See vom 18.09.2025
Die Verfügung nach Nr. 3 kann während der üblichen Besuchszeiten im Rathaus der Verwaltungsgemeinschaft Waging a. See, Salzburgerstraße 1, 83329 Waging am See, 2. Stock, Zi. Nr. 2.04 in der Zeit vom 20.10.2025 bis 03.11.2025 eingesehen werden.
6. Rechtsbehelfsbelehrung
Gegen diesen Bescheid kann innerhalb eines Monats nach seiner Bekanntgabe Klage erhoben werden bei dem
Bayerischen Verwaltungsgericht München in 80335 München
Postfachanschrift: Postfach 200543, 80005 München
Hausanschrift: Bayerstraße 30, 80335 München.
Hinweise zur Rechtsbehelfsbelehrung
| - | Die Einlegung des Rechtsbehelfs ist schriftlich, zur Niederschrift oder elektronisch in einer für den Schriftformersatz zugelassenen Form möglich. Die Einlegung eines Rechtsbehelfs per einfacher E-Mail ist nicht zugelassen und entfaltet keine rechtlichen Wirkungen! |
| - | Ab 01.01.2022 muss der in § 55d VwGO genannte Personenkreis Klagen grundsätzlich elektronisch einreichen. |
| - | Kraft Bundesrechts wird in Prozessverfahren vor den Verwaltungsgerichten infolge der Klageerhebung eine Verfahrensgebühr fällig. |
Bekanntmachung
Inkrafttreten des Bebauungsplans
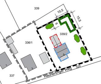
Der Gemeinderat Taching a. See hat am 18.09.2025 in öffentlicher Sitzung den Bebauungsplan „3. Änderung bzw. Erweiterung des Bebauungsplanes „Thalwies“ nach § 10 BauGB als Satzung beschlossen.
Der Planbereich wird begrenzt
| im Norden: | Landwirtschaftliche Flächen in Richtung Mönchspoint |
| im Osten: | Biotopfläche und Staatsstraße 2105 (Obere Dorfstraße in Tengling) |
| im Süden: | Anwesen Graf-Törring-Straße 21, 23 und 25 |
| im Westen: | Landwirtschaftliche Fläche |
Maßgebend ist der Lageplan des Bebauungsplans in der Fassung vom 03.04.2025.
Der Bebauungsplan „3. Änderung bzw. Erweiterung des Bebauungsplanes „Thalwies“ in der Fassung vom 03.04.2025 samt Begründung vom 31.03.2025 tritt mit dieser Bekanntmachung in Kraft (vgl. § 10 Abs. 3 BauGB).
Der Bebauungsplan kann einschließlich seiner Begründung (mit Umweltbericht) im Rathaus der Verwaltungsgemeinschaft Waging a. See, Salzburger Straße 1 in 83329 Waging a. See (Zimmer-Nr. 2.04) während der Öffnungszeiten eingesehen werden; über den Inhalt ist auf Verlangen Auskunft zu geben.
Auf die Vorschriften des § 44 Abs. 3 Satz 1 und 2 BauGB über die Fälligkeit etwaiger Entschädigungsansprüche im Falle der in den §§ 39 bis 42 BauGB bezeichneten Vermögensnachteile, deren Leistung schriftlich beim Entschädigungspflichtigen zu beantragen ist, und des § 44 Abs. 4 BauGB über das Erlöschen von Entschädigungsansprüchen, wenn der Antrag nicht innerhalb der Frist von drei Jahren gestellt ist, wird hingewiesen.
Es wird darauf hingewiesen, dass eine Verletzung der in § 214 Abs. 1 Satz 1 Nr. 1 bis 3 BauGB bezeichneten Verfahrens- und Formvorschriften, eine unter Berücksichtigung des § 214 Abs. 2 BauGB beachtliche Verletzung der Vorschriften über das Verhältnis des Bebauungsplans und des Flächennutzungsplans oder aber ein nach § 214 Abs. 3 Satz 2 BauGB beachtlicher Mangel des Abwägungsvorgangs nur beachtlich werden, wenn sie innerhalb eines Jahres seit dieser Bekanntmachung schriftlich gegenüber der Gemeinde unter Darlegung des die Verletzung begründenden Sachverhalts geltend gemacht worden sind.
Satzung zur Einführung einer Pflicht zum Nachweis von Stellplätzen für Kraftfahrzeuge
(Stellplatzsatzung)
Die Gemeinde Wonneberg erlässt auf Grund des Art. 23 der Gemeindeordnung für den Freistaat Bayern und Art. 81 Abs. 1 Nr. 4 der Bayerischen Bauordnung folgende Satzung:
§ 1 Anwendungsbereich
(1) Die Satzung gilt für die Errichtung, Änderung oder Nutzungsänderung von Anlagen im Sinne des Art. 1 Abs. 1 BayBO im Gemeindegebiet Wonneberg. Ausgenommen sind, wenn sie zu Wohnzwecken erfolgen, Änderungen oder Nutzungsänderungen im Sinne des Art. 81 Abs. 1 Nr. 4b, zweiter Halbsatz BayBO.
(2) Regelungen in Bebauungsplänen oder anderen städtebaulichen Satzungen, die von den Regelungen dieser Satzung abweichen, haben Vorrang.
§ 2 Pflicht zur Herstellung von Kfz-Stellplätzen
(1) Bei der Errichtung von Anlagen, für die ein Zu- oder Abfahrtsverkehr mit Kraftfahrzeugen zu erwarten ist, sind Stellplätze herzustellen. Bei der Änderung oder Nutzungsänderung von Anlagen sind Stellplätze herzustellen, wenn dadurch zusätzlicher Zu- oder Abfahrtsverkehr zu erwarten ist.
(2) Die Zahl der notwendigen Stellplätze bemisst sich nach der Anlage zur Satzung. Die Anlage ist Bestandteil der Satzung. Ist eine Nutzung nicht in der Anlage aufgeführt, ist die Zahl der notwendigen Stellplätze in Anlehnung an eine oder mehrere vergleichbare Nutzungen der Anlage zu ermitteln.
(3) Die Ermittlung erfolgt jeweils nach Nutzungseinheiten. Bei baulichen Anlagen, die unterschiedliche Nutzungsarten enthalten, wird die Zahl der notwendigen Stellplätze getrennt nach den jeweiligen Nutzungsarten ermittelt.
(4) Die Zahl an notwendigen Stellplätzen ist jeweils auf eine Dezimalstelle zu ermitteln und nach kaufmännischen Grundsätzen zu runden. Bei baulichen Anlagen mit mehreren Nutzungseinheiten oder unterschiedlichen Nutzungsarten erfolgt die Rundung erst nach Addition der für jede Nutzungseinheit und jede Nutzungsart notwendigen Stellplätze.
§ 3 Herstellung und Ablöse der Stellplätze
(1) Die nach §§ 2 und 3 dieser Satzung erforderlichen Stellplätze sind auf dem Baugrundstück oder auf einem geeigneten Grundstück in der Nähe des Baugrundstücks herzustellen. Bei Herstellung der Stellplätze auf einem geeigneten Grundstück in der Nähe des Baugrundstücks ist dessen Benutzung für diesen Zweck gegenüber dem Rechtsträger der Bauaufsichtsbehörde rechtlich zu sichern.
(2) Die Inanspruchnahme derselben Stellplätze durch zwei oder mehrere Nutzungen mit unterschiedlichen Geschäfts- oder Öffnungszeiten (Wechselnutzung) kann zugelassen werden, wenn sichergestellt ist, dass keine Überschneidungen der Benutzung des Stellplatzes auftreten und keine negativen Auswirkungen auf den Verkehr in der Umgebung zu erwarten sind.
(3) Die Pflicht zur Herstellung der Stellplätze kann auch durch Übernahme der Kosten ihrer Herstellung gegenüber der Gemeinde (Ablösevertrag) abgelöst werden. Die Entscheidung über den Abschluss eines Ablösungsvertrags steht im Ermessen der Gemeinde. Der Bauherr hat keinen Anspruch auf Abschluss eines solchen Vertrags; dies gilt auch dann, wenn die Stellplätze nicht auf dem Baugrundstück oder in der Nähe des Baugrundstücks tatsächlich hergestellt werden können. Der Ablösungsbetrag beträgt je Stellplatz 7.000 Euro.
(4) Von der Möglichkeit der Ablöse nach Absatz 3 sind Nutzungen ausgenommen, die für ihren geordneten Betriebsablauf darauf angewiesen sind, ihren Zu- und Abfahrtsverkehr durch Stellplätze auf dem Baugrundstück oder auf einem geeigneten Grundstück in der Nähe des Baugrundstücks abzuwickeln.
§ 4 Anforderungen an die Herstellung
(1) Für Stellplätze in Garagen gelten die baulichen Anforderungen der Verordnung über den Bau und Betrieb von Garagen sowie über die Zahl der notwendigen Stellplätze vom 30. November 1993 in ihrer jeweils gültigen Fassung.
(2) Im Übrigen sind Stellplätze in ausreichender Größe und in Abhängigkeit der beabsichtigten Nutzung herzustellen. Es gilt Art. 7 BayBO.
§ 5 Abweichungen
Unter den Voraussetzungen des Art. 63 BayBO können Abweichungen zugelassen werden.
§ 6 Schlussbestimmungen
Diese Satzung tritt am Tag nach der Bekanntmachung in Kraft.
Anlage zu § 2 Abs. 1 der Stellplatzsatzung der Gemeinde Wonneberg vom 06.10.2025
| Nr. | Verkehrsquelle | Zahl der Stellplätze | hiervon für Besucher in % |
| 1 | Wohngebäude |
|
|
| 1.1 | Gebäude mit Wohnungen | 2 Stellplätze je Wohnung,bei Mietwohnungen, für die eine Bindung nach dem Bayerischen Wohnraumförderungsgesetz besteht, 0,5 Stellplätze | _ |
| 1.2 | Kinder-, Schüler- und Jugendwohnheime | 1 Stellplatz je 20 Betten, mindestens 2 Stellplätze | 75 |
| 1.3 | Studentenwohnheime | 1 Stellplatz je 5 Betten | 10 |
| 1.4 | Schwestern-/ Pflegewohnheime, Arbeitnehmerwohnheime u. ä. | 1 Stellplatz je 4 Betten | 10 |
| 1.5 | Altenwohnheime, Altenheime, Langzeit- und Kurzzeitpflegeheime, Tagespflegeeinrichtungen u.ä. | 1 Stellplatz je 15 Betten bzw. Pflegeplätze, mindestens 2 Stellplätze | 50 |
| 1.6 | Obdachlosenheime, Gemeinschaftsunterkünfte für Leistungsberechtigte nach dem Asylbewerberleistungsgesetz | 1 Stellplatz je 30 Betten, mindestens 2 Stellplätze | 10 |
| 2. | Gebäude mit Büro-, Verwaltungs- und Praxisräumen |
|
|
| 2.1 | Büro- und Verwaltungsräume allgemein | 1 Stellplatz je 40 m2 NUF1) | 20 |
| 2.2 | Räume mit erhehblichem Besucherverkehr(Schalter-, Abfertigungs- oder Beratungsräume, Arztpraxen und dergl.) | 1 Stellplatz, je 30m2 NUF1)mindestens 3 Stellplätze | 75 |
| 3. | Verkaufsstätten |
|
|
| 3.1 | Läden | 1 Stellplatz je 40 m2 Verkaufsfläche für den Kundenverkehr, mindestens 2 Stellplätze je Laden | 75 |
| Nr. | Verkehrsquelle | Zahl der Stellplätze | hiervon für Besucher in % |
| 3.2 | Waren- und Geschäftshäuser (einschließlich Einkaufszentren, großflächige Einzelhandelsbetrieben) | 1 Stellplatz je 40 m2 Verkaufsfläche für den Kundenverkehr | 75 |
| 4. | Versammlungsstätten (außer Sport-Stätten), Kirchen |
|
|
| 4.1 | Versammlungsstätten von überörtlicher Bedeutung (z.B. Theater, Konzerthäuser, Mehrzweckhallen) | 1 Stellplatz je 5 Sitzplätze | 90 |
| 4.2 | Sonstige Versammlungsstätten(z. B. Lichtspieltheater, Schulaulen, Vortragssäle) | 1 Stellplatz je 10 Sitzplätze | 90 |
| 4.3 | Kirchen | 1 Stellplatz je 30 Sitzplätze | 90 |
| 5. | Sportstätten |
|
|
| 5.1 | Sportplätze ohne Besucherplätze (z.B. Trainingsplätze) | 1 Stellplatz je 300 m2 Sportfläche | _ |
| 5.2 | Sportplätze und Sportstadien mit Besucherplätzen | 1 Stellplatz je 300 m2 Sportfläche, zusätzlich 1 Stellplatz je 15 Besucherplätze | _ |
| 5.3 | Turn- und Sporthallen ohne Besucherplätze | 1 Stellplatz je 50 m2 Hallenflächen | _ |
| 5.4 | Turn- und Sporthallen mit Besucherplätzen | 1 Stellplatz je 50 m2 Hallenfläche, zusätzlich 1 Stellplatz je 15 Besucherplätze | _ |
| 5.5 | Freibäder und Freiluftbäder | 1 Stellplatz je 300 m2 Grundstücksfläche | _ |
| 5.6 | Hallenbäder ohne Besucherplätze | 1 Stellplatz je 10 Kleiderablagen | _ |
| 5.7 | Hallenbäder mit Besucherplätzen | 1 Stellplatz je 10 Kleiderablagenzusätzlich 1 Stellplatz je 15 Besucherplätze | _ |
| 5.8 | Tennisplätze, Squashanlagen o.ä. ohne Besucherplätze | 2 Stellplätze je Spielfeld | _ |
| 5.9 | Tennisplätze, Squashanlagen o.ä. mit Besucherplätzen | 2 Stellplätze je Spielfeld,zusätzlich 1 Stellplatz je 15 Besucherplätze | _ |
| 5.10 | Minigolfplätze | 6 Stellplätze je Minigolfanlage | _ |
| Nr. | Verkehrsquelle | Zahl der Stellplätze | hiervon für Besucher in % |
| 5.11 | Kegel- und Bowlingbahnen | 4 Stellplätze je Bahn | _ |
| 5.12 | Bottshäuser und Bootsliegeplätze | 1 Stellplatz je 5 Boote | _ |
| 5.13 | Fitnesscenter | 1 Stellplatz je 40 m2 Sportfläche | _ |
| 6. | Gaststätten und Beherbergungsbetriebe |
|
|
| 6.1 | Gaststätten | 1 Stellplatz je 10 m2 Gastfläche | 75 |
| 6.2 | Spiel- und Automatenhallen, Billard-Salons, sonst. Vergnügungsstätten | 1 Stellplatz je 20 m2 NUF1), mindestens 3 Stellplätze | 90 |
| 6.3 | Hotels, Pensionen, Kurheime und andere Beherbergungsbetriebe | 1 Stellplatz je 6 Betten,je Restaurationsbetrieb Zuschlag nach den Nrn. 6.1 oder 6.2 | 75 |
| 6.4 | Jugendherbergen | 1 Stellplatz je 15 Betten | 75 |
| 7. | Schulen, Einrichtungen der Jugendförderung |
|
|
| 7.1 | Schulen, Berufsschulen, Berufsfachschulen | 1 Stellplatz je Klasse,zusätzlich 1 Stellplatz je 10 Schüler über 18 Jahre | 10 |
| 7.2 | Hochschulen | 1 Stellplatz je 10 Studierenden | _ |
| 7.3 | Tageseinrichtungen für mehr als 12 Kinder | 1 Stellplatz je 30 Kinder,mindestens 2 Stellplätze | _ |
| 7.4 | Tageseinrichtungen bis zu 12 Kinder | 1 Stellplatz | _ |
| 7.5 | Jugendfreizeitheime und dergl. | 1 Stellplatz je 15 Besucherplätze | _ |
| 7.6 | Berufsbildungswerke, Ausbildungswerkstätten und dergl. | 1 Stellplatz je 10 Auszubildende | _ |
| 8. | Gewerbliche Anlagen |
|
|
| 8.1 | Handwerks- und Industriebetriebe | 1 Stellplatz je 70 m2 NUF1)oder je 3 Beschäftigte | 10 |
| 8.2 | Lagerräume, -plätze,Ausstellungs-, Verkaufplätze | 1 Stellplatz je 100 m2 NUF1) oderje 3 Beschäftigte | _ |
| 8.3 | Kraftfahrzeugwerkstätten | 6 Stellplätze je Wartungs- oder Reparaturstand | _ |
| 8.4 | Tankstellen | Bei Einkaufsmöglichkeit über Tankstellenbedarf hinaus: Zuschlag nach Nr. 3.1 (ohne Besucheranteil) | _ |
| Nr. | Verkehrsquelle | Zahl der Stellplätze | hiervon für Besucher in % |
| 8.5 | Automatische Kfz-Waschanlagen | 5 Stellplätze je Waschanlage | _ |
| 9. | Verschiedenes |
|
|
| 9.1 | Kleingartenanlagen | 1 Stellplatz je 3 Kleingärten | _ |
| 9.2 | Friedhöfe | 1 Stellplatz je 1 500 m2 Grundstücksfläche,jedoch mindestens 10 Stellplätze | _ |
1) NUF = Nutzungsfläche nach DIN 277
Erläuterung zur Ermittlung der anzurechnenden Flächen:
anzurechnende Nutzfläche = Nutzfläche ohne
Bewegungsflächen innerhalb von Räumen sind anzurechnen. Lagerflächen sind nach Maßgabe der Ziffer 8.2. anzurechnen.
Die Maßgaben zur Ermittlung der anzurechnenden Nutzfläche gelten entsprechend.
______________________________________________________________________________
VERWALTUNGSGEMEINSCHAFT WAGING A.SEE
gez. Matthias Baderhuber, 1. Vorsitzender