Titel Logo
Gemeinde-Zeitung Waging a See
Ausgabe 2/2025
Amtsblatt der Verwaltungsgemeinschaft Waging a. See
Zurück zur vorigen Seite
Zurück zur ersten Seite der aktuellen Ausgabe
-

Bekanntmachungen

Luftbild mit Hinweise:

Luftbild mit Hinweise:

Luftbild mit Kennzeichnung der Änderungsbereiche:

Inhaltsübersicht

Schulverband Otting-Wonneberg

Vollzug des Bayerischen Schulfinanzierungsgesetztes (BaySchFG), des Gesetzes über die kommunale Zusammenarbeit (KommZG) und der Gemeindeordnung (GO); Erlass einer Haushaltssatzung des Schulverbandes Otting-Wonneberg für das Jahr 2025  —  Nr. 07/25

Markt Waging a. See

Vollzug des Baugesetzbuches (BauGB);

26. Änderung des Bebauungsplanes „Waging West“ —  Nr. 08/25

Vollzug des Baugesetzbuches (BauGB);

27. Änderung des Bebauungsplanes „Waging West“  — Nr. 09/25

Vollzug des Baugesetzbuches (BauGB);

21. Änderung des Flächennutzungsplanes des Marktes Waging a. See für den Bereich „Otting“  —  Nr. 10/25

Vollzug des Baugesetzbuches (BauGB);

Erlass einer Innenbereichssatzung

(Klarstellungs- und Einbeziehungssatzung) nach § 34 Abs. 4 Satz 1 Nrn. 1 und 3 BauGB im Ortsteil Holzhausen für die Grundstücke Fl.Nrn. 308, 267, 395/10 und 395/3 und 334 der Gemarkung Otting  —  Nr. 11/25

Vollzug des Baugesetzbuches (BauGB);

1. Änderung des Bebauungsplanes Gewerbe- und Mischgebiet

„An der Ottinger Straße II“ mit integriertem Grünordnungsplan  —  Nr. 12/25

Gemeinde Wonneberg

Vollzug der Gemeindeordnung (GO);

Haushaltssatzung der Gemeinde Wonneberg für das Haushaltsjahr 2025 —  Nr. 13 /25


Nr. 07/25

Vollzug des Bayerischen Schulfinanzierungsgesetztes (BaySchFG), des Gesetzes über die kommunale Zusammenarbeit (KommZG) und der Gemeindeordnung (GO)

Haushaltssatzung

des Schulverbandes Otting-Wonneberg, Landkreis Traunstein

für das Haushaltsjahr 2025

Auf Grund Art. 9 des Bayer. Schulfinanzierungsgesetzes (BaySchFG) und Art. 40 des Gesetzes über die kommunale Zusammenarbeit (KommZG) in Verbindung mit Art. 63 ff. der Gemeindeordnung (GO) erlässt der Schulverband folgende Haushaltssatzung:

§ 1

Der als Anlage beigefügte Haushaltsplan für das Haushaltsjahr 2025 wird hiermit festgesetzt;

er schließt im

Verwaltungshaushalt in den Einnahmen und Ausgaben mit

362.700 Euro

und im

Vermögenshaushalt in den Einnahmen und Ausgaben mit

22.800 Euro

ab.

§ 2

Kreditaufnahmen für Investitionen und Investitionsförderungsmaßnahmen sind nicht vorgesehen.

§ 3

Verpflichtungsermächtigungen im Vermögenshaushalt werden nicht festgesetzt.

§ 4

a)

Die Höhe des durch die sonstigen Einnahmen im Verwaltungshaushalt nicht gedeckten Bedarfs, der nach den einschlägigen Bestimmungen auf die Mitglieder des Schulverbands umgelegt werden soll (Verwaltungsumlage) wird auf 262.200 Euro festgesetzt (Umlagesoll).

b)

Die Höhe des durch die sonstigen Einnahmen im Vermögenshaushalt nicht gedeckten Bedarfs, der nach den einschlägigen Bestimmungen auf die Mitglieder des Schulverbands umgelegt werden soll (Investitionsumlage) wird auf 0 Euro festgesetzt (Umlagesoll).

c)

Für die Bemessung der Umlage wird die Schülerzahl nach dem Stand vom 1. Oktober 2024 herangezogen (Bemessungsgrundlage).

d)

Die Verbandsschule wurde am 1. Oktober 2024 von insgesamt 125 Schülern (ohne Gastschüler) besucht. Für die Bemessung der Schulverbandsumlage nach der Schülerzahl beträgt der Betrag je Schüler

im Verwaltungshaushalt

2.097,60 Euro

im Vermögenshaushalt

0,00 Euro.

§ 5

Der Höchstbetrag der Kassenkredite zur rechtzeitigen Leistung von Ausgaben nach dem Haushaltsplan wird auf 25.000 Euro festgesetzt.

§ 6

Diese Haushaltssatzung tritt mit dem 1. Januar 2025 in Kraft.

I.)

Die Haushaltssatzung wurde gem. Art. 65 Abs. 2 GO dem Landratsamt als Rechtsaufsichtsbehörde vorgelegt, welche mit Schreiben vom 09.01.2025, Az. K.20-940-240009 festgestellt hat, dass die Haushaltssatzung keine genehmigungspflichtigen Bestandteile enthält.

II.)

Die Haushaltssatzung des Schulverbands Otting-Wonneberg für das Jahr 2025 liegt ab dem Tag der Veröffentlichung der Haushaltssatzung samt ihren Anlagen bis zur nächsten amtlichen Bekanntmachung einer Haushaltssatzung in der Kämmerei der Verwaltungsgemeinschaft Waging a. See, Salzburger Str. 1, 83329 Waging a. See, Zimmer Nr. 3.02, während der allgemeinen Geschäftsstunden zur Einsichtnahme auf.

Waging a. See, den 16.01.2025

SCHULVERBAND OTTING-WONNEBERG

gez. Martin Fenninger, Verbandsvorsitzender

Nr. 08/25

Vollzug des Baugesetzbuches (BauGB);

26. Änderung des Bebauungsplanes „Waging West“

Öffentliche Bekanntmachung

des Aufstellungsbeschlusses und der öffentlichen Auslegung

über die Änderung eines Bebauungsplanes der Innenentwicklung im beschleunigten Verfahren nach § 13a Abs. 3 Satz 1 BauGB

Der Bauausschuss des Marktes Waging a. See hat in seiner Sitzung am 05.02.2025 die Aufstellung der 26. Änderung des Bebauungsplanes „Waging West“ beschlossen.

Dieser Beschluss wird hiermit nach § 2 Abs. 1 Satz 2 i.V. mit § 13a Abs. 2 mit Abs. 3 Satz 1 BauGB bekannt gemacht.

Der räumliche Geltungsbereich ergibt sich aus dem nachfolgenden Kartenausschnitt, der Bestandteil der Bekanntmachung ist:

Der Geltungsbereich befindet sich zwischen den Gebäuden Westendstraße 30 und Wiesenweg 4 und grenzt im Westen an das Gebäude Wiesenweg 4 a an.

Maßgebend ist der Entwurf des Bebauungsplanes in der Fassung vom 30.01.2025.

Ziele und Zwecke der Planung

Mit der Änderung soll ein zusätzliches Baurecht im Zuge der Nachverdichtung geschaffen werden. Die seitliche Wandhöhe soll aufgrund der umliegenden Bebauung auf max. 6,30 m geplant werden. Die Grundflächenzahl wird auf max. 0,40 und die Geschoßflächenzahl auf max. 0,5 festgesetzt.

Alle anderen Festsetzungen der rechtsverbindlichen Satzung bleiben unverändert gültig.

Der Bebauungsplan wird ohne Durchführung einer Umweltprüfung nach § 2 Abs. 4 BauGB aufgestellt. Der Öffentlichkeit sowie den berührten Behörden und sonstigen Trägern öffentlicher Belange wird Gelegenheit zur Stellungnahme gegeben.

Der Entwurf des Bebauungsplanes in der Fassung vom 30.01.2025 und die Begründung in der Fassung vom 29.01.2025 sind im Internet auf der Homepage der Verwaltungsgemeinschaft Waging a. See unter der Internetseite

https://www.vgwaging.de/bauen/wirtschaft/bauleitplanung/markt-waging-a-see

während der Dauer der nachfolgenden Frist

von 24.02.2025 bis einschließlich 24.03.2025

veröffentlicht.

Innerhalb dieser Veröffentlichungsfrist werden die oben genannten Unterlagen zusätzlich zur Veröffentlichung im Internet im Rathaus der Verwaltungsgemeinschaft Waging a. See, Salzburger Str. 1 in 83329 Waging a. See, II Stock – auf dem Flur, während der allgemeinen Dienststunden ausgelegt.

Auf Wunsch wird die Planung erläutert. Während der Auslegungsfrist kann jedermann Stellungnahmen (schriftlich oder zur Niederschrift) zu dem Entwurf abgeben (§ 13a Abs. 2 i.V. mit § 13 Abs. 2 Nr. 2 BauGB und § 3 Abs. 2 BauGB).

Nicht fristgerecht abgegebene Stellungnahmen können bei der Beschlussfassung über die Änderung des Bebauungsplans unberücksichtigt bleiben, wenn die Gemeinde den Inhalt nicht kannte und nicht hätte kennen müssen und deren Inhalt für die Rechtmäßigkeit der Änderung und Erweiterung des Bebauungsplanes nicht von Bedeutung ist.

Der Inhalt dieser Bekanntmachung und die auszulegenden Unterlagen sind zusätzlich im Internet unter der Internetadresse unter https://www.vgwaging.de/ unter der Rubrik Bauen/ Wirtschaft, Bauleitplanung des Marktes Waging a. See eingestellt.

Die veröffentlichten Unterlagen und der Inhalt dieser Bekanntmachung sind auch über das zentrale Internetportal des Landes zugänglich.

Da das Ergebnis der Behandlung der Stellungnahmen mitgeteilt wird, ist die Angabe der Anschrift des Verfassers zweckmäßig.

Datenschutz:

Die Verarbeitung personenbezogener Daten erfolgt auf der Grundlage der Art. 6 Abs. 1 Buchstabe e (DSGVO) i. V. mit § 3 BauGB und dem BayDSG. Sofern Sie Ihre Stellungnahme ohne Absenderangaben abgeben, erhalten Sie keine Mitteilung über das Ergebnis der Prüfung. Weitere Informationen entnehmen Sie bitte dem Formblatt „Datenschutzrechtliche Informationspflichten im Bauleitplanverfahren“ das ebenfalls öffentlich ausliegt.

Waging a. See, den 12.02.2025

MARKT WAGING A. SEE

gez. Matthias Baderhuber, 1. Bürgermeister

_____________________________________________________________________________

Nr. 09/25

Vollzug des Baugesetzbuches (BauGB);

27. Änderung des Bebauungsplanes „Waging West“

Öffentliche Bekanntmachung

des Aufstellungsbeschlusses und der öffentlichen Auslegung

über die Änderung eines Bebauungsplanes der Innenentwicklung im beschleunigten Verfahren nach § 13a Abs. 3 Satz 1 BauGB

Der Bauausschuss des Marktes Waging a. See hat in seiner Sitzung am 05.02.2025 die Aufstellung der 27. Änderung des Bebauungsplanes „Waging West“ beschlossen.

Dieser Beschluss wird hiermit nach § 2 Abs. 1 Satz 2 i.V. mit § 13a Abs. 2 mit Abs. 3 Satz 1 BauGB bekannt gemacht.

Der räumliche Geltungsbereich ergibt sich aus dem nachfolgenden Kartenausschnitt, der Bestandteil der Bekanntmachung ist:

Der Geltungsbereich befindet sich nördlich der Rosenstraße und zwischen den Gebäuden Rosenstraße 12 a und Westendstraße 24

Maßgebend ist der Entwurf des Bebauungsplanes in der Fassung vom 27.01.2025.

Ziele und Zwecke der Planung

Die Änderung des Bebauungsplans dient dem Ziel, bei den vorhandenen Garagen die Möglichkeit der Aufstockung zur Schaffung von zusätzlichem Wohnraum herbeizuführen.

Eine derartige Lösung ist städtebaulich vertretbar und einer Erweiterung in die Fläche, wegen der damit verbundenen Versiegelung, vorzuziehen.

Ziel der Bebauungsplanänderung ist die Anpassung des Maßes der baulichen Nutzung und der Bauräume an die konkreten Bauabsichten der jeweiligen Eigentümer.

Die seitliche Wandhöhe der Aufstockung der Garagen wird mit nördlich max. 5,60m und südlich mit max. 8,00 m geplant.

Der Einbau von Gauben (Schleppgauben) bzw. Quergiebeln ist auf den Haupt- und Nebengebäuden zulässig. Vorliegend werden abstandsabweichende Vorschriften festgesetzt. Hierbei müssen alle Grundstückseigentümer ausdrücklich erklären, dass diese mit der Änderung einverstanden sind. Bei den Abstandsflächen handelt es sich um nachbarschützende Vorschriften.

Der Bebauungsplan wird ohne Durchführung einer Umweltprüfung nach § 2 Abs. 4 BauGB aufgestellt. Der Öffentlichkeit sowie den berührten Behörden und sonstigen Trägern öffentlicher Belange wird Gelegenheit zur Stellungnahme gegeben.

Der Entwurf des Bebauungsplanes und Begründung jeweils in der Fassung vom 27.01.2025 sind im Internet auf der Homepage der Verwaltungsgemeinschaft Waging a. See unter der Internetseite https://www.vgwaging.de/bauen/wirtschaft/bauleitplanung/markt-waging-a-see

während der Dauer der nachfolgenden Frist

von 24.02.2025 bis einschließlich 24.03.2025

veröffentlicht.

Innerhalb dieser Veröffentlichungsfrist werden die oben genannten Unterlagen zusätzlich zur Veröffentlichung im Internet im Rathaus der Verwaltungsgemeinschaft Waging a. See, Salzburger Str. 1 in 83329 Waging a. See, II Stock – auf dem Flur, während der allgemeinen Dienststunden ausgelegt.

Auf Wunsch wird die Planung erläutert. Während der Auslegungsfrist kann jedermann Stellungnahmen (schriftlich oder zur Niederschrift) zu dem Entwurf abgeben (§ 13a Abs. 2 i.V. mit § 13 Abs. 2 Nr. 2 BauGB und § 3 Abs. 2 BauGB).

Nicht fristgerecht abgegebene Stellungnahmen können bei der Beschlussfassung über die Änderung des Bebauungsplans unberücksichtigt bleiben, wenn die Gemeinde den Inhalt nicht kannte und nicht hätte kennen müssen und deren Inhalt für die Rechtmäßigkeit der Änderung und Erweiterung des Bebauungsplanes nicht von Bedeutung ist.

Der Inhalt dieser Bekanntmachung und die auszulegenden Unterlagen sind zusätzlich im Internet unter der Internetadresse unter https://www.vgwaging.de/ unter der Rubrik Bauen/ Wirtschaft, Bauleitplanung des Marktes Waging a. See eingestellt.

Die veröffentlichten Unterlagen und der Inhalt dieser Bekanntmachung sind auch über das zentrale Internetportal des Landes zugänglich.

Da das Ergebnis der Behandlung der Stellungnahmen mitgeteilt wird, ist die Angabe der Anschrift des Verfassers zweckmäßig.

Datenschutz:

Die Verarbeitung personenbezogener Daten erfolgt auf der Grundlage der Art. 6 Abs. 1 Buchstabe e (DSGVO) i. V. mit § 3 BauGB und dem BayDSG. Sofern Sie Ihre Stellungnahme ohne Absenderangaben abgeben, erhalten Sie keine Mitteilung über das Ergebnis der Prüfung. Weitere Informationen entnehmen Sie bitte dem Formblatt „Datenschutzrechtliche Informationspflichten im Bauleitplanverfahren“ das ebenfalls öffentlich ausliegt.

Waging a. See, den 12.02.2025

MARKT WAGING A. SEE

gez. Matthias Baderhuber, 1. Bürgermeister

______________________________________________________________________________

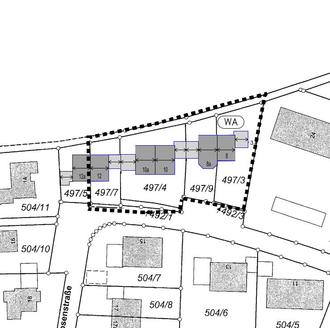
Nr. 10/25

Vollzug des Baugesetzbuches (BauGB);

21. Änderung des Flächennutzungsplanes des Marktes Waging a. See für den Bereich „Otting“

Bekanntmachung

über den Aufstellungsbeschluss zur 21. Änderung des Flächennutzungsplanes gemäß § 2 Abs. 1 Satz 2 BauGB sowie über die frühzeitige Öffentlichkeitsbeteiligung

Der Gemeinderat Waging a. See hat am 23.01.2025 beschlossen, den Flächennutzungsplan im Bereich „Otting“ gemäß § 2 Abs. 1 BauGB in Verbindung mit § 1 Abs. 8 BauGB zu ändern und eine frühzeitige Beteiligung der Öffentlichkeit nach § 3 Abs. 1 BauGB durchzuführen.

Der Beschluss wird hiermit öffentlich bekannt gemacht.

Die Geltungsbereiche sind im nachfolgenden Lageplan umrandet.

Im Einzelnen gilt der Lageplan des Flächennutzungsplanes in der Fassung vom 16.01.2025

Der Änderungsbereich erstreckt sich auf drei Bereiche:

Nr. 21.1 Gemeinbedarfsfläche für Feuerwehr

Im Änderungsbereich Nr. 21.1 soll eine Fläche von ca. 3.100 m² als Fläche für den Gemeinbedarf mit Zweckbestimmung Feuerwehr dargestellt werden. Diese befindet sich an der ST 2104 an der (Holzhauser Straße) am nördlichen Ortsausgang von Otting. Der Bereich grenzt direkt an die bestehenden Bolzplätze an.

Nr. 21.2 WA-Ausweisung

Im Änderungsbereich 21.2 soll eine WA-Fläche von ca. 3.000 m² dargestellt werden. Diese befindet sich südlich der Schulstraße und südwestlich der Anwesen Schulstraße 7 und Balthasar-Permoser-Straße 1.

Nr. 21.3 Reduzierung der WA-Fläche

Im Änderungsbereich 21.3 soll dem Grundsatz der flächensparenden Siedlungsentwicklung folgend, die dargestellte Entwicklungsfläche um das Maß der im Bereich 21.2 neu dargestellten Flächen reduziert werden. Die in Otting dargestellten Bauflächen werden damit insgesamt nicht vergrößert. Die Reduzierung der WA-Flächen befindet sich zwischen der Raiffeisenstraße und der Zufahrt zum Sportplatz (Holzhauser Straße 20).

Wie oben bereits erwähnt umfasst die 21. Änderung des Flächennutzungsplanes umfasst die Darstellung einer Gemeinbedarfsfläche für Feuerwehr, die Ausweisung einer Wohnbaufläche, vorliegend eines allgemeinen Wohngebiets sowie die Reduzierung einer Wohnbaufläche in eine Grünfläche.

Ziel der 21. Änderung des Flächennutzungsplanes ist die Erlangung der bauplanungsrechtlichen Zulässigkeit für die Ausweisung von Baugrundstücken sowie die Errichtung eines Feuerwehrhauses. Der Geltungsbereich der 21. Änderung des Flächennutzungsplanes befindet sich an drei verschiedenen Stellen, welche bereits oben beschrieben wurden.

Die vom Gemeinderat Waging a. See beschlossene 21. Änderung des Flächennutzungsplanes ergibt sich aus dem Planentwurf des Büros für Bauleitplanung Josef Brüderl aus Freilassing vom 16.01.2025. Der Entwurf der 21. Flächennutzungsplanänderung kann zusammen mit der Begründung jeweils in der Fassung vom 16.01.2025 sowie dem Umweltbericht gefertigt von Landschaftsarchitekten PartGmbB Mühlbacher und Hilse aus Traunstein in der Fassung vom 16.01.2025 in der Zeit vom

24.02.2025 bis einschließlich 24.03.2025

im Rathaus der Verwaltungsgemeinschaft Waging a. See, Salzburger Straße 1 in 83329 Waging a. See, II. Stock – auf dem Flur, während der allgemeinen Dienststunden von jedermann eingesehen werden.

Auf Wunsch werden die Ziele und Zwecke der Planung erläutert. Die Stellungnahmen sollen elektronisch an die E-Mail-Adresse

bauamt@waging.de

übermittelt werden. Bei Bedarf können Stellungnahmen aber auch auf anderem Wege (z.B. schriftlich oder mündlich zur Niederschrift) bei der Gemeinde abgegeben werden.

Nicht fristgerecht abgegebene Stellungnahmen können bei der Beschlussfassung über die Änderung des Flächennutzungsplanes unberücksichtigt bleiben, wenn die Gemeinde Waging a. See den Inhalt nicht kannte und nicht hätte kennen müssen und deren Inhalt für die Rechtmäßigkeit des Bebauungsplans nicht von Bedeutung ist.

Der Inhalt dieser Bekanntmachung und die auszulegenden Unterlagen sind auch im Internet unter http://www.vgwaging.de unter der Rubrik Bauen/Wirtschaften; Bauleitplanung der Gemeinde Waging a. See veröffentlicht.

Datenschutz:

Die Verarbeitung personenbezogener Daten erfolgt auf der Grundlage der Art. 6 Abs. 1 Buchstabe e (DSGVO) i. V. mit § 3 BauGB und dem BayDSG. Sofern Sie Ihre Stellungnahme ohne Absenderangaben abgeben, erhalten Sie keine Mitteilung über das Ergebnis der Prüfung. Weitere Informationen entnehmen Sie bitte dem Formblatt „Datenschutzrechtliche Informationspflichten im Bauleitplanverfahren“ das ebenfalls öffentlich ausliegt.

Waging a. See, den 12.02.2025

MARKT WAGING A. SEE

gez. Matthias Baderhuber, 1. Bürgermeister

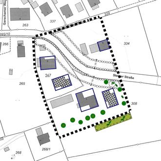
Nr. 11/25

Vollzug des Baugesetzbuches (BauGB);

Erlass einer Innenbereichssatzung (Klarstellungs- und Einbeziehungssatzung) nach § 34 Abs. 4 Satz 1 Nrn. 1 und 3 BauGB im Ortsteil Holzhausen für die Grundstücke Fl.Nrn. 308, 267, 395/10 und 395/3 und 334 der Gemarkung Otting

Öffentliche Bekanntmachung

über die erneute öffentliche Auslegung eines Satzungsentwurfes

Der Bauausschuss hat in seiner Sitzung am 11.09.2024 die Aufstellung der Innenbereichssatzung nach § 34 Abs. 4 Satz 1 Nrn. 1 und 3 BauGB im Ortsteil Holzhausen beschlossen. Betroffen sind die Grundstücke Fl.Nrn. 308, 267, 395/10 und 395/3 und 334 der Gemarkung Otting. In der Sitzung am 05.02.2025 erfolgte die Abwägung der eingegangenen Stellungnahmen und es wurde ein erneuter Auslegungsbeschluss gefasst.

Die Innenbereichssatzung nach § 34 Abs. 4 Satz 1 Nrn. 1 und 3 BauGB dient der eindeutigen Abgrenzung zwischen Innen- und Außenbereich auf den genannten Grundstücken. Auf dem Grundstück Fl.Nr. 308 der Gemarkung Otting soll für einen Einheimischen Bauland geschaffen werden. Die derzeit noch nicht überbaute Fläche auf dem Grundstück Fl.Nr. 267 der Gemarkung Otting wird bereits jetzt als Baulücke betrachtet und soll durch die gegenständliche Satzung nicht schlechter gestellt werden.

Der räumliche Geltungsbereich ergibt sich aus dem nachfolgenden Kartenausschnitt, der Bestandteil der Bekanntmachung ist:

Der Geltungsbereich befindet sich beidseits an der St 2104 am östlichen Ortseingang des Ortsteils Holzhausen an der Steiner Straße.

Maßgebend ist der Entwurf der Innenbereichssatzung mit Begründung jeweils in der Fassung vom 05.02.2025.

Der Öffentlichkeit sowie den berührten Behörden und sonstigen Trägern öffentlicher Belange wird Gelegenheit zur Stellungnahme gegeben.

Der Entwurf der Innenbereichssatzung (Einbeziehungssatzung) „Holzhausen“ mit Begründung jeweils in der Fassung vom 05.02.2025 sind im Internet auf der Homepage des Marktes Waging a. See unter der Internetseite

https://www.vgwaging.de/bauen/wirtschaft/bauleitplanung/markt-waging-a-see

während der Dauer der nachfolgenden Frist

von 24.02.2025 bis einschließlich 17.03.2025

veröffentlicht.

Innerhalb dieser Veröffentlichungsfrist werden die oben genannten Unterlagen zusätzlich zur Veröffentlichung im Internet im Rathaus der Verwaltungsgemeinschaft Waging a. See, Salzburger Str. 1 in 83329 Waging a. See, II Stock – auf dem Flur, während der allgemeinen Dienststunden ausgelegt.

Auf Wunsch wird die Planung erläutert. Während der Auslegungsfrist kann jedermann Stellungnahmen zu dem Entwurf abgeben § 34 Abs. 4 Satz 1 Nrn. 1 und 3, Abs. 6 i.V. mit § 13 Abs. 2 Nr. 2 BauGB).

Die Stellungnahmen sollen elektronisch an die E-Mail-Adresse bauamt@waging.de übermittelt werden. Bei Bedarf können Stellungnahmen aber auch auf anderem Wege (z.B. schriftlich oder mündlich zur Niederschrift) bei der Gemeinde abgegeben werden.

Da das Ergebnis der Behandlung der Stellungnahmen mitgeteilt wird, ist die Angabe der Anschrift des Verfassers zweckmäßig.

Es wird darauf hingewiesen, dass nicht fristgerecht abgegebene Stellungnahmen bei der Beschlussfassung über die Innenbereichssatzung unberücksichtigt bleiben können.

Der Inhalt dieser Bekanntmachung und die auszulegenden Unterlagen sind zusätzlich im Internet unter der Internetadresse unter https://www.vgwaging.de/ unter der Rubrik Bauen/ Wirtschaft, Bauleitplanung der Markt Waging a. See eingestellt.

Die veröffentlichten Unterlagen und der Inhalt dieser Bekanntmachung sind auch über das zentrale Internetportal des Landes zugänglich.

Da das Ergebnis der Behandlung der Stellungnahmen mitgeteilt wird, ist die Angabe der Anschrift des Verfassers zweckmäßig.

Datenschutz:

Die Verarbeitung personenbezogener Daten erfolgt auf der Grundlage der Art. 6 Abs. 1 Buchstabe e (DSGVO) i. V. mit § 3 BauGB und dem BayDSG. Sofern Sie Ihre Stellungnahme ohne Absenderangaben abgeben, erhalten Sie keine Mitteilung über das Ergebnis der Prüfung. Weitere Informationen entnehmen Sie bitte dem Formblatt „Datenschutzrechtliche Informationspflichten im Bauleitplanverfahren“ das ebenfalls öffentlich ausliegt.

Waging a. See, den 12.02.2025

MARKT WAGING A. SEE

gez. Matthias Baderhuber, 1. Bürgermeister

______________________________________________________________________________

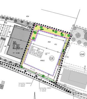
Nr. 12/25

Vollzug des Baugesetzbuches (BauGB);

1. Änderung des Bebauungsplanes Gewerbe- und Mischgebiet „An der Ottinger Straße II“ mit integriertem Grünordnungsplan

Öffentliche Bekanntmachung

Veröffentlichung im Internet gem. § 3 Abs. 2 BauGB

Der Bauausschuss des Marktes Waging a. See hat am 05.02.2025 in öffentlicher Sitzung beschlossen, den Bebauungsplan Gewerbe- und Mischgebiet „An der Ottinger Straße II“ mit integriertem Grünordnungsplan in der Fassung vom 28.01.2025 samt Begründung vom 29.01.2025 sowie den Umweltbericht mit Grünordnungsplan in der Fassung vom 19.12.2024 gebilligt und beschlossen, diesen nach § 3 Abs. 2 BauGB im Internet zu veröffentlichen.

Der Geltungsbereich des Bebauungsplanes wird wie folgt begrenzt

im Norden:

Landwirtschaftliche Flächen, welche sich südlich der

Anwesen Fichtenweg 30 und 32 befinden

im Osten:

Baugeschäft an der Ottinger Straße 2

im Süden:

Gemeindestraße mit der Bezeichnung Ottinger Straße

im Westen:

Einzelhandelsgeschäft REWE (Ottinger Straße 12)

und ergibt sich aus nachfolgendem Lageplan:

Für den Planbereich ist das Plankonzept vom 28.01.2025 gefertigt vom Bautechnischen Büro Kleißl, Waging a. See

bzw. der Grünordnungsplan vom 19.12.2024, gefertigt vom Landschaftsarchitekturbüro Mühlbacher und Hilse PartGmbB maßgebend.

Ziele und Zwecke der Planung:

Mit der Änderung des Bebauungsplanes sollen die planungsrechtlichen Voraussetzungen für die Errichtung eines Getränkemarktes mit einer maximalen Verkaufsfläche von 600 m² geschaffen werden. In diesem Zuge soll eine zusätzliche Einfahrt entstehen.

Der Entwurf der Bebauungsplanänderung 1. Änderung des Bebauungsplanes Gewerbe- und Mischgebiet „An der Ottinger Straße II“, bestehend aus Planzeichnung, Textteil mit Begründung, Umweltbericht und Grünordnungsplan sowie die nach Einschätzung der Gemeinde wesentlichen, bereits vorliegenden umweltbezogenen Stellungnahmen werden gemäß § 3 Abs. 2 BauGB in der Zeit vom

24.02.2025 bis einschließlich 24.03.2025

im Internet veröffentlicht und sind auf der Homepage der Gemeinde bzw. der VG Waging a. See

https://www.vgwaging.de unter der Rubrik

BAUEN/WIRTSCHAFT/ BAULEITPLANUNG / Markt Waging a. See unter https://www.vgwaging.de/bauen/wirtschaft/bauleitplanung/markt-waging-a-see

oder im Geoportal Bayern https://geoportal.bayern.de/bauleitplanungsportal/

Gemeindename: Waging a. See-> laufende Bauleitplanverfahren einsehbar.

Folgende Arten umweltbezogener Informationen sind verfügbar:

Es wird auf folgendes hingewiesen:

Stellungnahmen können während der Dauer der Veröffentlichungsfrist abgeben werden.

Stellungnahmen sollen elektronisch übermittelt werden (bauamt@waging.de), können bei Bedarf aber auch auf anderem Weg (z.B. schriftlich oder mündlich zur Niederschrift) abgegeben werden. Da das Ergebnis der Behandlung der Stellungnahmen mitgeteilt wird, ist die Angabe der Anschrift des Verfassers zweckmäßig.

Nicht fristgerecht abgegebene Stellungnahmen können bei der Beschlussfassung über den Bebauungsplan unberücksichtigt bleiben.

Neben der Veröffentlichung im Internet werden die im Internet veröffentlichten Unterlagen während der Veröffentlichungsfrist auch in Papierform im Rathaus der Verwaltungsgemeinschaft Waging a. See, Salzburger Straße 1 in 83329 Waging a. See, II. Stock – auf dem Flur, während der allgemeinen Dienststunden von jedermann eingesehen werden.

Auf Wunsch werden die Ziele und Zwecke der Planung erläutert. Stellungnahmen können während dieser Frist in Textform oder während der Dienststunden zur Niederschrift abgegeben werden.

Nicht fristgerecht abgegebene Stellungnahmen können bei der Beschlussfassung über die Änderung des Bebauungsplans unberücksichtigt bleiben, wenn der Markt Waging a. See den Inhalt nicht kannte und nicht hätte kennen müssen und deren Inhalt für die Rechtmäßigkeit des Bebauungsplans nicht von Bedeutung ist.

Datenschutz:

Die Verarbeitung personenbezogener Daten erfolgt auf der Grundlage der Art. 6 Abs. 1 Buchstabe e (DSGVO) i. V. mit § 3 BauGB und dem BayDSG. Sofern Sie Ihre Stellungnahme ohne Absenderangaben abgeben, erhalten Sie keine Mitteilung über das Ergebnis der Prüfung. Weitere Informationen entnehmen Sie bitte dem Formblatt „Datenschutzrechtliche Informationspflichten im Bauleitplanverfahren“ das ebenfalls öffentlich ausliegt.

Waging a. See, den 12.02.2025

MARKT WAGING A. SEE

gez. Matthias Baderhuber, 1. Bürgermeister

______________________________________________________________________________

Nr.13 /25

Vollzug der Gemeindeordnung (GO);

Haushaltssatzung der Gemeinde Wonneberg für das Haushaltsjahr 2025

Haushaltssatzung der Gemeinde Wonneberg

(Landkreis Traunstein) für das Haushaltsjahr 2025

Aufgrund der Art. 63 ff. der Gemeindeordnung erlässt die Gemeinde Wonneberg folgende

Haushaltssatzung

§ 1

Der als Anlage beigefügte Haushaltsplan für das Haushaltsjahr 2025 wird hiermit festgesetzt; er schließt

im Verwaltungshaushalt in den Einnahmen und Ausgaben mit

3.316.600 € und

im Vermögenshaushalt in den Einnahmen und Ausgaben mit

860.600 € ab.

§ 2

Kreditaufnahmen für Investitionen und Investitionsförderungsmaßnahmen sind nicht vorgesehen.

§ 3

Verpflichtungsermächtigungen im Vermögenshaushalt werden nicht festgesetzt.

§ 4

Der Höchstbetrag der Kassenkredite zur rechtzeitigen Leistung von Ausgaben nach dem Haushaltsplan wird auf 200.000 € festgesetzt.

§ 5

Diese Haushaltssatzung tritt mit dem 01.01.2025 in Kraft.

Nachrichtliche Angaben:

Die Steuersätze (Hebesätze) für nachstehende Gemeindesteuern wurden in der Satzung vom 13.11.2024 wie folgt festgesetzt

1.

Grundsteuer

a)

für die land- und forstwirtschaftlichen Betriebe (A)

350 v. H.

b)

für die Grundstücke (B)

350 v. H.

2.

Gewerbesteuer

330 v. H.

I.)

Die Haushaltssatzung wurde gem. Art. 65 Abs. 2 GO dem Landratsamt Traunstein als Rechtsaufsichtsbehörde vorgelegt, welche mit Bescheid vom 23.01.2025, Az.: K.20-940-240009, festgestellt hat, dass die Haushaltssatzung keine genehmigungspflichtigen Bestandteile enthält.

II.)

Die Haushaltssatzung der Gemeinde Wonneberg für das Jahr 2025 liegt ab dem Tag der Veröffentlichung der Haushaltssatzung samt ihren Anlagen bis zur nächsten amtlichen Bekanntmachung einer Haushaltssatzung in der Kämmerei der Verwaltungsgemeinschaft Waging a. See, Salzburger Str. 1, 83329 Waging a. See, Zimmer 3.02, während der allgemeinen Geschäftsstunden zur Einsichtnahme auf.

Waging a. See, den 28.01.2025

GEMEINDE WONNEBERG

gez. Martin Fenninger, 1. Bürgermeister

VERWALTUNGSGEMEINSCHAFT WAGING A.SEE

gez. Matthias Baderhuber, 1. Vorsitzender