Titel Logo
Gemeinde-Zeitung Waging a See
Ausgabe 3/2023
Amtsblatt der Verwaltungsgemeinschaft Waging a. See
Zurück zur vorigen Seite
Zurück zur ersten Seite der aktuellen Ausgabe
-

Amtsblatt 032023

Amtliche Bekanntmachungen

Inhaltsübersicht:

Markt Waging a. See

Vollzug des Baugesetzbuches (BauGB);

2. Änderung des Bebauungsplanes „Anger Nord“, im Verfahren

nach § 13a BauGB, des Marktes Waging a. See  — Nr. 10/23

Gemeinde Taching a. See

Vollzug des Baugesetzbuches (BauGB);

Erlass der 1- Änderung der Entwicklungssatzung „Limberg“ nach

§ 34 Abs. 4 S. 1 Nrn. 2 BauGB, der Gemeinde Taching a. See — Nr. 11/23

Gemeinde Wonneberg

Vollzug des Kommunalabgabengesetzes und des Kostengesetzes;

Friedhofsgebührensatzung (FGS) der Gemeinde Wonneberg — Nr. 12/23


Nr. 10/23

Vollzug des Baugesetzbuches (BauGB);

2. Änderung des Bebauungsplanes „Anger Nord“, im Verfahren nach § 13a BauGB, des Marktes Waging a. See

Öffentliche Bekanntmachung

über die öffentliche Auslegung

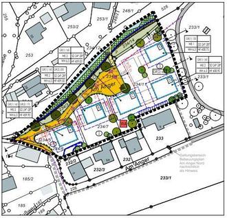
Der Bauausschuss des Marktes Waging a. See hat in seiner Sitzung am 27.07.2022 die Änderung des Bebauungsplanes „Anger Nord“ beschlossen. Betreffend die Flurnummern 234/3, 234/6, 234/7, 234/11, 234/12, 234/13, 234/14, 233/1 Tfl. (private Stellplätze) sowie 234/4, 234/5 und 228/Tfl. (öffentliche Verkehrsfläche „Am Anger“), jeweils der Gemarkung Waging a. See. Der Bebauungsplan wird im Verfahren nach § 13a BauGB, ohne Durchführung einer Umweltprüfung nach § 2 Abs. 4 BauGB, aufgestellt.

Der räumliche Geltungsbereich ergibt sich aus dem nachfolgenden Kartenausschnitt, der Bestandteil der Bekanntmachung ist:

Für das Gebiet werden die folgenden (allgemeinen) Planungsziele angestrebt:

Im Rahmen der Herstellung der Erschließungsstraße zeigte sich, dass die in der Bauleitplanung vorgegebenen Straßenhöhen aufgrund der Topographie nicht eingehalten werden konnten. Es ist deshalb erforderlich, die Höhenlage der Gebäude, an die neue Straßensituation anzupassen.

Weiter wird auf der Baufläche Nr. 3 eine Nachverdichtung der Bebauung angestrebt. Anstatt der zulässigen Nutzung von zwei Mehrfamilienhäusern sollen nun zwei Doppelhäuser entstehen und es soll auch noch ein weiteres Einfamilienhaus auf der Baufläche entstehen.

Die (erste) öffentliche Auslegung sowie Beteiligung der Behörden und sonstigen Träger öffentlicher Belange fand bereits im Zeitraum August - September 2022 statt.

Im nachfolgenden fand eine Umplanung statt. Die Änderung der Planung für die Baufenster C und D (2x Doppelhäuser anstatt 2x MFH) sowie der Herausnahme der Parkplätze südlich der Änderungsbereiches.

Die neuen Bebauungsplanentwürfe (i.d. Fassung vom 15.02.23) wurden in öffentlicher Sitzung des Bauausschusses am 15.02.2023 gebilligt und zur erneuten Auslegung bestimmt.

Der Bebauungsplanentwurf samt Begründung in der Fassung vom 15.02.2023 kann

ab dem 27.03.2023 bis einschließlich 27.04.2023

im Rathaus der Verwaltungsgemeinschaft Waging a. See, Salzburger Str. 1 in 83329 Waging a. See, II Stock - auf dem Flur, während der allgemeinen Dienststunden von jedermann eingesehen werden. Auf Wunsch wird die Planung erläutert. Während der Auslegungsfrist kann jedermann Stellungnahmen (schriftlich oder zur Niederschrift) zu dem Entwurf abgeben (§ 13a Abs. 2 i.V. mit § 13 Abs. 2 Nr. 2 und § 3 Abs. 2 BauGB).

Nicht fristgerecht abgegebene Stellungnahmen können bei der Beschlussfassung über die Änderung des Bebauungsplans unberücksichtigt bleiben, wenn die Gemeinde den Inhalt nicht kannte und nicht hätte kennen müssen und deren Inhalt für die Rechtmäßigkeit der Änderung des Bebauungsplanes nicht von Bedeutung ist.

Der Inhalt dieser Bekanntmachung und die nach § 3 Abs. 2 Satz 1 BauGB auszulegenden Unterlagen sind auch im Internet unter https://www.vgwaging.de/ unter der Rubrik Bauen/ Wirtschaft, Bauleitplanung des Marktes Waging a. See einsehbar.

Datenschutz:

Die Verarbeitung personenbezogener Daten erfolgt auf der Grundlage der Art. 6 Abs. 1 Buchstabe e (DSGVO) i. V. mit § 3 BauGB und dem BayDSG. Sofern Sie Ihre Stellungnahme ohne Absenderangaben abgeben, erhalten Sie keine Mitteilung über das Ergebnis der Prüfung. Weitere Informationen entnehmen Sie bitte dem Formblatt „Datenschutzrechtliche Informationspflichten im Bauleitplanverfahren“ das ebenfalls öffentlich ausliegt.

Waging a. See, den 23.02.2023

MARKT WAGING A. SEE

gez. Matthias Baderhuber, 1. Bürgermeister


Nr. 11/23

Vollzug des Baugesetzbuches (BauGB);

Erlass der 1- Änderung der Entwicklungssatzung „Limberg“ nach § 34 Abs. 4 S. 1 Nrn. 2 BauGB, der Gemeinde Taching a. See

Bekanntmachung

des Satzungsbeschlusses
gemäß § 34 Abs. 6 BauGB i.V. mit § 10 Abs. 3 BauGB

Der Gemeinderat der Gemeinde Taching a. See hat in öffentlicher Sitzung am 02.03.2023 den Erlass der 1. Änderung der Entwicklungssatzung „Limberg“ gemäß § 34 Abs. 4 Satz 1 Nr. 2 BauGB, beschlossen.

Im Satzungsbereich der Entwicklungssatzung soll die Möglichkeit für ein zusätzliches Wohngebäude geschaffen werden, hierzu muss der Satzungsumgriff geringfügig erweitert und eine zusätzliche Baugrenze eingetragen werden, um eine geordnete städtebauliche Entwicklung zu gewährleisten. Im Süden soll ein bestehendes Wohngebäude erweitert werden. Auch hier ist es erforderlich die Baugrenzen an der Stelle zu erweitern. Mit der Satzungsänderung soll eine bedachtsame Weiterentwicklung des Ortsteils Limberg ermöglicht werden.

Der Umgriff der Satzung ergibt sich aus dem nachfolgenden Planausschnitt:

Der Satzungsbeschluss wird hiermit gemäß § 34 Abs. 6 Satz 2 i.V. mit § 10 Abs. 3 Satz 1 BauGB ortsüblich bekanntgemacht. Die Satzung in der Fassung vom 07.02.2023 liegt samt Begründung ab Veröffentlichung dieser Bekanntmachung in den Amtsräumen der Verwaltungsgemeinschaft Waging a. See, Zimmer 2.04, Salzburger Straße 1 in 83329 Waging a. See, während der allgemeinen Dienststunden öffentlich aus und kann dort von jedermann eingesehen werden. Über den Inhalt wird auf Verlangen Auskunft gegeben. Gemäß § 10 Abs. 3 Satz 4 BauGB tritt die Satzung mit der Bekanntmachung in Kraft.

Hinweis gemäß § 215 Abs. 2 BauGB:

Eine Verletzung der in § 214 Abs. 1 Satz 1 Nr. 1 - 3 und Abs. 2 BauGB bezeichneten Verfahrens- und Formvorschriften sowie Mängel in der Abwägung nach § 214 Abs. 3 Satz 2 BauGB sind gemäß § 215 Abs. 1 Nrn. 1 - 3 BauGB unbeachtlich, wenn sie nicht innerhalb eines Jahres seit dieser Bekanntmachung schriftlich gegenüber der Gemeinde geltend gemacht worden sind. Bei der Geltendmachung ist der Sachverhalt, der die Verletzung oder den Mangel begründen soll, darzulegen.

Hinweis auf Vorschriften:

Die in den Festsetzungen und der Begründung in Bezug genommenen Bestimmungen, Normen und Richtlinien liegen in der Verwaltungsgemeinschaft aus.

Datenschutz:

Die Verarbeitung personenbezogener Daten erfolgt auf der Grundlage der Art. 6 Abs. 1 Buchstabe e (DSGVO) i. V. mit § 3 BauGB und dem BayDSG. Sofern Sie Ihre Stellungnahme ohne Absenderangaben abgeben, erhalten Sie keine Mitteilung über das Ergebnis der Prüfung. Weitere Informationen entnehmen Sie bitte dem Formblatt „Datenschutzrechtliche Informationspflichten im Bauleitplanverfahren“ das ebenfalls öffentlich ausliegt.

Waging a.See, den 08.03.2023

GEMEINDE TACHING A.SEE

gez. Stefanie Lang, 1. Bürgermeisterin


Nr. 12/23

Vollzug des Kommunalabgabengesetzes und des Kostengesetzes;

Aufgrund von Art. 2 und 8 des Kommunalabgabengesetzes und Art. 20 des Kostengesetzes erlässt die Gemeinde Wonneberg folgende Satzung:

Friedhofsgebührensatzung (FGS)
der Gemeinde Wonneberg

§ 1

Gebührenpflicht und Gebührenarten

(1)

Die Gemeinde erhebt für die Inanspruchnahme ihrer Bestattungseinrichtungen sowie für damit in Zusammenhang stehende Amtshandlungen Gebühren.

(2)

Als Friedhofsgebühren werden erhoben:

a) Grabnutzungsgebühren (§ 4),

b) Bestattungsgebühren (§ 5),

c) sonstige Gebühren (§ 6).

§ 2

Gebührenpflichtiger

(1)

Gebührenpflichtiger ist,

a) wer zur Tragung der Bestattungskosten gesetzlich verpflichtet ist,

b) wer den Antrag auf Benutzung der Bestattungseinrichtung gestellt hat,

c) wer das Nutzungsrecht an einer Grabstätte erwirbt,

d) wer den Auftrag zu einer Leistung erteilt hat.

(2)

Mehrere Gebührenpflichtige sind Gesamtschuldner.

(3)

Bei Verlängerung des Grabnutzungsrechtes sind die Grabnutzungsgebühren vom Grabnutzungsberechtigten zu tragen.

§ 3

Entstehen und Fälligkeit

(1)

Die Grabnutzungsgebühr entsteht mit der Zuteilung oder der Verlängerung des Nutzungsrechts eines Grabs, und zwar

a) bei der erstmaligen Zuteilung des Nutzungsrechts für die Dauer der Ruhefrist nach § 27 Friedhofssatzung,

b) bei der Verlängerung des Nutzungsrechts nach Ablauf der Ruhefrist für den Zeitraum der Verlängerung,

c) bei Bestattung einer Leiche oder Beisetzung einer Urne in einem Grab, für das die Nutzungszeit noch nicht abgelaufen ist, für die Zeit vom Ablauf des bisherigen Nutzungsrechts bis zum Ablauf der neuen Ruhefrist. Die Berechnung erfolgt monatsgenau und beginnt jeweils mit dem 1. des folgenden Monats.

(2)

Die Bestattungsgebühren (§ 5) entstehen mit der Inanspruchnahme der gebührenpflichtigen Leistung.

(3)

Die sonstigen Gebühren (§ 6) entstehen mit der Erbringung der Leistung durch die Friedhofsverwaltung.

(4)

Die Gebühr wird einen Monat nach Bekanntgabe des Gebührenbescheids fällig.

§ 4

Grabnutzungsgebühr

(1)

Die Grabnutzungsgebühr beträgt für die gesamte Nutzungsdauer von 25 Jahren für

a) eine Einzelgrabstätte

478,00 €,

b) ein Familiengrab

919,00 €,

c) ein Urnengrab

1.123,00 €,

d) ein Urnenerdgrab

817,00 €.

(2)

Eine Verlängerung des Grabnutzungsrechtes für weitere 5 Jahre ist möglich. Hierfür wird 1/5 der oben genannten Grabnutzungsgebühr erhoben. Bei einer Verlängerung der Ruhefrist wegen einer weiteren Belegung der Grabstätte gilt § 3 Abs. 1 c).

§ 5

Bestattungsgebühren

Die Gebühr für die Benutzung des Leichenhauses beträgt

pro angefangenem Benutzungstag  — 88,00 €.

§ 6

Sonstige Gebühren

Die Verwaltungsgebühr bei der Abwicklung eines Sterbefalls

im gemeindlichen Friedhof beträgt  — 67,00 €.

§ 7

Inkrafttreten

(1)

Diese Satzung tritt eine Woche nach ihrer Bekanntmachung in Kraft.

(2)

Gleichzeitig tritt die Gebührensatzung zur Friedhofssatzung der Gemeinde Wonneberg vom 04.04.1995 außer Kraft.

Waging a. See, den 23.02.2023

GEMEINDE WONNEBERG

gez. Martin Fenninger, 1. Bürgermeister


VERWALTUNGSGEMEINSCHAFT WAGING A.SEE

gez. Matthias Baderhuber, 1. Vorsitzender