Titel Logo
Gemeinde-Zeitung Waging a See
Ausgabe 4/2023
Amtsblatt der Verwaltungsgemeinschaft Waging a. See
Zurück zur vorigen Seite
Zurück zur ersten Seite der aktuellen Ausgabe

Amtliche Bekanntmachung-Nr. 16/23


Nr. 16/23

Vollzug des Baugesetzbuches (BauGB);

5. Änderung des Bebauungsplanes Taching „Almfeld“, als Bebauungsplan der Innenentwicklung nach § 13a BauGB, der Gemeinde Taching a. See

Bekanntmachung

des Satzungsbeschlusses

Der Gemeinderat der Gemeinde Taching a. See hat am 30.03.2023 die 5. Änderung des Bebauungsplanes Taching „Almfeld“, betreffend die Flurnummern 9/1, 9/5 und 9/7 der Gemarkung Taching a. See, (Almfeldstraße 18, Am Lehmberg 1 und 2), gemäß § 10 Abs. 1 BauGB als Satzung beschlossen.

Der Bebauungsplan wurde im beschleunigten Verfahren nach § 13a BauGB ohne Durchführung einer Umweltprüfung nach § 2 Abs. 4 BauGB aufgestellt.

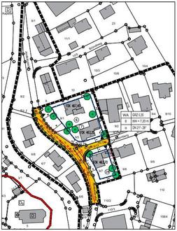
Der räumliche Geltungsbereich ergibt sich aus dem nachfolgenden Kartenausschnitt, der Bestandteil der Bekanntmachung ist:

Der Satzungsbeschluss wird hiermit gemäß § 10 Abs. 3 BauGB ortsüblich bekannt gemacht. Mit der Bekanntmachung tritt der Bebauungsplan in Kraft.

Jedermann kann den Bebauungsplan in der Fassung vom 03.03.2023 mit der Begründung in den Amtsräumen der Verwaltungsgemeinschaft Waging a. See, Salzburger Straße 1 in 83329 Waging a. See, Zimmer 2.04, während der allgemeinen Dienststunden einsehen und über deren Inhalt Auskunft verlangen.

Auf die Voraussetzungen für die Geltendmachung der Verletzung von Verfahrens- und Formvorschriften und von Mängeln der Abwägung sowie die Rechtsfolgen des § 215 Abs. 1 BauGB wird hingewiesen.

Unbeachtlich werden demnach

1.

eine nach § 214 Abs. 1 S. 1 Nr. 1 bis 3 BauGB beachtliche Verletzung der dort bezeichneten Verfahrens- und Formvorschriften,

2.

eine unter Berücksichtigung des § 214 Abs. 2 BauGB beachtliche Verletzung der Vorschriften über das Verhältnis des Bebauungsplans und des Flächennutzungsplans,

3.

nach § 214 Abs. 3 S. 2 BauGB beachtliche Mängel des Abwägungsvorgangs und

4.

nach § 214 Abs. 2a BauGB im beschleunigten Verfahren beachtliche Fehler,

wenn sie nicht innerhalb eines Jahres seit Bekanntmachung des Bebauungsplans schriftlich gegenüber der Gemeinde geltend gemacht worden sind; der Sachverhalt, der die Verletzung oder den Mangel begründen soll, ist darzulegen. Außerdem wird auf die Vorschriften des § 44 Abs. 3 Satz 1 und 2 sowie Abs. 4 BauGB hingewiesen. Danach erlöschen Entschädigungsansprüche für nach den §§ 39 bis 42 BauGB eingetretene Vermögensnachteile, wenn nicht innerhalb von drei Jahren nach Ablauf des Kalenderjahres, in dem die Vermögensnachteile eingetreten sind, die Fälligkeit des Anspruches herbeigeführt wird.

Hinweis auf Vorschriften:

Die in den Festsetzungen und der Begründung in Bezug genommenen Bestimmungen, Normen und Richtlinien liegen in der Verwaltungsgemeinschaft aus.

Waging a.See, den 31.03.2023

GEMEINDE TACHING A.SEE

gez. Stefanie Lang, 1. Bürgermeisterin