Titel Logo
Remagener Nachrichten
Ausgabe 49/2024
Amtliche Bekanntmachungen
Zurück zur vorigen Seite
Zurück zur ersten Seite der aktuellen Ausgabe

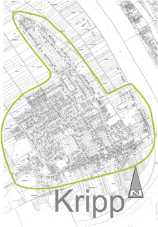
Anlage 1 Wiederkehrender

Anlage 1

zur Satzung zur Erhebung von wiederkehrenden Beiträgen für den Ausbau von Verkehrsanlagen (Ausbaubeitragssatzung wiederkehrende Beiträge)