Titel Logo
Eifel-Mosel-Hunsrück aktuell VG Traben-Trarbach
Ausgabe 43/2022
Flußbach - amtlich
Zurück zur vorigen Seite
Zurück zur ersten Seite der aktuellen Ausgabe

Öffentliche Bekanntmachung

Bekanntmachung der nochmaligen öffentlichen Auslegung des Entwurfs des Bebauungsplanes „Messeberg – Sondergebiet Photovoltaikpark“ gemäß § 3 Abs. 2 Baugesetzbuch (BauGB) und gem. § 4 Abs. 2 BauGB

Der Ortsgemeinderat Flußbach hat in seiner Sitzung am 08.09.2022 über die Anregungen aus dem Beteiligungsverfahren – Offenlage – nach § 3 Abs. 2 Baugesetzbuch und § 4 Abs. 2 BauGB beraten und nach durchgeführter Abwägung die nochmalige Offenlage des Bebauungsplanes beschlossen.

Der Entwurf des Bebauungsplanes „Messeberg – Sondergebiet Photovoltaikpark“, bestehend aus der Planzeichnung, der Begründung, der Artenschutzrechtlichen Vorprüfung und dem Umweltbericht liegen gemäß § 3 Abs. 2 BauGB in der Zeit vom Montag, dem 07. November 2022 bis zum Freitag, dem 21. November 2022 in der Verbandsgemeindeverwaltung Traben-Trarbach, Verwaltungsstelle Kröv, Rathaus, Robert-Schuman-Straße 65, 54536 Kröv, Zimmer A 208, während der Dienststunden zu jedermanns Einsicht und zur allgemeinen Information öffentlich aus.

Betroffen sind folgende Grundstücke: Gemarkung Flußbach, Flur 14, Parzelle-Nr. 48, 49 teilweise, 50 teilweise, 51 teilweise, 52, 79 teilweise, 80 teilweise, 81 teilweise, 82, 83, Flur 15 Parzelle-Nr. 60 teilweise.

Umweltbezogene Informationen

Neben dem Entwurf der Planzeichnung und der Begründung sind folgende Dokumente verfügbar, die umweltbezogene Informationen enthalten:

Im Umweltbericht als gesonderter Teil der Begründung werden folgende Themen untersucht:

1.

Natur und Landschaft – mit den Schutzgütern Boden/Wasser, Wasserhaushalt, Klima/Luft

Biotop- und Naturschutztypen, Fauna, Zusammenfassung der Wertigkeit für den Arten- und Biotopschutz, Landschaft/Erholung.

2.

Mensch / Sonstiges - mit den Schutzgütern Biotopverbund/Natur und Landschaft, Mensch/Sonstiges.

3.

Umweltmaßnahmen

4.

Grünordnerische Maßnahmen

5.

Maßnahmen der Biotoptypen

6.

Maßnahmen zum besonderen Artenschutz

Pläne / Anhang

Im Umweltbericht sollen die nachteiligen Folgen der Planung für die genannten Schutzgüter zusammengefasst dargestellt werden und Maßnahmen zur Vermeidung, Minderung und zum Ausgleich nachteiliger Wirkungen aufgezeigt werden.

Er beschreibt baubedingte Wirkfaktoren (durch die Vorbereitung und Durchführung der Bauarbeiten), Anlagen bedingte Wirkfaktoren (von den baulichen Anlagen selbst verursacht), betriebsbedingte Wirkungen (dauerhaft mit der Anlage verbunden) und gibt eine Prognose bei Nichtdurchführung der Planung.

Stellungnahmen zum Entwurf des Bebauungsplanes „Messeberg – Sondergebiet Photovoltaikpark“ können bis zum 21.11.2022 (schriftlich oder zur Niederschrift) bei der Verbandsgemeindeverwaltung Traben – Trarbach, Verwaltungsstelle Kröv, Robert-Schuman-Str. 65, 54536 Kröv abgegeben werden.

Die Einsichtnahme in die Planung ist auf der Homepage der Verbandsgemeindeverwaltung unter www.vgtt.de/Rathaus & Politik/Bauamt/Beteiligungsverfahren/Flußbach/ möglich.

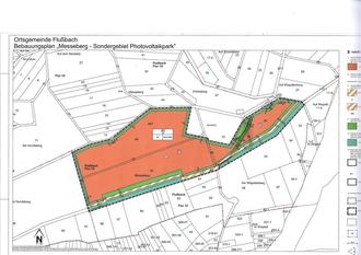
Der Geltungsbereich ist auf dem unten abgedruckten Plan kenntlich gemacht.

Nicht fristgerecht während der Öffentlichkeits- und Behördenbeteiligung abgegebene Stellungnahmen können bei der Beschlussfassung über die Änderung des Bebauungsplanes unberücksichtigt bleiben, sofern die Ortsgemeinde deren Inhalt nicht kannte und nicht hätte kennen müssen und deren Inhalt für die Rechtmäßigkeit der Änderung des Planes nicht von Bedeutung ist. Ein Antrag nach § 47 VwGO ist unzulässig, soweit mit ihm Einwendungen geltend gemacht werden, die vom Antragsteller im Rahmen der Auslegung nicht oder verspätet geltend gemacht wurden, aber hätten geltend gemacht werden können.

Flußbach, den 24.10.2022
Für die Ortsgemeinde Flußbach
(Hans-Josef Drees)
Ortsbürgermeister