Titel Logo
Mittelmosel-Nachrichten VG Bernkastel-Kues
Ausgabe 16/2023
Amtliche Bekanntmachungen
Zurück zur vorigen Seite
Zurück zur ersten Seite der aktuellen Ausgabe

Öffentliche Bekanntmachung gemäß § 10 Abs. 3 Baugesetzbuch (BauGB) des Bebauungsplans Kueser Plateau - Wohngebiet II der Stadt Bernkastel-Kues nach Durchführung des ergänzenden Verfahrens

- Wohngebiet II der Stadt Bernkastel-Kues nach Durchführung des ergänzenden Verfahrens

Der Rat der Stadt Bernkastel-Kues hat am 30.05.1979 den Bebauungsplan „Kueser Plateau - Wohngebiet II“ als Satzung beschlossen und am 14.04.1994 ausgefertigt. Der Bebauungsplan wurde am 19.05.1994 erneut öffentlich bekannt gemacht.

Nachdem die Ausfertigung des Bebauungsplans im Rahmen eines verwaltungsgerichtlichen Verfahrens beanstandet worden ist, hat der Rat am 23.02.2023 die Ergänzung der Begründung und Heilung im ergänzenden Verfahren beschlossen. Die nachträgliche Begründung bezieht sich auf die textliche Festsetzung zu den zulässigen Einfriedungen. Die textlichen Festsetzungen sind hierbei unverändert geblieben.

Nach erfolgter ordnungsgemäßer Ausfertigung wird der Satzungsbeschluss nochmals gemäß § 10 Abs. 3 Satz 1 BauGB bekannt gemacht. Mit dieser Bekanntmachung tritt der Bebauungsplan gemäß § 214 Abs. 4 BauGB rückwirkend auf den Zeitpunkt des ursprünglichen Inkrafttretens in Kraft.

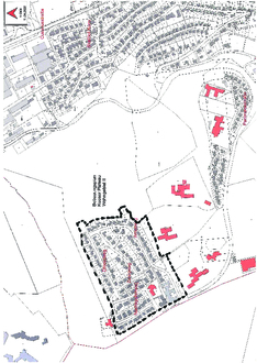
Der räumliche Geltungsbereich des Bebauungsplans befindet sich auf dem „Kueser Plateau“. Er umfasst die Straßenzüge: Nachtigallenweg, Maisenweg, Zeisigweg, Drosselweg, Finkenweg, Amselweg. Der Plan grenzt nördlich an den Distrikt „Im Heldengraben“, östlich an den Distrikt „Der alte Wald“, nordwestlich an den Ruheforst Lieser westlich an die Gemarkung Lieser und südlich an das Kurgastzentrum und die Kurkliniken. Die genaue Abgrenzung des Plangebietes ist aus der abgedruckten Karte ersichtlich.

Der Bebauungsplan, einschließlich der Begründung kann ab sofort bei der nachfolgenden Stelle von jedermann eingesehen werden:

Verbandsgemeindeverwaltung Bernkastel-Kues, Gestade 18, 54470 Bernkastel-Kues, Zimmer 116, während der Öffnungszeiten (Montag bis Freitag: 08:30 Uhr - 12:00 Uhr, Montag bis Dienstag: 14:00 Uhr - 16:00 Uhr, Donnerstag: 14:00 Uhr - 18:00 Uhr), Tel.-Nr.: 06531/540, Fax: 06531/54107, E-Mail: info@bernkastel-kues.de.

Weiterhin ist die Einsichtnahme im Internet auf der Homepage www.bernkastel-kues.de (Verwaltung und Bürgerdienste / Planen, Bauen, Wohnen / Bebauungspläne) möglich. Der Bebauungsplan wird zudem in ein zentrales Internetportal eingestellt und ist unter https://www.geoportal.rlp.de abrufbar.

Jedermann kann über den Inhalt des Bebauungsplans Auskunft verlangen.

Hinweise:

I. Es wird darauf hingewiesen, dass

-

eine beachtliche Verletzung der in § 214 Abs. 1 Satz 1 Nr. 1 - 3 BauGB bezeichneten Verfahrens- und Formvorschriften,

-

eine unter Berücksichtigung des § 214 Abs. 2 BauGB beachtliche Verletzung der Vorschriften über das Verhältnis des Bebauungsplans und des Flächennutzungsplans und

-

ein nach § 214 Abs. 3 Satz 2 BauGB beachtlicher Mangel des Abwägungsvorgangesgemäß § 215 Abs. 1 BauGB unbeachtlich werden, wenn sie nicht innerhalb eines Jahres seit dieser Bekanntmachung schriftlich gegenüber der Verbandsgemeinde Bernkastel-Kues, Gestade 18, 54470 Bernkastel-Kues unter Darlegung des die Verletzung begründenden Sachverhalts geltend gemacht worden sind.

II. Nach § 24 Abs. 6 Satz 1 GemO gelten Satzungen, die unter Verletzung von Verfahrens- oder Formvorschriften dieses Gesetzes oder auf Grund dieses Gesetzes zustande gekommen sind, ein Jahr nach der Bekanntmachung als von Anfang an gültig zustande gekommen. Dies gilt nicht, wenn

-

die Bestimmungen über die Öffentlichkeit der Sitzung, die Genehmigung, die Ausfertigung oder die Bekanntmachung der Satzung verletzt worden sind, oder

-

vor Ablauf der in Satz 1 genannten Frist die Aufsichtsbehörde den Beschluss beanstandet oder jemand die Verletzung der Verfahrens- oder Formvorschriften gegenüber der Verbandsgemeinde Bernkastel-Kues, Gestade 18, 54470 Bernkastel-Kues unter Bezeichnung des Sachverhalts, der die Verletzung begründen soll, schriftlich geltend gemacht hat.

Hat jemand eine Verletzung nach § 24 Abs. 6 Satz 2 Nr. 2 GemO geltend gemacht, so kann auch nach Ablauf der in § 24 Abs. 6 Satz 1 GemO genannten Frist jedermann diese Verletzung geltend machen.

III. Es wird darauf hingewiesen, dass nach § 44 Abs. 3 Satz 1 und 2 BauGB der Entschädigungsberechtigte Entschädigung verlangen kann, wenn die in den

§§ 39 bis 42 BauGB bezeichneten Vermögensnachteile eingetreten sind. Er kann die Fälligkeit des Anspruchs dadurch herbeiführen, dass er die Leistung der Entschädigung schriftlich bei dem Entschädigungspflichtigen beantragt. Nach § 44 Abs. 4 BauGB erlischt ein Entschädigungsanspruch, wenn nicht innerhalb von drei Jahren nach Ablauf des Kalenderjahres, in dem die in

§ 44 Absatz 3 Satz 1 BauGB bezeichneten Vermögensnachteile eingetreten sind, die Fälligkeit des Anspruchs herbeigeführt wird.

Bernkastel-Kues, den 12. April 2023
Dienstsiegel
gez. Wolfgang Port, Stadtbürgermeister