Titel Logo
Bitburger Landbote
Ausgabe 28/2024
Aus den Ortsgemeinden
Zurück zur vorigen Seite
Zurück zur ersten Seite der aktuellen Ausgabe

Bekanntmachung

Bebauungsplan der Ortsgemeinde Badem für das Teilgebiet “Dudeldorfer Straße“

- Bekanntmachung der Planaufstellung (§ 2 Abs. 1 S. 2 BauGB) und frühzeitigen Öffentlichkeitsbeteiligung (§ 3 Abs. 1 BauGB)

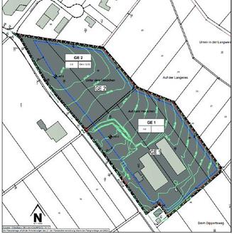
Der Ortsgemeinderat Badem hat am 27.09.2023 in öffentlicher Sitzung die Aufstellung des Bebauungsplanes (B-Plan) für das Teilgebiet “Dudeldorfer Straße“ beschlossen. Der Beschluss der Planaufstellung mit Abgrenzung des räumlichen Geltungsbereiches wird hiermit gemäß § 2 Abs. 1 S. 2 BauGB öffentlich bekannt gemacht.

Mit Anerkennung des Planentwurfes in der v. g. Sitzung wurde entschieden, dass nach dem Baugesetzbuch vorgeschriebene Verfahren zur frühzeitigen Beteiligung der Öffentlichkeit und der berührten Behörden durchzuführen.

Am östlichen Ortsausgang von Badem liegt der Agrarstandort der RRAE. Der Standort soll durch eine Erweiterung der Lagerkapazitäten für Getreide und Dünger sowie für die Lagerung von landwirtschaftlichen Betriebsmitteln ausgebaut werden.

Die Ortsgemeinde sieht die Bebauungsplanaufstellung mit einer geordneten städtebaulichen Entwicklung der Gemeinde als vereinbar an. Der räumliche Geltungsbereich ist in einem weiter unten abgedruckten unmaßstäblichen Kartenauszug dargestellt.

Die vollständigen Entwurfsunterlagen zum Bebauungsplan (Satzungskarte, Textfestsetzungen und Begründung) stehen Ihnen während der Zeit von

Montag, 15.07.2024 bis einschließlich Donnerstag, 15.08.2024

gemäß § 3 Abs. 2 BauGB auf der Internetseite der Verbandsgemeinde Bitburger Land (www.bitburgerland.de) unter Bürgerservice/ Bauleitplanung/ Bebauungspläne zur Verfügung und liegen gleichzeitig im Rathaus der Verbandsgemeinde Bitburger Land (Zimmer 306), Hubert-Prim-Straße 7, 54634 Bitburg zu jedermanns Einsichtnahme öffentlich aus.

Während des Auslegungszeitraumes vom 15.07.2024 bis einschließlich 15.08.2024 besteht die Gelegenheit zur Äußerung und Erörterung. Stellungnahmen können von Jedermann abgegeben werden. Diese sollen elektronisch übermittelt werden (E-Mail-Adresse: bauleitplanung@bitburgerland.de). Bei Bedarf können diese aber auch auf anderem Wege (schriftlich, per Fax Nr. 06561 - 66 - 1500 oder zur Niederschrift während der Öffnungszeiten bei der Verbandsgemeindeverwaltung Bitburger Land, Hubert-Prim-Straße 7, 54634 Bitburg) abgegeben bzw. vorgebracht werden.

Es wird darauf hingewiesen, dass nicht innerhalb der Offenlegungsfrist abgegebene Stellungnahmen bei der Beschlussfassung über den Bebauungsplan (gem. § 4 a Abs. 6 BauGB) unberücksichtigt bleiben können, sofern die Gemeinde deren Inhalt nicht kannte und nicht hätte kennen müssen und deren Inhalt für die Rechtmäßigkeit des Bebauungsplans nicht von Bedeutung ist.

Weiterhin ergeht der Hinweis, dass ein Antrag nach § 47 Verwaltungsgerichtsordnung unzulässig ist, wenn mit ihm nur Einwendungen geltend gemacht werden, die vom Antragsteller im Rahmen der Auslegung nicht oder verspätet geltend gemacht wurden, aber hätten geltend gemacht werden können.

Bitburg, den 01.07.2024
Verbandsgemeindeverwaltung Bitburger Land
In Vertretung:
Rainer Wirtz
Erster Beigeordneter