Titel Logo
Bitburger Landbote
Ausgabe 39/2024
Öffentliche Bekanntmachungen
Zurück zur vorigen Seite
Zurück zur ersten Seite der aktuellen Ausgabe

Öffentliche Bekanntmachung

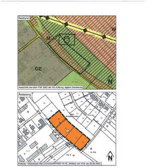
21. Änderung des Flächennutzungsplanes der VG Kyllburg

– Teilbereich “Schodenbrunnen“

- Bekanntmachung der Planaufstellung (§ 2 Abs. 1 S. 2 BauGB) und frühzeitigen Öffentlichkeitsbeteiligung (§ 3 Abs. 1 BauGB) -

Der Stadtrat von Kyllburg hat am 15.11.2022 die 2. Änderung des Bebauungsplans (B-Plan) für das Teilgebiet “Beim Schodenbrunnen“ beschlossen. In gleicher Sitzung wurde der räumliche Geltungsbereich des Plangebietes festgelegt.

Der Verbandsgemeinderat Bitburger Land hat am 16.05.2024 beschlossen, die zur Aufstellung des B-Planes gemäß § 8 Abs. 2 BauGB erforderliche 21. Änderung des Flächennutzungsplanes der VG Kyllburg gemäß § 8 Abs. 3 BauGB im Parallelverfahren durchzuführen.

Nachfolgend ist die Abgrenzung des Änderungsbereiches in einem unmaßstäblichen Kartenauszug abgedruckt. Dieser ist Gegenstand der 21. FNP-Änderung. Die parzellenscharfe Abgrenzung kann auch im Rathaus der Verbandsgemeinde Bitburger Land (Zimmer 306), Hubert-Prim-Str. 7, 54634 Bitburg, eingesehen werden.

Mit dem Bebauungsplan wird das Ziel verfolgt, die bauplanungsrechtlichen Voraussetzungen zum Neubau einer Seniorenresidenz zu schaffen.

Im Rahmen einer Umweltprüfung sind zudem die voraussichtlich erheblichen Umweltauswirkungen zu ermitteln und anschließend in einem Umweltbericht zu beschreiben und zu bewerten. Um die beabsichtigte Entwicklung konkret zu regeln, soll im B-Plan im Wesentlichen ein Sondergebiet (SO) gem. § 11 Abs. 2 BauNVO mit Zweckbestimmung „Seniorenresidenz“ festgesetzt werden. Da in diesem Zusammenhang der wirksame FNP der VG Kyllburg das Plangebiet als “Mischgebiet“ kennzeichnet und darstellt, sollen auch hier im Rahmen einer gemäß § 8 Abs. 3 BauGB parallel durchgeführten 21. Änderung des FNP die notwendigen Anpassungen vorgenommen werden. Die betreffenden B-Planflächen sollen im FNP als geplantes Sondergebiet Seniorenresidenz dargestellt werden.

Hiermit wird gemäß § 2 Abs. 1 Satz 2 BauGB der Einleitungs- und Gebietsabgrenzungsbeschluss des Verbandsgemeinderates zur 21. Änderung des Flächennutzungsplanes der Verbandsgemeinde Kyllburg bekannt gemacht.

Weiterhin wird bekanntgemacht, dass der Entwurf zur 21. Änderung des Flächennutzungs-planes der Verbandsgemeinde Kyllburg mit Begründung gemäß § 3 Abs. 1 Baugesetzbuch (BauGB) in der Zeit von

Montag, den 30.09.2024 bis einschließlich Donnerstag, den 31.10.2024

gemäß § 3 Abs. 2 BauGB auf der Internetseite der Verbandsgemeinde Bitburger Land (www.bitburgerland.de) unter Bürgerservice/Bauleitplanung/Offenlage Flächennutzungsplan zur Verfügung steht und gleichzeitig im Rathaus der Verbandsgemeinde Bitburger Land (Zimmer 306), Hubert-Prim-Straße 7, 54634 Bitburg zu jedermanns Einsichtnahme öffentlich ausliegt.

Während des Auslegungszeitraumes vom 30.09.2024 bis einschließlich 31.10.2024 besteht die Gelegenheit zur Äußerung und Erörterung. Stellungnahmen können von Jedermann abgegeben werden. Diese sollen elektronisch übermittelt werden (E-Mail-Adresse: bauleitplanung@bitburgerland.de). Bei Bedarf können diese aber auch auf anderem Wege (schriftlich, per Fax Nr. 06561 - 66 - 1500 oder zur Niederschrift während der Öffnungszeiten bei der Verbandsgemeindeverwaltung Bitburger Land, Hubert-Prim-Straße 7, 54634 Bitburg) abgegeben bzw. vorgebracht werden.

Es wird darauf hingewiesen, dass nicht innerhalb der Offenlegungsfrist abgegebene Stellungnahmen bei der Beschlussfassung über den Bebauungsplan (gem. § 4 a Abs. 6 BauGB) unberücksichtigt bleiben können, sofern die Gemeinde deren Inhalt nicht kannte und nicht hätte kennen müssen und deren Inhalt für die Rechtmäßigkeit des Bebauungsplans nicht von Bedeutung ist. Weiterhin ergeht der Hinweis, dass ein Antrag nach § 47 Verwaltungsgerichtsordnung unzulässig ist, wenn mit ihm nur Einwendungen geltend gemacht werden, die vom Antragsteller im Rahmen der Auslegung nicht oder verspätet geltend gemacht wurden, aber hätten geltend gemacht werden können.

Bitburg, den 18.09.2024
Verbandsgemeindeverwaltung Bitburger Land
In Vertretung:
Rainer Wirtz
Erster Beigeordneter