Titel Logo
Bitburger Landbote
Ausgabe 43/2024
Aus den Ortsgemeinden
Zurück zur vorigen Seite
Zurück zur ersten Seite der aktuellen Ausgabe

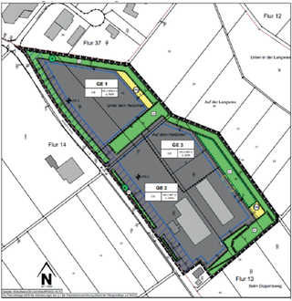
Bebauungsplan der Ortsgemeinde Badem für das Teilgebiet “Dudeldorfer Straße“

- Öffentliche Auslegung des Planentwurfes gemäß § 3 Abs. 2 BauGB

Der Ortsgemeinderat Badem hat am 27.09.2023 in öffentlicher Sitzung die Aufstellung des Bebauungsplanes (B-Plan) für das Teilgebiet “Dudeldorfer Straße“ beschlossen. Der Beschluss der Planaufstellung mit Abgrenzung des räumlichen Geltungsbereiches wurde mit Veröffentlichung vom 13.07.2024 gemäß § 2 Abs. 1 S. 2 BauGB öffentlich bekannt gemacht.

Das frühzeitige Öffentlichkeitsverfahren als auch die Beteiligung der berührten Behörden und Träger öffentlicher Belange (§§ 3 Abs. 1 und 4 Abs. 1 BauGB) wurde in der Zeit vom 15.07.2024 bis 15.08.2024 durchgeführt.

Grundsätzliches Ziel der Planung ist es, die bauplanungsrechtlichen Voraussetzungen zu schaffen, um eine Erweiterung der Lagerkapazitäten für Getreide und Dünger sowie für die Lagerung von landwirtschaftlichen Betriebsmitteln zu realisieren.

Die erforderlichen Ausgleichsmaßnahmen für Eingriffe in Natur und Landschaft sind in der Planung zu regeln. Im Rahmen einer Umweltprüfung sind zudem die voraussichtlich erheblichen Umweltauswirkungen zu ermitteln und anschließend in einem Umweltbericht zu beschreiben und bewerten.

Folgende umweltbezogene Informationen sind verfügbar:

Umweltbericht – Büro isu, Bitburg:

Stand Oktober 2024 mit Beschreibungen und Bewertungen der Umweltauswirkungen und deren Erheblichkeit auf die Schutzgüter.

Die o.a. Unterlagen enthalten folgende Arten umweltbezogener Informationen, welche im Rahmen der Umweltprüfung im Umweltbericht dokumentiert sind:

-

Analyse / Berücksichtigung planungsrelevanter Umweltvorgaben

• NATURA 2000 (§ 32 BNatSchG)

• Vorbereitende Landschaftsplanung

• Fachplanungen / Rechtliche Vorgaben

-

Umweltzustand und Umweltmerkmale

• Natur und Landschaft

• Mensch / Sonstige

• Wechselwirkungen

• Landesplanerische Zielvorstellungen

• Umweltprognose bei Nichtdurchführung der Maßnahme

-

Umweltmaßnahmen

• Grünordnerische Maßnahmen

• Mensch /Sonstige

• Empfehlungen / Hinweise

-

Umweltauswirkungen

• Eingriffsregelung

• Mensch / Sonstige

-

Umweltvarianten / Planalternativen

-

Umweltmonitoring / Umweltüberwachung

-

Angaben zu Umweltverfahren / Umwelttechniken

-

Kenntnislücken/Umweltrisiken

-

Allgemein verständliche Zusammenfassung

Entwässerungskonzeption des Büro Schacht, Salzhemmendorf vom Oktober 2024

Stellungnahmen der Behörden und sonstigen Träger öffentlicher Belange aus dem Verfahren nach §§ 3 Abs. 1 i.V.m. 4 Abs. 1 BauGB:

Verbandsgemeinde Bitburger Land, Verbandsgemeindewerke vom 10.07.2024 (Sachbezug: Entwässerung / Abwasser)

Kreisverwaltung Eifelkreis Bitburg-Prüm vom 14.08.2024 (Sachbezug: Bauwesen, Naturschutz und Landespflege, Raumordnung und Landesplanung, Denkmalschutz, Wasserrecht, Brandschutz)

Struktur- und Genehmigungsdirektion Nord, Regionalstelle Wasser-Abwasser-Boden vom 21.08.2024 (Sachbezug: Entwässerung)

Die Ortsgemeinde sieht die Bebauungsplanaufstellung mit einer geordneten städtebaulichen Entwicklung der Gemeinde als vereinbar an. Der räumliche Geltungsbereich ist in einem weiter unten abgedruckten unmaßstäblichen Kartenauszug dargestellt.

Die vollständigen Entwurfsunterlagen zum Bebauungsplan „Dudeldorfer Straße“ bestehend aus Plankarte, Textfestsetzungen, Begründung, Enwässerungskonzept und dem Umweltbericht stehen Ihnen gemäß § 3 Abs. 2 BauGB während der Zeit von

Montag, 28.10.2024 bis einschließlich Freitag, 29.11.2024

auf der Internetseite der Verbandsgemeinde Bitburger Land (www.bitburgerland.de) unter Bürgerservice/ Bauleitplanung/ Bebauungspläne zur Verfügung und liegen gleichzeitig im Rathaus der Verbandsgemeinde Bitburger Land (Zimmer 306), Hubert-Prim-Straße 7, 54634 Bitburg zu jedermanns Einsichtnahme öffentlich aus.

Während des Auslegungszeitraumes vom 28.10.2024 bis einschließlich 29.11.2024 besteht die Gelegenheit zur Äußerung und Erörterung. Stellungnahmen können von Jedermann abgegeben werden. Diese sollen elektronisch übermittelt werden (E-Mail-Adresse: bauleitplanung@bitburgerland.de). Bei Bedarf können diese aber auch auf anderem Wege (schriftlich, per Fax Nr. 06561 - 66 - 1500 oder zur Niederschrift während der Öffnungszeiten bei der Verbandsgemeindeverwaltung Bitburger Land, Hubert-Prim-Straße 7, 54634 Bitburg) abgegeben bzw. vorgebracht werden.

Es wird darauf hingewiesen, dass nicht innerhalb der Offenlegungsfrist abgegebene Stellungnahmen bei der Beschlussfassung über den Bebauungsplan (gem. § 4 a Abs. 6 BauGB) unberücksichtigt bleiben können, sofern die Gemeinde deren Inhalt nicht kannte und nicht hätte kennen müssen und deren Inhalt für die Rechtmäßigkeit des Bebauungsplans nicht von Bedeutung ist.

Weiterhin ergeht der Hinweis, dass ein Antrag nach § 47 Verwaltungsgerichtsordnung unzulässig ist, wenn mit ihm nur Einwendungen geltend gemacht werden, die vom Antragsteller im Rahmen der Auslegung nicht oder verspätet geltend gemacht wurden, aber hätten geltend gemacht werden können.

Bitburg, den 14.10.2024
Verbandsgemeindeverwaltung Bitburger Land
In Vertretung:
Rainer Wirtz
Erster Beigeordneter