Titel Logo
Bitburger Landbote
Ausgabe 5/2025
Aus den Ortsgemeinden
Zurück zur vorigen Seite
Zurück zur ersten Seite der aktuellen Ausgabe

Bekanntmachung nach § 10 Abs. 3 Satz 1 BauGB

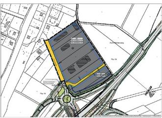
Bebauungsplan der Ortsgemeinde Messerich für das Teilgebiet “Gewerbegebiet“

- 1. Änderung

Der Ortsgemeinderat Messerich hat in öffentlicher Sitzung am 03.12.2024 aufgrund des § 24 Gemeindeordnung (GemO) und des § 10 Baugesetzbuches (BauGB) den Bebauungsplan für das Teilgebiet “Gewerbegebiet“ – 1. Änderung als Satzung beschlossen. Die Satzung ist nicht genehmigungspflichtig. Der Ortsbürgermeister der Ortsgemeinde Messerich hat den Bebauungsplan am 10.01.2025 ausgefertigt.

Der räumliche Geltungsbereich der Planänderung ist in dem nachfolgend abgedruckten, unmaßstäblichen Kartenauszug dargestellt. Der Bebauungsplan (Planurkunde) einschließlich der Begründung kann im Rathaus der Verbandsgemeinde Bitburger Land (Zimmer 308), Hubert-Prim-Str. 7, 54634 Bitburg während der Dienststunden sowie beim Ortsbürgermeister der Ortsgemeinde Messerich von jedermann eingesehen werden. Über den Inhalt des Bebauungsplanes wird auf Verlangen Auskunft gegeben.

Es wird darauf hingewiesen, dass die Verletzung der in § 214 Abs. 1 Satz 1 Nrn. 1 bis 3 des BauGB bezeichneten Verfahrens- und Formvorschriften, eine unter Berücksichtigung des § 214 Abs. 2 BauGB beachtliche Verletzung der Vorschriften über das Verhältnis des Bebauungsplans und nach § 214 Abs. 3 Satz 2 BauGB beachtliche Mängel des Abwägungsvorgangs nur beachtlich sind, wenn sie innerhalb eines Jahres seit dieser Bekanntmachung schriftlich gegenüber der Verbandsgemeindeverwaltung Bitburger Land oder dem Ortsbürgermeister der Ortsgemeinde Messerich geltend gemacht worden sind. Der Sachverhalt, der die Verletzung begründet, ist darzulegen.

Vorstehendes gilt entsprechend, wenn Fehler nach § 214 Abs. 2a BauGB beachtlich sind.

Gemäß § 44 Abs. 5 BauGB wird auf die Vorschriften des § 44 Abs. 3 Satz 1 und 2 sowie Abs. 4 BauGB hingewiesen. Hiernach kann der Entschädigungsberechtigte Entschädigung verlangen, wenn die in den §§ 39 bis 42 BauGB bezeichneten Vermögensnachteile eingetreten sind. Er kann die Fälligkeit des Anspruches dadurch herbeiführen, dass er die Leistung der Entschädigung schriftlich bei dem Entschädigungspflichtigen beantragt. Ein Entschädigungsanspruch erlischt, wenn nicht innerhalb von drei Jahren nach Ablauf des Kalenderjahres, in dem die in § 44 Abs. 3 Satz 1 BauGB bezeichneten Vermögensnachteile eingetreten sind, die Fälligkeit des Anspruchs herbeigeführt wird.

Nach § 24 Abs. 6 GemO gelten Satzungen, die unter Verletzung von Verfahrens- oder Formvorschriften zustande gekommen sind, ein Jahr nach Bekanntmachung als von Anfang an gültig. Das gilt nicht, wenn

1.

die Bestimmungen über die Öffentlichkeit der Sitzung, die Genehmigung, die Ausfertigung oder die Bekanntmachung der Satzung verletzt worden sind,

oder

2.

vor Ablauf eines Jahres nach der Bekanntmachung die Aufsichtsbehörde den Beschluss beanstandet oder

jemand die Verletzung der Verfahrens- oder Formvorschriften gegenüber der Verbandsgemeindeverwaltung Bitburger Land oder dem Ortsbürgermeister der Ortsgemeinde Messerich unter Bezeichnung des Sachverhaltes, der die Verletzung begründen soll, schriftlich geltend gemacht hat.

Hat jemand die Verletzung nach Ziffer 2 geltend gemacht, so kann auch nach Ablauf der genannten Frist jedermann diese Verletzung geltend machen.

Mit dieser Bekanntmachung wird der Bebauungsplan der Ortsgemeinde Messerich für das Teilgebiet “Gewerbegebiet“ -1. Änderung rechtsverbindlich.

Bitburg, den 21.01.2025
Verbandsgemeindeverwaltung Bitburger Land
Janine Fischer
Bürgermeisterin