Titel Logo
Mitteilungsblatt Südeifel
Ausgabe 6/2025
Amtliche Bekanntmachungen der Ortsgemeinden
Zurück zur vorigen Seite
Zurück zur ersten Seite der aktuellen Ausgabe

Bekanntmachung der Ortsgemeinde Irrel

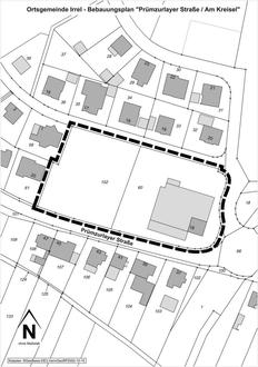
Aufstellung eines Bebauungsplanes der Ortsgemeinde Irrel für das Teilgebiet „Prümzurlayer Straße/Am Kreisel“; Beteiligung der Öffentlichkeit gem. § 3 Abs. 2 BauGB

Die Ortsgemeinde Irrel beabsichtigt die Aufstellung eines Bebauungsplanes für das Teilgebiet „Prümzurlayer Straße/Am Kreisel“. Im Rahmen des laufenden bauplanungsrechtlichen Verfahrens zur Aufstellung des Bebauungsplanes beschloss der Ortsgemeinderat in seiner Sitzung vom 05.12.2024 die Beteiligung der Öffentlichkeit gem. 3 Abs. 2 BauGB durchzuführen. Der Bebauungsplan umfasst folgenden Geltungsbereich (Plangebiet): Gemarkung Irrel, Flur 53, Flurstücke: 60 und 152. Die genaue Abgrenzung des Geltungsbereiches ist aus dem dieser Bekanntmachung beigefügtem Lageplan ersichtlich.

Für die Belange des Umwelt- u. Naturschutzes ist eine Umweltprüfung durchzuführen und ein Umweltbericht zu erstellen. Beides erfolgt parallel zum laufenden Bauleitplanverfahren.

Die Entwurfsunterlagen zum Bebauungsplan (Planzeichnung mit Textfestsetzungen, Begründung, Umweltbericht, schalltechnisches Gutachten, schalltechnische Untersuchung, Planzeichnung Biotop- u. Nutzungstypen) stehen Ihnen während der Zeit vom 10.02.2025 bis einschließlich 12.03.2025 gemäß § 3 Abs. 2 BauGB auf der Internetseite der Verbandsgemeinde Südeifel (unmittelbar auf der Startseite www.vg-suedeifel.de unter „Pläne & Karten“ {{gt}} Bauleitplanverfahren) zur Verfügung und liegen gleichzeitig zur Einsichtnahme öffentlich in unserem Hause während der behördlichen Öffnungszeiten (vormittags: montags bis freitags, von 08.00 - 12.00 Uhr; nachmittags: montags bis mittwochs, von 14.00 - 16.00 Uhr und donnerstags von 14.00 - 18.00 Uhr) bei der Verbandsgemeindeverwaltung Südeifel, im Erdgeschoss des „Marienheims“ im Gesundheitszentrums Neuerburg, Bitburger Straße 15, 54673 Neuerburg aus. Während des Auslegungszeitraumes vom 10.02.2025 bis einschließlich 12.03.2025 können von Jedermann Stellungnahmen abgegeben werden. Diese sollen elektronisch übermittelt (E-Mail-Adresse: bauleitplanung@vg-suedeifel.de) oder bei Bedarf auch auf anderem Wege (schriftlich, per Fax Nr. 06564 - 69 - 11260 oder zur Niederschrift während der Öffnungszeiten der Verbandsgemeindeverwaltung bei der Verbandsgemeindeverwaltung Südeifel, im Erdgeschoss des „Marienheims“ im Gesundheitszentrums Neuerburg, Bitburger Straße 15, 54673 Neuerburg) abgegeben bzw. vorgebracht werden.

Folgende umweltbezogene Stellungnahmen/Informationen liegen vor:

Stellungnahmen der Behörden und sonstigen Träger öffentlicher Belange aus der frühzeitigen Beteiligung (§ 13 Abs. 2 BauGB) im Zeitraum 25.03.2024 bis 26.04.2024:

• Generaldirektion Kulturelles Erbe zu erdgeschichtlichen Fundstellen

• Kreisverwaltung des Eifelkreises Bitburg-Prüm vom 25.04.2024:

Naturschutz und Landschaftspflege - Hinweise zur Umweltprüfung / Besonderer Artenschutz / FFH-Gebiet „Sauertal und Seitentäler“ und zugehörige NATURA 2000 - Prüfung / Eingriffe in Natur und Landschaft / Baumbestand / naturschutzfachliche Bestandserhebung / Bodenversiegelungen, Dorferneuerung, Denkmalschutz, Wasserrecht - Gewässer / Überschwemmung / kein Wasserschutzgebiet / erhebliche Starkregengefährdung.

• Landesamt für Geologie und Bergbau vom 18.04.2024: Hinweis zur örtlichen

Bodenbeschaffenheit

• Landesbetrieb Mobilität Gerolstein vom 29.04.2024 und 02.05.2024: Hinweis zur Berücksichtigung der Richtlinie für die Anlage von Landstraßen.

• SGD Nord, Regionalstelle Gewerbeaufsicht vom 19.04.2024: Hinweis zu Immissionsrichtwerten / Lärmschutz (TA-Lärm)

• SGD Nord, Regionalstelle Wasserwirtschaft, Abfallwirtschaft u. Bodenschutz vom 26.04.2024:

Hinweise zum Erfordernis der Starkregenvorsorge

• Westnetz GmbH vom 04.04.2024 zu vorhandener Kabeltrasse

Der Umweltbericht (Büro ISU, 25. Nov. 2024) enthält u. a. folgende umweltbezogenen Informationen:

  • NATURA 2000 - Verträglichkeitsvorprüfung zum FFH-Gebiet Nr. 6205-301 „Sauertal und Seitentäler“ zu Beeinträchtigungen des FFH-Gebiets im Sinne von § 34 Abs. 2 BNatSchG.
  • örtliche Schutzgebiete und - Objekte des Naturschutzes
  • Flächen / Objekte mit Biotopschutz nach § 30 BNatSchG sowie erweiterten Biotopschutz nach § 15 LNatSchG
  • ´Rote Liste - Biotoptypen’: heimische geschlossene Strauchbestände, Obstbäume
  • Naturpark ‚Südeifel´
  • kein Bestandteil der Planung vernetzter Biotopsysteme
  • keine Betroffenheit von Wasserschutzgebieten, Überschwemmungsgebiete sowie Heil-quellenschutzgebiet; ebenso keine Risikogebiete außerhalb von Überschwemmungsbieten (§ 78b Absatz 1 WHG) bzw. hochwassergefährdeten Gebiete der ‚Prüm‘;
  • Artenschutz
  • (ausschließende) Angaben zu Bodenbelastungen / Altlasten / Altablagerungen
  • Angaben zur örtlich überprüften Natur und Landschaft / Biotop- und Nutzungstypen(kartierung): hochwertige geschlossene heimische Strauchbestände sowie Einzelobstbäume (teils mit Baumhöhlen), mäßig intensiv genutzte Wiesenflächen auf mittleren Standorten, geringwertige Grünanlagen / Grünflächen
  • Biotopverbund zu vorhandenen Gehölzstrukturen
  • Wechselwirkungen zwischen einzelnen Belangen des Umweltschutzes hinsichtlich von Belangen des „Menschen und seiner Gesundheit sowie die Bevölkerung“ oder „Kulturgütern und sonstigen Sachgütern“
  • Beschreibung von Umweltmaßnahmen u. a. zum Schall- und Lärmschutz, Abwasserbehandlung / Entwässerung, Abfallwirtschaft, Starkregengefährdung, Angaben zur Eingriffsregelung / Grünordnerische Maßnahmen, Gehölzerhalt, Vorhabenbezogene Maßnahmen / Maßnahmen auf dem privaten Baugrundstück, Umweltauswirkungen
  • Eingriffs-Ausgleich-Bilanzierung in Anlehnung an den ‚Praxisleitfaden zur Ermittlung des Kompensationsbedarfs in Rheinland-Pfalz‘ (Stand: Mai 2021
  • Erkenntnisse der Untersuchung von Lärmimmissionen durch Ingenieurbüro
54666 Irrel, den 31.01.2025
Ortsgemeinde Irrel
(Siegel)
gez.
Simon Jegen
Ortsbürgermeister