Titel Logo
Amtsblättje - Rund um den Hochkelberg
Ausgabe 42/2024
Aus den Ortsgemeinden
Zurück zur vorigen Seite
Zurück zur ersten Seite der aktuellen Ausgabe

Öffentliche Auslegung der 6. Änderung des Bebauungsplanes „Heilbachsee“ gemäß § 3 Abs. 2 Baugesetzbuch (BauGB)

I. Auslegungsbeschluss

In der öffentlichen Sitzung am 20.03.2023 hat der Gemeinderat Gunderath die während der frühzeitigen Beteiligung der Öffentlichkeit sowie der Behörden und sonstigen Träger öffentlicher Belange eingegangenen Stellungnahmen abgewogen und die öffentliche Auslegung der Planunterlagen beschlossen.

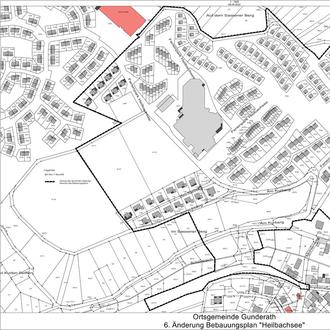
II. Geltungsbereich

Der räumliche Geltungsbereich des 6. Änderungsplanes zum Bebauungsplan „Heilbachsee“ ist in der nachfolgenden Abbildung mit Strichlinie umrahmt dargestellt.

III. Auslegungsdauer

Die Entwurfsunterlagen, bestehend aus Planzeichnung, textlichen Festsetzungen, Begründung sowie den wesentlichen, bislang vorliegenden umweltbezogenen Stellungnahmen, liegen in der Zeit vom

28.10.2024 bis einschließlich 28.11.2024

bei der Verbandsgemeindeverwaltung Kelberg, Dauner Str. 22, Abteilung Organisation und Bauen, 1. Obergeschoss, Zimmer 218, während der allgemeinen Dienststunden von

Montag bis Donnerstag

von 8:30 Uhr bis 12:00 Uhr

Montag bis Mittwoch

von 14:00 Uhr bis 16:00 Uhr

Donnerstag

von 14:00 Uhr bis 18:00 Uhr

Freitag

von 8:30 Uhr bis 12:30 Uhr

zur Einsichtnahme öffentlich aus.

Während der Auslegungsfrist können Stellungnahmen schriftlich oder während der Öffnungszeiten zur Niederschrift bis zum Ende der Veröffentlichungsfrist vorgebracht werden. Ihre Stellungnahme kann auch an folgende E-Mail-Adresse gesendet werden: bauleitplanung@vgv-kelberg.de. Nicht fristgerecht abgegebene Stellungnahmen können bei der Beschlussfassung über den Bebauungsplan gemäß § 4a Abs. 6 BauGB unberücksichtigt bleiben, sofern die Gemeinde deren Inhalt nicht kannte und nicht hätte kennen müssen und deren Inhalt für die Rechtmäßigkeit des Bebauungsplanes nicht von Bedeutung ist.

Für den Geltungsbereich der 6. Änderung des Bebauungsplanes „Heilbachsee“ sind folgende Arten umweltbezogener Informationen verfügbar und können während der öffentlichen Auslegung eingesehen werden:

  • Fachbeitrag Naturschutz sowie
  • Stellungnahmen von Behörden und sonstigen Trägern öffentlicher Belange zur Ableitung von Niederschlagswasser und Starkregenereignissen, zum Immissionsschutz, zum Schutz des Bodens, zu Eingriffs- und Ausgleichsbilanzierung und Kompensationen, insbesondere aus forstrechtlicher Sicht.

Der Planentwurf sowie alle auszulegenden Unterlagen können während des obengenannten Zeitraums auch im Internet auf der Seite der VG Kelberg unter www.kelberg.de über den Pfad: Aktuelles – OG Gunderath, 6. Änderung des Bebauungsplanes „Heilbachsee“ abgerufen werden.

Die Offenlage der 6. Änderung des Bebauungsplanes „Heilbachsee“ wird hiermit öffentlich bekanntgemacht.

Ortsgemeinde Gunderath
Gunderath, der 14.10.2024
gez. Jochen Wagner, Ortsbürgermeister