Titel Logo
Prümer Rundschau
Ausgabe 32/2022
Aus den Gemeinden
Zurück zur vorigen Seite
Zurück zur ersten Seite der aktuellen Ausgabe

Öffentliche Bekanntmachung

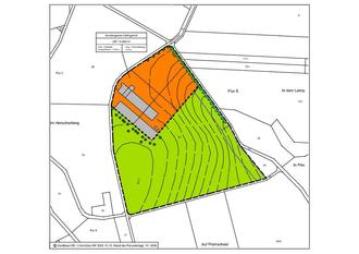
Quelle: © Naturschutzverwaltung RLP, Geobasisdaten. © Kataster- und Vermessungsverwaltung RLP

​​​​​​​Auszug aus der Planurkunde, unmaßstäblich (----- Geltungsbereich)

über die öffentliche Auslegung der Entwurfsunterlagen des Bebauungsplanes „Sondergebiet Geflügelhof“ im Bereich „Auf Prümscheid“ der Ortsgemeinde Habscheid gem. § 3 Abs. 2 Baugesetzbuch (BauGB).

Der Ortsgemeinderat Habscheid hat in öffentlicher Sitzung am 21.07.2022 die öffentliche Auslegung der Planunterlagen gem. § 3 Abs. 2 BauGB beschlossen.

Der rd. 7,5 ha große räumliche Geltungsbereich des Bebauungsplans (BPlan) liegt südöstlich der Ortslage Habscheid und östlich der Ortslage Hollnich. Der Geltungsbereich umfasst das Flurstück 26 der Flur 5, Gemarkung Habscheid.

Die Lage des Plangebiets ist aus der nachfolgend aufgeführten unmaßstäblichen Kartenunterlage ersichtlich (rot schraffiert).

Hinzu kommen Flächen für externe, ökologische Kompensationsmaßnahmen (Ausgleichs- und Ersatzmaßnahmen) auf folgenden Flurstücken:

Gemarkung

Flur

Flurstück Nr.

Fläche [ha]

Großlangenfeld

1

81

1,59

Brandscheid

62

30

0,57

Hollnich

7

80

0,55

81

0,14

Anlass, Ziel und Zweck der Planung:

Ein in Habscheid außerhalb der Ortslage ansässiger Geflügelhof soll um eine Sortier- und Packstation für Eier aus regionaler landwirtschaftlicher Erzeugung mit Verpackung und Kühlung sowie Räumen für Büro und Verwaltung auf der Gemarkung Habscheid, Flur 5, Flurstück 26 erweitert werden. Hierbei handelt es sich um ein geschlossenes Gebäude, in dem keine Tierhaltung stattfinden wird. Eine Erweiterung der Legehennenkapazität ist nicht vorgesehen, der Betrieb wird also auch künftig maximal 39.900 Hennen halten.

Das Plangebiet umfasst eine Größe von insgesamt ca. 7,54 ha, davon werden ca. 2,25 ha als Sonderbaufläche und ca. 5,29 ha als landwirtschaftliche Nutzfläche ausgewiesen.

Die Aufstellung des Bebauungsplanes „Sondergebiet Geflügelhof“ erfolgt gem. § 8 Abs. 3 BauGB im Parallelverfahren, also gleichzeitig mit der 13. Änderung des Flächennutzungsplanes der Verbandsgemeinde Prüm zur Ausweisung einer Sonderbaufläche in der Ortsgemeinde Habscheid (Erweiterung Bereich „Auf Prümscheid“).

Ziel der Bebauungsplanung ist, eine Erweiterung des vorhandenen Geflügelhofes um gewerbliche Nutzungen zu ermöglichen. Zudem soll im Plangebiet die städtebauliche Ordnung für den gesamten Betriebsstandort hergestellt und rechtlich gesichert werden.

Für die überplanten Flächen werden nur die betriebseigenen Flächen des Geflügelhofes in Anspruch genommen. Die rechtliche und wirtschaftliche Sicherung des bestehenden Betriebes überwiegen in der Abwägung gegenüber dem Erhalt des Bodens als Freifläche mit landwirtschaftlicher Nutzung.

Details der Planung ergeben sich aus den Entwurfsunterlagen des Bebauungsplanes „Sondergebiet Geflügelhof“ im Bereich „Auf Prümscheid“.

Der vom Ortsgemeinderat Habscheid in seiner Sitzung vom 21.07.2022 gebilligte und zur öffentlichen Auslegung bestimmte Entwurf des Bebauungsplanes „Sondergebiet Geflügelhof“ im Bereich „Auf Prümscheid“ mit Planurkunde und Textteil (Textliche Festsetzungen und Hinweise), Begründung, Umweltbericht mit integriertem Fachbeitrag Naturschutz, Entwässerungskonzept, Baugrunderkundung mit geotechnischem Bericht sowie die nach Einschätzung der Gemeinde wesentlichen vorliegenden umweltbezogenen Stellungnahmen aus dem bereits erfolgten frühzeitigen Beteiligungsverfahren gem. §§ 3 Abs. 1 und 4 Abs. 1 BauGB (siehe unten) und der Inhalt dieser öffentlichen Bekanntmachung liegen in der Zeit vom

22.08.2022 bis einschließlich 22.09.2022

im Foyer des Erdgeschosses der Verbandsgemeindeverwaltung Prüm, Tiergartenstraße 54, 54595 Prüm, während der Öffnungszeiten (in der Regel jeweils montags bis freitags von 08.00 Uhr bis 12.00 Uhr sowie zusätzlich donnerstags von 14.00 Uhr bis 18.00 Uhr) zu jedermanns Einsicht öffentlich aus.

Sollte die Verbandsgemeindeverwaltung Prüm aufgrund der Covid-19-Pandemie vorsorglich für den Publikumsverkehr geschlossen sein, wird der Dienstbetrieb weiterhin aufrechterhalten, sodass die Einsichtnahme in die o. g. öffentlich ausgelegten Planunterlagen nach terminlicher Absprache unter der Telefonnummer 06551/943-311 oder per E-Mail an bauleitplanung@vg-pruem.de weiterhin möglich bleibt. Die jeweiligen örtlichen Infektionsschutzmaßnahmen sind zu beachten.

Die o. g. Unterlagen sowie der Inhalt dieser Bekanntmachung können zusätzlich im o. g. Zeitraum im Internet auf der Homepage der Verbandsgemeinde Prüm unter https://www.pruem.de/verbandsgemeinde-orte/bauleitplanung-raumordnung/

eingesehen werden.

Gleichzeitig wird die Planung in das zentrale Internetportal des Landes Rheinland-Pfalz unter https://www.geoportal.rlp.de eingestellt.

Zum Bebauungsplan „Sondergebiet Geflügelhof“ im Bereich „Auf Prümscheid“ sind umweltbezogene Stellungnahmen und Informationen zu folgenden Schutzgütern verfügbar:

Die folgenden wesentlichen Unterlagen mit umweltbezogenen Informationen werden mit dem Entwurf des Bebauungsplans, bestehend aus a) Planzeichnung und b) Textteil mit Textlichen Festsetzungen und Hinweisen, offengelegt:

-

Begründung zum Bebauungsplan, Stand Juli 2022 mit Aussagen zum Planungsanlass, zu Standortuntersuchungen, zur Abgrenzung des Plangebietes, zu den übergeordneten Planungszielen, zur städtebauliche Konzeption, zur Immissionsschutzrechtlichen Situation, zur Vermeidung, Verminderung und zum Ausgleich von Eingriffen in Natur und Landschaft, zu den Planinhalten und Festsetzungen und zur Umsetzung

-

Umweltbericht mit integriertem Fachbeitrag Naturschutz und artenschutzrechtlicher Prüfung zum Bebauungsplan, Stand Juli 2022: Beschreibung und Bewertung der Umweltauswirkungen der Planung auf die Schutzgüter Geologie, Boden und Fläche, Wasser, Klima und Luft, Tiere, Pflanzen und biologische Vielfalt, Orts- u. Landschaftsbild / Erholung, Mensch und Gesundheit, Kultur- und Sachgüter, Wechselwirkungen zwischen Umweltschutzbelangen

-

Entwässerungskonzept Niederschlagswasser, Stand März 2022 mit Aussagen zur Ausgangsituation, zum Entwässerungssystem, Berechnung der Rückhalteflächen, Gestaltung der Versickerungs- und Verdunstungsmulden

-

Geotechnischer Bericht, Stand Oktober 2021 mit Aussagen zur Baugrundbeschreibung, zur ingenieurgeologischen Baugrundbeurteilung, Gebäudebegründung, zu erdbautechnischen Hinweisen, zur Gebäudeabdichtung und zur Versickerungseignung der anstehenden Böden

Die folgenden nach Einschätzung der Gemeinde wesentlichen umweltbezogenen Stellungnahmen liegen mit dem beglaubigten Auszug aus der Niederschrift der Sitzung des Ortsgemeinderates Habscheid vom 21.07.2022, inkl. Abwägung der Stellungnahmen aus den frühzeitigen Beteiligungsverfahren gem. §§ 3 Abs. 1 und 4 Abs. 1 BauGB, öffentlich aus:

-

Generaldirektion Kulturelles Erbe Rheinland-Pfalz, Direktion Landesdenkmalpflege, Schillerstraße 44, 55116 Mainz vom 11.05.2022 mit Informationen bzw. Hinweisen zu

o Erhaltungs- und Umgebungsschutz der baulichen Gesamtanlage „Westwall“

o Umgang mit untertägigen Fundgegenständen bei Bodeneingriffen

-

Struktur- und Genehmigungsdirektion Nord, Regionalstelle Gewerbeaufsicht Trier, Deworastraße 8, 54290 Trier vom 16.05.2022 mit Hinweisen zur Einhaltung immissionsschutzrechtlicher Vorgaben

-

Struktur- und Genehmigungsdirektion Nord, Regionalstelle Wasserwirtschaft, Abfallwirtschaft, Bodenschutz Deworastraße 8, 54290 Trier vom 19.05.2022 mit Hinweisen zu

o Abwasserbeseitigung (Schmutz- und Niederschlagswasser)

o Starkregenvorsorge (mögliche Abflusskonzentration am Nord- und Ostrand des Plangebietes, Objektschutz)

-

Verbandsgemeindeverwaltung Prüm, Fachbereich 4: Verbandgemeindewerk, Tiergartenstraße 54, 54595 Prüm vom 23.05.2022 mit Hinweisen zum Entwässerungskonzept und textlichen Festsetzungen

-

Kreisverwaltung des Eifelkreises Bitburg-Prüm, Trierer Straße 1, 54634 Bitburg vom 24.05.2022 mit Informationen, Anregungen und Hinweisen zu

o Naturschutz und Landschaftspflege:

Ergänzung Textfestsetzungen

Kompensationsverpflichtungen (Altverpflichtungen)

Ergänzung Aussagen Artenschutz

Ermittlung Kompensationsbedarf (Bilanzierung Flächen)

Ergänzung Hinweis (Roden von Gehölzen)

Sicherung externer Kompensationsmaßnahmen, Eintragung ins Kompensationsverzeichnis

o Denkmalschutz: Hinweis zum Umgang mit Fundgegenständen bei Erd-, Bau- und Abbrucharbeiten

o Wasserrecht: Hinweise zum Entwässerungskonzept

o Brandschutz: Hinweis zur Löschwasserversorgung

-

Generaldirektion Kulturelles Erbe RLP, Direktion Landesarchäologie, Rheinisches Landesmuseum Trier, Weimarer Allee 1, 54290 Trier vom 25.05.2022, mit Hinweisen zur gesetzl. Anzeige-, Erhaltungs- und Ablieferungspflicht archäologischer Funde

Während der Auslegungsfrist können von jedermann Stellungnahmen bei der Verbandsgemeindeverwaltung Prüm abgegeben werden.

Es wird darauf hingewiesen, dass nicht fristgerecht abgegebene Stellungnahmen bei der Beschlussfassung über den Bebauungsplan „Sondergebiet Geflügelhof“ im Bereich „Auf Prümscheid“ gemäß § 3 Abs. 2 BauGB sowie § 4a Abs. 6 BauGB unberücksichtigt bleiben können, sofern die Gemeinde deren Inhalt nicht kannte und nicht hätte kennen müssen und deren Inhalt für die Rechtmäßigkeit des Bebauungsplans nicht von Bedeutung ist.

Die vorstehende Bekanntmachung wird hiermit veröffentlicht.

Habscheid, den 04.08.2022
gez.
Dietmar Fuchs
Ortsbürgermeister