Titel Logo
Islek aktuell VG Arzfeld
Ausgabe 34/2023
Amtliche Bekanntmachungen und Mitteilungen der Ortsgemeinden
Zurück zur vorigen Seite
Zurück zur ersten Seite der aktuellen Ausgabe

Amtliche Bekanntmachung zum Bebauuungsplanverfahren

Bebauungsplanverfahren der Ortsgemeinde Plütscheid;

Öffentliche Auslegung des Entwurfs gemäß § 3 Abs. 2 Baugesetzbuch (BauGB)

Der Ortsgemeinderat Plütscheid hat in seiner Sitzung am 08. Juni 2022 die Aufstellung des Bebauungsplanes „Ober dem Atzseifen“ gem. § 2 BauGB einschließlich eines integrierten Umweltberichtes beschlossen.

Die frühzeitige Bürgerbeteiligung gemäß § 3 Abs. 1 BauGB erfolgte vom 15. November 2022 bis einschließlich 16. Dezember 2022.

Die Behörden und Träger öffentlicher Belange sind gemäß § 4 Abs. 2 BauGB mit Schreiben vom 14. November 2022 unterrichtet und zur Abgabe einer Stellungnahme bis einschließlich 16. Dezember 2022 aufgefordert worden.

In der Sitzung vom 16. März 2023 hat die Ortsgemeinde Plütscheid über die eingegangenen Anregungen und Bedenken aus der Bürgerbeteiligung und der TÖB-Beteiligung beraten und abgewogen, den Entwurf des Bebauungsplanes angenommen und die öffentliche Auslegung gemäß § 3 Abs. 2 BauGB sowie die Beteiligung der Behörden und sonstigen Träger öffentlicher Belange gemäß § 4 Abs. 2 BauGB beschlossen.

Zweck der Aufstellung der Aufstellung des Bebauungsplanes „Ober dem Atzseifen“:

In der Ortsgemeinde Plütscheid sind Anfang 2022 große Teile einer Dachdeckerfirma abgebrannt. Der Betrieb soll nunmehr wieder aufgebaut werden und an die heutigen Betriebserfordernisse angepasst werden. Gleichzeitig sollen für einen gegenüberliegenden Elektrobetrieb die bauordnungsrechtlichen Rahmenbedingungen für die zukünftige Entwicklung vorbereitet werden.

Die Ortsgemeinde Plütscheid unterstützt die Betriebe und möchte durch vorliegenden Bebauungsplan die städtebaulichen Rahmenbedingungen vorgeben.

Mit der Planung wird das Ziel verfolgt das sich die bestehenden Betriebe entwickeln können und ein kleines Gewerbegebiet entsteht, das städtebaulich-funktional den Anforderungen der Betriebe durch optimale innere Erschließung sowie Flexibilität in der betrieblichen Organisation gerecht wird.

Darüber hinaus soll ein Interessenausgleich zwischen den ökonomischen Bedürfnissen der Gewerbebetriebe mit ihren zahlreichen Zwangspunkten einerseits und den sonstigen Anforderungen, beispielsweise den Belangen von Natur und Landschaft andererseits, herbeigeführt werden.

Im gültigen Flächennutzungsplan der VG Arzfeld aus dem Jahr 2001 ist der Geltungsbereich als landwirtschaftliche Fläche dargestellt. Da gemäß des Entwicklungsgebotes Bebauungspläne aus dem Flächennutzungsplan zu entwickeln sind (§ 8 Abs. 2 S.1 BauGB) wird durch die Aufstellung des Bebauungsplanes zur Ausweisung von Gewerbeflächen eine Flächennutzungsplanänderung erforderlich. Die Flächennutzungsplanänderung erfolgt im Parallelverfahren gemäß § 8 Abs. 3 BauGB zur Aufstellung des Bebauungsplanes.

Für die Belange des Umweltschutzes ist grundsätzlich für alle Bauleitplanverfahren eine förmliche Umweltprüfung durchzuführen (§ 2 Abs. 4 Satz 1 BauGB); hierzu ist ein Umweltbericht gemäß §§ 2 Abs.4, und § 2a BauGB i.V.m. Anlage 1 zu § 2 Abs. 4, §§ 2a, 4c BauGB zu erstellen.

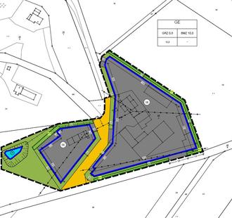
Geltungsbereich des Bebauungsplanes „Ober dem Atzseifen“:

Das Plangebiet des Bebauungsplans „Ober dem Atzseifen“ befindet sich im Ortsteil Atzseifen der Ortsgemeinde Plütscheid. Die Größe des Geltungsbereichs beträgt etwa 2,03 ha.

Verkehrlich ist das Plangebiet über die Straße „Atzseifen“ an die Landesstraße L 12 und damit an den überörtlichen Verkehr angebunden.

Der Geltungsbereich des Bebauungsplans umfasst die Flurstücke in der Germarkung Plütscheid, Flur 11, Parzelle-Nrn.: 20/1, 20/2, 30 (teilweise) und 69 (teilweise).

Der räumliche Geltungsbereich des Bebauungsplanes „Ober dem Atzseifen“ ist in der nachfolgenden Plankarte ersichtlich:

(unmaßstäbliche Darstellung des Plangebietes)

Bei der Aufstellung von Bebauungsplänen sind gemäß § 1 Absatz 6 Nr. 7 BauGB die Belange des Umweltschutzes, des Naturschutzes und der Landschaftspflege zu berücksichtigen.

In einer Umweltprüfung gem. § 2 Abs. 4 BauGB mit einem Umweltbericht nach § 2a BauGB wurden die Umweltbelange geprüft. Dabei wurde gem. § 1a Abs. 3 BauGB die Eingriffsregelung nach dem Bundesnaturschutzgesetz berücksichtigt.

Umweltbezogene Informationen und Stellungnahmen:

Umweltbericht mit integriertem Fachbeitrag Naturschutz zum Bebauungsplan:

Im Umweltbericht ist eine Beschreibung und Bewertung der Umweltbelange und eine Beurteilung der Auswirkungen der Planung auf die in § 1 (6) Nr. 7 BauGB angeführten Schutzgüter sowie der nachteiligen Auswirkungen der Planung auf die umweltrelevanten Schutzgüter enthalten.

Umweltbezogene Informationen zu den Schutzgütern Tiere, Pflanzen und ihre Lebensräume:

Im Umweltbericht erfolgen die Aussagen zu den im Plangebiet vorkommenden Tiere, Pflanzen und Lebensräume und hieraus abzuleitenden Maßnahmen unter Berücksichtigung des Fachbeitrags Naturschutz, inklusive artenschutzrechtlicher Potenzialanalyse zur Aufstellung des Bebauungsplans „Ober dem Atzseifen“ OG Plütscheid 0723.

Alle in Anhang IV der FFH-Richtlinie aufgeführten Tier- und Pflanzenarten sowie alle heimischen europäischen Vogelarten gem. Art. 1 Vogelschutzrichtlinie, die für das TK-25 Blatt Nr. 5904 (Waxweiler) unter ARTeFAKT (LfU) gelistet sind, wurden durch den Vergleich ihrer Habitatansprüche mit den im Untersuchungsraum vorhandenen Habitatstrukturen und Standortbedingungen unter Berücksichtigung der vorhandenen Vorbelastung - Störwirkungen durch die Bewirtschaftung des Plangebietes sowie angrenzende Siedlungsbereiche - auf ihr potenzielles Vorkommen im Plangebiet hin überprüft. Unter ARTeFAKT gelistete Arten, die aufgrund mangelnder Habitatausstattung nicht im Wirkraum zu erwarten sind, werden im Folgenden nicht weiter berücksichtigt. Für die potenziell vorkommenden Arten erfolgt eine artenschutzrechtliche Bewertung des Vorhabens, unter Berücksichtigung ihrer Empfindlichkeit gegenüber auftretenden Wirkfaktoren. Die bestehende Vorbelastung wird ebenfalls berücksichtigt. Die weitere Darstellung erfolgt getrennt nach Artengruppen. Liegen innerhalb einer Artengruppe eine vergleichbare Betroffenheit und ähnliche Habitatansprüche vor, werden die entsprechenden Arten zusammenfassend behandelt. Ebenso werden die Flächen getrennt betrachtet, wenn sie den Arten unterschiedliche Habitatbedingungen bieten. Wenn die Habitatbedingungen ähnlich sind, werden die Flächen zusammengefasst abgehandelt.

Die Planflächen zeigen keine wesentliche Habitateignung für die oben aufgeführten europarechtlich geschützten Arten. Höherwertige Habitatstrukturen im näheren Umfeld werden von der Planung nicht tangiert oder werden erhalten (§30 BNatSchG geschützte Glatthaferwiese und Baumreihe) und es bestehen unmittelbar an den Planungsraum angrenzend ausreichende Ausweichmöglichkeiten. Eine anlage-, bau- oder betriebsbedingte Tötung streng geschützter Arten wird nicht erwartet. Das Eintreten des Verbotstatbestandes §44 Abs. 1 Nr. 3 kann ausgeschlossen werden. Der Wirkraum der Planung wird bereits heute durch verschiedene Nutzer frequentiert. Dadurch ist, mit Bezug auf den Bau, eine kontinuierliche und vergleichbare Lärm- und Bewegungsunruhe gegeben. Baubedingte Störungen an potenziell in näherer Umgebung gelegenen Brutstätten für Vögel müssen dadurch vermieden werden, dass die Bauarbeiten vor Brutbeginn beginnen und ohne längere Unterbrechungen fortgeführt werden, sodass möglicherweise im Störungsbereich gelegene Brut- und Quartiermöglichkeiten gar nicht erst genutzt werden. Störungen im Bereich angrenzender Jagdhabitate für Fledermäuse und Eulen müssen durch einen Verzicht auf nächtliche Bauarbeiten und nächtlicher Beleuchtung der neuen Firmenteile vermieden werden. Insgesamt sind die anlage-, bau- und betriebsbedingten Beeinträchtigungen, gemessen an den bestehenden Störquellen, als geringfügig anzusehen. Eine den Erhaltungszustand lokaler Populationen verschlechternde Störung kann unter Umsetzung der Vorsorgemaßnahmen somit ebenfalls ausgeschlossen werden.

Vertiefende Untersuchungen und eine spezielle Artenschutzrechtliche Prüfung (sAP) werden nicht als erforderlich erachtet, da sich ein Eintreten der Verbotstatbestände der Tötung (§ 44 Abs. 1 Nr.1 BNatSchG) und der Zerstörung von Fortpflanzungs- und Ruhestätten (§ 44 Abs. 1 Nr.1 BNatSchG) nicht prognostizieren lässt und erhebliche Störungen (§ 44 Abs. 1 Nr. 2 BNatSchG) im Vorfeld durch geeignete Vorsorgemaßnahmen ausgeschlossen werden können.

Umweltbezogene Informationen zu dem Schutzgut Boden:

Im Umweltbericht erfolgen die Aussagen zu der Vorbelastung und der geplanten Versiegelung Berücksichtigung des Fachbeitrags Naturschutz inklusive artenschutzrechtlicher Potenzialanalyse.

Die Böden im Plangebiet bestehen lt. Geologische Übersichtskarte (BFD5L und BFD200) von Rheinland-Pfalz7 aus sandigem Lehm bis lehmigen Sand. Diese Böden sind periglaziäre Lagen über Festgestein mit steinigen Böden. Die Böden liegen in der Bodengroßlandschaft der Ton- und Schluffschiefer mit wechselnden Anteilen an Grauwacke, Kalkstein, Sandstein und Quarzit, z.T. wechselnd mit Lösslehm. Dies sind Braunerden, flachgründige Braunerden und Regosole aus Tonschiefer (Devon).

Das Plangebiet liegt auf einem Standort mit ausgeglichenem Wasserhaushalt und geringem bis mittlerem Wasserspeicherungsvermögen, mit schlechtem bis mittleren natürlichen Basenhaushalt. Das Nitratrückhaltevermögen wird als gering bis mittel angegeben. Das Ertragspotential ist gering bis hoch mit geringer bis mittlerer nutzbarer Feldkapazität, der Bodenraum ist 30 bis

Umweltbezogene Informationen zu dem Schutzgut Wasser:

Das Plangebiet befindet sich in der Grundwasserlandschaft der Devonischen Schiefer und Grauwacken und somit im Gebiet der silikatischen Kluftgrundwasserleiter. Der Geoexplorer gibt eine Grundwasserneubildungsrate von 43 mm, eine mittlere Grundwasserüberdeckung und eine geringe bis äußerst geringe Durchlässigkeitsklasse für das Plangebiet an.

Das Plangebiet befinden sich keinem Mineralwassereinzugsgebiet, Trinkwasserschutzgebiet oder in einem Gebiet mit Heilquellen.

Innerhalb des Projektgebietes befinden sich keine Gewässer. Das nächste Gewässer ist ein kleiner Bach, der Atzseifen, ca. 200 m westlich.

Umweltbezogene Informationen zu dem Schutzgut Landschaftsbild:

Im Umweltbericht erfolgt die Aussage, unter Berücksichtigung des Fachbeitrags Naturschutz, inklusive artenschutzrechtlicher Potenzialanalyse zur Aufstellung des Bebauungsplans

In Bezug auf die Erholung und touristische Nutzung ist die Planfläche auf Grund der geringen Größe und der derzeitigen Nutzung durch die Firmen eher von geringem Wert. Im Plangebiet selbst sowie im Umfeld des Plangebietes befinden sich auch keine besonderen wertgebenden touristischen Einrichtungen oder Landschaftselemente, die nicht erhalten werden.

Die Fläche ist lediglich aus direkter Umgebung einsehbar.

Gutachten/Stellungnahmen zu dem Schutzgut Landschaftsbild:

Fachbeitrag Naturschutz, inklusive artenschutzrechtlicher Potenzialanalyse zur Aufstellung des Bebauungsplans „Ober dem Atzseifen“ OG Plütscheid 0723

Umweltbezogene Informationen zu dem Schutzgut Klima/ Luft:

Der Planungsraum fungiert als Kaltluftproduktionsfläche. Diese wird durch den Bau nicht bzw. nur in dem Umfang geändert, indem es kleinklimatisch zu einer höheren Verschattung kommt. Mesoklimatisch wird von keinen nennenswerten Änderungen ausgegangen. Die Schutzwürdigkeit wird als geringwertig eingestuft. Die Eingriffserheblichkeit ist wegen nicht nennenswerten Veränderungen (keine Barrierewirkung für Luftaustauschbahnen und keine Bildung von Wärmeinseln am Boden) als geringfügig einzustufen.

Gutachten/Stellungnahmen zu dem Schutzgut Klima/ Luft:

Fachbeitrags Naturschutz, inklusive artenschutzrechtlicher Potenzialanalyse zur Aufstellung des Bebauungsplans

Geländeklimatisch stellen sich die Plangebiete als Teil einer des Siedlungsraumes dar. Es sind keine in Lanis dargestellten Luftaustauschbahnen oder klimatische Wirkräume betroffen. Der klimatischen Ausgleichsfunktion der Kaltluftproduktionsfläche wird daher eine geringe Bedeutung zugeordnet.

Umweltbezogene Informationen zu dem Schutzgut Mensch und seine Gesundheit sowie die Bevölkerung insgesamt

Der Gewerbebetrieb wurde bereits an der geplanten Stelle betrieben. Er soll nun wieder mit einem gewissen Entwicklungspotential nach den neuesten technischen Möglichkeiten aufgebaut werden. Insbesondere stellen die neu zu errichtendem Gebäude in Bezug auf den Schallschutz und die Wärmedämmung eine deutliche Aufwertung zum Bestand dar. Immissionsprobleme mit den umliegenden landwirtschaftlichen Betrieben sind aufgrund der Lage und insbesondere der Topographie nicht vorgekommen.

Der nächst gelegene landwirtschaftliche Betrieb ist ca. 150 m südöstlich gelegen. Er liegt somit in Bezug auf die Hauptwindrichtung günstig zum Plangebiet. Die sonstigen Betriebe liegen mehr als 300 m vom Plangebiet in ähnlich günstiger Windrichtung entfernt.

Niederschlagswasserbewirtschaftungskonzept

Die Niederschlagswasserbewirtschaftung ist im Vorentwurf geplant. Es ist eine Ableitung des anfallenden Niederschlagswasser über ein Trennsystem mit zentraler Rückhaltung und gedrosselter Ableitung vorgesehen. Die Ableitung soll in Form eines Grabens ins westlich gelegene Gewässer erfolgen. Hierzu wird auf das Niederschlagswasserbewirtschaftungskonzept des Planungsbüros Scheuch, Prüm, verwiesen.

Beteiligung der Öffentlichkeit und öffentliche Auslegung der Planunterlagen:

Hiermit wird bekannt gemacht, dass der Entwurf des Bebauungsplanes „Ober dem Atzseifen“ einschließlich der erforderlichen Unterlagen und Gutachten sowie der Begründung mit dem Umweltbericht inkl. Umweltprüfung und der umweltbezogenen Informationen und Stellungnahmen der Bürger und Behörden im Zuge der Beteiligung der Öffentlichkeit gemäß § 3 Abs. 1 BauGB und Behördenbeteiligung gemäß § 4 Abs. 1 BauGB, im Rahmen der öffentlichen Auslegung des Planentwurfs gemäß § 3 Abs. 2 BauGB in der Zeit vom

05. September 2023 bis einschließlich 06. Oktober 2023

bei der Verbandsgemeindeverwaltung Arzfeld, Luxemburger Straße 6, Zimmer 58, 54687 Arzfeld, während der Dienststunden (montags bis freitags 08:00 Uhr bis 12:00 Uhr, montags bis mittwochs 14:00 Uhr bis 16:00 Uhr und donnerstags 14:00 Uhr bis 18:00 Uhr) zu jedermanns Einsicht nach Terminabsprache öffentlich ausliegt.

Hierbei wird gemäß § 4 a Abs. 2 BauGB von der Möglichkeit Gebrauch gemacht, diese öffentliche Auslegung der Planunterlagen nach § 3 Abs. 2 BauGB gleichzeitig mit der Einholung der Stellungnahmen von den Behörden und sonstigen Trägern öffentlicher Belange nach § 4 Abs. 2 BauGB durchzuführen.

Während der Auslegungszeiten kann sich die Öffentlichkeit nach Terminabsprache über die allgemeinen Ziele und Zwecke sowie die wesentlichen Auswirkungen der Planung unterrichten lassen. Außerdem können von jedermann Anregungen zum Bebauungsplan schriftlich, per E-Mail oder während der Dienstzeiten nach Terminabsprache zur Niederschrift vorgebracht werden.

Des Weiteren kann der Entwurf zum Bebauungsplan „Ober dem Atzseifen“ einschließlich der dazugehörigen Unterlagen und Gutachten, mit dem Umweltbericht incl. Umweltprüfung, während des Auslegungszeitraums auf der Homepage der Verbandsgemeinde Arzfeld unter dem Link

https://www.vg-arzfeld.de/rathaus/buergerservice/bauen/bauleitplanung

eingesehen werden.

Gemäß § 4 a Abs. 6 BauGB i.V.m. § 3 Abs. 2 Satz 2 BauGB wird darauf hingewiesen, dass nicht fristgerecht abgegebene Stellungnahmen bei der Beschlussfassung über den Bauleitplan unberücksichtigt bleiben können, sofern die Gemeinde deren Inhalt nicht kannte und nicht hätte kennen müssen und deren Inhalt für die Rechtmäßigkeit des Bauleitplanes nicht von Bedeutung ist.

54597 Plütscheid, 21. August 2023
Johann Heltemes
Ortsbürgermeister