Titel Logo
Islek aktuell VG Arzfeld
Ausgabe 48/2023
Amtliche Bekanntmachungen und Mitteilungen der Ortsgemeinden
Zurück zur vorigen Seite
Zurück zur ersten Seite der aktuellen Ausgabe

Bekanntmachung

Bebauungsplanverfahren der Ortsgemeinde Dahnen;

Öffentliche Auslegung des Entwurfs gemäß § 4 Abs. 1 Baugesetzbuch (BauGB)

Beschluss über die Aufstellung des Bebauungsplanes „Verlängerung Birkenweg“:

Der Ortsgemeinderat Dahnen hat in seiner Sitzung am 04. April 2022 die Aufstellung des Bebauungsplanes „Verlängerung Birkenweg“ im beschleunigten Verfahren nach § 13b BauGB beschlossen.

Das laufende Bebauungsplanverfahren kann aufgrund der aktuellen Rechtsprechung und der daraus resultierenden Nichtanwendbarkeit des § 13b BauGB in dieser Form nicht fortgeführt werden.

In Abstimmung mit der Kreisverwaltung des Eifelkreises Bitburg-Prüm wird anstatt eines Bebauungsplanes im beschleunigten Verfahren gemäß § 13b BauGB nun ein Bebauungsplanverfahren im Regelverfahren gemäß § 2 BauGB einschließlich eines integrierten Umweltberichtes zur Ausweisung der Baustellen im Bereich „Verlängerung Birkenweg“ durchgeführt.

Der förmliche Aufstellungsbeschluss dieses Verfahrenswechsels wird von Seiten der Ortsgemeinde Dahnen im weiteren Verfahren nachgeholt.

Zweck der Aufstellung des Bebauungsplanes „Verlängerung Birkenweg“:

Die Ortsgemeinde Dahnen liegt nordwestlich von Bitburg im Eifelkreis Bitburg-Prüm in der Verbandsgemeinde Arzfeld. Aufgrund ihrer Lage in der Nähe zu Luxemburg und der Kreisstadt Bitburg, ist die Gemeinde ein nachgefragter Wohnstandort für die eigene Bevölkerung, aber auch für Berufspendler. Über den Verlauf der vergangenen Jahre ist eine rege Bautätigkeit im Ort festzustellen.

Die Ortsgemeinde möchte der stetigen Nachfrage nach Wohnraum gerecht werden. Daher beabsichtigt sie mit Aufstellung dieses Bebauungsplans eine landwirtschaftliche Fläche in Ortsrandlage einer Wohnnutzung zuzuführen.

Mit der Aufstellung des vorliegenden Bebauungsplans „Verlängerung Birkenweg“ sollen die planungsrechtlichen Grundlagen für die Entwicklung eines Allgemeinen Wohngebiets im Sinne des § 4 Baunutzungsverordnung (BauNVO) geschaffen werden.

Bei dem gewählten Standort handelt es sich um einen Bereich, der im gültigen Flächennutzungsplan (FNP) als Fläche für die Landwirtschaft – Acker, Grünland oder Sonderkulturen dargestellt ist. Dem Entwicklungsgebot gemäß § 8 Abs. 2 Baugesetzbuch (BauGB) wird daher nicht entsprochen.

Vor dem Hintergrund des Entwicklungsgebots ist eine Änderung der Darstellungen des Flächennutzungsplanes in eine Wohnbaufläche (W) erforderlich. Zur Schaffung einer geordneten städtebaulichen Entwicklung ist somit seitens der Ortsgemeinde Dahnen ein Bebauungsplanverfahren und parallel dazu eine Änderung des Flächennutzungsplans (FNP) der Verbandsgemeinde Arzfeld für den Bereich der Ortsgemeinde Dahnen gemäß § 8 Abs. 3 BauGB durchzuführen.

Im Rahmen der 11. Teilfortschreibung des Flächennutzungsplanes der Verbandsgemeinde Arzfeld erfolgt die Änderung des Flächennutzungsplanes gemäß § 8 Abs. 3 BauGB im Parallelverfahren, also gleichzeitig mit der Aufstellung des Bebauungsplans „Verlängerung Birkenweg“.

Für die Belange des Umweltschutzes ist grundsätzlich für alle Bauleitplanverfahren eine förmliche Umweltprüfung durchzuführen (§ 2 Abs. 4 Satz 1 BauGB); hierzu ist ein Umweltbericht gemäß §§ 2 Abs.4, und § 2a BauGB i. V.m. Anlage 1 zu § 2 Abs. 4, §§ 2a, 4c BauGB zu erstellen.

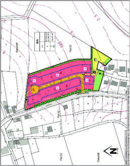
Geltungsbereich des Bebauungsplanes „Verlängerung Birkenweg“:

Das Plangebiet des Bebauungsplans „Verlängerung Birkenweg“ schließt sich unmittelbar an die vorhandene Bebauung im Süden und Westen an und bietet sich aufgrund seiner guten Erschließung und Bebaubarkeit zur Bebauung mit Wohnhäusern an. Die Entwicklung des Baugebietes „Verlängerung Birkenweg“ trägt zur Schaffung einer Verbindung zum Ortsteil Karschelt bei.

Verkehrlich wird das Plangebiet über eine neue Zufahrt von der L1 erschlossen.

Die genaue räumliche Abgrenzung des Bebauungsplans ergibt sich aus den nachfolgenden Planzeichnungen:

(unmaßstäbliche Verkleinerung)

(unmaßstäbliche Verkleinerung)

Beteiligung der Öffentlichkeit, der berührten Behörden und sonstigen Träger öffentlicher Belange sowie der berührten Nachbargemeinden und öffentliche Auslegung der Planunterlagen:

Der Ortsgemeinderat Dahnen hat den Beschluss gefasst, die öffentliche Auslegung gemäß § 3 Abs. 1 BauGB sowie die Beteiligung der berührten Behörden und sonstigen Träger öffentlicher Belange gemäß § 4 Abs. 1 BauGB durchzuführen.

Der Entwurf des Bebauungsplanes „Verlängerung Birkenweg“ einschließlich der dazugehörigen Begründung liegt in der Zeit vom

05. Dezember 2023 bis einschließlich 05. Januar 2024

bei der Verbandsgemeindeverwaltung Arzfeld, Luxemburger Straße 6, Zimmer 58, 54687 Arzfeld, während der Dienststunden (montags bis freitags 08:00 Uhr bis 12:00 Uhr, montags bis mittwochs 14:00 Uhr bis 16:00 Uhr und donnerstags 14:00 Uhr bis 18:00 Uhr) zu jedermanns Einsicht nach Terminabsprache öffentlich aus.

Während der Auslegungszeiten kann sich die Öffentlichkeit nach Terminabsprache über die allgemeinen Ziele und Zwecke sowie die wesentlichen Auswirkungen der Planung unterrichten lassen. Außerdem können von jedermann Anregungen zum Entwurf des Bebauungsplanes schriftlich oder während der Dienstzeiten nach Terminabsprache zur Niederschrift vorgebracht werden.

Des Weiteren kann der Entwurf des Bebauungsplanes „Verlängerung Birkenweg“ einschließlich der dazugehörigen Begründung während des Auslegungszeitraums auf der Homepage der Verbandsgemeinde Arzfeld unter dem Link:

https://www.vg-arzfeld.de/rathaus/buergerservice/bauen/bauleitplanung

eingesehen werden.

Gemäß § 4 a Abs. 6 BauGB wird darauf hingewiesen, dass nicht fristgerecht abgegebene Stellungnahmen bei der Beschlussfassung über den Bauleitplan unberücksichtigt bleiben können, sofern die Gemeinde deren Inhalt nicht kannte und nicht hätte kennen müssen und deren Inhalt für die Rechtmäßigkeit des Bauleitplanes nicht von Bedeutung ist.

54689 Dahnen, 27.11.2023

Peter Philippe

Ortsbürgermeister