Titel Logo
Islek aktuell VG Arzfeld
Ausgabe 8/2025
Amtliche Bekanntmachungen und Mitteilungen der Ortsgemeinden
Zurück zur vorigen Seite
Zurück zur ersten Seite der aktuellen Ausgabe

Öffentliche Niederschrift über die Sitzung des Ortsgemeinderates Lichtenborn

am Donnerstag, 31.10.2024, 16:00 Uhr,

im Dorfgemeinschaftshaus Lichtenborn

Tagesordnung

A. Öffentliche Sitzung

1.

Mitteilungen

2.

Beratung und Beschlussfassung zum Erlass einer Satzung über die Festsetzung der (bisher geltenden) Hebesätze für die Realsteuern ab dem Jahr 2025 gemäß § 24 GemO i.V.m. § 25 GrStG i.V.m. § 16 GewStG (Hebesatzsatzung)

3.

Feststellung des Jahresabschlusses und Entlastungserteilung gemäß § 114 Absatz 1 GemO für das Haushaltsjahr 2023

4.

26. Fortschreibung des Flächennutzungsplanes (FNP) der Verbandsgemeinde ArzfeldTeilbereich "Windkraft Geweberwald", Ortsgemeinde Plütscheid- Zustimmung der Ortsgemeinde gemäß § 67 Abs. 2 Satz 2 GemO

5.

Aufstellung eines Bebauungsplanes "Verlängerung In den Rosen" gemäß § 2 BauGB

5.1

Beratung und Beschlussfassung über die Aufstellung, den Entwurf und die Bezeichnung

5.2

Beratung und Beschlussfassung über die frühzeitige Beteiligung der Öffentlichkeit gemäß § 3 Abs. 1 BauGB

5.3

Beratung und Beschlussfassung über die frühzeitige Beteiligung der Behörden und sonstigen Träger öffentlicher Belange gemäß § 4 Abs. 1 BauGB

6.

Aufstellung des Bebauungsplanes "Bedachung Hermes GmbH" im beschleunigten Verfahren gemäß § 13a BauGB

6.1

Beratung und Beschlussfassung über die Aufstellung, den Entwurf und die Bezeichnung

6.2

Beratung und Beschlussfassung über die Beteiligung der Öffentlichkeit gemäß § 13a Abs. 2 Nr. 1 BauGB i. V. m. § 13 Abs. 2 Nr. 2 BauGB i. V. m. § 3 Abs. 2 BauGB sowie über die Beteiligung der berührten Behörden und sonstigen Träger öffentlicher Belange gemäß § 13a Abs. 2 Nr. 1 BauGB i. V. m. § 13 Abs. 2 Nr. 3 i. V. m. § 4 Abs. 2 BauGB

7.

Auftragsvergabe

8.

Bau- und Grundstücksangelegenheiten

8.1

Abschluss eines Erschließungsvertrages mit der Verbandsgemeinde Arzfeld - Verbandsgemeindewerk - für die Erschließung des Neubaugebietes "Verlängerung In den Rosen"

9.

Verschiedenes

Abwicklung der Tagesordnung:

Zu Punkt 1. Mitteilungen

Ortsbürgermeister Leick informierte über den Sachstand zum Ausbau der K122 Lichtenborn-Eulenbruch. Der Start des Ausbaus soll im Frühjahr 2025 erfolgen. Die Dauer der Bauzeit beträgt ca. ein Jahr.

Zu Punkt 2. Beratung und Beschlussfassung zum Erlass einer Satzung über die Festsetzung der (bisher geltenden) Hebesätze für die Realsteuern ab dem Jahr 2025 gemäß§ 24 GemO i.V.m. § 25 GrStG i.V.m. § 16 GewStG (Hebesatzsatzung)

1.

Die Grundsteuer wird auf den Grundbesitz erhoben, sofern dieser nicht ausnahmsweise von der Grundsteuer befreit ist.

Sie ist von den Eigentümerinnen und Eigentümer von bebauten und unbebauten Grundstücken zu zahlen.

Die Gemeinde bestimmt, mit welchem Hundertsatz der Steuermessbetrag oder des Zerlegungsanteils die Grundsteuer zu erheben ist (Hebesatz). (§ Grundsteuergesetz, GrStG )

2.

Die Gewerbesteuer unterliegt jeder stehende Gewerbebetrieb, soweit er im Inland betrieben wird. (§2 Gewerbesteuergesetz, GweStG)

Die Gewerbesteuer wird auf Grund des Steuermessbetrages mit einem Prozentsatz (Hebesatz) festgesetzt und erhoben, der von der hebeberechtigten Gemeinde zu bestimmen ist. (§ 16 Gewerbesteuergesetz, GweStG)

Voraussetzung für die Anwendung der jeweiligen Realsteuerhebesätze ist der aktuelle Hauptveranlagungszeitraum (Festlegung des Steuermessbetrages), der durch die Finanzverwaltung festgesetzt wird.

Aufgrund der Grundsteuerreform (Urteil des Bundesverwaltungsgerichtes vom 10.04.2018) endet der aktuelle Hauptveranlagungszeitraum am 31.12.2024.

Ab dem 01.01.2025 beginnt ein neuer Hauptveranlagungszeitraum.

U.a. wird aus dem bisherigen Begriff „Einheitswert“ ab dem 01.01.2025 der neue Begriff „Grundsteuerwert“.

Die Festsetzung der jeweiligen Realsteuerhebesätze erfolgte bisher in der jeweiligen Haushaltssatzung der Ortsgemeinde.

Die Veröffentlichung der ab dem neuen Veranlagungszeitraum geltenden Realsteuerhebesätze hat noch vor dem 01.01.2025 zu erfolgen.

Da die Veröffentlichung der Haushaltssatzungen (Doppelhaushalte bzw. Einzelhaushalte) vor dem 01.01.2025 nicht möglich ist, wird seitens des Gemeinde- und Städtebundes Rheinland-Pfalz empfohlen, die Realsteuerhebesätze für das Kalenderjahr 2025 mittels einer gesonderten Hebesatzsatzung festzustellen und zu veröffentlichen.

Es wird ausdrücklich darauf hingewiesen, dass mit der neuen Hebesatzsatzung die bisher geltenden Hebesätze der Grundsteuer A und B sowie der Gewerbesteuer mit Hebesatzsatzung unverändert bleiben.

Die Mustersatzung des Gemeinde- und Städtebundes Rheinland-Pfalz ist als Anlage beigefügt.

Es wurde der folgende Beschluss gefasst:

„Der Ortsgemeinderat Lichtenborn stimmt dem Erlass einer Satzung über die Festsetzung (bisher geltenden) der Hebesätze für die Realsteuern ab dem Jahr 2025 gemäß § 24 GemO i.V.m. § 25 GrStG i.V.m. § 16 GewStG (Hebesatzsatzung) zu.

Der Ortsbürgermeister wird beauftragt, die Satzung zu unterzeichnen.

Hiernach erfolgt die öffentliche Bekanntmachung gemäß § 24 Abs. 3 GemO.“

Abstimmungsergebnis:

Ja-Stimmen

Nein-Stimmen

Enthaltungen

7

-

-

Zu Punkt 3. Feststellung des Jahresabschlusses und Entlastungserteilung gemäß § 114 Absatz 1 GemO für das Haushaltsjahr 2023

Der nach § 110 Absatz 1 GemO gebildete Rechnungsprüfungsausschuss hat die Aufgaben und Befugnisse der örtlichen Rechnungsprüfung gemäß § 112 GemO wahrgenommen und insbesondere den Jahresabschluss 2023 sowie die Anlagen dazu geprüft. Es gab keine Beanstandungen.

Es wurde der folgende Beschluss gefasst:

a) Feststellung Jahresabschluss 2023:

Der Ortsgemeinderat hat durch den Vorsitzenden des Rechnungsprüfungsausschusses Kenntnis über das Ergebnis der örtlichen Rechnungsprüfung für das Haushaltsjahr 2023 erhalten. Es gab keine Beanstandungen.

Der geprüfte Jahresabschluss 2023 wird gemäß § 114 Absatz 1 Satz 1 GemO festgestellt.

Abstimmungsergebnis:

Abstimmungsergebnis:

Ja-Stimmen

Nein-Stimmen

Enthaltungen

5

-

-

b) Entlastungserteilung:

Dem Ortsbürgermeister, dem Bürgermeister der Verbandsgemeinde und der Verbandsgemeinde-verwaltung sowie den Beigeordneten der Ortsgemeinde und den Beigeordneten der Verbandsgemeinde wird gemäß § 114 Absatz 1 Satz 2 GemO Entlastung erteilt.

Abstimmungsergebnis:

Ja-Stimmen

Nein-Stimmen

Enthaltungen

5

-

-

Bei der Beratung und Beschlussfassung zu diesem Tagesordnungspunkt haben der Ortsbürgermeister und der/die Beigeordnete/n nicht mitgewirkt. Den Vorsitz führte das an Jahren älteste Ratsmitglied.

Zu Punkt 4. 26. Fortschreibung des Flächennutzungsplanes (FNP) der Verbandsgemeinde Arzfeld Teilbereich "Windkraft Geweberwald", Ortsgemeinde Plütscheid

- Zustimmung der Ortsgemeinde gemäß § 67 Abs. 2 Satz 2 GemO

Der Verbandsgemeinderat Arzfeld hat am 13. Juli 2023 und 18. April 2024 beschlossen, das Verfahren der 26. Fortschreibung des Flächennutzungsplanes der Verbandsgemeinde Arzfeld, Teilbereich „Windkraft Geweberwald“, Ortsgemeinde Plütscheid, zu betreiben.

Die Verbandsgemeinde (VG) Arzfeld hat im Rahmen der aktuell rechtswirksamen

3. FNP-Fortschreibung „Windkraft“ im Jahr 2016 Sondergebiete für die Windenergienutzung ausgewiesen.

Diese Sondergebiete bleiben vollumfänglich erhalten.

Die Verbandsgemeinde Arzfeld möchte als Folge der geänderten politischen Rahmenbedingungen für die Windenergienutzung zusätzliche Flächen, ergänzend zu den bestehenden Sondergebieten, zur Verfügung stellen.

Von der bisher geltenden 3. FNP-Fortschreibung „Windkraft“ aus dem Jahr 2016 wird dabei insoweit abgewichen, als dass in einem bisherigen Ausschlussbereich für Windenergie ein zusätzliches Sondergebiet für Windenergie „Plütscheid-Geweberwald“ mit einer Fläche von 81 ha ausgewiesen werden soll.

Die Grundzüge der Planung bleiben gemäß § 245e Abs.1 BauGB gewahrt, weil

  • mit den geplanten 81 ha des neuen Sondergebietes nicht mehr als 25 % der bisher ausgewiesenen Flächen (= 340 ha) zusätzlich dargestellt werden.
  • vom ursprünglichen Planungskonzept mit den dort angewendeten „harten“ und „weichen“ Ausschlusskriterien nicht abgewichen wird.
  • die 2016 festgestellten Konflikte, die im Rahmen der Abwägung zum Ausschluss der Fläche geführt hat, durch Wegfall von Restriktionen und durch neue Erkenntnisse (siehe Abschnitt 2) neu bewertet werden können.

Der Verbandsgemeinderat Arzfeld hat deshalb in seiner Sitzung am 13.07.2023 beschlossen, den Teilbereich „Windkraft“ des Flächennutzungsplanes fortzuschreiben.

Im Rahmen der Umweltprüfung erfolgte eine Betrachtung möglicher Umwelteinwirkungen, die sich aus der Ausweisung dieses zusätzlichen Sondergebietes ergeben.

Im Ergebnis bleibt festzuhalten, dass für keines der betrachteten Umweltschutzgüter erhebliche Beeinträchtigungen zu erwarten sind, wenn die vorgeschlagenen Vermeidungs-, Minimierungs- und Ausgleichsmaßnahmen umgesetzt werden.

Der räumliche Änderungsbereich der 26. Fortschreibung des FNP beschränkt sich auf Teilflächen im Südosten der VG auf dem Gebiet der Ortsgemeinde Plütscheid im Bereich Geweberwald.

(unmaßstäbliche Verkleinerungen des Sondergebietes „Windkraft Geweberwald)

Der von dem Verbandsgemeinderat Arzfeld beschlossene Kriterienkatalog („harte“ und „weiche“ Ausschlusskriterien), der der Ausweisung zugrunde liegt wird nicht geändert.

Die neu auszuweisende Fläche „Geweberwald“ entspricht vollumfänglich dem Kriterienkatalog.

Diese Fläche wurde im Zuge der 3. Teilfortschreibung des FNP im Jahre 2016 im Rahmen der Abwägung aus dem Verfahren genommen und nicht wegen Überlagerung mit Ausschlusskriterien ausgeschlossen.

Bei der Konfliktbewertung dieser Faktoren (die zum damaligen Verzicht der Fläche „Geweberwald“ geführt haben) haben sich seit 2016 weitreichende Änderungen ergeben, so dass das Konfliktpotential gegenüber der Windenergienutzung heute als deutlich geringer einzustufen ist.

Die nach dieser Neubewertung verbleibenden Konflikte sind auf der Ebene der Einzelgenehmigung lösbar.

Zur Berücksichtigung der Belange des Umweltschutzes nach §§ 1 Abs. 6 Nr. 7 und 1a BauGB ist im Aufstellungsverfahren der Entwurf des Bauleitplans einer Umweltprüfung zu unterziehen. Dabei sollen die erheblichen Umweltauswirkungen ermittelt und in einem Umweltbericht beschrieben und bewertet werden (§ 2 Abs.4 BauGB). Das Ergebnis der Umweltprüfung ist in der Abwägung zu berücksichtigen.

Die erneute verkürzte Unterrichtung der Öffentlichkeit nebst erneuter verkürzter öffentlicher Auslegung der Planunterlagen gemäß § 3 Abs. 2 BauGB i.V.m. § 4a Abs. 3 BauGB, wurde durch öffentliche Bekanntmachung im Mitteilungsblatt der Verbandsgemeinde Arzfeld vom 05. Oktober 2024, Ausgabe 40/2024, veranlasst.

Die Entwurfsplanung konnte vom 08. Oktober 2024 bis einschließlich 24. Oktober 2024 auf der Homepage der Verbandsgemeinde Arzfeld eingesehen werden und lag im gleichen Zeitraum in den Räumen der Verbandsgemeindeverwaltung Arzfeld zu jedermanns Einsicht aus.

Die erneute verkürzte Beteiligung der berührten Behörden und sonstigen Träger öffentlicher Belange gemäß § 4 Abs. 2 BauGB i.V.m. § 4a Abs. 3 BauGB wurde mit Schreiben vom 07. Oktober 2024 eingeleitet. Die Beteiligten konnten bis zum 24. Oktober 2024 Anregungen geltend machen.

Mit Beschluss vom 29. Oktober 2024 hat der Verbandsgemeinderat Arzfeld der 26. Fortschreibung des Flächennutzungsplanes der Verbandsgemeinde Arzfeld nach Abwägung der Ergebnisse aus den durchgeführten Verfahren nach § 3 Absatz 2 BauGB und § 4 Absatz 2 BauGB i.V.m. § 4a Abs. 3 BauGB, zugestimmt.

Die endgültige Entscheidung des Verbandsgemeinderates über die Änderung des Flächennutzungsplanes bedarf gemäß § 67 Absatz 2 Satz 2 GemO der Zustimmung der Ortsgemeinden.

Die Zustimmung gilt als erteilt, wenn mehr als die Hälfte der Ortsgemeinden der Änderung zugestimmt haben und in diesen mehr als zwei Drittel der Einwohner aller Ortsgemeinden der Verbandsgemeinde Arzfeld wohnen.

Es wurde der folgende Beschluss gefasst:

„Der Ortsgemeinderat stimmt der 26. Fortschreibung des Flächennutzungsplanes der Verbandsgemeinde Arzfeld gemäß § 67 Absatz 2 Satz 2 GemO zu.“

Abstimmungsergebnis:

Ja-Stimmen

Nein-Stimmen

Enthaltungen

7

-

-

Zu Punkt 5. Aufstellung eines Bebauungsplanes "Verlängerung In den Rosen" gemäß § 2 BauGB

Die Ortsgemeinde Lichtenborn möchte der stetigen Nachfrage nach Wohnraum gerecht werden. Daher beabsichtigt sie mit Aufstellung dieses Bebauungsplans gemäß § 30 BauGB eine bisher ungenutzte, landwirtschaftliche Fläche einer aktiven Wohnnutzung zu überführen.

Das Gebiet schließt sich unmittelbar an die vorhandene Bebauung des Bebauungsplanes „In den Rosen“ an und bietet sich somit aufgrund seiner guten Erreichbarkeit, seiner guten Erschließung und der guten Bebaubarkeit (u.a. durch günstige topografische Gegebenheiten) zur Bebauung mit Wohnhäusern an.

Mit der Aufstellung des vorliegenden Bebauungsplans „Verlängerung In den Rosen“ sollen die planungsrechtlichen Grundlagen für die Entwicklung der Wohnbebauung geschaffen werden.

Für die Belange des Umweltschutzes ist grundsätzlich für alle Bauleitplanverfahren eine förmliche Umweltprüfung durchzuführen (§ 2 Abs. 4 Satz 1 BauGB); hierzu ist ein Umweltbericht gemäß §§ 2 Abs.4, und § 2a BauGB i.V.m. Anlage 1 zu § 2 Abs. 4, §§ 2a, 4c BauGB zu erstellen.

Bei dem gewählten Standort handelt es sich um einen Bereich, der im rechtskräftigen Flächennutzungsplan als Fläche für die Landwirtschaft – Acker, Grünland oder Sonderkulturen dargestellt wird.

Dem Entwicklungsgebot gemäß § 8 Abs. 2 BauGB wird somit nicht entsprochen. Vor dem Hintergrund des Entwicklungsgebots ist eine Änderung der Darstellungen in eine Wohnbaufläche notwendig.

Zur Schaffung einer geordneten städtebaulichen Entwicklung ist somit seitens der Ortsgemeinde Lichtenborn ein Bebauungsplanverfahren und parallel dazu eine Flächennutzungsplanänderung gemäß § 8 Abs. 3 BauGB durchzuführen.

Die Änderung des Flächennutzungsplans der Verbandsgemeinde Arzfeld erfolgt daher gemäß § 8 Abs. 3 BauGB im Parallelverfahren zu der Aufstellung des Bebauungsplans „Verlängerung In den Rosen“.

Abstimmungsergebnis:

Ja-Stimmen

Nein-Stimmen

Enthaltungen

7

-

-

Zu Punkt 5.1. Beratung und Beschlussfassung über die Aufstellung, den Entwurf und die Bezeichnung

Die Ortsgemeinde Lichtenborn beabsichtigt die Aufstellung des Bebauungsplanes „Verlängerung In den Rosen“. Mit diesem Bebauungsplan soll ein allgemeines Wohngebiet nach § 4 BauNVO zur Ausweisung von ca. 7 gemeindlichen Baugrundstücken realisiert werden.

Der Bebauungsplan soll im so genannten „Regelverfahren“ erfolgen.

Die Bezeichnung des Bebauungsplans soll „Verlängerung In den Rosen“ lauten.

Seitens des Rates gab es keine weiteren Ergänzungen zum Entwurf.

Es wurde der folgende Beschluss gefasst:

„Der Rat stimmt der Aufstellung des Bebauungsplans in der vorgestellten, zum Beschluss vom 29. März 2022 geänderten Form, dem neuen Entwurf und der Bezeichnung zu.

Die Textfestsetzungen sollen an die Festsetzungen der bisherigen Bebauungspläne angepasst werden.“

Abstimmungsergebnis:

Ja-Stimmen

Nein-Stimmen

Enthaltungen

7

-

-

Der Entwurf der Plankarte inkl. Textfestsetzungen sind Bestandteil der Niederschrift und sind dieser im Ratsinformationssystem beigefügt.

Zu Punkt 5.2. Beratung und Beschlussfassung über die frühzeitige Beteiligung der Öffentlichkeit gemäß § 3 Abs. 1 BauGB

Es wurde der folgende Beschluss gefasst:

„Der Rat fasst den Beschluss, die frühzeitige Beteiligung der Öffentlichkeit nach § 3 Abs. 1 BauGB einzuleiten und nach Eingang der Ergebnisse weitere Entscheidungen zu treffen.

Die Verwaltung soll alle erforderlichen Schritte einleiten.“

Abstimmungsergebnis:

Ja-Stimmen

Nein-Stimmen

Enthaltungen

7

-

-

Zu Punkt 5.3. Beratung und Beschlussfassung über die frühzeitige Beteiligung der Behörden und sonstigen Träger öffentlicher Belange gemäß § 4 Abs. 1 BauGB

Es wurde der folgende Beschluss gefasst:

„Der Rat fasst den Beschluss, dass die Träger öffentlicher Belange nach § 4 Abs. 1 BauGB frühzeitig beteiligt werden sollen. Das Ergebnis ist als Grundlage für die weiteren Planungen heranzuziehen.

Die Verwaltung soll alle erforderlichen Schritte einleiten.“

Abstimmungsergebnis:

Ja-Stimmen

Nein-Stimmen

Enthaltungen

7

-

-

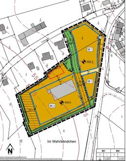
Zu Punkt 6. Aufstellung des Bebauungsplanes "Bedachung Hermes GmbH" im beschleunigten Verfahren gemäß § 13a BauGB

Der Bebauungsplan wurde vom Vertreter der Verwaltung vorgestellt und den Ratsmitgliedern als Tischvorlage ausgehändigt. Für die Planung entstehen keine Kosten für die Ortsgemeinde.

Die Firma Hermes beabsichtigt auf ihrem Grundstück (Gemarkung Lichtenborn, Flur 4, Flurstück-Nr.: 2/47) die Errichtung einer neuen Halle zur Be- und Entladung der ankommenden Fahrzeuge.

Die Halle ist mit den Grundmaßen von ca. 20,74 m x 40,74 m und einer Höhe von 5,85 m, geplant.

Das betroffene Grundstück befindet sich teilweise im Geltungsbereich des Bebauungsplanes „Bedachungs GmbH Hermes“.

Die geplante Lagerhalle wird größtenteils außerhalb der für diesen Bebauungsplan maßgeblichen überbaubaren Grundstücksflächen und teilweise in ausgewiesenen Ausgleichsflächen errichtet.

Eine Änderung und Erweiterung des bestehenden Bebauungsplanes sind zur Realisierung des Vorhabens erforderlich.

Bei der Beratung und Beschlussfassung zu diesem Tagesordnungspunkt nahm Ortsbürgermeister Alois Leick wegen Vorliegen von Sonderinteressen gemäß § 22 GemO nicht teil. Den Vorsitz übernahm der Erste Beigeordnete Helmut Endes.

Zu Punkt 6.1. Beratung und Beschlussfassung über die Aufstellung, den Entwurf und die Bezeichnung

Der Bebauungsplan soll im so genannten „beschleunigten Verfahren gemäß § 13a BauGB“ erfolgen.

Die Bezeichnung des Bebauungsplanes soll „Bedachungs-GmbH Hermes“ lauten.

Seitens des Rates gab es keine weiteren Ergänzungen zum Entwurf.

Es wurde der folgende Beschluss gefasst:

„Der Rat stimmt der Aufstellung des Bebauungsplans in der vorgestellten Form, dem Entwurf und der Bezeichnung zu.“

Abstimmungsergebnis:

Ja-Stimmen

Nein-Stimmen

Enthaltungen

6

-

-

Der Entwurf der Plankarte inkl. Textfestsetzungen sind Bestandteil der Niederschrift und sind dieser im Ratsinformationssystem beigefügt.

Zu Punkt 6.2. Beratung und Beschlussfassung über die Beteiligung der Öffentlichkeit gemäß

§ 13a Abs. 2 Nr. 1 BauGB i. V. m. § 13 Abs. 2 Nr. 2 BauGB i. V. m. § 3 Abs. 2 BauGB sowie über die Beteiligung der berührten Behörden und sonstigen Träger öffentlicher Belange gemäß § 13a Abs. 2 Nr. 1 BauGB i. V. m. § 13 Abs. 2 Nr. 3

i. V. m. § 4 Abs. 2 BauGB

Es wurde der folgende Beschluss gefasst:

„Der Rat fasst den Beschluss, die Beteiligung der Öffentlichkeit nach § 13a Abs. 2 Nr. 1 BauGB i.V.m. §13 Abs 2 Nr. 2 BauGB i.V.m. § 3 Abs. 2 BauGB sowie der Träger öffentlicher Belange nach § 13a Abs. 2 Nr. 1 BauGB i.V.m. § 13 Abs. 2 Nr. 3 i.V.m. § 4 Abs. 2 BauGB einzuleiten und nach Eingang der Ergebnisse weitere Entscheidungen zu treffen.

Das Ergebnis ist als Grundlage für die weiteren Planungen heranzuziehen.

Die Verwaltung soll alle erforderlichen Schritte einleiten.“

Abstimmungsergebnis:

Ja-Stimmen

Nein-Stimmen

Enthaltungen

6

-

-

Zu Punkt 7. Auftragsvergabe

Aufgrund der Starkregenereignisse vom 14. und 15. Juli 2021 kam es im Bereich der Gemarkung Lichtenborn zu zahlreichen Schäden an Wirtschafts- und Waldwegen.

Das technische Büro der Verbandsgemeindeverwaltung Arzfeld hat alle Schäden zusammengefasst und dokumentiert. Zur Schadensbeseitigung wurde ein Antrag zur Förderung an die ADD gestellt. Die für die Ortsgemeinde entstehenden Kosten werden voraussichtlich vollständig über eine öffentliche Förderung durch den Wiederaufbaufonds des Bundes sowie des Landes Rheinland-Pfalz gedeckt.

Durch das technische Büro der Verbandsgemeindeverwaltung Arzfeld wurde eine Preisanfrage durchgeführt.

Zum Submissionstermin lagen insgesamt vier Angebote vor. Die Eignung konnte für alle anbietenden Unternehmen bestätigt werden.

Damit die Arbeiten zeitnah durchgeführt werden konnten, wurde der Auftrag bereits vorab erteilt.

Es wurde der folgende Beschluss gefasst:

„Der Ortsgemeinderat Lichtenborn stimmt nachträglich der Auftragserteilung an die Firma Beckertz Erdarbeiten, Arzfeld, auf Grundlage ihres Angebotes i. H. v. 44.616,09 €, zu.“

Abstimmungsergebnis:

Ja-Stimmen

Nein-Stimmen

Enthaltungen

7

-

-

Zu Punkt 8. Bau- und Grundstücksangelegenheiten

Zu Punkt 8.1. Abschluss eines Erschließungsvertrages mit der Verbandsgemeinde Arzfeld - Verbandsgemeindewerk - für die Erschließung des Neubaugebietes "Verlängerung In den Rosen"

Die Ortsgemeinde Lichtenborn beabsichtigt die Erschließung des Neubaugebietes „Verlängerung In den Rosen“ einzuleiten. Der Bebauungsplan befindet sich derzeit noch im Aufstellungsverfahren. Eigentümerin der überplanten Grundstücke ist die Ortsgemeinde Lichtenborn.

Durch die beabsichtigte Maßnahme sollen etwa 6 neue Wohnbauflächen in der Ortsgemeinde Lichtenborn geschaffen werden. Die abwassermäßige Erschließung des Plangebietes soll über eine vertragliche Vereinbarung zwischen der Ortsgemeinde und der Verbandsgemeinde – Verbandsgemeindewerk Arzfeld – erfolgen.

Vertragsgegenstand ist die Herstellung der Abwasseranlagen im Zuge der Gesamterschließung des Neubaugebietes durch die Ortsgemeinde Lichtenborn auf der Grundlage des Baubauungsplanes, des Entwässerungskonzeptes zum Bebauungsplan, der Vorgaben aus der noch einzuholenden wasserrechtlichen Genehmigung und der Ausführungsplanung, die in Abstimmung mit dem Verbandsgemeindewerk Arzfeld erstellt wird.

Sämtliche Kosten für die abwassermäßige Erschließung werden vom Erschließungsträger, der Ortsgemeinde Lichtenborn übernommen. Gleichzeitig wird die Ortsgemeinde Lichtenborn als Eigentümerin der erschlossenen Baugrundstücke und als Straßenbaulastträger der neuen Erschließungsstraßen von der Zahlung einmaliger Entwässerungsbeiträge nach den gesetzlichen und satzungsrechtlichen Bestimmungen sowie von der Zahlung der Investitionskostenanteile für die Straßenentwässerung entsprechend dem bestehenden Vertrag zur Ableitung von Niederschlagswasser von gemeindlichen Straßen, Wegen und Plätzen vom 01.12.2004 freigestellt.

Nach Fertigstellung und mangelfreier Abnahme werden die Abwasseranlagen zur Schmutzwasserableitung unentgeltlich an die Verbandsgemeinde – Verbandsgemeindewerk Arzfeld – übertragen. Die neuen Anlagen zur Ableitung und Verwertung des anfallenden Niederschlagswassers im Plangebiet verbleiben, vorbehaltlich der wasserrechtlichen Genehmigung, in der Zuständigkeit der Ortsgemeinde Lichtenborn und werden nicht in das Anlagevermögen des Verbandsgemeindewerkes Arzfeld übernommen.

Der Vertragsentwurf ist als Anlage beigefügt.

Es wurde der folgende Beschluss gefasst:

„Der Ortsgemeinderat Lichtenborn beschließt, die abwassermäßige Erschließung des Neubaugebietes „Verlängerung In den Rosen“ im Zuge der Gesamterschließung durch die Ortsgemeinde als Erschließungsträger sicherzustellen. Die Ausführung erfolgt auf der Grundlage des Bebauungsplanes, des Entwässerungskonzeptes zum Bebauungsplan, der Vorgaben der noch einzuholenden wasserrechtlichen Genehmigung und der mit dem Abwasserwerk abgestimmten Ausführungsplanung.

Nach unentgeltlicher Übertragung der mangelfrei abgenommenen Abwasseranlagen durch die Ortsgemeinde Lichtenborn an die Verbandsgemeinde Arzfeld – Verbandsgemeindewerk – wird die Ortsgemeinde Lichtenborn als Eigentümerin der erschlossenen neuen Baugrundstücke und als Straßenbaulastträger der neuen Erschließungsstraßen freigestellt von der Zahlung einmaliger Entwässerungsbeiträge nach den gesetzlichen und satzungsrechtlichen Bestimmungen sowie von der Zahlung der Investitionskostenanteile für die Straßenentwässerung entsprechend dem bestehenden Vertrag zur Ableitung von Niederschlagswasser von gemeindlichen Straßen, Wegen und Plätzen vom 01.12.2004.

In das Anlagevermögen des Verbandsgemeindewerkes Arzfeld übertragen werden lediglich die neuen Schmutzwassersammelleitungen und Schmutzwasseranschlussleitungen. Die neuen Anlagen zur Ableitung und Verwertung des anfallenden Niederschlagswassers im Plangebiet verbleiben, vorbehaltlich der wasserrechtlichen Genehmigung, in der Zuständigkeit der Ortsgemeinde Lichtenborn und werden nicht in das Anlagevermögen des Verbandsgemeindewerkes Arzfeld übernommen.

Der Ortsbürgermeister wird ermächtigt, den Vertrag gemäß Anlage mit der Verbandsgemeinde Arzfeld – Verbandsgemeindewerk – abzuschließen.“

Abstimmungsergebnis:

Ja-Stimmen

Nein-Stimmen

Enthaltungen

7

-

-

Zu Punkt 9. Verschiedenes

Spielplatz

Der Vorsitzende informierte, dass die Einzäunung um den Spielplatz aufgestellt werden muss.

Zudem wurde angesprochen, dass der Spielplatz keine Spielgeräte für Kleinkinder bietet.

Der Rat ist grundsätzlich bereit die notwendigen Arbeiten zur Einzäunung durchzuführen und in die Anschaffung neuer Spielgeräte zu investieren.

Bushaltestelle Ortsmitte

Aus der Mitte des Rates wurde darauf hingewiesen, dass es im Bereich der Bushaltestelle immer wieder zu Gefahrensituationen kommt, da PKWs, teilweise auch mit überhöhter Geschwindigkeit, an den haltenden Linienbussen vorbeifahren.

Die Verwaltung wird gebeten zu prüfen, ob Möglichkeiten bestehen, diese Gefahrenlage zu beseitigen.

Friedhof

Aus dem Rat kam der Vorschlag, auf dem Friedhof einen kleineren Pfad mit Splitt anzulegen, da es teilweise doch sehr rutschig ist.

Der Rat erklärte seine Zustimmung zu diesem Vorhaben.

Seniorentag

Für das kommende Jahr wurde angeregt, am Seniorentag eine Theateraufführung in einer Nachbargemeinde zu besuchen.

Wartehalle

Zur Neugestaltung einer Wartehalle im Ortsteil Fuchswiese lag ein Angebot vor. Der Rat sprach sich dafür aus, noch weitere Angebote einzuholen.