Titel Logo
Mitteilungsblatt VG Daun
Ausgabe 45/2022
Amtliche Bekanntmachungen und Mitteilungen für die Ortsgemeinden und die Stadt
Zurück zur vorigen Seite
Zurück zur ersten Seite der aktuellen Ausgabe

Bekanntmachung

In-Kraft-Treten des Bebauungsplanes „Wohnmobilstellplatz“

Der Stadtrat der Stadt Daun hat in öffentlicher Sitzung am 3. November 2022 den Bebauungsplan „Wohnmobilstellplatz“ als Satzung beschlossen.

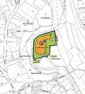
Der räumliche Geltungsbereich des Satzungsgebietes ergibt sich aus der Planurkunde. Diese ist in verkleinerter Form nachstehend abgedruckt.

Der Bebauungsplan tritt mit dieser Bekanntmachung gemäß § 24 Abs. 3 GemO in Verbindung mit § 10 Abs. 3 BauGB in Kraft.

Die Satzung mit den Textfestsetzungen sowie die Begründung liegen öffentlich während der Dienststunden bei der Verbandsgemeindeverwaltung Daun, Leopoldstraße 29, 54550 Daun, Zimmer 317, Referat Verbindliche Bauleitplanung, zur Einsicht aus. Jedermann kann die Satzung und Begründung einsehen und Auskunft über ihren Inhalt verlangen.

Verletzungen der in

-

§ 214 Abs. 1 Satz 1 Nr. 1-4 BauGB bezeichneten Verfahrens- und Formvorschriften,

-

§ 214 Abs. 2 BauGB bezeichneten Verletzung der Vorschriften über das Verhältnis des Bebauungsplanes und des Flächennutzungsplanes sowie

-

§ 214 Abs. 3 Satz 2 BauGB bezeichneten Mängel des Abwägungsvorgangs

sind unbeachtlich, wenn sie nicht innerhalb eines Jahres seit dieser Bekanntmachung schriftlich gegenüber der Stadt Daun geltend gemacht worden sind. Der Sachverhalt, der die Verletzung von Verfahrens- und Formvorschriften oder den Mangel der Abwägung begründen soll, ist darzulegen.

Auf die Vorschriften des § 44 Abs. 4 Sätze 1 und 2 des BauGB über die Geltendmachung von Planungsentschädigungsansprüchen durch Antrag an den Entschädigungspflichtigen im Falle der in den §§ 39 bis 42 BauGB bezeichneten Vermögensnachteile und auf das nach § 44 Abs. 4 BauGB mögliche Erlöschen der Ansprüche, wenn der Antrag nicht innerhalb einer Frist von drei Jahren gestellt ist, wird hingewiesen.

Es wird ferner gemäß § 24 Abs. 6 GemO darauf hingewiesen, dass Satzungen, die unter Verletzung von Verfahrens- und Formvorschriften der Gemeindeordnung oder aufgrund der Gemeindeordnung zustande gekommen sind, ein Jahr nach der Bekanntmachung als von Anfang an gültig zustande gekommen gelten.

Dies gilt nicht, wenn

1.

die Bestimmungen über die Öffentlichkeit der Sitzungen, die Genehmigung, die Ausfertigung oder die Bekanntmachung der Satzung verletzt worden sind, oder

2.

vor Ablauf der in Satz 1 genannten Frist die Aufsichtsbehörde den Beschluss beanstandet oder jemand die Verletzung der Verfahrens- und Formvorschriften gegenüber der Verbandsgemeindeverwaltung Daun unter Bezeichnung des Sachverhaltes, der die Verletzung begründen soll, schriftlich geltend gemacht hat.

Hat jemand eine Verletzung nach Satz 2 Nr. 2 geltend gemacht, so kann auch nach Ablauf der in Satz 1 genannten Frist jedermann diese Verletzung geltend machen.

Daun, den 4. November 2022
Stadt Daun
gez. Friedhelm Marder (L. S.)
(Stadtbürgermeister)