Titel Logo
Mitteilungsblatt VG Daun
Ausgabe 51/2023
Amtliche Bekanntmachungen und Mitteilungen für die Ortsgemeinden und die Stadt
Zurück zur vorigen Seite
Zurück zur ersten Seite der aktuellen Ausgabe

Öffentliche Bekanntmachung

Beteiligung der Öffentlichkeit gemäß § 13 a i. V. m. § 13 Abs. 2, § 3 Abs. 2 Baugesetzbuch (BauGB)

Bebauungsplan der Innenentwicklung gemäß § 13 a BauGB „In Uwer“ – 4. Änderung

Der Ortsgemeinderat der Ortsgemeinde Dockweiler hat die Einleitung des Verfahrens zur Änderung des Bebauungsplanes „In Uwer“ durch einen Bebauungsplan der Innenentwicklung gemäß § 13 a BauGB für den Bereich „ehemaliger Spielplatz“ beschlossen. Gegenstand der Planung ist die Baurechtsbeschaffung für die

• Ausweisung einer Baustelle.

Als Art der baulichen Nutzung ist anstelle „Spielplatz“ ein allgemeines Wohngebiet vorgesehen.

Die Voraussetzungen für einen Bebauungsplan der Innenentwicklung liegen vor. Das Verfahren wird gemäß § 13 a BauGB als Bebauungsplan der Innenentwicklung durchgeführt. Gemäß § 13 a Abs. 2 Nr. 1 in Verbindung mit § 13 Abs. 3 BauGB wird im vereinfachten Verfahren von der Umweltprüfung nach § 2 Abs. 4, von dem Umweltbericht nach § 2 a, von der Angabe nach § 3 Abs. 2 Satz 2, welche Arten umweltbezogener Informationen verfügbar sind, sowie von der zusammenfassenden Erklärung nach § 6 a Abs. 1 und § 10 a Abs. 1 abgesehen.

Der Bebauungsplanentwurf wurde vom Ortsgemeinderat gebilligt. Gleichzeitig beschloss der Ortsgemeinderat das Beteiligungsverfahren durchzuführen. Die Öffentlichkeit kann sich über die allgemeinen Ziele und Zwecke sowie die wesentlichen Auswirkungen der Planung unterrichten. Auf Grund der Beschlussfassung im Ortsgemeinderat wird der Bebauungsplanentwurf und die Begründung nunmehr in der Zeit vom

02. Januar 2024 bis einschließlich 02. Februar 2024

bei der Verbandsgemeindeverwaltung Daun, Leopoldstraße 29 in 54550 Daun, Zimmer 317, Referat Verbindliche Bauleitplanung, während der Dienststunden, und zwar von montags bis mittwochs von 8.00 Uhr bis 12.00 Uhr und von 14.00 Uhr bis 16.00 Uhr, donnerstags von 8.00 Uhr bis 12.00 Uhr und von 14.00 Uhr bis 18.00 Uhr, sowie freitags von 8.00 Uhr bis 12.00 Uhr zu Jedermanns Einsicht öffentlich ausgelegt. Innerhalb dieser Frist können Stellungnahmen abgegeben werden. Die Stellungnahmen können auch elektronisch unter Bauleitplanung@vgv.daun.de abgegeben werden. Es wird darauf hingewiesen, dass nicht innerhalb der Offenlegungsfrist abgegebene Stellungnahmen bei der Beschlussfassung über den Bebauungsplan gemäß § 3 Abs. 2 BauGB unberücksichtigt bleiben können, sofern die Ortsgemeinde Dockweiler deren Inhalt nicht kannte und nicht hätte kennen müssen und deren Inhalt für die Rechtmäßigkeit des Bebauungsplanes nicht von Bedeutung ist. Wir weisen darauf hin, dass die Planunterlagen sowie dieser Veröffentlichungstext über die öffentliche Bekanntmachung gemäß § 4 a Abs. 4 BauGB auch im Internet auf der Website der Verbandsgemeinde Daun unter www.vgv-daun.de unter der Rubrik „Aktuelles“ bzw. www.geoportal.rlp.de abgerufen, eingesehen oder heruntergeladen werden können.

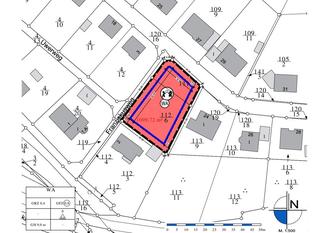
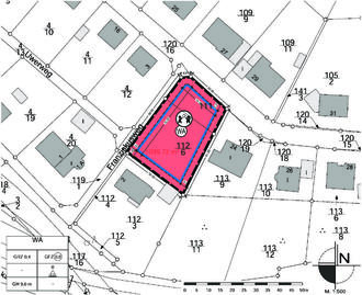
Der Lageplan in verkleinerter Form mit Eintragung des Geltungsbereiches ist nachstehend abgedruckt.

Dockweiler, 14.12.2023,
Ortsgemeinde Dockweiler
gez.  —  (L. S.)
Ralf Schüller
(Ortsbürgermeister)