Titel Logo
Amtsblatt VG Ruwer
Ausgabe 23/2023
Amtliche Bekanntmachungen und Mitteilungen der Ortsgemeinden
Zurück zur vorigen Seite
Zurück zur ersten Seite der aktuellen Ausgabe

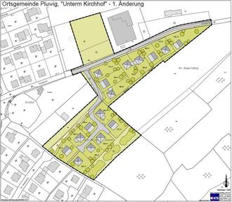
Vermarktung Grundstücke Baugebiet „Unterm Kirchhof“ Pluwig

Die Ortsgemeinde Pluwig erschließt ein Neubaugebiet mit 16 Baustellen in der Nähe der Turnhalle (Städtebauliches Konzept s. nachfolgender Plan). Der Verkaufspreis steht noch nicht final fest, die Grundstücke werden jedoch nicht unter 240,- €/ m² verkauft. Interessensbekundungen für Grundstücke im obigen Baugebiet, können ab sofort schriftlich (Ortsgemeinde Pluwig, Am Alten Dorfplatz 1, 54316 Pluwig) oder per Email (buergermeister@pluwig.de) an die Ortsgemeinde Pluwig gesendet werden. Sollte die Nachfrage größer als das Angebot sein, wird ein Vergabeverfahren mit entsprechenden Vergabekriterien oder ein Losverfahren eingeleitet!