Titel Logo
Amtsblatt VG Ruwer
Ausgabe 34/2023
Amtliche Bekanntmachungen und Mitteilungen der Ortsgemeinden
Zurück zur vorigen Seite
Zurück zur ersten Seite der aktuellen Ausgabe

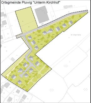
Vermarktung Grundstücke Baugebiet „Unterm Kirchhof“ Pluwig

Die Ortsgemeinde Pluwig erschließt ein Neubaugebiet in der Nähe der Turnhalle (Geltungsbereich s. nachfolgender Plan). Die Grundstücke werden zu einem Preis von 268,- €/ m² und für Familien mit Kindern zum Preis von 263,- €/ m² verkauft.

Interessensbekundungen für Grundstücke im obigen Baugebiet, können ab sofort schriftlich (Ortsgemeinde Pluwig, Am Alten Dorfplatz 1, 54316 Pluwig) oder per Email (buergermeister@pluwig.de) an die Ortsgemeinde Pluwig gesendet werden. Sollte die Nachfrage größer als das Angebot sein, wird ein Vergabeverfahren mit entsprechenden Vergabekriterien oder ein Losverfahren eingeleitet!

Der entsprechende Parzellierungsplan mit Grundstücksgrößen sowie den Bebauungsplan finden Sie auf unserer Homepage www.pluwig.de oder bei der Verbandsgemeinde unter https://www.ruwer.de/bauen-wirtschaft/bauplaetze/.

Die Bewerbungen sind unter Angabe des favorisierten Grundstückes, bis spätestens 31.08.2023 um 12:30 Uhr einzureichen.

Vielen Dank.