Titel Logo
Zeller Land Nachrichten
Ausgabe 10/2025
Aus den Gemeinden
Zurück zur vorigen Seite
Zurück zur ersten Seite der aktuellen Ausgabe

Bekanntmachung, Bauleitplanung der Ortsgemeinde Sosberg

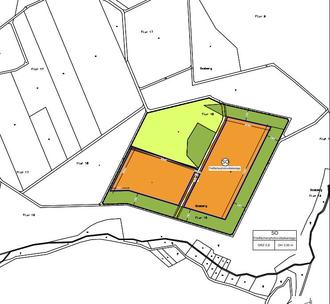
Aufstellung des Bebauungsplans „Freiflächenphotovoltaikanlage“ der Ortsgemeinde Sosberg;

Erneute verkürzte, beschränkte, förmliche Beteiligung der Öffentlichkeit gemäß § 4a Abs. 3 i. V. m. § 3 Abs. 2 Baugesetzbuch (BauGB)

Der Gemeinderat der Ortsgemeinde Sosberg hat in seiner Sitzung am 21.09.2020 die Aufstellung des Bebauungsplans „Freiflächenphotovoltaikanlage“ beschlossen. Anlass zur planerischen Aktivität der Ortsgemeinde Sosberg ist die Absicht, eine Freiflächenphotovoltaikanlage zu errichten.

Die gemeindliche Planung ist Bestandteil eines flächendeckenden Projektes der Verbandsgemeinde Zell (Mosel), im Rahmen einer Fortschreibung des Flächennutzungsplanes in verschiedenen Gemeinden Flächen für erneuerbare Energien vorzuhalten.

Die förmliche Beteiligung der Öffentlichkeit gem. § 3 Abs. 2 BauGB wurde bereits in der Zeit vom 09.09.2024 - 09.10.2024 durchgeführt. Durch im Anschluss vorgenommene Änderungen und Ergänzungen des Bauleitplans ist gem. § 4a Abs. 3 BauGB eine erneute förmliche Beteiligung durchzuführen.

Folgende Änderungen und Ergänzungen wurden vorgenommen:

Darstellung der Erschließung in der Planurkunde

Einholung eines Blendgutachtens

Nachrichtliche Darstellung der vorgesehenen Feldlerchenfenster

Die erneute Offenlage erfolgt gemäß § 4a Abs. 3 und § 3 Abs. 2 BauGB verkürzt und beschränkt auf die ergänzten bzw. geänderten Teile.

Zu diesem Zweck geben wir hiermit bekannt, dass der Planentwurf mit der Begründung, den textlichen Festsetzungen, der artenschutzrechtlichen Potenzialanalyse, der avifaunistischen Untersuchung, der Betroffenheitsanalyse, dem Fachbeitrag Naturschutz, dem Umweltbericht, dem Maßnahmenblatt Feldlerche und dem Blendgutachten in der Zeit vom

10. März 2025 bis einschließlich 24. März 2025

bei der Verbandsgemeindeverwaltung Zell (Mosel), 56856 Zell (Mosel), Schloßstraße 69, Zimmer 2.02, während der allgemeinen Dienststunden (montags bis freitags von 08.00 bis 12.00 Uhr, montags und dienstags zusätzlich von 14.00 bis 16.00 Uhr und donnerstags zusätzlich von 14:00 bis 17:00 Uhr) zu jedermanns Einsicht öffentlich ausgelegt wird.

Die Planunterlagen sind gem. § 3 Abs. 2 BauGB zusätzlich im Internet unter folgender Adresse hinterlegt:

www.zell-mosel.de

(Menüà Bürgerservice/Rathaus à Bauen & Wohnenà Bauleitplanung à Ortsgemeinde Sosberg à Bebauungsplan „Freiflächenphotovoltaikanlage“)

Während des vorgenannten Offenlegungszeitraums können Stellungnahmen gemäß § 3 Abs. 2 BauGB bei der Verbandsgemeindeverwaltung Zell (Mosel), Schloßstraße 69, 56856 Zell (Mosel), zu den vorgenommenen Änderungen/Ergänzungen abgegeben werden. Sie sollen elektronisch, bei Bedarf aber auch auf anderem Weg, übermittelt werden.

Wir weisen darauf hin, dass nicht fristgerecht abgegebene Stellungnahmen bei der Beschlussfassung über den Bauleitplan unberücksichtigt bleiben können, sofern die Gemeinde deren Inhalt nicht kannte und nicht hätte kennen müssen und deren Inhalt für die Rechtmäßigkeit des Bauleitplans nicht von Bedeutung ist und dass gem. § 5 UmwRG Einwendungen, die eine Person oder eine Vereinigung im Sinne des § 4 Abs. 3 Satz 1 UmwRG erstmals im Rechtsbehelfsverfahren erhebt, unberücksichtigt bleiben, wenn die erstmalige Geltendmachung im Rechtsbehelfsverfahren missbräuchlich oder unredlich ist.

56856 Zell (Mosel), 25.02.2025
Verbandsgemeinde Zell (Mosel)
Jürgen Hoffmann, Bürgermeister

Anlage:

Lageplanausschnitte für den Geltungsbereich des Bebauungsplanes