Titel Logo
Zeller Land Nachrichten
Ausgabe 15/2023
Aus den Gemeinden
Zurück zur vorigen Seite
Zurück zur ersten Seite der aktuellen Ausgabe

Bekanntmachung

Bauleitplanung der Ortsgemeinde Briedel;

Aufstellung des Bebauungsplans „Freiflächen-Photovoltaikanlage“ der Ortsgemeinde Briedel;

hier:

Förmliche Beteiligung der Öffentlichkeit gemäß § 3 Abs. 2 Baugesetzbuch (BauGB)

Der Gemeinderat der Ortsgemeinde Briedel hat in seiner Sitzung am 13.05.2020 die Aufstellung des Bebauungsplans „Freiflächen-Photovoltaikanlage“ beschlossen. Anlass zur planerischen Aktivität der Ortsgemeinde Briedel ist die Absicht eine Freiflächen Photovoltaikanlage zu errichten.

Die gemeindliche Planung ist Bestandteil eines flächendeckenden Projektes der Verbandsgemeinde Zell (Mosel), im Rahmen einer Fortschreibung des Flächennutzungsplanes in verschiedenen Gemeinden Flächen für erneuerbare Energien vorzuhalten.

Ein entsprechendes landesplanerisches Verfahren nach § 20 LPlG zur Änderung des Flächennutzungsplanes ist bereits durchgeführt.

Der Verbandsgemeinderat der Verbandsgemeinde Zell (Mosel) hat in seiner Sitzung am 15.12.2021 die Abwägung der landesplanerischen Stellungnahme gemäß § 20 Landesplanungsgesetz (LPlG) zur Errichtung von Freiflächen-Photovoltaikanlagen in der Verbandsgemeinde Zell (Mosel) vorgenommen und die Durchführung der frühzeitigen Beteiligung der Öffentlichkeit gem. § 3 Abs. 1 BauGB und der Behördenbeteiligung gem. § 4 Abs. 1 BauGB beschlossen.

Der Bebauungsplan umfasst folgende textliche und zeichnerische Festsetzungen für die in der Planurkunde abgrenzten Parzellen in der Gemarkung Briedel:

Ausweisung eines Sondergebietes für die Errichtung einer Freiflächen-Photovoltaikanlage mit Grün- und landwirtschaftlichen Flächen sowie Waldflächen (tlw.).

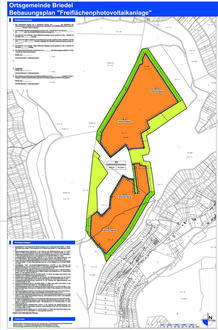
Der Geltungsbereich des Bebauungsplans ist dem nachstehend abgedruckten Lageplan zu entnehmen.

Im Rahmen des Bebauungsplanverfahrens wurde zwischenzeitlich die Beteiligung der Öffentlichkeit (§ 3 Abs. 1 BauGB) und die Anhörung der Behörden und sonstigen Träger öffentlicher Belange (§ 4 Abs. 1 BauGB) durchgeführt. Die hierbei eingegangenen Bedenken und Anregungen wurden in der Gemeinderatssitzung am 02.02.2023 behandelt und im Anschluss das Offenlegungsverfahren gemäß § 3 Abs. 2 BauGB beschlossen.

Es wird nunmehr das Offenlegungsverfahren durchgeführt. Zu diesem Zweck geben wir Ihnen hiermit bekannt, dass der Planentwurf mit den textlichen Festsetzungen, der Begründung, der Umweltbericht, die Biotoptypkartierung und der Fachbeitrag Naturschutz sowie die Gutachten hierzu in der Zeit vom

24. April 2023 bis einschließlich 24. Mai 2023

bei der Verbandsgemeindeverwaltung Zell (Mosel), 56856 Zell (Mosel), Corray 3 (Sparkassengebäude, 1. Etage), Zimmer 7, während der allgemeinen Dienststunden (montags bis donnerstags von 8.00 - 12.30 Uhr und von 13.00 - 16.00 Uhr, freitags durchgehend von 8.00 - 13.00 Uhr) zu jedermanns Einsicht öffentlich ausgelegt wird.

Die Planunterlagen sind in Anlehnung an § 4a Abs. 4 BauGB (Nutzung von elektronischen Informationstechnologien) im Internet unter folgender Adresse hinterlegt:

www.zell-mosel.de

(Menü Bürgerservice/Rathaus Bauen & Wohnen Bauleitplanung Ortsgemeinde Briedel Bebauungsplan „Freiflächen-Photovoltaikanlage“)

Verfügbar sind die folgenden umweltrelevanten Untersuchungen, Gutachten und Stellungnahmen, die in dem genannten Zeitraum ebenso öffentlich ausliegen:

1.

Umweltbericht zum Bebauungsplan „Freiflächen-Photovoltaikanlage Reidenhausen“

2.

Fachbeitrag Naturschutz

3.

Landwirtschaftliche Betroffenheitsanalyse

4.

Artenschutzrechtliche Potenzialanalyse

5.

Gutachterliche Stellungnahme zur Starkregenvorsorge

Die o.g. Untersuchungen enthalten Bewertungen für folgende Arten umweltbezogener Informationen:

Mensch:

Umweltbezogene Auswirkungen auf den Menschen und seine Gesundheit, sowie die Bevölkerung insgesamt.

Tiere / Pflanzen:

Auswirkungen auf Tiere / Pflanzen, Boden, Wasser, Luft, Klima und das Wirkungsgefüge zwischen ihnen sowie die Landschaft und die biologische Vielfalt, Erhaltungsziele und der Schutzzweck der Gebiete von gemeinschaftlicher Bedeutung und der europäischen Vogelschutzgebiete im Sinn des Bundesnaturschutzgesetzes; Entsiegelung

Boden/Wasser:

Vermeidung von Emissionen sowie der sachgerechte Umgang mit Abfällen und Abwässern, Darstellung von Landschaftsplänen sowie von sonstigen Plänen, insbesondere des Wasser-, Abfall- und Immissionsrechtes, Geologische Situation und Baugrunduntersuchungen, Baugrundbeschreibung, Baugrundklassifizierung und bodenmechanische Kennwerte, Grundwasser

Klima / Luft:

Erhaltung der bestehenden Luftqualität

Landschaftsbild:

Zusätzliche Inanspruchnahme von Flächen für bauliche Nutzungen, zusätzliche Bodenversiegelungen, Umnutzung von landwirtschaftlichen, als Wald oder für Wohnzwecke genutzten Flächen; zusätzlicher Eingriff in Natur und Landschaft; Entsiegelung

Kultur- und Sachgüter:

Umweltbezogene Auswirkungen auf Kultur- und sonstige Sachgüter

Wir weisen darauf hin, dass nicht fristgerecht abgegebene Stellungnahmen bei der Beschlussfassung über die Bebauungsplanänderung unberücksichtigt bleiben können und das gem. § 5 UmwRG Einwendungen, die eine Person oder eine Vereinigung im Sinne des § 4 Abs. 3 Satz 1 UmwRG erstmals im Rechtsbehelfsverfahren erhebt unberücksichtigt bleiben, wenn die erstmalige Geltendmachung im Rechtsbehelfsverfahren missbräuchlich oder unredlich ist.

56856 Zell (Mosel), 05.04.2023
Verbandsgemeinde Zell (Mosel)
Jürgen Hoffmann, Bürgermeister

Anlage

Lageplanausschnitt für den Geltungsbereich des Bebauungsplanes