Titel Logo
Thalfang aktuell - Amtsblatt VG Thalfang
Ausgabe 3/2023
Unsere Dörfer
Zurück zur vorigen Seite
Zurück zur ersten Seite der aktuellen Ausgabe

Unterrichtung

über die Ergebnisse der Sitzung des Ortsgemeinderates Gräfendhron am Montag, dem 12.12.2022

Auf Antrag des Vorsitzenden wird einstimmig beschlossen die Tagesordnung im öffentlichen Teil aus Dringlichkeitsgründen gem. § 34 (7) GemO um die Tagesordnungspunkte „Annahme von Sponsoringleistungen, Spenden und sonstigen Zuwendungen gem. § 94 Abs. 3 GemO“ und „Erneuerung Toranlage Feuerwehrgerätehaus“ zu erweitern.

Demnach wird folgende Tagesordnung beraten:

Tagesordnung

I. Nichtöffentlicher Teil

1.

Vertragsangelegenheiten

2.

Grundstücksangelegenheiten

II. Öffentlicher Teil

1.

Bekanntgabe der im nichtöffentlichen Teil gefassten Beschlüsse

2.

Bauleitplanung der Ortsgemeinde Gräfendhron

3.

Sachstand „Nahwärme Gräfendhron“

4.

Annahme von Sponsoringleistungen, Spenden und sonstigen Zuwendungen gem. § 94 Abs. 3 GemO

5.

Erneuerung Toranlage Feuerwehrgerätehaus

6.

Mitteilungen und Informationen

II. Öffentlicher Teil

Zu TOP 1: Bekanntgabe der im nichtöffentlichen Teil gefassten Beschlüsse

Im nichtöffentlichen Teil wurden folgende Beschlüsse gefasst:

-

Gestattungsvertrag zur Errichtung einer Freiflächen-Photovoltaikanlage.

-

Vereinbarung über den Solidarfonds „Freiflächen Photovoltaikanlagen und regenerative Energien“ der Ortsgemeinde Gräfendhron.

-

Abschluss eines städtebaulichen Vertrages.

-

Ermächtigung des Ortsbürgermeisters zu Grundstücksangelegenheiten.

Zu TOP 2: Bauleitplanung der Ortsgemeinde Gräfendhron

a)

Aufstellung eines Bebauungsplanes „Erneuerbare Energien“;

Aufstellungsbeschluss

b)

Aufstellung eines Bebauungsplanes „Erneuerbare Energien 2“;

Aufstellungsbeschluss

c)

Auswahl eines Projektierers/ Energieversorgers zur Errichtung und Realisierung der „Freiflächen-Photovoltaikanlage“ in der Ortsgemeinde Gräfendhron

Sach- und Rechtslage zu a) und b):

Das Klimaschutzgesetz des Landes Rheinland-Pfalz schreibt vor, dass die Gesamtsumme der Treibhausgasemissionen in Rheinland-Pfalz bis zum Jahr 2020 um mindestens 40 Prozent und bis zum Jahr 2050 um mindestens 90 Prozent im Vergleich zu den Gesamtemissionen im Jahr 1990 gesenkt werden soll. Zur Umsetzung dieser Ziele kommt dem Ausbau der erneuerbaren Energien (Energiewende) neben dem Schutz natürlicher Ressourcen und der Einsparung sowie effizienten Nutzung von Energie eine besondere Rolle zu.

Seit Inkrafttreten der aktuell gültigen Fassung des Erneuerbaren Energien Gesetzes am 1. Januar 2017 (nachfolgend EEG 2017 genannt) ist die Förderung der erneuerbaren Energien mit der Teilnahme an Ausschreibungsverfahren verbunden. Dies trifft auch für Photovoltaik (PV)-Anlagen ab einer Größe von 750 kW zu. Eine Voraussetzung zur Teilnahme an Ausschreibungen im Bereich der Photovoltaikfreiflächenanlagen (PV-Anlagen) ist, dass die geplante Anlage in einer bestimmten Gebietskulisse liegt.

Nach § 37c Absatz 1 Halbsatz 1 EEG 2017 darf die Bundesnetzagentur nur solche Gebote für Freiflächenanlagen im Zuschlagsverfahren berücksichtigen, die Anlagen auf Flächen nach § 37 Absatz 1 Nummer 3 Buchstaben a bis g EEG 2017 betreffen. Damit stehen für die Errichtung von Freiflächenanlagen im Wesentlichen nur versiegelte Flächen (Buchstabe a), Konversionsflächen (Buchstabe b), Seitenrandstreifen (110 Meter) entlang Autobahnen oder Schienenwegen (Buchstabe c) und Flächen der Bundesanstalt für Immobilienaufgaben (Buchstabe g) zur Verfügung.

Rheinland-Pfalz hat von der Verordnungsermächtigung gemäß § 37c Absatz 2 EEG 2017 Gebrauch gemacht und die Öffnung der Flächenkulisse kraft Rechtsverordnung des Landes auf Grünlandflächen [alle per InVeKos (Integriertes Verwaltungs- und Kontrollsystem der Agrarförderung) erfassten Dauergrünlandflächen und die Grünlandflächen, die nicht per InVeKos erfasst sind, jedoch im Grundbuch als Grünland eingetragen sind] in benachteiligten Gebieten, ausgedehnt.

Aufgrund dieser neuen Gesetzeslage erhielten verschiedene Ortsgemeinden in der Verbandsgemeinde Thalfang am Erbeskopf in den vergangenen Monaten zunehmend Anfragen von interessierten Firmen, in denen um Genehmigung zum Bau von solchen Anlagen gebeten wird.

Sofern diese wirtschaftlichen Rahmenbedingungen fortbestehen und einzelne Anlagen ohne klare Bedingungen genehmigt werden, könnte es in der Folge insbesondere zu einer nachteiligen Entwicklung des Orts- und Landschaftsbildes innerhalb der Verbandsgemeinde sowie der Ortsgemeinde Gräfendhron kommen, wenn PV-Anlagen plan- und maßlos über das Gemeindegebiet entwickelt werden.

Dadurch wird die vom Gesetzgeber hervorgehobene aktive Rolle der Planungshoheit der Gemeinden bei der Standortplanung deutlich.

Die Ortsgemeinde Gräfendhron hat sich demnach intensiv mit der Planung sowie den Restriktionen einer Freiflächen-Photovoltaikanlage auf dem Gemarkungsbereich Gräfendhron auseinandergesetzt.

Diese sieht in der Realisierung einer Freiflächen-Photovoltaikanlage die einzige Möglichkeit, die finanziell sehr angespannte defizitäre Haushaltlage der Ortsgemeinde zu entspannen und somit die Bürgerinnen und Bürger der Ortsgemeinde aktiv zu entlasten. Aufgrund des Angriffskrieges der Russischen Föderation gegen die Ukraine sowie weitreichender Embargoentscheidungen auf nationaler wie internationale Ebene wurden die grundlegenden politischen, wirtschaftlichen und sozialen Rahmenbedingungen existenziell erschüttert. Diese politisch wie historisch singuläre Ereignis hat unvorhersehbare, erhebliche Auswirkungen auf die Wirtschaft sowie Leistungsfähigkeit der Ortsgemeinde. Darüber hinaus beschweren die stark ansteigenden Energiepreise die ohnehin schwierige Finanzlage der Ortsgemeinde Gräfendhron sehr.

Im Rahmen der Haushaltsplanberatungen 2022 und hieraus resultierenden eingeforderten Anpassungen der Hebesätze durch die Kommunalaufsicht der Kreisverwaltung Bernkastel-Wittlich wurde nochmals deutlich, dass zukünftigen Anpassungen nur mit neuen Einnahmequellen entgegengewirkt werden kann. Hierbei ist für den Ortsgemeinderat von besonderer Bedeutung, dass nicht Einzelne, sondern alle Bürgerinnen und Bürger der Ortsgemeinde Gräfendhron von einem solchen geplanten Projekt partizipieren müssen.

Gemäß § 5 in Verbindung mit § 35 Abs. 1 Nr. 3 BauGB besteht die Möglichkeit, im Flächennutzungsplan der Verbandsgemeinde Thalfang am Erbeskopf auch Standorte auszuweisen, die der öffentlichen Versorgung mit Elektrizität, Gas, Telekommunikationsdienstleistungen, Wärme und Wasser, der Abwasserwirtschaft oder einem ortsgebundenen gewerblichen Betrieb dienen. Entsprechende Regelungen sind im Flächennutzungsplan der Verbandsgemeinde Thalfang am Erbeskopf für die Ortsgemeinde Gräfendhron bisher nicht enthalten

Auch bis heute besteht speziell für die Nutzung der Freiflächen-Photovoltaikanlagen kein rechtsgültiger Raumordnungsplan für die Region Trier. Im Regionalplan werden keine entsprechenden Flächen konkret festgelegt, sondern der Grundsatz G 149 postuliert, dass mit Grund und Boden flächenschonend umzugehen ist und vorrangig bereits versiegelte oder durch bestehende oder geplante Infrastrukturtrassen vorbelastete Flächen genutzt werden sollen. Hinzu kommen Ausschluss- und Restriktionsräume (Z 149 b-d) sowie Bereiche, in denen Konflikte mit anderen Nutzungen zu erwarten sind (G 149 e). Damit wird auf eine positive Umweltwirkung abgezielt. Eine weitergehende Umweltprüfung ist nicht erforderlich, sondern erfolgt erst bei einer konkreten Flächenausweisung auf der Ebene der Bauleitplanung.

Freiflächen Photovoltaikanlagen können durch die kommunale Flächennutzungsplanung auf bestimmte, besonders geeignete Standortbereiche bzw. Standorte konzentriert und an anderen Bereichen ausgeschlossen werden.

Da es sich bei Freiflächen Photovoltaikanlagen um Bauen im Außenbereich nach § 35 Baugesetzbuch (BauGB) handelt, ist zur Schaffung der bauplanungsrechtlichen Grundlagen die Aufstellung eines Bebauungsplanes durch die Ortsgemeinde Gräfendhron erforderlich. Die Entscheidung hierüber liegt in der Planungshoheit der Ortsgemeinde Gräfendhron.

Die Ortsgemeinde Gräfendhron beabsichtigt demnach auf den gemeindeeigenen Flächen im Bereich Gemarkung Gräfendhron, Flur 3, Flurstücke 48 tlw., 49, 60 und 40 (tlw.) eine Freiflächen- Photovoltaikanlage in einer Gesamtgrößenordnung von ca. 6,9 ha zu errichten bzw. die Fläche hierzu zu verpachten. Ebenso soll das geplante Nahwärmenetz in der Ortsgemeinde Gräfendhron auf dem Grundstück der Gemarkung Gräfendhron, Flurstücke 76 und 77, der Flur 4, bauplanungsrechtlich abgebildet werden.

Darüber hinaus sollen die Grundstücke der Gemarkung Gräfendhron, Flurstücke 48/4, 49 und 75 der Flur 4 sowie die Flurstücke 41 bis 47 und 50 bis 52, der Flur 3 mit in die Planungen mit einbezogen werden und entsprechende Optionskaufverträge bzw. Optionspachtverträge der Ortsgemeinde mit den Flächeneigentümer gestaltet werden (alternativ die Aufnahme in den Solidarfond mit der Ortsgemeinde Gräfendhron).

Da es sich bei Freiflächen Photovoltaikanlagen um Bauen im Außenbereich nach § 35 Baugesetzbuch (BauGB) handelt, ist zur Schaffung der bauplanungsrechtlichen Grundlagen die Aufstellung eines Bebauungsplanes durch die Ortsgemeinde Gräfendhron erforderlich. Dies gilt auch für das geplante Nahwärmenetz und die hierfür erforderlichen Anlagen.

Die Entscheidung hierüber liegt in der Planungshoheit der Ortsgemeinde Gräfendhron.

Gemäß § 1 Abs. 3 Satz 1 BauGB sind die Bebauungspläne von der Gemeinde aufzustellen oder zu ändern, soweit dies für die städtebauliche Entwicklung erforderlich ist. Ein Anspruch von Dritten auf Erlass oder Änderung eines Bebauungsplans besteht gemäß Satz 2 nicht. Dieses kann auch nicht durch einen Aufstellungsbeschluss begründet werden.

Zur Einleitung des Bebauungsplanverfahrens ist zunächst ein förmlicher Aufstellungsbeschluss durch den Ortsgemeinderat gem. § 2 Abs. 1 BauGB zu fassen.

Haushaltsrechtliche Beurteilung:

Die Planungs- und Honorarkosten werden per städtebaulichen Vertrag auf den Investor übertragen. Dies gilt auch für evtl. später notwendig werdende Gutachten und die bereits laufenden Untersuchungen der raumordnerischen Verfahren.

Beschluss:

Der Ortsgemeinderat Gräfendhron beschließt nach eingehender Beratung,

a)

Aufstellung eines Bebauungsplanes „Erneuerbare Energien“

für die genannten Grundstücke (Gemarkung Gräfendhron, Flur 4, Flurstück 48/4, 49, 76 und 77 (tlw.)) die Aufstellung eines Bebauungsplanes mit der Bezeichnung „Erneuerbare Energien“ zu veranlassen.

den Ortsbürgermeister / die Verwaltung zu beauftragen mit den Privateigentümern entsprechende Optionskaufverträge bzw. Optionspachtverträge abzuschließen. (alternativ die Aufnahme in den Solidarfond der Ortsgemeinde Gräfendhron).

die Verwaltung zu beauftragen, die für ein Verfahren erforderlichen Vorprüfungen vorzunehmen und dass hierfür erforderliche Verfahren nach dem Baugesetzbuch (BauGB) durchzuführen.

das Planungsbüro WeSt Stadtplaner GmbH, Ulmen zu beauftragen die erforderlichen Unterlagen zu fertigen.

der Ortsbürgermeister und die Verwaltung werden beauftragt, hinsichtlich der Interessenbekundung der Firma Enerparc einen Vertrag mit diesen über die Verpachtung der genannten Flurstücke für Freiflächen-Photovoltaikanlagen abzuschließen.

Gleichzeitig wird beantragt, dass die Erweiterung in der nächsten Fortschreibung des Flächennutzungsplanes der Verbandsgemeinde Thalfang am Erbeskopf entsprechend Berücksichtigung findet.

Der Beschluss erfolgt einstimmig.

An der Beratung und Beschlussfassung haben Ortsbürgermeister Hans Günther Steinmetz und das Ratsmitglied Martin Steinmetz aufgrund möglicher Ausschließungsgründe gemäß § 22 GemO nicht teilgenommen.

Bebauungsplangebiet „Erneuerbare Energien“:

b)

Aufstellung eines Bebauungsplanes „Erneuerbare Energien 2“

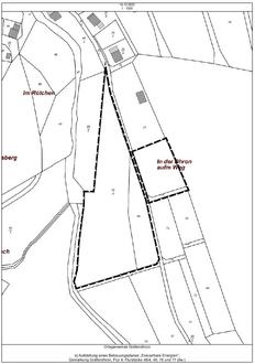
für die genannten Grundstücke (Gemarkung Gräfendhron, Flur 3, Flurstücke 40 (tlw.), 41, 42, 43, 44, 45, 46, 47, 48 tlw., 49, 50, 51, 52, 59, 60, 61, 62 und Flur 4, Flurstück 75) die Aufstellung eines Bebauungsplanes mit der Bezeichnung „Erneuerbare Energien 2“ zu veranlassen.

den Ortsbürgermeister / die Verwaltung zu beauftragen mit den Privateigentümern entsprechende Optionskaufverträge bzw. Optionspachtverträge abzuschließen. (alternativ die Aufnahme in den Solidarfond der Ortsgemeinde Gräfendhron).

die Verwaltung zu beauftragen, die für ein Verfahren erforderlichen Vorprüfungen vorzunehmen und dass hierfür erforderliche Verfahren nach dem Baugesetzbuch (BauGB) durchzuführen.

das Planungsbüro WeSt Stadtplaner GmbH, Ulmen zu beauftragen die erforderlichen Unterlagen zu fertigen.

der Ortsbürgermeister und die Verwaltung werden beauftragt, hinsichtlich der Interessenbekundung der Firma Enerparc einen Vertrag mit diesen über die Verpachtung der genannten Flurstücke für Freiflächen Photovoltaikanlagen abzuschließen.

Gleichzeitig wird beantragt, dass die Erweiterung in der nächsten Fortschreibung des Flächennutzungsplanes der Verbandsgemeinde Thalfang am Erbeskopf entsprechend Berücksichtigung findet.

Der Beschluss erfolgt einstimmig.

An der Beratung und Beschlussfassung haben die Ratsmitglieder Thomas Züscher und Lutz Güldenberg aufgrund möglicher Ausschließungsgründe gemäß § 22 GemO nicht teilgenommen.

Bebauungsplangebiet „Erneuerbare Energien 2“:

Sach- und Rechtslage zu c):

Die Ortsgemeinde Gräfendhron beabsichtigt, wie unter a) und b) dargelegt, eine Freiflächen-Photovoltaikanlage zu errichten bzw. die Flächen hierzu zu verpachten.

Der Ortsgemeinderat hat dementsprechend in seiner heutigen Sitzung für die genannten Grundstücke die Aufstellung der Bebauungspläne „Erneuerbare Energien“ und „Erneuerbare Energien 2“ veranlasst und die Verwaltung beauftragt, die für ein Verfahren erforderlichen Vorprüfungen vorzunehmen sowie das hierfür erforderliche Verfahren nach dem Baugesetzbuch (BauGB) durchzuführen.

Ebenso wurde das Planungsbüro Stadtplaner West GmbH, Ulmen beauftragt die erforderlichen Unterlagen zu fertigen. Nach Fertigstellung der Planungsleistungen werden die Beteiligung der Träger öffentlicher Belange sowie die förmliche Beteiligung der Öffentlichkeit durchgeführt.

Nunmehr liegt es in der Entscheidung des Ortsgemeinderates Gräfendhron, einen potenziellen Projektpartner / Energieversorger auszuwählen.

Dem vorausgegangen waren eine intensive Betrachtung des jeweiligen Anbieters und dessen Angebot.

Beschluss:

Der Ortsgemeinderat beschließt, das Projekt mit der Firma Enerparc, Hamburg bzw. eines dererseits benannten Dritten durchzuführen. Ortsbürgermeister Steinmetz wird beauftragt, entsprechende Verträge (Gestattungsvertrag / Städtebaulicher Vertrag) mit der Firma Enerparc, Hamburg bzw. eines dererseits benannten Dritten auszuarbeiten und zu unterzeichnen.

Der Beschluss erfolgt einstimmig.

Zu TOP 3: Sachstand „Nahwärme Gräfendhron“

Zu diesem Tagesordnungspunkt übergibt der Vorsitzende das Wort an Ratsmitglied Lutz Güldenberg, der im Folgenden den Sachstand „Nahwärme Gräfendhron“ erläutert.

Er führt aus, dass für die Umsetzung und den Betrieb des Nahwärmenetzes in der Ortsgemeinde Gräfendhron die Gründung einer Genossenschaft geplant ist. Das Verfahren wird durch den Genossenschaftsverband - Verband der Regionen e.V. begleitet. Vorher muss jedoch ein Businessplan erstellt werden und ein entsprechendes Kostenmodell festgelegt werden. Hierbei wirke sich die Übertragung der Planungs- und Honorarkosten per städtebaulichen Vertrag auf den Investor sehr positiv aus. Wenn konkrete Zahlen vorliegen, sollen die in Frage kommenden Haushalte in der Ortsgemeinde nochmals angesprochen werden.

Ein Beschluss wird nicht gefasst.

Zu TOP 4: Annahme von Sponsoringleistungen, Spenden und sonstigen Zuwendungen gem. § 94 Abs. 3 GemO

Gem. § 94 Abs. 3 Satz 5 GemO darf die Ortsgemeinde zur Erfüllung ihrer Aufgaben Sponsoringleistungen, Spenden, Schenkungen und ähnliche Zuwendungen annehmen. Über die Annahme entscheidet der Ortsgemeinderat.

Im Jahr 2022 wurden im Einzelnen folgend aufgeführte und erläuterte Spende verbucht:

Beschluss:

Die Ortsgemeinde stimmt vorbehaltlich der Zustimmung der Aufsichtsbehörde der Annahme der bezeichneten Spenden zu. Es wird in allen Fällen klargestellt, dass nach erfolgter Prüfung ein anderweitiges Beziehungsverhältnis zwischen Geber und Ortsgemeinde nicht besteht.

Der Beschluss erfolgt einstimmig.

Zu TOP 5: Erneuerung Toranlage Feuerwehrgerätehaus

Der Ortsgemeinderat wird über die geplante Erneuerung der Toranlage im Feuerwehrgerätehaus informiert. Diese ist notwendig geworden, da die bestehende Toranlage nicht mehr über die notwendige TÜV-Freigabe verfügt. Das Gemeindehaus sowie das Feuerwehrgerätehaus steht im Eigentum der Ortsgemeinde. Die Unterhaltung des Feuerwehrgerätehauses obliegt der Verbandsgemeinde Thalfang am Erbeskopf. Nach gegenwärtigem Kenntnisstand des Ortsgemeinderates und der Feuerwehr Gräfendhron soll ein neues Sektionaltor ohne Schlupftür eingebaut werden. Dies hat zu erheblichen Irritationen innerhalb der Gemeinde und der Feuerwehr beigetragen. Aufgrund langjähriger Erfahrungen bei Übungen und Einsätzen wird der klare Ansatz vertreten, dass ein Zugang über eine Schlupftür in der Toranlage zwingend erforderlich und notwendig ist. Dies auch vor dem Hintergrund energetischer Gesichtspunkte.

Nach eingehender Beratung beschließt der Ortsgemeinderat, dass ausschließlich der Einbau eines Sektionaltores mit Schlupftür im Feuerwehrgerätehauses zugelassen wird. Ortsbürgermeister Steinmetz wird veranlasst entsprechendes bei der Verbandsgemeinde Thalfang am Erbeskopf vorzutragen.

Der Beschluss erfolgt einstimmig.

Zu TOP 6: Mitteilungen und Informationen

Ortsbürgermeister Steinmetz informiert über folgende Themen:

-

Offenlage Bebauungsplan Baugebiet „Aufm Ebent“

-

Sanierungsmaßnahme Spielplatz

-

Instandhaltung von Wirtschaftswegen in 2023

Der Vorsitzende dankt den Anwesenden für die konstruktiven Beratungen und die angenehme Zusammenarbeit im zurückliegenden Jahr. Er wünscht allen schöne Festtage und ein glückliches und gesundes Jahr 2023.