Titel Logo
Thalfang aktuell - Amtsblatt VG Thalfang
Ausgabe 48/2023
Unsere Dörfer
Zurück zur vorigen Seite
Zurück zur ersten Seite der aktuellen Ausgabe

Öffentliche Bekanntmachung

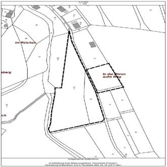
über die Aufstellung des Bebauungsplanes „Erneuerbare Energien“ der Ortsgemeinde Gräfendhron nach § 2 Abs. 1 Baugesetzbuch (BauGB)

Der Ortsgemeinderat Gräfendhron hat in seiner Sitzung am 12.12.2022 für die Grundstücke Gemarkung Gräfendhron, Flur 4, Nr. 48/4, 49, 76 und 77 tw die Aufstellung des Bebauungsplanes „Erneuerbare Energien“ gem. § 2 Abs. 1 S. 1 BauGB beschlossen.

Gem. § 2 Abs. 1 S. 2 BauGB ist der Beschluss, einen Bebauungsplan aufzustellen, ortsüblich bekanntzumachen. Folglich wird hiermit Nachfolgendes bekanntgegeben:

Das Klimaschutzgesetz des Landes Rheinland-Pfalz schreibt vor, dass die Gesamtsumme der Treibhausgasemissionen in Rheinland-Pfalz bis zum Jahr 2020 um mindestens 40 Prozent und bis zum Jahr 2050 um mindestens 90 Prozent im Vergleich zu den Gesamtemissionen im Jahr 1990 gesenkt werden soll. Zur Umsetzung dieser Ziele kommt dem Ausbau der erneuerbaren Energien (Energiewende) neben dem Schutz natürlicher Ressourcen und der Einsparung sowie effizienten Nutzung von Energie eine besondere Rolle zu.

Seit Inkrafttreten der aktuell gültigen Fassung des Erneuerbaren Energien Gesetzes am 1. Januar 2017 (nachfolgend EEG 2017 genannt) ist die Förderung der erneuerbaren Energien mit der Teilnahme an Ausschreibungsverfahren verbunden. Dies trifft auch für Photovoltaik (PV)-Anlagen ab einer Größe von 750 kW zu. Eine Voraussetzung zur Teilnahme an Ausschreibungen im Bereich der Photovoltaikfreiflächenanlagen (PV-Anlagen) ist, dass die geplante Anlage in einer bestimmten Gebietskulisse liegt.

Nach § 37c Absatz 1 Halbsatz 1 EEG 2017 darf die Bundesnetzagentur nur solche Gebote für Freiflächenanlagen im Zuschlagsverfahren berücksichtigen, die Anlagen auf Flächen nach § 37 Absatz 1 Nummer 3 Buchstaben a bis g EEG 2017 betreffen. Damit stehen für die Errichtung von Freiflächenanlagen im Wesentlichen nur versiegelte Flächen (Buchstabe a), Konversionsflächen (Buchstabe b), Seitenrandstreifen (110 Meter) entlang Autobahnen oder Schienenwegen (Buchstabe c) und Flächen der Bundesanstalt für Immobilienaufgaben (Buchstabe g) zur Verfügung.

Rheinland-Pfalz hat von der Verordnungsermächtigung gemäß § 37c Absatz 2 EEG 2017 Gebrauch gemacht und die Öffnung der Flächenkulisse kraft Rechtsverordnung des Landes auf Grünlandflächen [alle per InVeKos (Integriertes Verwaltungs- und Kontrollsystem der Agrarförderung) erfassten Dauergrünlandflächen und die Grünlandflächen, die nicht per InVeKos erfasst sind, jedoch im Grundbuch als Grünland eingetragen sind] in benachteiligten Gebieten, ausgedehnt.

Aufgrund dieser neuen Gesetzeslage erhielten verschiedene Ortsgemeinden in der Verbandsgemeinde Thalfang am Erbeskopf in den vergangenen Monaten zunehmend Anfragen von interessierten Firmen, in denen um Genehmigung zum Bau von solchen Anlagen gebeten wird.

Sofern diese wirtschaftlichen Rahmenbedingungen fortbestehen und einzelne Anlagen ohne klare Bedingungen genehmigt werden, könnte es in der Folge insbesondere zu einer nachteiligen Entwicklung des Orts- und Landschaftsbildes innerhalb der Verbandsgemeinde sowie der Ortsgemeinde Gräfendhron kommen, wenn PV-Anlagen plan- und maßlos über das Gemeindegebiet entwickelt werden. Dadurch wird die vom Gesetzgeber hervorgehobene aktive Rolle der Planungshoheit der Gemeinden bei der Standortplanung deutlich.

Die Ortsgemeinde Gräfendhron hat sich demnach intensiv mit der Planung sowie den Restriktionen einer Freiflächen-Photovoltaikanlage auf dem Gemarkungsbereich Gräfendhron auseinandergesetzt. Diese sieht in der Realisierung einer Freiflächen-Photovoltaikanlage die einzige Möglichkeit, die finanziell sehr angespannte defizitäre Haushaltlage der Ortsgemeinde zu entspannen und somit die Bürgerinnen und Bürger der Ortsgemeinde aktiv zu entlasten. Aufgrund des Angriffskrieges der Russischen Föderation gegen die Ukraine sowie weitreichender Embargoentscheidungen auf nationaler wie internationale Ebene wurden die grundlegenden politischen, wirtschaftlichen und sozialen Rahmenbedingungen existenziell erschüttert. Diese politisch wie historisch singuläre Ereignis hat unvorhersehbare, erhebliche Auswirkungen auf die Wirtschaft sowie Leistungsfähigkeit der Ortsgemeinde. Darüber hinaus beschweren die stark ansteigenden Energiepreise die ohnehin schwierige Finanzlage der Ortsgemeinde Gräfendhron sehr.

Im Rahmen der Haushaltsplanberatungen 2022 und hieraus resultierenden eingeforderten Anpassungen der Hebesätze durch die Kommunalaufsicht der Kreisverwaltung Bernkastel-Wittlich wurde nochmals deutlich, dass zukünftigen Anpassungen nur mit neuen Einnahmequellen entgegengewirkt werden kann. Hierbei ist für den Ortsgemeinderat von besonderer Bedeutung, dass nicht Einzelne, sondern alle Bürgerinnen und Bürger der Ortsgemeinde Gräfendhron von einem solchen geplanten Projekt partizipieren müssen.

Gemäß § 5 in Verbindung mit § 35 Abs. 1 Nr. 3 BauGB besteht die Möglichkeit, im Flächennutzungsplan der Verbandsgemeinde Thalfang am Erbeskopf auch Standorte auszuweisen, die der öffentlichen Versorgung mit Elektrizität, Gas, Telekommunikationsdienstleistungen, Wärme und Wasser, der Abwasserwirtschaft oder einem ortsgebundenen gewerblichen Betrieb dienen. Entsprechende Regelungen sind im Flächennutzungsplan der Verbandsgemeinde Thalfang am Erbeskopf für die Ortsgemeinde Gräfendhron bisher nicht enthalten.

Auch bis heute besteht speziell für die Nutzung der Freiflächen-Photovoltaikanlagen kein rechtsgültiger Raumordnungsplan für die Region Trier. Im Regionalplan werden keine entsprechenden Flächen konkret festgelegt, sondern der Grundsatz G 149 postuliert, dass mit Grund und Boden flächenschonend umzugehen ist und vorrangig bereits versiegelte oder durch bestehende oder geplante Infrastrukturtrassen vorbelastete Flächen genutzt werden sollen. Hinzu kommen Ausschluss- und Restriktionsräume (Z 149 b-d) sowie Bereiche, in denen Konflikte mit anderen Nutzungen zu erwarten sind (G 149 e). Damit wird auf eine positive Umweltwirkung abgezielt. Eine weitergehende Umweltprüfung ist nicht erforderlich, sondern erfolgt erst bei einer konkreten Flächenausweisung auf der Ebene der Bauleitplanung.

Freiflächen Photovoltaikanlagen können durch die kommunale Flächennutzungsplanung auf bestimmte, besonders geeignete Standortbereiche bzw. Standorte konzentriert und an anderen Bereichen ausgeschlossen werden.

Da es sich bei Freiflächen Photovoltaikanlagen um Bauen im Außenbereich nach § 35 Baugesetzbuch (BauGB) handelt, ist zur Schaffung der bauplanungsrechtlichen Grundlagen die Aufstellung eines Bebauungsplanes durch die Ortsgemeinde Gräfendhron erforderlich. Die Entscheidung hierüber liegt in der Planungshoheit der Ortsgemeinde Gräfendhron.

Die Ortsgemeinde Gräfendhron beabsichtigt demnach auf den gemeindeeigenen Flächen im Bereich Gemarkung Gräfendhron, Flur 3, Flurstücke 48 tlw., 49, 60 und 40 (tlw.) eine Freiflächen- Photovoltaikanlage in einer Gesamtgrößenordnung von ca. 6,9 ha zu errichten bzw. die Fläche hierzu zu verpachten. Ebenso soll das geplante Nahwärmenetz in der Ortsgemeinde Gräfendhron auf dem Grundstück der Gemarkung Gräfendhron, Flurstücke 76 und 77, der Flur 4, bauplanungsrechtlich abgebildet werden.

Darüber hinaus sollen die Grundstücke der Gemarkung Gräfendhron, Flurstücke 48/4, 49 und 75 der Flur 4 sowie die Flurstücke 41 bis 47 und 50 bis 52, der Flur 3 mit in die Planungen mit einbezogen werden und entsprechende Optionskaufverträge bzw. Optionspachtverträge der Ortsgemeinde mit den Flächeneigentümer gestaltet werden (alternativ die Aufnahme in den Solidarfond mit der Ortsgemeinde Gräfendhron).

Da es sich bei Freiflächen Photovoltaikanlagen um Bauen im Außenbereich nach § 35 Baugesetzbuch (BauGB) handelt, ist zur Schaffung der bauplanungsrechtlichen Grundlagen die Aufstellung eines Bebauungsplanes durch die Ortsgemeinde Gräfendhron erforderlich. Dies gilt auch für das geplante Nahwärmenetz und die hierfür erforderlichen Anlagen.

Die Entscheidung hierüber liegt in der Planungshoheit der Ortsgemeinde Gräfendhron.

Gemäß § 1 Abs. 3 Satz 1 BauGB sind die Bebauungspläne von der Gemeinde aufzustellen oder zu ändern, soweit dies für die städtebauliche Entwicklung erforderlich ist. Ein Anspruch von Dritten auf Erlass oder Änderung eines Bebauungsplans besteht gemäß Satz 2 nicht. Dieses kann auch nicht durch einen Aufstellungsbeschluss begründet werden.

Zur Einleitung des Bebauungsplanverfahrens ist zunächst ein förmlicher Aufstellungsbeschluss durch den Ortsgemeinderat gem. § 2 Abs. 1 BauGB zu fassen.

Haushaltsrechtliche Beurteilung:

Die Planungs- und Honorarkosten werden per städtebaulichen Vertrag auf den Investor übertragen. Dies gilt auch für evtl. später notwendig werdende Gutachten und die bereits laufenden Untersuchungen der raumordnerischen Verfahren.

Beschluss:

Der Ortsgemeinderat Gräfendhron beschließt nach eingehender Beratung,

a)

Aufstellung eines Bebauungsplanes „Erneuerbare Energien“

für die genannten Grundstücke (Gemarkung Gräfendhron, Flur 4, Flurstück 48/4, 49, 76 und 77 (tlw.)) die Aufstellung eines Bebauungsplanes mit der Bezeichnung „Erneuerbare Energien“ zu veranlassen.

den Ortsbürgermeister / die Verwaltung zu beauftragen mit den Privateigentümern entsprechende Optionskaufverträge bzw. Optionspachtverträge abzuschließen. (alternativ die Aufnahme in den Solidarfond der Ortsgemeinde Gräfendhron).

die Verwaltung zu beauftragen, die für ein Verfahren erforderlichen Vorprüfungen vorzunehmen und dass hierfür erforderliche Verfahren nach dem Baugesetzbuch (BauGB) durchzuführen.

das Planungsbüro WeSt Stadtplaner GmbH, Ulmen zu beauftragen die erforderlichen Unterlagen zu fertigen.

der Ortsbürgermeister und die Verwaltung werden beauftragt, hinsichtlich der Interessenbekundung der Firma Enerparc einen Vertrag mit diesen über die Verpachtung der genannten Flurstücke für Freiflächen-Photovoltaikanlagen abzuschließen.

Gleichzeitig wird beantragt, dass die Erweiterung in der nächsten Fortschreibung des Flächennutzungsplanes der Verbandsgemeinde Thalfang am Erbeskopf entsprechend Berücksichtigung findet.

Der Beschluss erfolgt einstimmig.

An der Beratung und Beschlussfassung haben Ortsbürgermeister Hans Günther Steinmetz und das Ratsmitglied Martin Steinmetz aufgrund möglicher Ausschließungsgründe gemäß § 22 GemO nicht teilgenommen.

Zur Information ist nachstehend der beschlossene räumliche Geltungsbereich anhand eines Übersichtslageplanes dargestellt. Der Übersichtslageplan ist Bestandteil dieser Bekanntmachung.

Gräfendhron, den 24.11.2023
Hans-Günther Steinmetz
Ortsbürgermeister