Titel Logo
Mein Wittlich.Land
Ausgabe 2/2024
Amtliche Bekanntmachungen und Mitteilungen der Verbandsgemeindeverwaltung
Zurück zur vorigen Seite
Zurück zur ersten Seite der aktuellen Ausgabe

Öffentliche Bekanntmachung

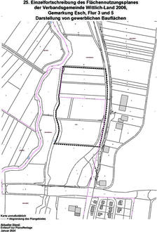
25. Einzelfortschreibung des Flächennutzungsplanes

der Verbandsgemeinde Wittlich-Land

zur Darstellung von gewerblichen Bauflächen

in der Gemarkung Esch, Flure 3 und 5

1. Beteiligung der Öffentlichkeit gemäß § 3 Abs. 2 Baugesetzbuch (BauGB)

2. Hinweise zum Verfahren

1. Beteiligung der Öffentlichkeit gemäß § 3 Abs. 2 Baugesetzbuch (BauGB)

Der Verbandsgemeinderat Wittlich-Land hat in seiner Ratssitzung am 08.09.2021 die Abwägung zu den im Zuge der bisherigen Beteiligungen eingegangenen Stellungnahmen (Abstimmung mit den Nachbargemeinden gemäß § 2 Abs. 2 BauGB, frühzeitige Öffentlichkeitsbeteiligung gemäß § 3 Abs. 1 BauGB sowie Behördenbeteiligung gemäß § 4 Abs. 1 BauGB) durchgeführt und den Entwurf der 25. Einzelfortschreibung des Flächennutzungsplanes Wittlich-Land 2006 für die Offenlage beschlossen.

Die Abgrenzung des Änderungsbereiches ist in dem besonders abgedruckten Lageplan dargestellt.

Der Entwurf der 25. Einzelfortschreibung des Flächennutzungsplanes besteht aus:

1.

einer Planzeichnung mit Darstellung der derzeitigen und der im Zuge der Fortschreibung geplanten Flächennutzungsplandarstellungen und

2.

einer Begründung mit integriertem Umweltbericht

Im Rahmen des Planverfahrens wird eine Umweltprüfung durchgeführt.

Folgende umweltbezogene Informationen sind verfügbar und können während der Veröffentlichungsfrist gem. § 3 (2) BauGB eingesehen werden:

Informationen zum Schutzgut Mensch und seine Gesundheit, Bevölkerung, insbesondere:

Schalltechnische Untersuchung zu Verkehrs- und Gewerbelärm

Verkehrsuntersuchung

Luftschadstoffemissionen

Löschwasserversorgung

Informationen zum Schutzgut Tiere und Pflanzen, Biotope, biologische Vielfalt, insbesondere:

Vegetations- und Biotopbestand mittels Biotoptypenkartierung und faunistische Untersuchung (Artenschutzbeitrag)

Untersuchung zur Abschätzung des Quartierspotentials der Gehölze für Fledermäuse

Schutzgebiete, u. a. gesetzlich geschützte Biotope, Biotopverbund

Eingriffsregelung gemäß Baugesetzbuch i. V. m. Bundesnaturschutzgesetz – Erstellung einer Eingriffs-/Ausgleichsbilanzierung sowie Entwicklung von Maßnahmen zur Vermeidung, Minimierung und dem Ausgleich von Eingriffen

Informationen zum Schutzgut Boden und Fläche, insbesondere:

Flächeninanspruchnahme/Flächenalternativen

Landwirtschaftliche Nutzflächen

Bodenfunktionen und Bodenaufbau

Versiegelung

Auswirkungen der Art der geplanten baulichen Nutzung

Geotechnischer Bericht

Bodendenkmäler, Archäoprospektion

Informationen zum Schutzgut Wasser, insbesondere:

Entwässerungstechnischer Begleitplan zum Umgang mit dem anfallenden Niederschlagswasser, u. a. Versickerungseignung, Rückhaltung, Ableitung sowie Umgang mit anfallendem Schmutzwasser

Oberflächengewässer und deren Schutzwürdigkeit, Gewässerrandstreifen

Trinkwasserschutzgebiete

Starkregen, Hochwasser/Überschwemmungsgebiet und -risikogebiet

Informationen zum Schutzgut Luft, Klima, erneuerbare Energien, insbesondere:

Mikroklima, u. a. Kaltluftentstehung

Klimawandelanpassung

Starkregen- und Hochwasserereignisse

Informationen zum Schutzgut Landschaftsbild und Erholung, insbesondere:

Landschaftsraum

Landschafts- und Ortsbild

Natürliche Erholungseignung

Informationen zu Kultur- und Sachgütern, insbesondere:

Bodendenkmäler, Archäoprospektion

Weitere umweltbezogene Informationen sind zusammengefasst in der Begründung und dem Umweltbericht enthalten. Der Umweltbericht enthält gemäß Anlage 1 zum BauGB eine Beschreibung und Bewertung der Umweltauswirkungen im Basisszenario (Ist-Zustand), bei Nicht-Durchführung der Planung und bei Durchführung der Planung auf die Schutzgüter, unter Berücksichtigung der bau-, anlage- und betriebsbedingten Auswirkungen, der möglichen Wechselwirkungen der Schutzgüter untereinander sowie den geplanten Maßnahmen zur Vermeidung, Verringerung und Ausgleich von Eingriffen durch die Planung.

Die vorgenannten Planunterlagen zur Beteiligung der Öffentlichkeit sowie die wesentlichen bereits vorliegenden umweltbezogenen Stellungnahmen werden in der Zeit von

Montag, den 22. Januar 2024

bis einschließlich Freitag, den 23. Februar 2024

auf der Internetseite der Verbandsgemeinde Wittlich-Land unter www.vg-wittlich-land.de veröffentlicht. Den Link zu den Beteiligungsunterlagen finden Sie unter Aktuelles / Bauleitplanung / OG Esch – „Gewerbegebiet Rohrerweg“.

Darüber hinaus wird die Planung in das zentrale Internetportal des Landes unter https://www.geoportal.rlp.de eingestellt.

Zusätzlich werden die Entwurfsunterlagen im Zeitraum der Veröffentlichung bei der Verbandsgemeindeverwaltung Wittlich-Land, Kurfürstenstr. 1, 54516 Wittlich, Zimmer 307 während der üblichen Dienststunden öffentlich zur Einsichtnahme ausgelegt und können dort eingesehen werden.

Nach telefonischer Vereinbarung (Herr Weinand, Tel.: 06571/107-381) kann der Planentwurf auch außerhalb dieser Zeiten eingesehen werden.

Während der Dauer der Veröffentlichungsfrist können Stellungnahmen zu der Planung bei der oben genannten Stelle eingereicht bzw. dort zu Protokoll erklärt werden.

Die Stellungnahmen sollen vornehmlich elektronisch übermittelt werden (E-Mail an: hans-peter.weinand@vg-wittlich-land.de). Bei Bedarf können die Stellungnahmen auch schriftlich eingereicht werden (z. B. per Brief oder Fax 06571/107155).

Es wird darauf hingewiesen, dass Stellungnahmen, die im Verfahren der Öffentlichkeitsbeteiligung nicht während der Dauer der Veröffentlichungsfrist abgegeben worden sind, bei der Beschlussfassung über den Flächennutzungsplan unberücksichtigt bleiben können, soweit die Verbandsgemeinde Wittlich-Land deren Inhalt nicht kannte und nicht hätte kennen müssen und deren Inhalt für die Rechtmäßigkeit des Flächennutzungsplanes nicht von Bedeutung ist (§ 4a Abs. 6 i. V. m. § 3 Abs. 2 Satz 2 BauGB).

Ebenfalls wird gemäß § 3 Abs. 3 BauGB darauf hingewiesen, dass eine Vereinigung im Sinne des § 4 Absatz 3 Satz 1 Nummer 2 des Umwelt-Rechtsbehelfsgesetzes in einem Rechtsbehelfsverfahren nach § 7 Absatz 2 des Umwelt-Rechtsbehelfsgesetzes gemäß § 7 Absatz 3 Satz 1 des Umwelt-Rechtsbehelfsgesetzes mit allen Einwendungen ausgeschlossen ist, die sie während der Dauer der Veröffentlichungsfrist nicht oder nicht rechtzeitig geltend gemacht hat, aber hätte geltend machen können.

2. Hinweise zum Verfahren

Das vorgenannte Verfahren zur 25. Einzelfortschreibung des Flächennutzungsplanes Wittlich-Land wird gemäß § 8 Abs. 3 Satz 1 BauGB gleichzeitig mit dem Bebauungsplanverfahren der Ortsgemeinde Esch zur Aufstellung des Bebauungsplanes „Gewerbegebiet Rohrerweg“ durchgeführt (Parallelverfahren).

Auf die besondere Veröffentlichung zur Bebauungsplanung der Ortsgemeinde Esch in dieser Ausgabe der Wochenzeitung „VerbandsgeMEINde Wittlich.Land“ unter Veröffentlichungen der Ortsgemeinde Esch wird hingewiesen.

Wittlich, den 09.01.2024
Verbandsgemeindeverwaltung
Wittlich-Land
gez.: (S)
Manuel Follmann
Bürgermeister