Titel Logo
Mein Wittlich.Land
Ausgabe 24/2023
Amtliche Bekanntmachungen und Mitteilungen der Ortsgemeinden
Zurück zur vorigen Seite
Zurück zur ersten Seite der aktuellen Ausgabe

​​​​​​​Verkauf von gemeindeeigenen Baugrundstücken im Baugebiet „Unterste Wiese“

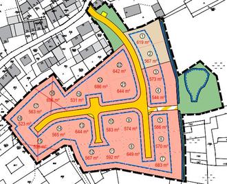
Die Ortsgemeinde Binsfeld bietet die aus dem Plan ersichtlichen Baugrundstücke im Rahmen einer Interessenbeurkundung zum Kauf an.

Der Verkauf erfolgt entsprechend der Vergaberichtlinien und Kaufvertragsbedingungen „Verkauf von gemeindeeigenen Baugrundstücken im Baugebiet Unterste Wiese der Ortsgemeinde Binsfeld“ vom 31.05.2023. Bei dem punktebasierten Auswahlverfahren werden u.a. soziale Kriterien wie z.B. die Anzahl von Kindern berücksichtigt.

Der Verkaufspreis je m² Grundstücksfläche beträgt 115,00 €.

Voraussetzung für den Erwerb eines Baugrundstücks ist die Teilnahme am Verfahren, es besteht jedoch keine Verpflichtung zur Abnahme.

Nachfolgende Grundstücke sind noch verfügbar:

Bauplatznummer

m² - Größe

1 (Gewerbe)

619

2 (Gewerbe)

567

3

573

4

544

5

566

6

570

7

683

8

649

9

574

10

583

11

592

12

567

13

644

14

565

16

523

17

563

19

531

20

686

21

644

22

642

Interessierte können sich wie folgt über die Bewerbungsunterlagen informieren:

-

auf der Homepage der Ortsgemeinde unter www.ortsgemeinde-binsfeld.de

-

bei der Verbandsgemeindeverwaltung Wittlich-Land, Herr Kevin Servatius, Zimmer 213, Kurfürstenstraße 1, 54516 Wittlich, Tel: 06571-107-156.

Bewerbungen sind schriftlich und spätestens bis zum 14.07.2023, 10:00 Uhr ausschließlich bei der Verbandsgemeindeverwaltung Wittlich-Land einzureichen.

Es wird darauf hingewiesen, dass bisherige Interessenbekundungen für Bauflächen, ob schriftlich oder mündlich vorgebracht, keine Berücksichtigung finden.