Titel Logo
Mein Wittlich.Land
Ausgabe 35/2025
Amtliche Bekanntmachungen und Mitteilungen der Verbandsgemeindeverwaltung
Zurück zur vorigen Seite
Zurück zur ersten Seite der aktuellen Ausgabe

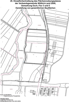
Genehmigung der 25. Einzelfortschreibung des Flächennutzungsplanes der Verbandsgemeinde Wittlich-Land zur Darstellung von gewerblichen Bauflächen in der Gemarkung Esch, Flur 3 und 5

Gemäß § 1 Abs. 1 und 2 der Hauptsatzung der Verbandsgemeinde Wittlich-Land vom 11.12.2024 und § 6 Abs. 5 des Baugesetzbuches (BauGB) in der Fassung der Bekanntmachung vom 03.11.2017 (BGBl. I S. 3634), zuletzt geändert durch Artikel 3 des Gesetzes vom 20.12.2023 (BGBl. 2023 I Nr. 394), wird hiermit ortsüblich bekannt gemacht, dass die Kreisverwaltung Bernkastel-Wittlich in 54516 Wittlich am 13.08.2025 die vom Verbandsgemeinderat Wittlich-Land am 26.03.2025 beschlossene 25. Einzelfortschreibung des Flächennutzungsplanes Wittlich-Land 2006 genehmigt hat.

Entsprechend § 6 Abs. 5 BauGB wird die Genehmigungsverfügung der Kreisverwaltung Bernkastel-Wittlich vom 13.08.2025, Az.: FB22/LE hiermit ortsüblich bekannt gemacht (Auszug):

„Kreisverwaltung Bernkastel-Wittlich, Postfach 1420, 54504 Wittlich

Verbandsgemeindeverwaltung

Wittlich-Land

54516 Wittlich

Bauleitplanung für den Bereich der Ortsgemeinde Esch, Gemarkung Esch, Flur 3 zur Darstellung gewerblicher Bauflächen im Parallelverfahren zur Aufstellung des Bebauungsplans „Gewerbegebiet Rohrerweg“,

25. Einzelfortschreibung des Flächennutzungsplanes der Verbandsgemeinde Wittlich-Land,

- Genehmigung gem. § 6 BauGB

Sehr geehrte Damen und Herren,

gemäß § 6 Abs. 1 Baugesetzbuch (BauGB) in der Fassung der Bekanntmachung vom 3. November 2017 (BGBl. I S. 3634), zuletzt geändert durch Artikel 3 des Gesetzes vom 20. Dezember 2023 (BGBl. 2023 I Nr. 394), in Verbindung mit der Landesverordnung über Zuständigkeiten nach dem BauGB vom 21.12.2007 (GVBl. 2008 Seite 22) wird hiermit die Änderung des Flächennutzungsplanes der Verbandsgemeinde Wittlich-Land für die Ortslage Esch, Gem. Esch, Flur 3, zur Darstellung von gewerblichen Bauflächen

genehmigt.

Bestandteil dieser Genehmigung ist:

• Ortslagenkarte Esch, Gem. Esch, Maßstab 1 : 2.500

Mit freundlichen Grüßen
Im Auftrag:
gez.: (S)
(Ralph Lerch)“

Der Änderungsbereich in einer Gesamtgröße von ca. 5,4 ha beinhaltet die Anpassung/Änderung von bisherigen Flächen für die Landwirtschaft in gewerbliche Bauflächen.

Die 25. Einzelfortschreibung des Flächennutzungsplanes der Verbandsgemeinde Wittlich-Land 2006 erfolgte im Parallelverfahren mit der Aufstellung des Bebauungsplanes „Gewerbegebiet Rohrerweg“ der Ortsgemeinde Esch.

Die Abgrenzung der im Zuge der 25. Einzelfortschreibung des Flächennutzungsplanes in ihrer Darstellung geänderten Flächen ist in dem besonders abgedruckten Lageplan dargestellt.

Die vorerwähnten Unterlagen der 25. Einzelfortschreibung des Flächennutzungsplanes 2006 sowie die zusammenfassende Erklärung gemäß § 6 a BauGB liegen ab sofort bei der Verbandsgemeindeverwaltung Wittlich-Land, Kurfürstenstr. 1 in 54516 Wittlich, Zimmer 307, während der üblichen Dienststunden zu jedermanns Einsicht öffentlich aus. Über den Inhalt wird auf Verlangen Auskunft erteilt.

Auf die Rechtsfolgen des § 215 Abs. 1 BauGB wird hingewiesen.

Danach werden unbeachtlich,

  1. eine nach § 214 Abs. 1 Satz 1 Nr. 1 bis 3 BauGB beachtliche Verletzung der dort bezeichneten Verfahrens- und Formvorschriften,
  2. eine unter Berücksichtigung des § 214 Abs. 2 BauGB beachtliche Verletzung der Vorschriften über das Verhältnis des Bebauungsplanes und des Flächennutzungsplanes und
  3. nach § 214 Abs. 3 Satz 2 BauGB beachtliche Mängel des Abwägungsvorganges,

wenn sie nicht innerhalb eines Jahres seit Bekanntmachung des Flächennutzungsplanes schriftlich gegenüber der Verbandsgemeindeverwaltung Wittlich-Land unter Darlegung des die Verletzung begründenden Sachverhalts geltend gemacht worden sind.

Mit dieser Bekanntmachung wird die 25. Einzelfortschreibung des Flächennutzungsplanes der Verbandsgemeinde Wittlich-Land 2006 rechtswirksam.

Wittlich, den 26.08.2025
Verbandsgemeindeverwaltung
Wittlich-Land
gez.: (S)
Manuel Follmann
Bürgermeister