Titel Logo
Vulkan Echo VG Ulmen
Ausgabe 47/2024
Verbandsgemeinde Ulmen
Zurück zur vorigen Seite
Zurück zur ersten Seite der aktuellen Ausgabe

Auszug aus der Niederschrift

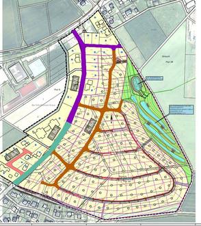
Rosa: 1. BA; Lila: 2. BA; Grün: 3. BA, Braun: 4. BA

Luftbild der Kläranlage Schmitt (gelbe Markierung: Vererdungsanlage) Quelle: GIS System VG Ulmen

über die öffentliche Sitzung des Werkausschusses der Verbandsgemeinde Ulmen

Sitzungsdatum:

Donnerstag, den 14.11.2024

Beginn:

15:30 Uhr

Ende:

17:00 Uhr

Ort:

Sitzungssaal des Rathauses, Marktplatz 1, 56766 Ulmen

Anwesend waren:

Vorsitzender

Herr Bürgermeister Alfred Steimers

1. Beigeordnete(r)

Herr Thomas Kerpen

Beigeordnete(r)

Herr Ulrich Laux

Herr Manfred Nehren

SPD

Herr Lothar Friedrich

Herr Frank Steimers

CDU

Herr Karl-Josef Fischer

Herr Michael Fischer

Herr Klaus Kutscheid

Herr Volker Laux

Stellv. Mitglied für Peter Arnoldi

Frau Bettina Pellio

FWG der Verbandsgemeinde Ulmen e. V.

Herr Paul Haubrichs

Herr Gerd Johann

FWG Büchel e.V.

Herr Markus Radermacher

Protokollführerin

Frau Sarah Müller

von der Verwaltung

Herr Frank Jäger

Herr Torsten Steffgen

Gäste

Herr Dr. Harald Breitenbach

Abwesend waren:

Es fehlten entschuldigt

Herr Peter Arnoldi

Herr Martin Boos

Kreisverwaltung Cochem-Zell

Gegen Form und Frist der Einladung wurden keine Bedenken erhoben.

Anträge zur Tagesordnung wurden nicht gestellt.

Tagesordnung:

Öffentlicher Teil

1.

Verpflichtung von Ausschussmitgliedern

2.

Jahresabschluss 2023 des Abwasserwerkes

3.

Festsetzung Schmutzwassergebühr 2025 für die leitungsgebundene Abwasserentsorgung

4.

Erlass der Satzung über die Erhebung des Wiederkehrenden Beitrages für die Vorhaltung der Niederschlagswasserbeseitigung (WKB) 2025

5.

Festsetzung der Gebühr 2025 für das Einsammeln, den Transport und die Annahme von Schmutzwasser aus geschlossenen Gruben und Überschussschlamm aus privaten Kleinkläranlagen

6.

Festsetzung der Vorausleistung auf den laufenden Kostenanteil 2025 für die Entwässerung der gemeindlichen Straßen, Wege und Plätze in die Abwasseranlagen der Verbandsgemeinde

7.

Neufassung der Betriebssatzung der VG Ulmen

8.

Wirtschaftsplan 2025 des Abwasserwerkes der Verbandsgemeinde Ulmen

9.

Gründung des neuen Betriebszweiges "Energie"

10.

Kanal TV-Inspektion Schmitt, Ulmen, Lutzerath: Auftragsvergabe

11.

Auftragsvergabe Partielle Kanalsanierung sowie Kanalrenovation in den Ortsgemeinden Büchel, Wollmerath und Vorpochten

12.

Lutzerath NBG "Auf der Höhe" 3. und 4.BA - Vergabe Planungs- und Bauleistungen

13.

Bad Bertrich Mühlgraben - gemeinsame Ausschreibung bzw. Vergabe von Planungsleistungen

14.

Verrerdungsanlage auf der KA Schmitt

15.

Öffentliche Mitteilungen

Öffentlicher Teil

TOP 1:

Verpflichtung von Ausschussmitgliedern

Sachverhalt:

Gem. § 30 Abs. 2 Gemeindeordnung (GemO) sind die Ausschussmitglieder, auch die wiedergewählten Ausschussmitglieder, vor ihrem Amtsantritt in öffentlicher Sitzung durch den Bürgermeister namens der Gemeinde durch Handschlag auf die gewissenhafte Erfüllung ihrer Pflichten zu verpflichten. Die Pflichten der Ausschussmitglieder ergeben sich insbesondere aus den §§ 20, 21 und 30 Abs. 1 GemO (vgl. VV Nr. 2 zu § 30 GemO).

Vor der Verpflichtung sind die Ratsmitglieder auf folgende gesetzlichen Bestimmungen hinzuweisen:

Die Ausschussmitglieder sind zur Verschwiegenheit über solche Angelegenheiten verpflichtet, die dem Datenschutz unterliegen oder deren Geheimhaltung ihrer Natur nach erforderlich oder vom Gemeinderat aus Gründen des Gemeinwohls beschlossen ist. Dies gilt auch dann, wenn sie aus dem Amt ausgeschieden sind. Die Schweigepflicht gilt nicht für Tatsachen, die offenkundig sind oder ihrer Bedeutung nach keiner Geheimhaltung bedürfen. Meinungsäußerungen und Stimmabgabe einzelner Sitzungsteilnehmer und Stimmabgabe einzelner Personen in nichtöffentlicher Sitzung sind stets geheim zu halten. Bestimmungen über die Befreiung von der Schweigepflicht bleiben unberührt (§ 20 Abs. 1 GemO).

Die Ausschussmitglieder haben eine besondere Treuepflicht gegenüber der Gemeinde. Sie dürfen Ansprüche oder Interessen Dritter gegen die Gemeinde nicht vertreten, es sei denn, dass sie als gesetzlicher Vertreter handeln (§ 21 Abs. 1 GemO).

Verletzt ein Ausschussmitglied die oben angegebenen Pflichten, so kann ihm ein Ordnungsgeld bis fünfhundert Euro auferlegt werden (§ 21 Abs. 3 i.V.m. § 19 Abs. 3 GemO).

Folgende Personen, die noch nicht verpflichtet wurden, sind in den Werkausschuss der Verbandsgemeinde Ulmen gewählt worden und wurden in der Sitzung durch Bürgermeister Alfred Steimers per Handschlag auf die gewissenhafte Erfüllung ihrer Pflichten verpflichtet:

Mitglieder:

• Lothar Friedrich

• Michael Fischer

• Paul Haubrichs

• Gerd Johann

TOP 2:

Jahresabschluss 2023 des Abwasserwerkes

Sachverhalt:

Die Wirtschaftsprüfungsgesellschaft Mittelrheinische Treuhand GmbH (MT) hat den Jahresabschluss -bestehend aus Bilanz, Gewinn- und Verlustrechnung sowie Anhang- unter Einbeziehung der Buchführung und den Lagebericht für das Wirtschaftsjahr 2023 geprüft. Der Berichtsentwurf ist der Anlage angefügt.

Der Wirtschaftsprüfer hat den uneingeschränkten Bestätigungsvermerk erteilt; die Prüfung hat zu keinen Einwänden geführt.

Die Bilanz schließt auf der Aktiv- und Passivseite mit 25.268.239,00 € ab und weist in Übereinstimmung mit der Gewinn- und Verlustrechnung einen Jahresgewinn von 250.854,78 € aus. Dieser beinhaltet einen Liquiditätsüberschuss von 586.831,02 €.

Die Werkleitung schlägt vor, den Jahresgewinn in Höhe von 250.854,78 € auf neue Rechnung vorzutragen.

Herr Wirtschaftsprüfer Dr. Breitenbach von der MT war bei der Sitzung anwesend und hat den Jahresabschluss erläutert.

Beschluss:

Der Werkausschuss beschließt die Empfehlung an den Verbandsgemeinderat, den Jahresabschluss zum 31.12.2023 mit vorliegendem Inhalt festzustellen und den Jahresgewinn 2023 auf neue Rechnung vorzutragen.

Abstimmungsergebnis:

Ja 11, Nein 0, Enthaltung 0, Befangen 0

TOP 3:

Festsetzung Schmutzwassergebühr 2025 für die leitungsgebundene Abwasserentsorgung

Sachverhalt:

Seit dem Veranlagungsjahr 2021 war die Schmutzwassergebühr auf 3,25 €/m³, basierend auf der Nachkalkulation 2020, festgesetzt worden. Entsprechend der Nachkalkulation der Mittelrheinischen Treuhand im Rahmen des Jahresabschlusses 2021 wäre unter Berücksichtigung einer marktüblichen Eigenkapitalverzinsung nach § 8 Abs. 3 KAG u. § 11 Abs. 6 EigenbetriebsVO eine Gebühr von 3,66 €/m³ als erforderlich anzusehen.

Aufgrund der stark gestiegenen Kosten und derzeitigen Marktsituation wurde eine Vorkalkulation für 2023 durchgeführt.

Für die Aufgabenwahrnehmung ist auch eine dringend notwendige Gewinnerwirtschaftung erforderlich, zumal die allgemeine Rücklage durch Verlustausgleiche für vergangene Wirtschaftsjahre bereits aufgebraucht ist. Laut § 11 Abs. 7 EigenbetriebsVO ist der Verlustausgleich aus dem Wirtschaftsjahr 2020 innerhalb der nächsten fünf Jahre auszugleichen.

Dies wiederum wird bekräftigt durch die Forderungen der Kommunalaufsicht der Kreisverwaltung Cochem-Zell zu den vorgelegten unausgeglichenen Wirtschaftsplänen der vergangenen Jahre.

In einem Auszug aus der Stellungnahme der Kommunalaufsicht vom 14.02.2020 zum Wirtschaftsplan 2020 heißt es:

„Es wird erwartet, dass bei der Gebührenneufestsetzung für das kommende Jahr kostendeckende Entgelte festgesetzt werden. Die Entgeltkalkulation sollte auch eine Verzinsung des Eigenkapitals vorsehen. Dies vermindert die Gefahr des Entstehens von ausgabewirksamen Verlusten. Zudem entsteht ein größerer tarifpolitischer Spielraum für die Zukunft, der insbesondere wegen des hohen anstehenden Investitionsbedarfes für Ersterschließungen und Kanalerneuerungen sinnvoll ist.“

Eine Rücklagenbildung für Substanzerhaltung und die Erwirtschaftung einer marktüblichen Verzinsung des Eigenkapitals sind nur möglich, wenn der Eigenbetrieb entsprechende Jahresgewinne erwirtschaftet.

Die Schmutzwassergebühr wurde aufgrund dieser Vorgaben für 2021 bereits auf 3,25 €/m³ festgesetzt.

Ohne Eigenkapitalverzinsung errechnete sich jedoch nach der Vorkalkulation 2023 eine erforderliche Gebühr von 3,58 €/m³. Dieser Gebührensatz wurde auch bereits für das Jahr 2023 beschlossen.

Mit Blick auf die laufenden sowie in den kommenden Jahren anstehenden Maßnahmen mit sehr hohem Investitionsbedarf (s. Investitionsprogramm 2025 ff.) und die Tatsache, dass Verlustvorträge vergangener Wirtschaftsjahre die allgemeine Rücklage vollständig aufgebraucht haben, wird empfohlen, die Schmutzwassergebühr für 2025 auf den derzeit bestehenden Betrag von 3,58 €/m³ festzusetzen.

Beschluss:

Der Werkausschuss beschließt die Empfehlung an den Verbandsgemeinderat,

die Schmutzwassergebühr 2025 für die leitungsgebundene Entsorgung – wie im Vorjahr - auf 3,58 €/m³ festzusetzen.

Abstimmungsergebnis:

Ja 11, Nein 0, Enthaltung 0, Befangen 0

TOP 4:

Erlass der Satzung über die Erhebung des Wiederkehrenden Beitrages für die Vorhaltung der Niederschlagswasserbeseitigung (WKB) 2025

Sachverhalt:

Ab dem Veranlagungsjahr 2013 ist der Wiederkehrende Beitrag für die Vorhaltung der Niederschlagswasseranlagen auf 0,32 €/m² festgesetzt.

Die Nachkalkulation im Rahmen des Jahresabschlusses 2021 zeigt, dass eine Kostendeckung erreicht wurde.

Ebenfalls wurden im Zuge der stark gestiegenen Kosten und derzeitigen Marktsituation auch für den Wiederkehrende Beitrag eine Vorkalkulation für 2023 durchgeführt. Die Vorkalkulation für 2023 führt zu einer Anpassung auf 0,38 €/m² um eine Kostendeckung zu erreichen. Dieser Beitrag wurde entsprechend der Vorkalkulation auch von dem Verbandsgemeinderat in dieser Höhe beschlossen.

Die Beitragshöhe soll für das Jahr 2025 ohne weitere Erhöhung auf 0,38 €/m² festgesetzt werden.

Beschluss:

Der Werkausschuss empfiehlt dem Verbandsgemeinderat, die beigefügte Satzung über die Erhebung des Wiederkehrenden Beitrages für die Vorhaltung der Niederschlagswasserbeseitigung für 2025 – wie im Vorjahr - mit einem Beitragssatz auf 0,38 €/m² gewichtete Grundstücksfläche zu beschließen.

Abstimmungsergebnis:

Ja 11, Nein 0, Enthaltung 0, Befangen 0

TOP 5:

Festsetzung der Gebühr 2025 für das Einsammeln, den Transport und die Annahme von Schmutzwasser aus geschlossenen Gruben und Überschussschlamm aus privaten Kleinkläranlagen

Sachverhalt:

Ab dem Veranlagungsjahr 2019 ist diese Gebühr auf 27,-- €/m³ festgesetzt.

Im Zusammenhang mit der Prüfung des Jahresabschlusses 2021 wurde durch die Mittelrheinische Treuhand die Nachkalkulation vorgenommen. Eine Auskömmlichkeit/Kostendeckung der mobilen Entsorgung wurde erreicht.

In der Annahme von unveränderten Abfuhrkonditionen wird auch für 2025 eine unveränderte Gebühr vorgeschlagen.

Beschluss:

Der Werkausschuss beschließt die Empfehlung an den Verbandsgemeinderat, die Gebühr für das Einsammeln, den Transport und die Reinigung von Schmutzwasser aus geschlossenen Gruben sowie für das Einsammeln, den Transport und die Abnahme von Überschlussschlamm aus privaten Kleinkläranlagen für das Wirtschaftsjahr 2025 auf 27,-- € je Kubikmeter abgefahrener Menge festzusetzen.

Abstimmungsergebnis:

Ja 11, Nein 0,Enthaltung 0, Befangen 0

TOP 6:

Festsetzung der Vorausleistung auf den laufenden Kostenanteil 2025 für die Entwässerung der gemeindlichen Straßen, Wege und Plätze in die Abwasseranlagen der Verbandsgemeinde

Sachverhalt:

Gemäß der Vereinbarung mit den Gemeinden ist der Anteilssatz für die Vorausleistung an den laufenden Kosten der Entwässerung von gemeindlichen Straßen, Wegen und Plätzen in das Abwassersystem der Verbandsgemeinde in der Haushaltssatzung der VG Ulmen festzusetzen.

Die Endabrechnung erfolgt kostendeckend entsprechend den Kalkulationsvorschriften in Rheinland-Pfalz nach Vorlage der Jahresabschlusszahlen.

Im Rahmen der Vorkalkulation für die Schmutzwassergebühr und den Wiederkehrenden Beitrag ergab sich bei der Neukalkulation für 2023, dass eine Kostendeckung bei 0,51 €/m² entwässerte Fläche erreicht wird.

Bei der Nachkalkulation des Jahresabschlusses 2023 kam es zu einer Rückzahlung an die Gemeinden, da die Kostendeckung niedriger war.

Aus diesem Grund wird empfohlen, die Vorausleistung an den laufenden Kosten der Entwässerung von gemeindlichen Straßen, Wegen und Plätzen in das Abwassersystem der Verbandsgemeinde auf 0,47 €/m² entwässerte Fläche zu belassen.

Beschluss:

Der Werkausschuss beschließt die Empfehlung an den Verbandsgemeinderat, den Vorausleistungssatz auf den laufenden Kostenanteil für die Entwässerung gemeindlicher Straßen, Wege und Plätze in eine Entwässerungseinrichtung der Verbandsgemeinde Ulmen für das Haushaltsjahr 2025 auf 0,47 €/m² entwässerte Fläche und Jahr festzusetzen.

Abstimmungsergebnis:

Ja 11, Nein 0, Enthaltung 0, Befangen 0

TOP 7:

Neufassung der Betriebssatzung der VG Ulmen

Sachverhalt:

In der derzeit gültigen Betriebssatzung für den Eigenbetrieb Verbandsgemeinde Ulmen – Abwasserwerk - vom 24.09.2013 haben sich viele Änderungen ergeben, sodass eine Neufassung dieser Satzung notwendig ist.

Die Satzung wurde entsprechend an das Satzungsmuster des Gemeinde- und Städtebundes Rheinland-Pfalz vom November 2021 angepasst.

Im Wesentlichen geht es um die Gründung und die entsprechende Ergänzung eines weiteren Betriebszweiges. Somit kommt es zu folgender Änderung:

„Verbandsgemeinde Ulmen – Abwasserwerk –„

wird zu

„Verbandsgemeindewerke Ulmen“

mit den Betriebszweigen Abwasser und Energie.

Zudem wurden „§ 5 Aufgaben des Werkausschusses“ und „§ 7 Werkleitung“ im Hinblick auf die gestiegenen Kosten der vergangenen Jahre geändert und die Wertgrenzen entsprechend nach oben angepasst. Im Zuge dessen ist eine Änderung der Hauptsatzung der Verbandsgemeinde Ulmen notwendig.

Eine Gegenüberstellung der alten und neuen Betriebssatzung liegen als Anlage anbei.

Beschluss:

Der Werkausschuss empfiehlt dem Verbandsgemeinderat die Betriebssatzung für den Eigenbetrieb Verbandsgemeinde Ulmen – Abwasserwerk - vom 24.09.2013 aufzuheben und die neue Betriebssatzung für den Eigenbetrieb Verbandsgemeindewerke Ulmen zu beschließen.

Abstimmungsergebnis:

Ja 11, Nein 0,Enthaltung 0,Befangen 0

TOP 8:

Wirtschaftsplan 2025 des Abwasserwerkes der Verbandsgemeinde Ulmen

Sachverhalt:

Der Entwurf des Wirtschaftsplanes 2025 wurde durch die Werkleitung erarbeitet und ist der Anlage angefügt.

Die Höhe der Planansätze zum Zeitpunkt der Planaufstellung beruhen auf Berechnungen, Verpflichtungen, Erfahrungen und Prognosebetrachtungen für das Jahr 2025. Sie beinhalten in einem maßvollen Umfang ‚Vorsorgeaufwendungen‘, die sich auf Betriebserfahrungen der vergangenen Jahre stützen.

Zudem erweist sich die veränderte Geopolitische Lage auf der Welt zu einem Problemfaktor. Bei der Beschaffung von Bau- und Ersatzteilen, Baustoffen, Hilfs- und Betriebsstoffen kommt es zu Lieferengpässen. Ebenso sind teilweise starke Preiserhöhungen festzustellen.

Die Planung 2025 geht im Erfolgsplan von einem Jahresverlust mit 986,00 € aus. In der Erwartung, dass nicht alle (Vorsorge-)Planansätze, wie die Umsetzung der vielen geplanten Neubaugebiete, ausgeschöpft werden müssen, besteht die Möglichkeit eines positiven Jahresabschlusses.

Beschluss:

Der Werkausschuss empfiehlt dem Verbandsgemeinderat den Wirtschaftsplan 2025 mit vorgelegtem Inhalt zu beschließen.

Abstimmungsergebnis:

Ja 11, Nein 0, Enthaltung 0, Befangen 0

TOP 9:

Gründung des neuen Betriebszweiges "Energie"

Sachverhalt:

Der neue Betriebszweig „Energie“ wird zum 01.01.2025 gegründet, wie in der Betriebssatzung entsprechend festgelegt.

Die Vorbereitungen zur Gründung sind bereits angelaufen. Dafür benötigt es noch weitere Umstellungen, wie bspw. softwarebedingte Anforderungen zur Erstellung eines Wirtschaftsplans (Erweiterung KIS). Hier müssen bereits Aufträge vergeben werden. Dies gewährleistet einen reibungslosen Ablauf und vereinfacht die Gründung des neuen Betriebszweiges.

Wenn die Erweiterung des Programms KIS stattgefunden hat, kann ein Wirtschaftsplan erstellt werden. Demnach wird dieser in der nächsten Sitzung vorgestellt.

Haushaltsrechtliche Beurteilung:

Entsprechende Mittel sind im Wirtschaftsplan „Energie“ 2025 bereitzustellen.

Beschluss:

Der Werkausschuss beschließt, die erforderlichen Maßnahmen für die Gründung des neuen Betriebszweiges „Energie“ einzuleiten.

Zudem wird der Werkleiter ermächtigt in Absprache mit dem Bürgermeister bereits dafür notwendige Aufträge, wie bspw. die Erweiterung von KIS, zu vergeben.

Der Werkausschuss wird in der nachfolgenden Sitzung im Zuge der Vorstellung des Wirtschaftsplans 2025 informiert.

Abstimmungsergebnis:

Ja 11, Nein 0, Enthaltung 0, Befangen 0

TOP 10:

Kanal TV-Inspektion Schmitt, Ulmen, Lutzerath: Auftragsvergabe

Sachverhalt:

Entsprechend der Inspektionsverpflichtung nach der Selbstüberwachungsverordnung (SÜVOA RLP) und in Fortführung der Digitalisierung bzw. im Zuge von anstehenden Baumaßnahmen wurden in einem ersten Schritt sämtliche Abwasserschächte in Ulmen (Weidenstraße), Lutzerath (Trierer Straße) und Schmitt (Kirchstraße) aufgenommen und digitalisiert.

In dem jetzt folgenden zweiten Schritt sind die Leitungen mit Hochdruck zu spülen und eine Kamerabefahrung zur digitalen Bestands- und Zustandserfassung bzgl. der anstehenden Baumaßnahmen durchzuführen.

Hierzu wurde eine beschränkte Ausschreibung nach der Unterschwellenvergabeordnung (UVgO) durchgeführt und qualifizierte Firmen zur Abgabe eines Angebotes aufgefordert. Die zum Eröffnungstermin eingereichten Angebote wurden rechnerisch und fachtechnisch geprüft.

Die Angebotswertung ist als nichtöffentliche Anlage der Sitzungsvorlage angefügt.

Haushaltsrechtliche Beurteilung:

Der Investitionsplan 2025 sieht unter den folgenden Konten einen Ansatz vor:

Konto 8524-0003

Kirchstraße, Schmitt

60.000 EUR,

Konto 8532-0005

Weidenstraße, Ulmen

115.000 EUR,

Konto 8529-0005

L16, Trierer

Straße, Lutzerath

23.000 EUR.

Beschluss:

Entsprechend dem Prüfungsergebnis der Ausschreibung beschließt der Werkausschuss den Auftrag an den wirtschaftlichsten Bieter, der Firma G. Hilger GmbH aus Oberzissen mit einer Brutto-Angebotssumme von 57.754,27 EUR zu erteilen.

Abstimmungsergebnis:

Ja 11, Nein 0, Enthaltung 0, Befangen 0

TOP 11:

Auftragsvergabe Partielle Kanalsanierung sowie Kanalrenovation in den Ortsgemeinden Büchel, Wollmerath und Vorpochten

Sachverhalt:

Die Verbandsgemeindeverwaltung Ulmen (Abwasserwerk) hat im Rahmen der Eigenüberwachungsverordnung und im Vorfeld das Kanalnetz der OL Büchel, Wollmerath und Vorpochten inspizieren und die vorgefundenen Schäden gemäß ATV M 149-3 bewerteten lassen. Einen entsprechenden Sachstandsbericht wurde in der letzten Werkausschusssitzung vom Ingenieurbüro IBS vorgestellt.

Demnach ist es erforderlich, verschiedene Haltungen mit Schäden (DWA 0-2) kurzfristig mittels partieller Kanalsanierung sowie Kanalrenovation zu sanieren.

Die Angebotswertungen der Ausschreibungen sind als nichtöffentliche Anlage der Sitzungsvorlage beigefügt.

Haushaltsrechtliche Beurteilung:

Kanalrenovation

Unter den folgenden Konten sieht der Investitionsplan 2025 einen Planansatz vor:

08511-0005

Büchel

144.000 EUR

08540-0005

Wollmerath

86.000 EUR

Partielle Kanalsanierung

Für die Verpflichtung zur Reparatur von Abwasserkanälen im Rahmen des Sanierungskonzeptes stehen im Erfolgsplan 2025 unter Kto.-Nr. 54734 bis 54736 250.000 EUR zur Verfügung.

Im Erfolgsplan 2026 sind entsprechende Mittel einzuplanen.

Beschluss Kanalrenovation:

Entsprechend dem Ergebnis der beschränkten Ausschreibung beschließt der Werkausschuss die Auftragsvergabe der Kanalrenovation 2025 in der Ortslage Büchel und Wollmerath an den wirtschaftlichsten Bieter, die Firma

Aarsleff Rohrsanierung GmbH

zu einem Brutto-Angebotspreis von 181.393,46 EUR zu vergeben.

Abweichender Beschluss:

11 Ja, 0 Nein, 0 Enthaltungen

Beschluss partielle Sanierung:

Entsprechend dem Ergebnis der beschränkten Ausschreibung beschließt der Werkausschuss die Auftragsvergabe der partiellen Kanalsanierung 2025 in den Ortslagen Büchel, Wollmerath, Vorpochten in geschlossener Bauweise an den wirtschaftlichsten Bieter, die Firma

Diringer & Scheidel Rohrsanierung GmbH & Co.KG,

zu einem Brutto-Angebotspreis von 262.268,51 EUR zu vergeben.

Abstimmungsergebnis:

Ja 11, Nein 0,Enthaltung 0, Befangen 0

TOP 12:

Lutzerath NBG "Auf der Höhe" 3. und 4.BA - Vergabe Planungs- und Bauleistungen

Sachverhalt:

Die Ortsgemeinde Lutzerath hat am 29.08.2023 den Satzungsbeschluss für die 6. Änderung des Bebauungsplan NBG „Auf der Höhe“ gefasst.

In einem 1. BA wurde in 2006 der Bereich „Schultheisenkreuz“ mit 11 Bauplätzen abwassertechnisch erschlossen. Der 2. BA für einen Teilbereich der Römerstraße wurde für 23 Bauplätze, zusammen mit dem ersten Teil der Regenrückhaltung, in 2019 fertiggestellt.

Nun ist beabsichtigt den 3.BA zu realisieren. Die Kosten für die abwassertechnische Erschließung belaufen sich für diesen BA auf 300 000,00 EUR. Die Bauleistung soll gemeinsam mit der Ortsgemeinde Lutzerath zeitnah ausgeschrieben werden.

Im weiteren Verlauf des Jahres sollen weitere Planungsleistungen für den 4. BA erfolgen. Da hier noch die Genehmigungsplanung für die Regenwasserbewirtschaftung der SGD- Nord in Koblenz aussteht. Diese Genehmigung dauert voraussichtlich mehrere Monate.

Die Planungsleitungen im 4. BA umfassen unter anderem auch die Regenwasserbewirtschaftungsanlagen für das gesamte Baugebiet.

Haushaltsrechtliche Beurteilung:

Zum 3. Bauabschnitt:

Der Investitionsplan 2025 sieht unter dem Konto 8529-0001 für die Maßnahme einen Ansatz von insgesamt 330 000 EUR vor. Weitere notwendige Planansätze für die Umsetzung sind in dem Wirtschaftsplan 2026 vorzusehen.

Zum 4. Bauabschnitt:

Der Investitionsplan 2024 sieht unter dem Konto 8603-0001 für allgemeine Planungsleitungen einen Ansatz von insgesamt 20 000 EUR vor.

Weitere notwendige Planansätze für die Umsetzung sind in dem Wirtschaftsplan 2025 unter dem Konto 8529-0004 in Höhe von 65 000 EUR vorgesehen.

Beschluss:

Zum 3. Bauabschnitt:

Der Werkausschuss beschließt, das Vergabeverfahren für die Bauleistung einzuleiten. Der Werkleiter wird ermächtigt in Absprache mit dem Bürgermeister den Auftrag im Rahmen der bereitgestellten Haushaltsmittel an den Bieter mit dem wirtschaftlichsten Angebot zu erteilen. Der Werkausschuss wird in der nachfolgenden Sitzung die Vergabeentscheidung mitgeteilt. Wenn jedoch die vor Einleitung des Vergabeverfahrens ermittelten Kosten um 20% überschritten werden, behält sich der

Werkausschuss die Entscheidung vor

Abstimmungsergebnis:

11 Ja, 0 Nein, 0 Enthaltungen

Zum 4. Bauabschnitt:

Der Werkausschuss beschließt, die Planungsleistungen zur abwassertechnischen Erschließung für den 4. BA gemeinsam mit der Ortsgemeinde zu vergeben. Die Planungsleistungen belaufen sich auf insgesamt ca. 108 000 Euro für die folgenden Jahre.

Die Angebotswertung ist als nichtöffentliche Anlage der Sitzungsvorlage angefügt.

Abstimmungsergebnis:

Ja 11, Nein 0, Enthaltung 0, Befangen 0

TOP 13:

Bad Bertrich Mühlgraben - gemeinsame Ausschreibung bzw. Vergabe von Planungsleistungen

Sachverhalt:

Die Ortsgemeinde Bad Bertrich plant die Instandsetzung des undichten Mühlgrabens und der Neuanlage eines Wasserspielplatzes.

In diesem Zuge der Maßnahme soll der bestehende Mühlengraben, welcher den Schwanenweiher speist, saniert bzw. in Teilen erneuert werden. Wegen aufgetretener Undichtigkeiten musste dieser vorübergehend abgeschiebert werden. Nach der Sanierung soll die Abschieberung wieder aufgehoben werden.

Des Weiteren soll im Bachlauf des Mühlgrabens ein Wasserspielplatz als Naturerlebnisraum hergestellt werden.

Im Zuge dieser Baumaßnahme der Ortsgemeinde Bad Bertrich sind noch Erneuerungsmaßnahmen notwendig. Bisher fand eine Kamerabefahrung zur digitalen Bestands- und Zustandserfassung statt.

Im weiteren Verlauf sollen gemeinsam mit der Ortsgemeinde Bad Bertrich Planungsleistungen erfolgen.

Haushaltsrechtliche Beurteilung:

Der Investitionsplan 2025 sieht unter dem Konto 8507-0005 für die Maßnahme einen Ansatz von insgesamt 87.000 EUR vor.

Beschluss:

Der Werkausschuss beschließt, das Vergabeverfahren in Zusammenarbeit mit der Ortsgemeinde Bad Bertrich für die Planungsleistungen einzuleiten. Der Werkleiter wird ermächtigt in Absprache mit dem Bürgermeister den Auftrag im Rahmen der bereitgestellten Haushaltsmittel an den Bieter mit dem wirtschaftlichsten Angebot zu erteilen. Der Werkausschuss wird in der nachfolgenden Sitzung die Vergabeentscheidung mitgeteilt. Wenn jedoch die vor Einleitung des Vergabeverfahrens ermittelten Kosten um 20% überschritten werden, behält sich der

Werkausschuss die Entscheidung vor.

Abstimmungsergebnis:

Ja 11, Nein 0, Enthaltung 0, Befangen 0

TOP 14:

Verrerdungsanlage auf der KA Schmitt

Sachverhalt:

Die Klärschlammvererdungsanlage auf dem Gelände der Kläranlage Schmitt wurde in 2007 in Betrieb genommen.

Mit der Klärschlammbehandlung in Schilfbeeten realisiert die Verbandsgemeinde Ulmen erstmals ein naturnahes Verfahren zur Entwässerung und weitgehenden Mineralisierung von biologisch stabilisiertem Schlamm. Dieser natürlich-biologische Prozess der Vererdung wird bereits seit Jahren in vielen kommunalen Kläranlagen kleiner und mittlerer Größen betrieben.

Das Becken hat eine Nutzfläche von 1.100 m² und ein Fassungsvermögen von 1.680 m³.

Durch die Verschärfung der Untersuchungsparameter der letzten Jahre und der Erfahrungswerte von anderen Anlagenbetreibern stellt sich zurzeit die Situation dar, dass entgegen der ursprünglichen Erwartung eine landwirtschaftliche Verwertung kaum oder nicht mehr möglich ist.

Daher haben bereits erste Gespräche mit der SGD-Nord in Koblenz zur Entleerung und zum Rückbau stattgefunden. Derzeit steht in Abstimmung mit der SGD-Nord in Koblenz nur der Weg der thermischen Entsorgung zur Verfügung. In diesem Zusammenhang wurden mit dem Wirtschaftsprüfer der Mittelrheinischen Treuhand (MT) bereits die Rückstellungen für den Rückbau und die Entleerung angepasst.

Die aus dem Rückbau entstehende Brache auf dem Gelände der Kläranlage Schmitt soll für eine Eigenstromerzeugungsanlage genutzt werden. Andere Flächen, wie Dächer oder Erweiterungsflächen stehen nicht oder nicht in ausreichendem Umfang zur Verfügung, um eine solche Anlage für die Eigenstromerzeugung zu errichten.

Nach der derzeit vorliegenden Analytik und dem aktuellen Kenntnisstand Vorort wird sich die Entleerung und der Rückbau der Vererdungsanlage auf ca. 250.000 EUR belaufen.

Haushaltsrechtliche Beurteilung:

Der Erfolgsplan 2025 des Abwasserwerkes sieht unter dem Konto 54024 für die Entleerung und den Rückbau auf der Kläranlage Schmitt einen Ansatz von insgesamt 330.000 EUR vor.

Im Investitionsplan des Betriebszweiges Energie sind entsprechende Mittel zum Bau einer Eigenstromerzeugungsanlage vorzusehen.

Beschluss:

Der Werkausschuss beschließt, das Vergabeverfahren für die Entleerung und den Rückbau der Vererdungsanlage auf der Kläranlage Schmitt, sobald die Genehmigung der SGD Nord in Koblenz vorliegt, einzuleiten.

Der Werkleiter wird ermächtigt in Absprache mit dem Bürgermeister den Auftrag im Rahmen der bereitgestellten Haushaltsmittel an den Bieter mit dem wirtschaftlichsten Angebot zu erteilen. Der Werkausschuss wird in der nachfolgenden Sitzung die Vergabeentscheidung mitgeteilt. Wenn jedoch die vor Einleitung des Vergabeverfahrens ermittelten Kosten um 20% überschritten werden, behält sich der

Werkausschuss die Entscheidung vor.

Abstimmungsergebnis:

Ja 11, Nein 0, Enthaltung 0, Befangen 0

TOP 15:

Öffentliche Mitteilungen

Vorlage des Zwischenberichtes zum 31.08.2024 durch die Werkleitung

Der Zwischenbericht der Werkleitung per 31.08.2024 wird dem Werkausschuss zur Kenntnisnahme vorgelegt.

Zukünftige Vergabeentscheidungen

Im Rahmen einer Kooperation, zwischen den vier Verbandsgemeinden Zell (Mosel), Ulmen, Cochem und Kaisersesch, soll eine gemeinsame Zentrale Vergabestelle für alle eingerichtet werden.

Durch die Einrichtung einer gemeinsamen Zentralen Vergabestelle wird eine wesentliche Verbesserung des bestehenden öffentlichen Leistungsangebotes der vier Verwaltungen erreicht und eine kommunale Aufgabenstellung bewältigt, die auf örtlicher Ebene nicht gleichwertig zu lösen ist.

Im Zuge des Aufbaus einer gemeinsamen Zentralen Vergabestelle ist es sinnvoll die Organisationsstrukturen rund um das öffentliche Auftragswesen in den einzelnen Verwaltungen möglichst zu vereinheitlichen. Um zukünftige Vergabeverfahren zu optimieren und den zeitlichen Aufwand zu verkürzen wird folgender Beschlussvorschlag bei Vergabeangelegenheiten vorgeschlagen:

„Der Gemeinde-/Stadtrat ... beschließt, das Vergabeverfahren für ... einzuleiten. Der Orts-/Stadtbürgermeister wird ermächtigt in Absprache mit den Beigeordneten den Auftrag im Rahmen der bereitgestellten Haushaltsmittel an den Bieter mit dem wirtschaftlichsten Angebot zu erteilen. Dem Gemeinderat wird in der nachfolgenden Sitzung die Vergabeentscheidung mitgeteilt. Wenn jedoch die vor Einleitung des Vergabeverfahrens ermittelten Kosten um 20% überschritten werden, behält sich der Gemeinde-/Stadtrat die Entscheidung vor.“

Diese einheitliche Verfahrensweise soll auch in Zukunft für den Werkausschuss angewendet werden.

Anfrageportal für Planauskünfte

Planauskünfte sollen zukünftig Online beantragt werden zur schnelleren Bearbeitung und zur Vereinfachung der Abfrage.

Neue Bereitschaftsnummer

Es wurde eine allgemeine Bereitschaftsnummer für Notfälle 02676/409-900, die das Abwasser betreffen, eingerichtet.

Neue Stellenausschreibung Betriebselektriker

In nächster Zeit soll eine Stelle für einen Betriebselektriker ausgeschrieben werden.

Kommunikationsdienste 450MHZ

Das Notstromkonzept wird im Hinblick auf die Kommunikation bei Katastrophen oder bei längeren Stromausfällen durch den Bundesweiten Kommunikationsdienst 450MHZ für die kritische Infrastruktur ergänzt. Die Anschaffung soll für sechs Endgeräte erfolgen. Eine einheitliche Beschaffung bei der 450Connect soll in Abstimmung mit den Kreiswerken und den weiteren zwei Eigenbetrieben der Verbandsgemeinde erfolgen.

Die Anschaffungskosten liegen bei rund 12.000 EUR, welche im Investitionsplan unter dem Notstromkonzept vorgesehen werden.